ΠΠ»Π°Π½ Π½Π° Π΄ΠΎΠΌΠ°: Π³ΠΎΡΠΎΠ²ΡΠ΅ ΠΈ ΡΠΈΠΏΠΎΠ²ΡΠ΅. ΠΠ°ΡΠ°Π»ΠΎΠ³ ΡΠΎΠ΄Π΅ΡΠΆΠΈΡ ΠΏΠ»Π°Π½ΠΈΡΠΎΠ²ΠΊΠΈ, ΠΏΠ»Π°Π½Ρ ΠΈ ΡΠ΅ΡΡΠ΅ΠΆΠΈ
Π³ΠΎΡΠΎΠ²ΡΠ΅ ΠΈ ΡΠΈΠΏΠΎΠ²ΡΠ΅. ΠΠ°ΡΠ°Π»ΠΎΠ³ ΡΠΎΠ΄Π΅ΡΠΆΠΈΡ ΠΏΠ»Π°Π½ΠΈΡΠΎΠ²ΠΊΠΈ, ΠΏΠ»Π°Π½Ρ ΠΈ ΡΠ΅ΡΡΠ΅ΠΆΠΈ
ΠΡΠ°ΡΠΈΠ²ΡΠ΅ ΠΏΡΠΎΠ΅ΠΊΡΡ ΠΌΠ°Π½ΡΠ°ΡΠ΄Π½ΡΡ Π΄ΠΎΠΌΠΎΠ²: ΡΠΎΡΠΎ, ΠΊΠ°ΡΠ°Π»ΠΎΠ³
| ΠΠ°ΡΠ΅Π³ΠΎΡΠΈΡ ΠΏΡΠΎΠ΅ΠΊΡΠΎΠ² | ΠΠ°Π½ΡΠ°ΡΠ΄Π½ΡΠ΅ Π΄ΠΎΠΌΠ° ΠΎΡ 70 ΠΌ2 |
| Π‘ΡΠΎΠΈΠΌΠΎΡΡΡ ΠΏΡΠΎΠ΅ΠΊΡΠΎΠ² | ΠΡ 30600β½ |
| ΠΠ»ΠΎΡΠ°Π΄Ρ ΠΏΡΠΎΠ΅ΠΊΡΠΎΠ² | ΠΡ 70 ΠΌ2 |
| ΠΡΠ°ΠΆΠ½ΠΎΡΡΡ ΠΏΡΠΎΠ΅ΠΊΡΠΎΠ² | ΠΠ°Π½ΡΠ°ΡΠ΄Π½ΡΠ΅ |
| Π€ΠΎΡΠΌΠ°Ρ Π΄ΠΎΠΊΡΠΌΠ΅Π½ΡΠ°ΡΠΈΠΈ | ΠΠ΅ΡΠ°ΡΠ½ΡΠΉ |
ΠΡΠΎΠ΅ΠΊΡΡ ΠΌΠ°Π½ΡΠ°ΡΠ΄Π½ΡΡ
Π΄ΠΎΠΌΠΎΠ² Π½Π°ΡΠ΅Π³ΠΎ ΠΊΠ°ΡΠ°Π»ΠΎΠ³Π° ΠΌΠΎΠΆΠ½ΠΎ Π²ΠΎΠ·Π²ΠΎΠ΄ΠΈΡΡ ΠΈΠ· ΠΏΠ΅Π½ΠΎΠ±Π΅ΡΠΎΠ½Π°, Π³Π°Π·ΠΎΠ±Π»ΠΎΠΊΠΎΠ², ΠΊΠΈΡΠΏΠΈΡΠ°, ΠΊΠ΅ΡΠ°ΠΌΠΈΡΠ΅ΡΠΊΠΈΡ
Π±Π»ΠΎΠΊΠΎΠ². ΠΡΠΎΠ΅ΠΊΡ ΠΌΠ°Π½ΡΠ°ΡΠ΄Π½ΠΎΠ³ΠΎ Π΄ΠΎΠΌΠ° ΠΏΠ΅ΡΠ΅Π΄ ΠΏΡΠΈΠΎΠ±ΡΠ΅ΡΠ΅Π½ΠΈΠ΅ΠΌ ΠΌΡ ΡΠ΅ΠΊΠΎΠΌΠ΅Π½Π΄ΡΠ΅ΠΌ Π°Π΄Π°ΠΏΡΠΈΡΠΎΠ²Π°ΡΡ ΠΊ Π²Π°ΡΠ΅ΠΌΡ ΡΡΠ°ΡΡΠΊΡ ΠΈ ΠΊΠ»ΠΈΠΌΠ°ΡΠΈΡΠ΅ΡΠΊΠΎΠΉ Π·ΠΎΠ½Π΅ — ΡΡΠΎ Π±ΡΠ΄Π΅Ρ Π³Π°ΡΠ°Π½ΡΠΈΡΠΎΠ²Π°ΡΡ Π΄ΠΎΠ»Π³ΠΎΠ²Π΅ΡΠ½ΠΎΡΡΡ ΠΈ Π²ΡΡΠΎΠΊΠΎΠ΅ ΠΊΠ°ΡΠ΅ΡΡΠ²ΠΎ ΠΏΠΎΡΡΡΠΎΠΉΠΊΠΈ!
ΠΠ»Π°Π½Ρ ΠΏΡΠΎΠ΅ΠΊΡΠΎΠ² ΠΌΠ°Π½ΡΠ°ΡΠ΄Π½ΡΡ Π΄ΠΎΠΌΠΎΠ²: ΠΏΡΠ΅ΠΈΠΌΡΡΠ΅ΡΡΠ²Π°
ΠΠ»Π°Π½Ρ ΠΌΠ°Π½ΡΠ°ΡΠ΄Π½ΡΡ
Π΄ΠΎΠΌΠΎΠ² ΠΎΡΡΠ°ΡΡΡΡ Π°ΠΊΡΡΠ°Π»ΡΠ½ΡΠΌΠΈ ΠΈ Π² 2017 Π³ΠΎΠ΄Ρ Π±Π»Π°Π³ΠΎΠ΄Π°ΡΡ ΠΈΡ
ΡΠ°ΡΠΈΠΎΠ½Π°Π»ΡΠ½ΠΎΡΡΠΈ. ΠΡΠ»ΠΈ ΡΠ΅ΡΠ°ΡΡ, ΠΊΠ°ΠΊΠΎΠΉ ΠΊΡΠΏΠΈΡΡ ΠΏΡΠΎΠ΅ΠΊΡ Π΄ΠΎΠΌΠ°, Π²ΡΠ±ΠΈΡΠ°Ρ ΠΌΠ΅ΠΆΠ΄Ρ ΠΎΠ΄Π½ΠΎΡΡΠ°ΠΆΠ½ΡΠΌ, ΠΌΠ°Π½ΡΠ°ΡΠ΄Π½ΡΠΌ ΠΈ Π΄Π²ΡΡ
ΡΡΠ°ΠΆΠ½ΡΠΌ Π΄ΠΎΠΌΠΎΠΌ β Π΄ΠΎΠΌ Ρ ΠΌΠ°Π½ΡΠ°ΡΠ΄ΠΎΠΉ ΡΠ°ΠΌΡΠΉ Ρ
ΠΎΡΠΎΡΠΈΠΉ ΠΈ ΠΎΠΏΡΠΈΠΌΠ°Π»ΡΠ½ΡΠΉ Π²Π°ΡΠΈΠ°Π½Ρ.
ΠΠ³ΠΎ ΠΏΡΠ΅ΠΈΠΌΡΡΠ΅ΡΡΠ²Π° Π·Π°ΠΊΠ»ΡΡΠ°ΡΡΡΡ Π² ΡΠΎΠΌ, ΡΡΠΎ:
- ΠΠ»Π°Π½ΠΈΡΠΎΠ²ΠΊΠ° ΠΌΠ°Π½ΡΠ°ΡΠ΄Π½ΡΡ Π΄ΠΎΠΌΠΎΠ² Π΄Π΅Π»Π°Π΅Ρ ΠΈΡ ΡΠ΅ΠΏΠ»Π΅Π΅ ΠΎΠ΄Π½ΠΎΡΡΠ°ΠΆΠ½ΡΡ ΠΈ Π΄Π²ΡΡ ΡΡΠ°ΠΆΠ½ΡΡ : Π²Ρ Π½Π΅ Π±ΡΠ΄Π΅ΡΠ΅ Π·ΠΈΠΌΠΎΠΉ Π³ΡΠ΅ΡΡ ΡΠ΅ΡΠ΄Π°ΠΊ Π²ΠΏΡΡΡΡΡ.
- ΠΠ³ΠΎ ΡΡΡΠΎΠΈΡΠ΅Π»ΡΡΡΠ²ΠΎ ΠΏΠΎΠ΄ ΠΊΠ»ΡΡ ΠΎΠ±ΠΎΠΉΠ΄Π΅ΡΡΡ Π΄Π΅ΡΠ΅Π²Π»Π΅, ΡΠ΅ΠΌ ΠΎΠ΄Π½ΠΎΡΡΠ°ΠΆΠ½ΠΎΠ³ΠΎ ΠΈ Π΄Π²ΡΡ ΡΡΠ°ΠΆΠ½ΠΎΠ³ΠΎ ΠΆΠΈΠ»ΠΎΠ³ΠΎ Π΄ΠΎΠΌΠ° ΡΠΎΠΉ ΠΆΠ΅ ΠΏΠ»ΠΎΡΠ°Π΄ΠΈ (ΠΏΡΠΈ ΠΏΡΠΎΡΠΈΡ ΡΠ°Π²Π½ΡΡ ΡΡΠ»ΠΎΠ²ΠΈΡΡ ). ΠΠΎΡΠΊΠΎΠ»ΡΠΊΡ, Π½Π° ΠΎΠ΄Π½ΠΎΠΌ ΠΈ ΡΠΎΠΌ ΠΆΠ΅ ΡΡΠ½Π΄Π°ΠΌΠ΅Π½ΡΠ΅, ΠΏΠΎΠ΄ ΠΎΠ΄Π½ΠΎΠΉ ΠΈ ΡΠΎΠΉ ΠΆΠ΅ ΠΊΡΠΎΠ²Π»Π΅ΠΉ Π΄ΠΎΠΌ Ρ ΠΌΠ°Π½ΡΠ°ΡΠ΄ΠΎΠΉ Π±ΡΠ΄Π΅Ρ ΠΈΠΌΠ΅ΡΡ Π±ΠΎΠ»ΡΡΡΡ ΠΏΠ»ΠΎΡΠ°Π΄Ρ, ΡΠ΅ΠΌ ΠΎΠ΄Π½ΠΎΡΡΠ°ΠΆΠ½ΡΠΉ. ΠΠ»Ρ Π΅Π³ΠΎ ΡΡΡΠΎΠΈΡΠ΅Π»ΡΡΡΠ²Π° ΠΏΠΎΡΡΠ΅Π±ΡΠ΅ΡΡΡ ΠΌΠ΅Π½ΡΡΠ΅ ΠΌΠ°ΡΠ΅ΡΠΈΠ°Π»ΠΎΠ², ΡΠ΅ΠΌ Π΄Π»Ρ Π΄Π²ΡΡ ΡΡΠ°ΠΆΠ½ΠΎΠ³ΠΎ ΠΊΠΎΡΡΠ΅Π΄ΠΆΠ°, ΡΡΠΎ ΡΡΡΠ΅ΡΡΠ²Π΅Π½Π½ΠΎ ΡΠΌΠ΅Π½ΡΡΠΈΡ ΡΠΌΠ΅ΡΡ ΡΠ°ΡΡ ΠΎΠ΄ΠΎΠ².
- ΠΡΠΎΡΡΠΆΠ΅Π½Π½ΠΎΡΡΡ ΠΊΠΎΠΌΠΌΡΠ½ΠΈΠΊΠ°ΡΠΈΠΉ Π² Π΄ΠΎΠΌΠ΅ Ρ ΠΌΠ°Π½ΡΠ°ΡΠ΄ΠΎΠΉ Π±ΡΠ΄Π΅Ρ ΠΌΠ΅Π½ΡΡΠ΅, ΡΠ΅ΠΌ Π² ΠΎΠ΄Π½ΠΎΡΡΠ°ΠΆΠ½ΠΎΠΌ.
- ΠΠ° ΡΡΠ°ΡΡΠΊΠ΅ ΠΎΠ½ Π±ΡΠ΄Π΅Ρ Π·Π°Π½ΠΈΠΌΠ°ΡΡ ΠΌΠ΅Π½ΡΡΠ΅ ΠΌΠ΅ΡΡΠ°, ΡΠ΅ΠΌ ΠΎΠ΄Π½ΠΎΡΡΠ°ΠΆΠ½ΡΠΉ Π΄ΠΎΠΌ.
ΠΠ»Π°Π½ΠΈΡΠΎΠ²ΠΊΠ° ΠΏΡΠΎΠ΅ΠΊΡΠΎΠ² ΠΌΠ°Π½ΡΠ°ΡΠ΄Π½ΡΡ Π΄ΠΎΠΌΠΎΠ²: ΠΎΡΠΎΠ±Π΅Π½Π½ΠΎΡΡΠΈ
ΠΠ»Ρ ΡΠΎΠ³ΠΎ ΡΡΠΎΠ±Ρ ΡΠ°ΡΡΠ½ΡΠΉ Π΄ΠΎΠΌ Ρ ΠΌΠ°Π½ΡΠ°ΡΠ΄ΠΎΠΉ Π±ΡΠ» ΠΊΠΎΠΌΡΠΎΡΡΠ½ΡΠΌ ΠΈ ΡΠ΄ΠΎΠ±Π½ΡΠΌ Π½ΡΠΆΠ½ΠΎ Π²Π½ΠΈΠΌΠ°ΡΠ΅Π»ΡΠ½ΠΎ ΠΎΡΠ½Π΅ΡΡΠΈΡΡ ΠΊ Π΅Π³ΠΎ ΠΎΡΠΎΠ±Π΅Π½Π½ΠΎΡΡΡΠΌ.
Π’Π°ΠΊ, Π½Π°ΠΏΡΠΈΠΌΠ΅Ρ, ΠΈΠ·ΠΌΠ΅Π½ΡΡ ΡΠ³ΠΎΠ» Π½Π°ΠΊΠ»ΠΎΠ½Π° ΠΊΡΠΎΠ²Π»ΠΈ, Π²ΡΡΠΎΡΡ Π°ΡΡΠΈΠΊΠΎΠ²ΠΎΠΉ ΡΡΠ΅Π½Ρ, ΠΈΡΠΏΠΎΠ»ΡΠ·ΡΡ ΡΠ°Π»ΡΡΡΡΠ΅Π½Ρ Π²Π½ΡΡΡΠΈ ΠΌΠ°Π½ΡΠ°ΡΠ΄Ρ, ΠΏΡΠ°Π²ΠΈΠ»ΡΠ½ΠΎ Π²ΡΠ±ΡΠ°Π² ΠΌΠ΅Π±Π΅Π»Ρ ΠΈ Π΄ΠΈΠ·Π°ΠΉΠ½ ΠΌΠ°Π½ΡΠ°ΡΠ΄Π½ΡΡ
Π΄ΠΎΠΌΠΎΠ², ΠΌΠΎΠΆΠ½ΠΎ ΡΠ΄Π΅Π»Π°ΡΡ Π΅Π΅ Π΅ΡΠ΅ Π±ΠΎΠ»Π΅Π΅ ΡΡΡΠ½ΠΎΠΉ, ΠΏΡΠ΅Π²ΡΠ°ΡΠΈΡΡ ΠΈΠ· Π½Π΅ΡΡΡΠ°Π·Π½ΠΎΠ³ΠΎ ΡΠ³Π»ΠΎΠ²Π°ΡΠΎΠ³ΠΎ ΠΏΠΎΠΌΠ΅ΡΠ΅Π½ΠΈΡ Π² ΡΡΡΠ½ΠΎΠ΅, ΠΎΡΠΈΠ³ΠΈΠ½Π°Π»ΡΠ½ΠΎΠ΅ Π³Π½Π΅Π·Π΄ΡΡΠΊΠΎ.
ΠΠ»Ρ ΡΡΠΎΠ³ΠΎ Π»ΡΡΡΠ΅ ΠΎΠ±ΡΠ°ΡΠΈΡΡΡΡ Π·Π° ΠΏΠΎΠΌΠΎΡΡΡ ΠΊ ΠΎΠΏΡΡΠ½ΡΠΌ Π°ΡΡ
ΠΈΡΠ΅ΠΊΡΠΎΡΠ°ΠΌ ΠΈ Π΄ΠΈΠ·Π°ΠΉΠ½Π΅ΡΠ°ΠΌ. ΠΠ°ΡΠΈ ΡΠΏΠ΅ΡΠΈΠ°Π»ΠΈΡΡΡ ΠΏΡΠΎΠ΅ΠΊΡΠ½ΠΎΠ³ΠΎ ΠΎΡΠ΄Π΅Π»Π° Π·Π° ΠΎΡΠ΄Π΅Π»ΡΠ½ΡΡ ΡΡΠΎΠΈΠΌΠΎΡΡΡ ΠΏΡΠΈ Π½Π΅ΠΎΠ±Ρ
ΠΎΠ΄ΠΈΠΌΠΎΡΡΠΈ ΡΠΌΠΎΠ³ΡΡ Π²Π½Π΅ΡΡΠΈ Π² Π²ΡΠ±ΡΠ°Π½Π½ΡΠΉ ΠΏΠ»Π°Π½ Π΄ΠΎΠΌΠ° Ρ ΠΌΠ°Π½ΡΠ°ΡΠ΄ΠΎΠΉ Π²ΡΠ΅ ΡΠΊΠ°Π·Π°Π½Π½ΡΠ΅ ΠΈΠ·ΠΌΠ΅Π½Π΅Π½ΠΈΡ.
Π Π±ΠΎΠ»ΡΡΠ΅ΠΉ ΡΠ°ΡΡΠΈ Π½Π°ΡΠΈ ΡΠΈΠΏΠΎΠ²ΡΠ΅ ΠΏΡΠΎΠ΅ΠΊΡΡ Π΄ΠΎΠΌΠΎΠ² Ρ ΠΌΠ°Π½ΡΠ°ΡΠ΄ΠΎΠΉ ΠΏΡΠ΅Π΄ΡΡΠΌΠ°ΡΡΠΈΠ²Π°ΡΡ Π²ΡΡΠΎΡΡ Π°ΡΡΠΈΠΊΠΎΠ²ΠΎΠΉ ΡΡΠ΅Π½Ρ 1 ΠΌ β 1,2 ΠΌ, ΡΡΠΎ ΡΠ²Π»ΡΠ΅ΡΡΡ Π²ΠΏΠΎΠ»Π½Π΅ ΠΎΠΏΡΠΈΠΌΠ°Π»ΡΠ½ΡΠΌ, ΡΠ΄ΠΎΠ±Π½ΡΠΌ Π²Π°ΡΠΈΠ°Π½ΡΠΎΠΌ. ΠΠ»Ρ ΡΠΎΠ³ΠΎ ΡΡΠΎΠ±Ρ ΠΌΠ°Π½ΡΠ°ΡΠ΄Π½ΡΠΉ ΡΡΠ°ΠΆ Π½Π΅ Π±ΡΠ» Β«Π΄ΡΡΠ½ΡΠΌΒ» Π² Π½Π΅ΠΌ Π΄ΠΎΠ»ΠΆΠ½Π° Π±ΡΡΡ ΠΏΡΠ°Π²ΠΈΠ»ΡΠ½ΠΎ ΡΠΏΡΠΎΠ΅ΠΊΡΠΈΡΠΎΠ²Π°Π½Π° Π²Π΅Π½ΡΠΈΠ»ΡΡΠΈΠΎΠ½Π½Π°Ρ ΡΠΈΡΡΠ΅ΠΌΠ°. ΠΠ΅ΠΎΠ±Ρ ΠΎΠ΄ΠΈΠΌΠΎ ΠΏΠΎΠΌΠ½ΠΈΡΡ, ΡΡΠΎ ΠΌΠ°Π½ΡΠ°ΡΠ΄Π½ΡΠ΅ ΠΎΠΊΠ½Π° Π΄Π°ΡΡ Π±ΠΎΠ»ΡΡΠ΅ ΡΠ²Π΅ΡΠ°, ΡΠ΅ΠΌ Π»ΡΠΊΠ°ΡΠ½Ρ. Π₯ΠΎΡΡ Π»ΡΠΊΠ°ΡΠ½Ρ Π»ΡΡΡΠΈΠΌ ΠΎΠ±ΡΠ°Π·ΠΎΠΌ ΠΏΠΎΠ΄ΡΠ΅ΡΠΊΠΈΠ²Π°ΡΡ ΡΡΡΠ½ΡΠΉ Ρ Π°ΡΠ°ΠΊΡΠ΅Ρ ΠΌΠ°Π½ΡΠ°ΡΠ΄Π½ΠΎΠ³ΠΎ ΡΡΠ°ΠΆΠ°.
ΠΠ±ΡΠ·Π°ΡΠ΅Π»ΡΠ½ΠΎ Π½ΡΠΆΠ½ΠΎ ΠΏΠΎΠΌΠ½ΠΈΡΡ, ΡΡΠΎ Π΄Π°Π»Π΅ΠΊΠΎ Π½Π΅ ΠΊΠ°ΠΆΠ΄ΡΠΉ ΡΠ°ΡΡΠ½ΡΠΉ ΠΎΠ΄Π½ΠΎΡΡΠ°ΠΆΠ½ΡΠΉ Π΄ΠΎΠΌ ΠΌΠΎΠΆΠ½ΠΎ ΠΏΡΠ΅Π²ΡΠ°ΡΠΈΡΡ Π² ΠΌΠ°Π½ΡΠ°ΡΠ΄Π½ΡΠΉ. ΠΠ»Ρ ΡΡΠΎΠ³ΠΎ Π² ΠΏΡΠΎΠ΅ΠΊΡΠ΅ ΡΠ°ΠΊΠΎΠ³ΠΎ Π΄ΠΎΠΌΠ° Π΄ΠΎΠ»ΠΆΠ½Ρ Π±ΡΡΡ ΠΈΠ·Π½Π°ΡΠ°Π»ΡΠ½ΠΎ ΡΡΡΠ΅Π½Ρ ΠΌΠ½ΠΎΠ³ΠΈΠ΅ ΠΏΠ°ΡΠ°ΠΌΠ΅ΡΡΡ ΠΏΠ΅ΡΠ΅ΠΊΡΡΡΠΈΡ, ΡΡΡΠΎΠΏΠΈΠ»ΡΠ½ΡΡ
ΠΊΠΎΠ½ΡΡΡΡΠΊΡΠΈΠΉ, ΠΊΡΠΎΠ²Π΅Π»ΡΠ½ΠΎΠ³ΠΎ ΠΏΠΈΡΠΎΠ³Π°, Π΄ΡΡΠ³ΠΈΠ΅, ΡΠ°ΡΡΡΠΈΡΠ°Π½Π½ΡΠ΅ Π½Π° Π±ΡΠ΄ΡΡΠΈΠΉ ΠΌΠ°Π½ΡΠ°ΡΠ΄Π½ΡΠΉ ΡΡΠ°ΠΆ.
ΠΡΠΎΠ΅ΠΊΡΡ Π΄ΠΎΠΌΠΎΠ² ΠΈΠ· ΠΏΠ΅Π½ΠΎΠ±Π»ΠΎΠΊΠΎΠ², ΠΊΠΎΡΠΎΡΡΠ΅ ΠΌΠΎΠΆΠ½ΠΎ ΡΠΌΠΎΡΡΠ΅ΡΡ Π² ΠΊΠ°ΡΠ°Π»ΠΎΠ³Π΅, ΠΌΠΎΠ³ΡΡ ΡΠ΅Π°Π»ΠΈΠ·ΠΎΠ²ΡΠ²Π°ΡΡΡΡ ΠΈ ΠΈΠ· ΠΊΠ΅ΡΠ°ΠΌΠΎΠ±Π»ΠΎΠΊΠΎΠ², Π³Π°Π·ΠΎΠ±Π΅ΡΠΎΠ½Π°, Π΄ΡΡΠ³ΠΈΡ
ΠΊΠ°ΠΌΠ΅Π½Π½ΡΡ
ΠΌΠ°ΡΠ΅ΡΠΈΠ°Π»ΠΎΠ².
ΠΡΠΈ ΠΏΡΠΈΠΎΠ±ΡΠ΅ΡΠ΅Π½ΠΈΠΈ ΠΈΠ½Π΄ΠΈΠ²ΠΈΠ΄ΡΠ°Π»ΡΠ½ΡΡ ΠΈ ΡΠΈΠΏΠΎΠ²ΡΡ Π°ΡΡ ΠΈΡΠ΅ΠΊΡΡΡΠ½ΡΡ ΠΏΡΠΎΠ΅ΠΊΡΠΎΠ² ΠΌΠ°Π½ΡΠ°ΡΠ΄Π½ΡΡ Π΄ΠΎΠΌΠΎΠ² Π² Π½Π°ΡΠ΅ΠΉ ΠΊΠΎΠΌΠΏΠ°Π½ΠΈΠΈ ΠΏΠΎ ΡΡΠ΅Π΄Π½Π΅ΡΡΠ½ΠΎΡΠ½ΡΠΌ ΡΠ΅Π½Π°ΠΌ, ΠΊΠ»ΠΈΠ΅Π½ΡΡ ΠΏΠΎΠ»ΡΡΠ°ΡΡ ΠΏΠΎΠ΄ΡΠΎΠ±Π½ΡΡ ΠΏΡΠΎΠ΅ΠΊΡΠ½ΡΡ Π΄ΠΎΠΊΡΠΌΠ΅Π½ΡΠ°ΡΠΈΡ, ΠΊΠΎΡΠΎΡΠ°Ρ Π²ΠΊΠ»ΡΡΠ°Π΅Ρ 5 ΡΠ°Π·Π΄Π΅Π»ΠΎΠ²: ΠΊΠΎΠ½ΡΡΡΡΠΊΡΠΈΠ²Π½ΡΠΉ, Π°ΡΡ ΠΈΡΠ΅ΠΊΡΡΡΠ½ΡΠΉ ΠΈ ΡΡΠΈ ΠΈΠ½ΠΆΠ΅Π½Π΅ΡΠ½ΡΡ (Π²ΠΎΠ΄ΠΎΡΠ½Π°Π±ΠΆΠ΅Π½ΠΈΠ΅, ΡΠ»Π΅ΠΊΡΡΠΎΡΠ½Π°Π±ΠΆΠ΅Π½ΠΈΠ΅, Π²Π΅Π½ΡΠΈΠ»ΡΡΠΈΡ ΠΈ ΠΎΡΠΎΠΏΠ»Π΅Π½ΠΈΠ΅). ΠΠ±ΡΠ°ΡΠ°Π΅ΠΌ Π²Π°ΡΠ΅ Π²Π½ΠΈΠΌΠ°Π½ΠΈΠ΅ Π½Π° ΡΠ°, ΡΡΠΎ ΡΡΠΎΠΈΠΌΠΎΡΡΡ ΠΈΠ½ΠΆΠ΅Π½Π΅ΡΠ½ΠΎΠ³ΠΎ ΡΠ°Π·Π΄Π΅Π»Π° ΡΠΎΡΡΠ°Π²Π»ΡΠ΅Ρ 20% ΠΎΡ ΡΠ΅Π½Ρ, ΡΠΊΠ°Π·Π°Π½Π½ΠΎΠΉ Π½Π° ΡΠ°ΠΉΡΠ΅.Β
Z500 β ΡΡΠΎ Π½Π°Π΄Π΅ΠΆΠ½ΠΎΠ΅ Π°ΡΡ ΠΈΡΠ΅ΠΊΡΡΡΠ½ΠΎΠ΅ Π±ΡΡΠΎ, ΠΊΠΎΡΠΎΡΠΎΠ΅ ΠΈΠ΄Π΅Ρ Π² Π½ΠΎΠ³Ρ Ρ Π°ΠΊΡΡΠ°Π»ΡΠ½ΡΠΌΠΈ ΠΌΠ΅ΠΆΠ΄ΡΠ½Π°ΡΠΎΠ΄Π½ΡΠΌΠΈ ΡΠ΅Π½Π΄Π΅Π½ΡΠΈΡΠΌΠΈ ΠΏΡΠΎΠ΅ΠΊΡΠΈΡΠΎΠ²Π°Π½ΠΈΡ ΠΈ ΡΠ΅Π°Π»ΠΈΠ·Π°ΡΠΈΠΈ ΡΠ°ΡΡΠ½ΡΡ Π΄ΠΎΠΌΠΎΠ². Π‘ΠΎΠ·Π΄Π°Π½Π½ΡΠ΅ Z500 ΠΏΡΠΎΠ΅ΠΊΡΡ ΠΏΠΎΠ»Π½ΠΎΡΡΡΡ ΡΠΎΠΎΡΠ²Π΅ΡΡΡΠ²ΡΡΡ Π΄Π΅ΠΉΡΡΠ²ΡΡΡΠΈΠΌ Π‘ΠΠΈΠΠ°ΠΌ ΠΈ Π‘Π ΠΈ Π²ΠΎΠΏΠ»ΠΎΡΠ°ΡΡ Π»ΡΡΡΠΈΠ΅ ΠΏΡΠ΅Π΄ΡΡΠ°Π²Π»Π΅Π½ΠΈΡ ΠΎ ΠΊΠΎΠΌΡΠΎΡΡΠ΅, Π±Π΅Π·ΠΎΠΏΠ°ΡΠ½ΠΎΡΡΠΈ, ΡΠΊΠΎΠ»ΠΎΠ³ΠΈΡΠ½ΠΎΡΡΠΈ ΠΈ Ρ ΠΎΡΠΎΡΠ΅ΠΌ Π²ΠΊΡΡΠ΅.
ΠΠΠΠ£ΠΠ―Π ΠΠ«Π ΠΠΠΠ ΠΠ‘Π«:
ΠΠ°ΠΊΠ°Ρ ΡΠ΅Π½Π° ΠΏΠΎΡΡΡΠΎΠΉΠΊΠΈ ΠΎΠ΄Π½ΠΎΡΡΠ°ΠΆΠ½ΠΎΠ³ΠΎ Π΄ΠΎΠΌΠ° ΠΏΠΎ ΠΏΡΠΎΠ΅ΠΊΡΡ Π°ΡΡ ΠΈΡΠ΅ΠΊΡΡΡΠ½ΠΎΠ³ΠΎ Π±ΡΡΠΎ Z500?
Π‘ΡΠ΅Π΄Π½ΡΡ ΡΡΠΎΠΈΠΌΠΎΡΡΡ ΠΏΠΎΡΡΡΠΎΠΉΠΊΠΈ ΠΊΠΎΡΠΎΠ±ΠΊΠΈ Π΄ΠΎΠΌΠ° Π½Π°ΡΠΈΡ ΠΊΠ»ΠΈΠ΅Π½ΡΠΎΠ² — 23000-25000 ΡΡΠ± Π·Π° 1 ΠΌ2 ΠΎΠ±ΡΠ΅ΠΉ ΠΏΠ»ΠΎΡΠ°Π΄ΠΈ, ΠΊΠΎΡΠΎΡΠ°Ρ ΡΠΊΠ°Π·Π°Π½Π° Π½Π° ΡΡΡΠ°Π½ΠΈΡΠ΅ ΠΏΡΠΎΠ΅ΠΊΡΠ°.

ΠΠ°ΠΊΠΎΠΉ ΠΈΠ· ΠΈΠΌΠ΅ΡΡΠΈΡ ΡΡ ΠΏΡΠΎΠ΅ΠΊΡΠΎΠ² ΠΎΠ΄Π½ΠΎΡΡΠ°ΠΆΠ½ΡΡ Π΄ΠΎΠΌΠΎΠ² ΠΏΠΎΠ»ΡΠ·ΡΠ΅ΡΡΡ Π½Π°ΠΈΠ±ΠΎΠ»ΡΡΠΈΠΌ ΡΠΏΡΠΎΡΠΎΠΌ?
ΠΡΠΎ ΠΏΡΠΎΠ΅ΠΊΡ Z273, ΠΊΠΎΠΌΠΏΠ°ΠΊΡΠ½ΡΠΉ ΠΎΠ΄Π½ΠΎΡΡΠ°ΠΆΠ½ΡΠΉ Π΄ΠΎΠΌ Ρ ΡΡΠ΅ΠΌΡ ΡΠΏΠ°Π»ΡΠ½ΡΠΌΠΈ ΠΈ ΠΌΠ½ΠΎΠ³ΠΎΡΠΊΠ°ΡΠ½ΠΎΠΉ ΠΊΡΡΡΠ΅ΠΉ.
Π§ΡΠΎ ΠΈΠΌΠ΅Π½Π½ΠΎ Π²Ρ ΠΎΠ΄ΠΈΡ Π² ΡΠ΅Π½Ρ, ΠΏΡΠ΅Π΄ΡΡΠ°Π²Π»Π΅Π½Π½ΡΡ Π½Π° ΡΡΡΠ°Π½ΠΈΡΠ΅ ΠΏΡΠΎΠ΅ΠΊΡΠ°?
Π‘ΡΠΎΠΈΠΌΠΎΡΡΡ ΠΏΡΠ΅Π΄ΡΡΠΌΠ°ΡΡΠΈΠ²Π°Π΅Ρ ΠΏΠΎΠΊΡΠΏΠΊΡ Π°ΡΡ ΠΈΡΠ΅ΠΊΡΡΡΠ½ΠΎ-ΡΡΡΠΎΠΈΡΠ΅Π»ΡΠ½ΠΎΠ³ΠΎ ΡΠ°Π·Π΄Π΅Π»Π°, ΡΠΎΠ³Π΄Π° ΠΊΠ°ΠΊ ΠΈΠ½ΠΆΠ΅Π½Π΅ΡΠ½ΡΠΉ Π²ΡΠ΅Π³Π΄Π° ΠΌΠΎΠΆΠ½ΠΎ ΠΏΡΠΈΠΎΠ±ΡΠ΅ΡΡΠΈ Π΄ΠΎΠΏΠΎΠ»Π½ΠΈΡΠ΅Π»ΡΠ½ΠΎ. ΠΠΎΠ»Π΅Π΅ ΠΏΠΎΠ΄ΡΠΎΠ±Π½ΡΡ ΠΈΠ½ΡΠΎΡΠΌΠ°ΡΠΈΡ ΠΎ ΡΠΎΡΡΠ°Π²Π΅ ΠΏΡΠΎΠ΅ΠΊΡΠ½ΠΎΠΉ Π΄ΠΎΠΊΡΠΌΠ΅Π½ΡΠ°ΡΠΈΠΈ ΠΌΠΎΠΆΠ½ΠΎ ΠΏΠΎΠ»ΡΡΠΈΡΡ Π·Π΄Π΅ΡΡ.
ΠΡΠ΅Π΄Π»Π°Π³Π°Π΅ΠΌ Π²Π°ΠΌ ΠΏΠΎΡΠΌΠΎΡΡΠ΅ΡΡ Π²ΠΈΠ΄Π΅ΠΎ-ΠΏΠΎΠ΄Π±ΠΎΡΠΊΡ ΠΏΠΎΠΏΡΠ»ΡΡΠ½ΡΡ
ΠΌΠ°Π½ΡΠ°ΡΠ΄Π½ΡΡ
ΠΏΡΠΎΠ΅ΠΊΡΠΎΠ²:
ΠΠ»Π°Π½ΠΈΡΠΎΠ²ΠΊΠ° ΠΎΠ΄Π½ΠΎΡΡΠ°ΠΆΠ½ΠΎΠ³ΠΎ Π΄ΠΎΠΌΠ° 10×10, 9×9, 6Ρ 9, 8Ρ 10, 10Ρ 12, 12Ρ 12, 8×12
Π§ΡΠΎ Π»ΡΡΡΠ΅ ΠΏΡΠ΅Π΄ΠΏΠΎΡΠ΅ΡΡΡ β ΠΎΠ΄Π½ΠΎΡΡΠ°ΠΆΠ½ΡΠΉ Π΄ΠΎΠΌ ΠΈΠ»ΠΈ Π² Π½Π΅ΡΠΊΠΎΠ»ΡΠΊΠΎ ΡΡΠ°ΠΆΠ΅ΠΉ? ΠΠ° ΠΊΠ°ΠΊΠΎΠΌ ΠΈΠΌΠ΅Π½Π½ΠΎ Π²Π°ΡΠΈΠ°Π½ΡΠ΅ ΡΠ»Π΅Π΄ΡΠ΅Ρ ΠΎΡΡΠ°Π½ΠΎΠ²ΠΈΡΡΡΡ, ΠΏΠΎΠ΄ΡΡΠΊΠΈΠ²Π°Ρ Π΄Π»Ρ ΡΠ΅Π±Ρ Π½Π°ΠΈΠ±ΠΎΠ»Π΅Π΅ ΡΠ΄ΠΎΠ±Π½ΡΠΉ ΠΏΡΠΎΠ΅ΠΊΡ Π±ΡΠ΄ΡΡΠ΅Π³ΠΎ ΠΆΠΈΠ»ΡΡ? Π Π±ΠΎΠ»ΡΡΠΈΠ½ΡΡΠ²Π΅ ΡΠ»ΡΡΠ°Π΅Π², Ρ ΡΠ°ΠΊΠΈΠΌΠΈ Π²ΠΎΠΏΡΠΎΡΠ°ΠΌΠΈ ΡΡΠ°Π»ΠΊΠΈΠ²Π°ΡΡΡΡ Π²Π»Π°Π΄Π΅Π»ΡΡΡ Π±ΠΎΠ»ΡΡΠΈΡ Π·Π΅ΠΌΠ΅Π»ΡΠ½ΡΡ ΡΡΠ°ΡΡΠΊΠΎΠ², ΠΊΠΎΡΠΎΡΡΠ΅ ΠΎΠ±Π»Π°Π΄Π°ΡΡ Π²ΠΎΠ·ΠΌΠΎΠΆΠ½ΠΎΡΡΡΡ Π²ΡΠ±ΠΎΡΠ°: ΠΊΠΎΠΌΠΏΠ°ΠΊΡΠ½Π°Ρ ΠΏΠ»Π°Π½ΠΈΡΠΎΠ²ΠΊΠ° ΠΎΠ΄Π½ΠΎΡΡΠ°ΠΆΠ½ΠΎΠ³ΠΎ Π΄ΠΎΠΌΠ° ΠΈΠ»ΠΈ Π²ΡΡΠΎΠΊΠΈΠΉ ΠΊΠΎΡΡΠ΅Π΄ΠΆ Π² Π½Π΅ΡΠΊΠΎΠ»ΡΠΊΠΎ ΡΡΠ°ΠΆΠ΅ΠΉ, ΠΎΡΡΠ°Π²Π»ΡΡΡΠΈΠΉ Π·Π½Π°ΡΠΈΡΠ΅Π»ΡΠ½ΠΎΠ΅ ΡΠ²ΠΎΠ±ΠΎΠ΄Π½ΠΎΠ΅ ΠΏΡΠΎΡΡΡΠ°Π½ΡΡΠ²ΠΎ Π½Π° ΡΠ΅ΡΡΠΈΡΠΎΡΠΈΠΈ ΡΡΠ°ΡΡΠΊΠ°?
ΠΡΡΠ΅ΡΡΠ²Π΅Π½Π½ΠΎ, ΠΏΠ΅ΡΠ²ΡΠΉ Π²Π°ΡΠΈΠ°Π½Ρ ΠΏΠ»Π°Π½ΠΈΡΠΎΠ²ΠΊΠΈ Π·Π°ΠΉΠΌΡΡ Π±ΠΎΠ»ΡΡΡΡ ΠΏΠ»ΠΎΡΠ°Π΄Ρ, Π·Π°ΡΠΎ ΠΏΠΎΠ·Π²ΠΎΠ»ΠΈΡ ΡΠ°ΡΠΏΠΎΠ»ΠΎΠΆΠΈΡΡ Π²ΡΠ΅ ΠΏΠΎΠΌΠ΅ΡΠ΅Π½ΠΈΡ Ρ ΠΌΠ°ΠΊΡΠΈΠΌΠ°Π»ΡΠ½ΡΠΌ ΡΠ΄ΠΎΠ±ΡΡΠ²ΠΎΠΌ.
ΠΠ΅ΠΎΠ±Ρ ΠΎΠ΄ΠΈΠΌΠΎ ΠΎΡΠΌΠ΅ΡΠΈΡΡ ΡΠΎΡ ΡΠ°ΠΊΡ, ΡΡΠΎ Π½Π° ΡΠ΅Π³ΠΎΠ΄Π½ΡΡΠ½ΠΈΠΉ Π΄Π΅Π½Ρ ΡΠ΄ΠΎΠ±Π½Π°Ρ ΠΏΠ»Π°Π½ΠΈΡΠΎΠ²ΠΊΠ° ΠΎΠ΄Π½ΠΎΡΡΠ°ΠΆΠ½ΠΎΠ³ΠΎ Π΄ΠΎΠΌΠ°Β ΡΡΠ°Π½ΠΎΠ²ΠΈΡΡΡ Π²ΡΠ΅ Π±ΠΎΠ»Π΅Π΅ ΠΏΠΎΠΏΡΠ»ΡΡΠ½ΠΎΠΉ, ΠΈ ΡΡΠΎ ΠΎΠ±ΡΡΡΠ½ΡΠ΅ΡΡΡ Π½ΠΎΠ²ΡΠΌΠΈ Π²Π΅ΡΠ½ΠΈΡΠΌΠΈ Π² Π°ΡΡ ΠΈΡΠ΅ΠΊΡΡΡΠ΅ ΠΈ Π΄ΠΈΠ·Π°ΠΉΠ½Π΅. Π‘Π΅ΠΉΡΠ°Ρ ΠΎΠ±ΡΠ°Ρ ΠΊΠΎΠ½ΡΠ΅ΠΏΡΠΈΡ Π·Π°Π³ΠΎΡΠΎΠ΄Π½ΠΎΠΉ ΠΆΠΈΠ·Π½ΠΈ ΠΏΠΎΠ΄ΡΠ°Π·ΡΠΌΠ΅Π²Π°Π΅Ρ ΡΠΎΡΠ΅ΡΠ°Π½ΠΈΠ΅ ΠΊΠΎΡΡΠ΅Π΄ΠΆΠ° ΠΈ ΠΏΡΠΈΠ»Π΅Π³Π°ΡΡΠ΅Π³ΠΎ ΠΊ Π½Π΅ΠΌΡ ΡΡΠ°ΡΡΠΊΠ° Π² ΠΊΠ°ΡΠ΅ΡΡΠ²Π΅ ΠΎΠ΄Π½ΠΎΠ³ΠΎ Π΅Π΄ΠΈΠ½ΠΎΠ³ΠΎ ΡΠ΅Π»ΠΎΠ³ΠΎ.
Π‘ΠΎΠ΄Π΅ΡΠΆΠ°Π½ΠΈΠ΅ ΠΌΠ°ΡΠ΅ΡΠΈΠ°Π»Π°
ΠΠ»Π°Π½ΠΈΡΠΎΠ²ΠΊΠ° Π΄ΠΎΠΌΠ° 6Ρ 9
ΠΠ»Π°Π½ΠΈΡΠΎΠ²ΠΊΠ° ΠΎΠ΄Π½ΠΎΡΡΠ°ΠΆΠ½ΠΎΠ³ΠΎ Π΄ΠΎΠΌΠ° 6Γ9 ΠΏΡΠ΅Π΄ΠΎΡΡΠ°Π²Π»ΡΠ΅Ρ ΠΎΠ³ΡΠΎΠΌΠ½ΡΡ ΡΠ²ΠΎΠ±ΠΎΠ΄Ρ Π² ΠΏΡΠΎΠ΅ΠΊΡΠΈΡΠΎΠ²Π°Π½ΠΈΠΈ ΠΈ Π΄ΠΈΠ·Π°ΠΉΠ½Π΅ΡΡΠΊΠΈΡ ΡΠ΅ΡΠ΅Π½ΠΈΡΡ .
ΠΡΠΎΡΡΠΎΠΉ ΠΏΠ»Π°Π½ ΠΎΠ΄Π½ΠΎΡΡΠ°ΠΆΠ½ΠΎΠ³ΠΎ Π΄ΠΎΠΌΠ° 6Γ9Π Π½Π΅ΠΊΠΎΡΠΎΡΡΡ
ΡΠ»ΡΡΠ°ΡΡ
ΠΏΠ»Π°Π½ ΠΏΡΠ΅Π΄ΡΡΠΌΠ°ΡΡΠΈΠ²Π°Π΅Ρ Π½Π°Π»ΠΈΡΠΈΠ΅ ΠΌΠ°Π½ΡΠ°ΡΠ΄Π½ΠΎΠ³ΠΎ Π²ΡΠΎΡΠΎΠ³ΠΎ ΡΡΠ°ΠΆΠ°, Π±Π»Π°Π³ΠΎΠ΄Π°ΡΡ ΡΠ΅ΠΌΡ ΠΏΠΎΠ»Π΅Π·Π½ΡΡ ΠΏΠ»ΠΎΡΠ°Π΄Ρ Π·Π΄Π°Π½ΠΈΡ ΠΌΠΎΠΆΠ½ΠΎ Π½Π΅ΡΠΊΠΎΠ»ΡΠΊΠΎ ΡΠ²Π΅Π»ΠΈΡΠΈΡΡ. ΠΠ°ΠΊ ΠΏΡΠ°Π²ΠΈΠ»ΠΎ, Π² ΠΏΠΎΠ΄ΠΎΠ±Π½ΡΠ΅ ΠΏΡΠΎΠ΅ΠΊΡΡ Π²ΠΊΠ»ΡΡΠ΅Π½Ρ ΡΠ΅ΡΡΠ°ΡΡ ΠΈ Π²Π΅ΡΠ°Π½Π΄Ρ.
ΠΠ»Π°Π½ΠΈΡΠΎΠ²ΠΊΠ° Π΄ΠΎΠΌΠ° 8Ρ 10
ΠΠ»Π°Π½ΠΈΡΠΎΠ²ΠΊΠ° ΠΎΠ΄Π½ΠΎΡΡΠ°ΠΆΠ½ΠΎΠ³ΠΎ Π΄ΠΎΠΌΠ° 8Γ10 Ρ ΠΏΡΡΠΌΠΎΡΠ³ΠΎΠ»ΡΠ½ΠΎΠΉ ΡΠΎΡΠΌΠΎΠΉ ΡΠΌΠΎΡΡΠΈΡΡΡ Π΄ΠΎΠ²ΠΎΠ»ΡΠ½ΠΎ-ΡΠ°ΠΊΠΈ Π½Π΅ΠΏΠ»ΠΎΡ
ΠΎ, Π½ΠΎ ΠΏΡΠΈ ΡΡΠΎΠΌ ΡΠ²Π»ΡΠ΅ΡΡΡ ΠΌΠ΅Π½Π΅Π΅ Π²ΡΠ³ΠΎΠ΄Π½ΠΎΠΉ, ΡΠ΅ΠΌ Π²Π°ΡΠΈΠ°Π½Ρ ΠΊΠΎΡΡΠ΅Π΄ΠΆΠ° ΠΊΠ²Π°Π΄ΡΠ°ΡΠ½ΠΎΠΉ ΡΠΎΡΠΌΠΎΠΉ.
ΠΠ΅ΡΠ΅Π΄ΠΊΠΎ Π·Π΄Π°Π½ΠΈΡ 8Γ10 ΠΎΡΠ½Π°ΡΠ΅Π½Ρ ΠΌΠ°Π½ΡΠ°ΡΠ΄ΠΎΠΉ ΠΈ ΡΠΎΠΊΠΎΠ»ΡΠ½ΡΠΌ ΡΡΠ°ΠΆΠΎΠΌ (ΠΏΠΎΠΌΠ½ΠΈΡΠ΅ ΠΎ ΡΠΎΠΌ, ΡΡΠΎ ΠΏΡΠΎΠ΅ΠΊΡΠΈΡΠΎΠ²Π°Π½ΠΈΠ΅ ΡΠΎΠΊΠΎΠ»Ρ Π²ΡΠ΅Π³Π΄Π° Π΄ΠΎΠ»ΠΆΠ½ΠΎ Π±ΡΡΡ ΡΡΡΠΎΠ³ΠΎ ΠΈΠ½Π΄ΠΈΠ²ΠΈΠ΄ΡΠ°Π»ΡΠ½ΡΠΌ). ΠΠΎΠ΄ΠΎΠ±Π½ΡΠΉ ΠΏΠ»Π°Π½ Π΄ΠΎΠΌΠ° ΠΎΡΠ»ΠΈΡΠ½ΠΎ ΠΏΠΎΠ΄ΠΎΠΉΠ΄ΡΡ ΠΊΠ°ΠΊ Π΄Π»Ρ ΡΠ°ΡΡΠ½ΡΡ ΠΊΠΎΡΡΠ΅Π΄ΠΆΠ΅ΠΉ Π² ΡΠ΅ΡΡΠ΅ Π³ΠΎΡΠΎΠ΄Π°, ΡΠ°ΠΊ ΠΈ Π΄Π»Ρ Π·Π°Π³ΠΎΡΠΎΠ΄Π½ΠΎΠ³ΠΎ ΠΆΠΈΠ»ΡΡ. ΠΠ°ΡΠΈΠ°Π½Ρ Ρ Π½Π°Π»ΠΈΡΠΈΠ΅ΠΌ ΠΌΠ°Π½ΡΠ°ΡΠ΄Ρ ΡΡΠ°Π½Π΅Ρ ΠΈΠ΄Π΅Π°Π»ΡΠ½ΡΠΌ Π²Π°ΡΠΈΠ°Π½ΡΠΎΠΌ Π΄Π»Ρ Π±ΠΎΠ»ΡΡΠΈΡ ΡΠ΅ΠΌΠ΅ΠΉ.
ΠΠ»Π°Π½ ΠΎΠ΄Π½ΠΎΡΡΠ°ΠΆΠ½ΠΎΠ³ΠΎ Π΄ΠΎΠΌΠ° 8Γ10ΠΠ΅ΡΠ½ΡΡΡΡΡ ΠΊ ΠΎΠ³Π»Π°Π²Π»Π΅Π½ΠΈΡΠΠ»Π°Π½ΠΈΡΠΎΠ²ΠΊΠ° Π΄ΠΎΠΌΠ° 9Ρ 9
ΠΠ»Π°Π½ΠΈΡΠΎΠ²ΠΊΠ° ΠΎΠ΄Π½ΠΎΡΡΠ°ΠΆΠ½ΠΎΠ³ΠΎ Π΄ΠΎΠΌΠ° 9Ρ 9 ΠΏΡΠ΅Π΄Π½Π°Π·Π½Π°ΡΠ΅Π½Π° ΡΠΆΠ΅ Π΄Π»Ρ Π²ΠΏΠΎΠ»Π½Π΅ ΠΎΠ±ΡΠΈΡΠ½ΠΎΠ³ΠΎ ΡΡΡΠΎΠ΅Π½ΠΈΡ, Π² ΠΊΠΎΡΠΎΡΠΎΠΌ ΠΌΠΎΠΆΠ΅Ρ ΡΠ²ΠΎΠ±ΠΎΠ΄Π½ΠΎ ΡΠ°ΡΠΏΠΎΠ»ΠΎΠΆΠΈΡΡΡΡ Π½Π΅ ΠΎΠ΄ΠΈΠ½ ΡΠ΅Π»ΠΎΠ²Π΅ΠΊ, Π° ΡΠ΅Π»Π°Ρ ΡΠ΅ΠΌΡΡ. ΠΠ°ΠΊ ΠΏΡΠ°Π²ΠΈΠ»ΠΎ, ΡΠ°ΠΊΠΈΠ΅ ΡΠΎΠΎΡΡΠΆΠ΅Π½ΠΈΡ ΠΎΠ±Π»Π°Π΄Π°ΡΡ Π½Π΅ΡΠΊΠΎΠ»ΡΠΊΠΈΠΌΠΈ ΠΆΠΈΠ»ΡΠΌΠΈ ΠΏΠΎΠΌΠ΅ΡΠ΅Π½ΠΈΡΠΌΠΈ ΠΈ Π½Π΅ΡΠΊΠΎΠ»ΡΠΊΠΈΠΌΠΈ ΠΏΠΎΠ΄ΡΠΎΠ±Π½ΡΠΌΠΈ. ΠΠ»Π°Π³ΠΎΠ΄Π°ΡΡ ΡΠΎΠΌΡ, ΡΡΠΎ ΡΡΡΠ΅ΡΡΠ²ΡΡΡΠ΅Π΅ ΠΏΡΠΎΡΡΡΠ°Π½ΡΡΠ²ΠΎ Π²Π΅ΡΡΠΌΠ° Π·Π½Π°ΡΠΈΡΠ΅Π»ΡΠ½ΠΎ, ΠΏΠ΅ΡΠ΅Π΄ ΠΏΡΠΎΠ΅ΠΊΡΠΈΡΠΎΠ²ΡΠΈΠΊΠΎΠΌ Π²ΠΎΠ·Π½ΠΈΠΊΠ°Π΅Ρ ΠΌΠ½ΠΎΠ³ΠΎ Π²ΠΎΠ·ΠΌΠΎΠΆΠ½ΠΎΡΡΠ΅ΠΉ Π΄Π»Ρ ΡΠ΅Π°Π»ΠΈΠ·Π°ΡΠΈΠΈ ΡΠ΅Ρ ΠΈΠ»ΠΈ ΠΈΠ½ΡΡ Π·Π°ΠΌΡΡΠ»ΠΎΠ².
ΠΠ»Π°Π½ ΠΎΠ΄Π½ΠΎΡΡΠ°ΠΆΠ½ΠΎΠ³ΠΎ Π΄ΠΎΠΌΠ° 9Γ9ΠΠ΅ΡΠ½ΡΡΡΡΡ ΠΊ ΠΎΠ³Π»Π°Π²Π»Π΅Π½ΠΈΡΠΠ»Π°Π½ΠΈΡΠΎΠ²ΠΊΠ° Π΄ΠΎΠΌΠ° 10Ρ 10
ΠΠ»Π°Π½ΠΈΡΠΎΠ²ΠΊΠ° ΠΎΠ΄Π½ΠΎΡΡΠ°ΠΆΠ½ΠΎΠ³ΠΎ Π΄ΠΎΠΌΠ° 10Ρ
10, ΠΊΠΎΡΠΎΡΠ°Ρ ΠΈΠ΄Π΅Π°Π»ΡΠ½ΠΎ ΠΏΠΎΠ΄Ρ
ΠΎΠ΄ΠΈΡ Π΄Π»Ρ ΠΏΡΠΎΠΆΠΈΠ²Π°Π½ΠΈΡ Π½Π΅ΡΠΊΠΎΠ»ΡΠΊΠΈΡ
ΡΠ΅Π»ΠΎΠ²Π΅ΠΊ, ΠΏΠΎΠ΄ΡΠ°Π·ΡΠΌΠ΅Π²Π°Π΅Ρ ΠΏΡΠΎΠ²Π΅Π΄Π΅Π½ΠΈΠ΅ Π΄ΠΎΠ»Π³ΠΈΡ
ΡΡΡΠΎΠΈΡΠ΅Π»ΡΠ½ΡΡ
ΡΠ°Π±ΠΎΡ.
Π’Π°ΠΊΠΈΠ΅ Π΄ΠΎΠΌΠ° ΠΈΠΌΠ΅ΡΡ Π½Π΅ΡΠΊΠΎΠ»ΡΠΊΠΎ ΠΊΠΎΠΌΠ½Π°ΡΠ°ΠΌ, ΠΊΠΎΡΠΎΡΡΠ΅ ΡΠΏΠ»Π°Π½ΠΈΡΠΎΠ²Π°Π½Ρ Ρ ΠΌΠ°ΠΊΡΠΈΠΌΠ°Π»ΡΠ½ΡΠΌ ΡΠ΄ΠΎΠ±ΡΡΠ²ΠΎΠΌ Π΄Π»Ρ ΠΏΡΠΎΠΆΠΈΠ²Π°ΡΡΠΈΡ
Π² Π½ΠΈΡ
Π»ΡΠ΄Π΅ΠΉ. ΠΡΠΎΠΌΠ΅ ΡΡΠΎΠ³ΠΎ, Π΄Π°Π½Π½ΡΠ΅ ΡΠΎΠΎΡΡΠΆΠ΅Π½ΠΈΡ ΡΠ°Π΄ΡΡΡ ΠΏΡΠΎΡΡΡΠ°Π½ΡΡΠ²ΠΎΠΌ, ΡΠ²Π΅Π»ΠΈΡΠ΅Π½Π½ΡΠΌ Π·Π° ΡΡΡΡ ΠΏΡΠΎΡΡΠΆΠ΅Π½Π½ΠΎΡΡΠΈ ΡΡΠ΅Π½.
ΠΠ»Π°Π½ΠΈΡΠΎΠ²ΠΊΠ° Π΄ΠΎΠΌΠ° 10Ρ 12
ΠΠ»Π°Π½ΠΈΡΠΎΠ²ΠΊΠ° ΠΎΠ΄Π½ΠΎΡΡΠ°ΠΆΠ½ΠΎΠ³ΠΎ Π΄ΠΎΠΌΠ° 10Ρ 12 ΠΏΠΎΠ·Π²ΠΎΠ»ΡΠ΅Ρ ΠΏΠΎΠ»ΡΡΠΈΡΡ Π·Π΄Π°Π½ΠΈΠ΅ Ρ Π±ΠΎΠ»ΡΡΠΎΠΉ ΠΏΠ»ΠΎΡΠ°Π΄ΡΡ ΠΈ Π³Π°Π±Π°ΡΠΈΡΠ°ΠΌΠΈ, Π±Π»ΠΈΠ·ΠΊΠΈΠΌΠΈ ΠΊ ΠΊΠ²Π°Π΄ΡΠ°ΡΠ½ΡΠΌ. ΠΡΠΏΠΎΠ»ΡΠ·ΠΎΠ²Π°Π½ΠΈΠ΅ ΠΈΠΌΠ΅ΡΡΠ΅ΠΉΡΡ ΠΏΠ»ΠΎΡΠ°Π΄ΠΈ ΠΌΠΎΠΆΠ½ΠΎ ΡΠ΄Π΅Π»Π°ΡΡ ΠΌΠ°ΠΊΡΠΈΠΌΠ°Π»ΡΠ½ΠΎ ΠΏΠΎΠ»Π΅Π·Π½ΡΠΌ ΠΈ ΡΠ°ΡΠΈΠΎΠ½Π°Π»ΡΠ½ΡΠΌ, Π΅ΡΠ»ΠΈ ΠΎΠ±ΡΡΡΡΠΎΠΈΡΡ ΡΠΎΠΊΠΎΠ»ΡΠ½ΡΠΉ ΡΡΠ°ΠΆ ΠΈ ΠΌΠ°Π½ΡΠ°ΡΠ΄Ρ.
ΠΡΠΎΠ΅ΠΊΡΡ Ρ ΠΏΠΎΠ΄ΠΎΠ±Π½ΡΠΌΠΈ ΡΠ°Π·ΠΌΠ΅ΡΠ°ΠΌΠΈ ΠΈΠ΄Π΅Π°Π»ΡΠ½ΠΎ ΠΏΠΎΠ΄ΠΎΠΉΠ΄ΡΡ Π΄Π»Ρ ΡΡΡΠΎΠΈΡΠ΅Π»ΡΡΡΠ²Π° ΠΊΠ°ΠΊ Π² ΡΠ΅ΡΡΠ΅ Π³ΠΎΡΠΎΠ΄Π°, ΡΠ°ΠΊ ΠΈ Π·Π° Π΅Π³ΠΎ ΠΏΡΠ΅Π΄Π΅Π»Π°ΠΌΠΈ. ΠΠ»Ρ Π±ΠΎΠ»ΡΡΠ΅Π³ΠΎ ΡΠ΄ΠΎΠ±ΡΡΠ²Π° ΠΏΡΠΎΠΆΠΈΠ²Π°ΡΡΠΈΡ Π»ΡΠ΄Π΅ΠΉ, ΠΏΠ»Π°Π½ΠΈΡΠΎΠ²ΠΊΠΈ ΡΠ»Π΅Π΄ΡΠ΅Ρ Ρ ΠΎΡΠΎΠ±ΠΎΠΉ ΡΡΠ°ΡΠ΅Π»ΡΠ½ΠΎΡΡΡΡ. ΠΠ°ΠΊ ΠΏΡΠ°Π²ΠΈΠ»ΠΎ, Π½Π° ΠΏΠ΅ΡΠ²ΠΎΠΌ ΡΡΠ°ΠΆΠ΅ ΡΠ°ΡΠΏΠΎΠ»Π°Π³Π°ΡΡ ΠΊΡΡ Π½Ρ, Π²Π°Π½Π½ΡΡ ΠΊΠΎΠΌΠ½Π°ΡΡ ΠΈ ΡΡΠ°Π»Π΅Ρ, ΠΏΡΠΈΡ ΠΎΠΆΡΡ, Π³ΠΎΡΡΠΈΠ½ΡΡ ΠΈ ΠΊΠΎΠΌΠ½Π°ΡΡ Π΄Π»Ρ ΠΎΡΠ΄ΡΡ Π°.
ΠΠ»Π°Π½ Π΄Π΅ΡΠ΅Π²ΡΠ½Π½ΠΎΠ³ΠΎ Π΄ΠΎΠΌΠ° 10Γ12ΠΡΠΎΡΠΎΠΉ ΡΡΠ°ΠΆ (Π΅ΡΠ»ΠΈ Π²Ρ Π²ΡΡ-ΡΠ°ΠΊΠΈ ΡΠ΅ΡΠΈΠ»ΠΈ ΠΏΡΠ΅Π΄ΠΏΠΎΡΠ΅ΡΡΡ ΠΌΠ½ΠΎΠ³ΠΎΡΡΠ°ΠΆΠ½ΡΠΉ Π²Π°ΡΠΈΠ°Π½Ρ Π΄ΠΎΠΌΠ°) ΠΈΡΠΏΠΎΠ»ΡΠ·ΡΠ΅ΡΡΡ Π΄Π»Ρ ΠΆΠΈΠ»ΡΡ
ΠΏΠΎΠΌΠ΅ΡΠ΅Π½ΠΈΠΉ, ΡΡΠΎ ΠΎΡΠ΅Π½Ρ ΡΠ΄ΠΎΠ±Π½ΠΎ ΠΏΡΠΈ ΠΏΠΎΡΡΠΎΡΠ½Π½ΠΎΠΌ ΠΏΡΠΎΠΆΠΈΠ²Π°Π½ΠΈΠΈ.
ΠΠ»Π°Π½ΠΈΡΠΎΠ²ΠΊΠ° Π΄ΠΎΠΌΠ° 12Ρ 12
ΠΠ»Π°Π½ΠΈΡΠΎΠ²ΠΊΠ° ΠΎΠ΄Π½ΠΎΡΡΠ°ΠΆΠ½ΠΎΠ³ΠΎ Π΄ΠΎΠΌΠ° 12Ρ 12 ΠΏΠΎΠ΄ΡΠ°Π·ΡΠΌΠ΅Π²Π°Π΅Ρ ΡΠΎΠ±ΠΎΠΉ Π½Π°Π»ΠΈΡΠΈΠ΅ Π³Π°ΡΠ°ΠΆΠ°, ΠΏΠΎΠ΄ΡΠΎΠ±Π½ΡΡ ΠΊΠΎΠΌΠ½Π°Ρ, ΠΊΠΎΠΌΠ½Π°Ρ ΠΎΡΠ΄ΡΡ Π° ΠΈ Π΄ΡΡΠ³ΠΈΡ ΠΏΠΎΠΌΠ΅ΡΠ΅Π½ΠΈΠΉ, ΡΠ°Π·ΠΌΠ΅ΡΠ΅Π½ΠΈΠ΅ ΠΊΠΎΡΠΎΡΡΡ Π²ΠΎΠ·ΠΌΠΎΠΆΠ½ΠΎ ΠΏΡΠΈ Π±ΠΎΠ»ΡΡΠΈΡ ΠΏΡΠΎΡΡΠΎΡΠ½ΡΡ ΠΏΠ»ΠΎΡΠ°Π΄ΡΡ . Π‘ΡΡΠΎΠΈΡΠ΅Π»ΡΡΡΠ²ΠΎ ΡΠ°ΠΊΠΈΡ ΠΊΠΎΡΡΠ΅Π΄ΠΆΠ΅ΠΉ ΡΠ²Π»ΡΠ΅ΡΡΡ Π΄ΠΎΡΡΠ°ΡΠΎΡΠ½ΠΎ Π·Π°ΡΡΠ°ΡΠ½ΡΠΌ Π΄Π΅Π»ΠΎΠΌ, Π½ΠΎ ΠΏΡΠΈ ΡΡΠΎΠΌ Π½Π°ΠΈΠ±ΠΎΠ»Π΅Π΅ Π²ΡΠ³ΠΎΠ΄Π½ΡΠΌ Ρ ΡΠΎΡΠΊΠΈ Π·ΡΠ΅Π½ΠΈΡ ΡΠΊΡΠΏΠ»ΡΠ°ΡΠ°ΡΠΈΠΈ ΠΏΠΎ ΡΡΠ°Π²Π½Π΅Π½ΠΈΡ Ρ ΠΎΡΡΠ°Π»ΡΠ½ΡΠΌΠΈ Π²Π°ΡΠΈΠ°Π½ΡΠ°ΠΌΠΈ.
ΠΠ»Π°Π½ ΠΎΠ΄Π½ΠΎΡΡΠ°ΠΆΠ½ΠΎΠ³ΠΎ Π΄ΠΎΠΌΠ° 12Γ12ΠΠ΅ΡΠ½ΡΡΡΡΡ ΠΊ ΠΎΠ³Π»Π°Π²Π»Π΅Π½ΠΈΡΠΠ±ΡΠΈΠ΅ Ρ Π°ΡΠ°ΠΊΡΠ΅ΡΠΈΡΡΠΈΠΊΠΈ
ΠΠ»Π°Π½ΠΈΡΠΎΠ²ΠΊΠ° Π΄Π»Ρ ΠΎΠ΄Π½ΠΎΡΡΠ°ΠΆΠ½ΠΎΠ³ΠΎ ΡΡΡΠΎΠ΅Π½ΠΈΡ Ρ ΠΎΡΠΎΡΠ° ΡΠ΅ΠΌ, ΡΡΠΎ ΠΏΠΎΠ·Π²ΠΎΠ»ΡΠ΅Ρ ΠΎΠ±ΡΡΡΡΠΎΠΈΡΡ Π±ΠΎΠ»ΡΡΠΈΠ΅ ΠΊΠΎΠΌΠ½Π°ΡΡ: ΠΊΡΡ Π½ΠΈ, ΡΠΏΠ°Π»ΡΠ½ΠΈ, ΠΈΠ»ΠΈ ΡΠΎΠ²ΠΌΠ΅ΡΡΠ½Π½ΡΠ΅ ΠΊΡΡ Π½ΠΈ-Π³ΠΎΡΡΠΈΠ½ΡΠ΅, ΡΡΠΎ ΠΎΡΠ΅Π½Ρ ΡΠ΄ΠΎΠ±Π½ΠΎ Π΄Π»Ρ Π½Π΅Π±ΠΎΠ»ΡΡΠΈΡ ΡΠ΅ΠΌΠ΅ΠΉ.
ΠΠ΅ΡΠΎΠΌΠ½Π΅Π½Π½ΡΠΌΠΈ Π΄ΠΎΡΡΠΎΠΈΠ½ΡΡΠ²Π°ΠΌΠΈ ΠΏΠΎΡΡΡΠΎΠΉΠΊΠΈ ΡΠ°ΠΊΠΎΠ³ΠΎ ΠΊΠΎΡΡΠ΅Π΄ΠΆΠ° ΡΠ²Π»ΡΡΡΡΡ Π½ΠΈΠ·ΠΊΠ°Ρ ΡΠ΅Π±Π΅ΡΡΠΎΠΈΠΌΠΎΡΡΡ, Π½Π΅Π±ΠΎΠ»ΡΡΠΈΠ΅ Π·Π°ΡΡΠ°ΡΡ Π½Π° ΠΎΡΠΎΠΏΠ»Π΅Π½ΠΈΠ΅, Π²ΡΡΠΎΠΊΠ°Ρ ΡΠΊΠΎΡΠΎΡΡΡ ΡΡΡΠΎΠΈΡΠ΅Π»ΡΡΡΠ²Π°, Π° ΡΠ°ΠΊΠΆΠ΅ ΠΌΠ΅Π½ΡΡΠΈΠΉ Π½Π°Π»ΠΎΠ³ Π½Π° ΡΠΎΠ±ΡΡΠ²Π΅Π½Π½ΠΎΡΡΡ.
ΠΠ»Π°Π½ ΠΎΠ΄Π½ΠΎΡΡΠ°ΠΆΠ½ΠΎΠ³ΠΎ ΠΊΠΎΡΡΠ΅Π΄ΠΆΠ° ΠΎΡΠ»ΠΈΡΠ°Π΅ΡΡΡ Π²ΠΎΠ·ΠΌΠΎΠΆΠ½ΠΎΡΡΡΡ ΠΊΠΎΠΌΠΏΠΎΠ½ΠΎΠ²ΠΊΠΈ ΠΎΡΠ½ΠΎΠ²Π½ΡΡ
ΠΈ Π²ΡΠΏΠΎΠΌΠΎΠ³Π°ΡΠ΅Π»ΡΠ½ΡΡ
ΠΏΠΎΠΌΠ΅ΡΠ΅Π½ΠΈΠΉ.
ΠΡΠ»ΠΈ Ρ Π²Π»Π°Π΄Π΅Π»ΡΡΠ° ΠΏΠΎΡΠ²ΠΈΠ»ΠΎΡΡ ΠΆΠ΅Π»Π°Π½ΠΈΠ΅ ΠΈΠ·ΠΌΠ΅Π½ΠΈΡΡ ΡΡΡΠ΅ΡΡΠ²ΡΡΡΠΈΠΉ ΠΏΡΠΎΠ΅ΠΊΡ Π² ΡΠΎΠΉ ΠΈΠ»ΠΈ ΠΈΠ½ΠΎΠΉ ΡΡΠ΅ΠΏΠ΅Π½ΠΈ, Π½Π΅ΠΎΠ±Ρ
ΠΎΠ΄ΠΈΠΌΠΎ ΠΎΠ±ΡΠ°ΡΠΈΡΡΡΡ Π·Π° ΠΏΠΎΠΌΠΎΡΡΡ ΠΊ ΠΏΡΠΎΡΠ΅ΡΡΠΈΠΎΠ½Π°Π»Ρ, ΡΠ°ΠΊ ΠΊΠ°ΠΊ Π½Π°ΡΡΡΠ΅Π½ΠΈΠ΅ ΡΠ°Π½ΠΈΡΠ°ΡΠ½ΠΎ-Π³ΠΈΠ³ΠΈΠ΅Π½ΠΈΡΠ΅ΡΠΊΠΈΡ
Π½ΠΎΡΠΌ ΠΌΠΎΠΆΠ΅Ρ Π² Π΄Π°Π»ΡΠ½Π΅ΠΉΡΠ΅ΠΌ Π½Π΅ ΡΠ»ΠΈΡΠΊΠΎΠΌ Ρ
ΠΎΡΠΎΡΠΎ ΡΠΊΠ°Π·Π°ΡΡΡΡ Π½Π° ΠΏΡΠΎΠΆΠΈΠ²Π°Π½ΠΈΠΈ Π»ΡΠ΄Π΅ΠΉ.
Β
Π’ΠΠ-100 ΡΠΎΡΠΎ Π»ΡΡΡΠΈΡ ΠΈΠ΄Π΅ΠΉ Π΄Π»Ρ ΡΠ°ΡΡΠ½ΡΡ Π΄ΠΎΠΌΠΎΠ² Ρ ΡΠ°Π·Π»ΠΈΡΠ½ΠΎΠΉ ΠΏΠ»Π°Π½ΠΈΡΠΎΠ²ΠΊΠΎΠΉ
Π Π΅ΡΠ΅Π½ΠΈΠ΅ ΠΏΠΎ ΡΠ°ΡΠΏΡΠ΅Π΄Π΅Π»Π΅Π½ΠΈΡ ΠΏΡΠΎΡΡΡΠ°Π½ΡΡΠ²Π° ΡΠ°ΡΡΠ½ΠΎΠ³ΠΎ ΠΆΠΈΠ»ΠΈΡΠ° β Π΄Π΅Π»ΠΎ ΠΎΡΠ²Π΅ΡΡΡΠ²Π΅Π½Π½ΠΎΠ΅. ΠΠ° Π΄Π°Π½Π½ΠΎΠΌ ΡΡΠ°ΠΏΠ΅ Π½Π΅ ΠΏΡΠΎΡΡΠΎ Π·Π°ΠΊΠ»Π°Π΄ΡΠ²Π°ΡΡΡΡ ΠΏΠΎΠΆΠ΅Π»Π°Π½ΠΈΡ ΡΠΎΠ±ΡΡΠ²Π΅Π½Π½ΠΈΠΊΠΎΠ² ΠΏΠΎ ΡΠ°ΡΠΏΠΎΠ»ΠΎΠΆΠ΅Π½ΠΈΡ ΠΆΠΈΠ»ΡΡ Π·ΠΎΠ½, Π½ΠΎ ΠΏΠ»Π°Π½ΠΈΡΡΠ΅ΡΡΡ Π³ΡΠ°ΠΌΠΎΡΠ½ΠΎΠ΅ ΡΠ°Π·ΠΌΠ΅ΡΠ΅Π½ΠΈΠ΅ ΠΊΠΎΠΌΠΌΡΠ½ΠΈΠΊΠ°ΡΠΈΠΉ. ΠΡΠ»ΠΈΡΠ½Π°Ρ ΠΏΠ»Π°Π½ΠΈΡΠΎΠ²ΠΊΠ° Π΄ΠΎΠΌΠ° Π±ΡΠ΄Π΅Ρ ΡΠΎΡΠ΅ΡΠ°ΡΡ Π² ΡΠ΅Π±Π΅ Π³ΡΠ°ΠΌΠΎΡΠ½ΠΎΠ΅ ΡΠ°ΡΠΏΡΠ΅Π΄Π΅Π»Π΅Π½ΠΈΠ΅ ΠΏΡΠΎΡΡΡΠ°Π½ΡΡΠ²Π°, ΡΠ΄ΠΎΠ±ΡΡΠ²ΠΎ ΠΈ ΠΏΡΠ°ΠΊΡΠΈΡΠ½ΠΎΡΡΡ.
ΠΠ°Π½ΡΡΡΡΡ ΠΏΡΠΎΡΠ΅ΡΡΠΎΠΌ ΠΌΠΎΠΆΠ½ΠΎ ΡΠ°ΠΌΠΎΡΡΠΎΡΡΠ΅Π»ΡΠ½ΠΎ, ΠΎΡΠΎΠ±Π΅Π½Π½ΠΎ Π΅ΡΠ»ΠΈ Π±ΡΠ΄ΠΆΠ΅Ρ ΠΏΠΎΠ·Π²ΠΎΠ»ΡΠ΅Ρ Π²ΠΎΠΏΠ»ΠΎΡΠΈΡΡ Π»ΡΠ±ΡΡ Π·Π°Π΄ΡΠΌΠΊΡ. ΠΠ΄Π½Π°ΠΊΠΎ, Π΄Π»Ρ ΠΊΠ°ΡΠ΅ΡΡΠ²Π΅Π½Π½ΠΎΠ³ΠΎ ΡΠ°ΡΠΏΡΠ΅Π΄Π΅Π»Π΅Π½ΠΈΡ ΠΈΠΌΠ΅ΡΡΠ΅ΠΉΡΡ ΠΏΠ»ΠΎΡΠ°Π΄ΠΈ, ΠΏΡΠ°Π²ΠΈΠ»ΡΠ½ΠΎΠ³ΠΎ Π½Π°Π·Π½Π°ΡΠ΅Π½ΠΈΡ ΡΡΠ½ΠΊΡΠΈΠΎΠ½Π°Π»ΡΠ½ΠΎΠΉ Π½Π°Π³ΡΡΠ·ΠΊΠΈ ΠΈ ΡΠΎΠ²ΠΌΠ΅ΡΠ΅Π½ΠΈΡ ΠΏΠ΅ΡΠ΅ΡΠΈΡΠ»Π΅Π½Π½ΠΎΠ³ΠΎ Ρ ΡΠ΄ΠΎΠ±ΡΡΠ²ΠΎΠΌ ΠΏΡΠΎΠΆΠΈΠ²Π°Π½ΠΈΡ, Π»ΡΡΡΠ΅ ΠΏΡΠΈΠ²Π»Π΅ΡΡ ΠΏΡΠΎΡΠ΅ΡΡΠΈΠΎΠ½Π°Π»Π°.
ΠΠ³Π»Π°Π²Π»Π΅Π½ΠΈΠ΅ ΡΡΠ°ΡΡΠΈ:
ΠΡΠ°Π²ΠΈΠ»Π° ΠΏΡΠΎΠ²Π΅Π΄Π΅Π½ΠΈΡ ΡΠ°Π±ΠΎΡ
ΠΠΎΠ΄ ΠΏΠ»Π°Π½ΠΈΡΠΎΠ²ΠΊΠΎΠΉ Π² ΡΡΡΠΎΠΈΡΠ΅Π»ΡΡΡΠ²Π΅ ΠΏΠΎΠ½ΠΈΠΌΠ°Π΅ΡΡΡ ΡΠ°Π·Π΄Π΅Π»Π΅Π½ΠΈΠ΅ ΠΏΡΠΎΡΡΡΠ°Π½ΡΡΠ²Π° Π½Π° ΡΡΠ°ΠΏΠ΅ ΡΡΡΠΎΠΈΡΠ΅Π»ΡΡΡΠ²Π°.
ΠΡΠ΅ ΠΏΠΎΡΠ»Π΅Π΄ΡΡΡΠΈΠ΅ ΠΈΠ·ΠΌΠ΅Π½Π΅Π½ΠΈΡ ΠΎΡΠ½ΠΎΡΡΡΡΡ ΠΊ ΠΏΠ΅ΡΠ΅ΠΏΠ»Π°Π½ΠΈΡΠΎΠ²ΠΊΠ΅. ΠΠΎΡΠΎΠΌΡ, ΡΡΠΎΠ±Ρ ΠΈΠ·Π±Π΅ΠΆΠ°ΡΡ Π·Π°ΡΡΠ°ΡΠ½ΡΡ
ΠΏΠΎ Π²ΡΠ΅ΠΌΠ΅Π½ΠΈ, ΡΠΈΠ»Π°ΠΌ ΠΈ ΡΠΈΠ½Π°Π½ΡΠ°ΠΌ ΠΊΠΎΡΡΠ΅ΠΊΡΠΈΡΠΎΠ²ΠΎΠΊ, Ρ
ΠΎΡΠΎΡΠ°Ρ ΠΏΠ»Π°Π½ΠΈΡΠΎΠ²ΠΊΠ° ΡΠ°ΡΡΠ½ΠΎΠ³ΠΎ Π΄ΠΎΠΌΠ° Π΄ΠΎΠ»ΠΆΠ½Π° Π½Π°ΡΠΈΠ½Π°ΡΡΡΡ Π½Π° ΡΡΠ°ΠΏΠ΅ Π·Π°ΠΊΠ»Π°Π΄ΠΊΠΈ ΡΡΠ½Π΄Π°ΠΌΠ΅Π½ΡΠ°. ΠΡΠΎ Π½Π΅ΠΎΠ±Ρ
ΠΎΠ΄ΠΈΠΌΠΎ Π΄Π»Ρ ΡΠΎΠ³ΠΎ, ΡΡΠΎΠ±Ρ ΠΈΠ·Π½Π°ΡΠ°Π»ΡΠ½ΠΎ Π·Π°Π»ΠΎΠΆΠΈΡΡ Π½Π΅ΡΡΡΠΈΠ΅ ΡΡΠ΅Π½Ρ ΠΈ ΠΏΠ΅ΡΠ΅Π³ΠΎΡΠΎΠ΄ΠΊΠΈ.
ΠΡΠ»ΠΈ ΡΠ°ΡΠΏΡΠ΅Π΄Π΅Π»Π΅Π½ΠΈΠ΅ ΠΏΡΠΎΡΡΡΠ°Π½ΡΡΠ²Π° ΠΎΡΡΡΠ΅ΡΡΠ²Π»ΡΠ΅ΡΡΡ ΡΠ°ΠΌΠΎΡΡΠΎΡΡΠ΅Π»ΡΠ½ΠΎ, ΠΎΡΠ»ΠΈΡΠ½ΡΠΌ ΠΏΠΎΠ΄ΡΠΏΠΎΡΡΠ΅ΠΌ ΡΡΠ°Π½ΡΡ ΡΠΎΡΠΎ ΠΏΠ»Π°Π½ΠΈΡΠΎΠ²ΠΊΠΈ Π΄ΠΎΠΌΠ° ΠΈΠ· ΡΠ΅ΡΠΈ. ΠΠ΄Π΅ΡΡ ΠΌΠΎΠΆΠ½ΠΎ Π½Π°ΠΉΡΠΈ Π½Π΅ΡΠΊΠΎΠ»ΡΠΊΠΎ Π²Π°ΡΠΈΠ°Π½ΡΠΎΠ² ΡΠ°Π·Π΄Π΅Π»Π΅Π½ΠΈΡ ΡΡΡΠΎΠ΅Π½ΠΈΠΉ ΠΊΠΎΠ½ΠΊΡΠ΅ΡΠ½ΠΎΠ³ΠΎ ΡΠΈΠΏΠ°.
ΠΡΠ»ΠΈ ΠΊ ΡΠ°Π±ΠΎΡΠ΅ ΠΏΡΠΈΠ²Π»Π΅ΡΠ΅Π½ ΠΊΠ²Π°Π»ΠΈΡΠΈΡΠΈΡΠΎΠ²Π°Π½Π½ΡΠΉ ΡΠ°Π±ΠΎΡΠ½ΠΈΠΊ, Π΅Π³ΠΎ Π·Π°Π΄Π°ΡΠ΅ΠΉ ΡΡΠ°Π½Π΅Ρ ΡΠΎΠ²ΠΌΠ΅ΡΠ΅Π½ΠΈΠ΅ ΠΏΠΎΠΆΠ΅Π»Π°Π½ΠΈΠΉ Ρ ΠΎΠ·ΡΠ΅Π² ΠΆΠΈΠ»ΠΈΡΠ° ΠΈ ΡΡΡΠΎΠΈΡΠ΅Π»ΡΠ½ΡΡ Π½ΠΎΡΠΌ. ΠΠΎΠ½Π΅ΡΠ½ΡΠΌ ΠΏΡΠΎΠ΄ΡΠΊΡΠΎΠΌ ΡΠ°Π±ΠΎΡΡ ΡΠΏΠ΅ΡΠΈΠ°Π»ΠΈΡΡΠ° Π±ΡΠ΄Π΅Ρ:
- ΠΏΠΎΠ΄ΡΠΎΠ±Π½Π°Ρ ΡΡ Π΅ΠΌΠ° ΠΊΠΎΠΌΠΌΡΠ½ΠΈΠΊΠ°ΡΠΈΠΉ;
- ΡΠ΅ΡΡΠ΅ΠΆΠ½ΡΠΉ ΠΏΡΠΎΠ΅ΠΊΡ.
ΠΠΎΠ΄ ΠΊΠΎΠΌΠΌΡΠ½ΠΈΠΊΠ°ΡΠΈΡΠΌΠΈ ΠΏΠΎΠ½ΠΈΠΌΠ°ΡΡΡΡ ΠΈΠ½ΠΆΠ΅Π½Π΅ΡΠ½ΡΠ΅ ΡΠ΅ΡΠΈ, ΠΎΠ±Π΅ΡΠΏΠ΅ΡΠΈΠ²Π°ΡΡΠΈΠ΅ ΠΆΠΈΠ·Π½Π΅Π΄Π΅ΡΡΠ΅Π»ΡΠ½ΠΎΡΡΡ ΠΎΠ±ΠΈΡΠ°ΡΠ΅Π»Π΅ΠΉ ΠΆΠΈΠ»ΠΈΡΠ°. ΠΠ»Π΅ΠΊΡΡΠΈΡΠ΅ΡΠΊΠ°Ρ ΡΠ΅ΡΡ, Π²ΠΎΠ΄ΠΎΡΠ½Π°Π±ΠΆΠ΅Π½ΠΈΠ΅ ΠΈ ΠΊΠ°Π½Π°Π»ΠΈΠ·Π°ΡΠΈΠΎΠ½Π½Π°Ρ ΡΠΈΡΡΠ΅ΠΌΠ°.
Π§Π΅ΡΡΠ΅ΠΆ Π΄ΠΎΠ»ΠΆΠ΅Π½ ΡΠ΅ΡΠΊΠΎ ΡΡΠΈΡΡΠ²Π°ΡΡ ΡΠ°Π·ΠΌΠ΅ΡΡ ΡΠ°ΡΡΠ½ΠΎΠ³ΠΎ Π΄ΠΎΠΌΠ° ΠΈ ΡΠΎΠΎΡΠ²Π΅ΡΡΡΠ²ΠΎΠ²Π°ΡΡ ΠΎΡΠ½ΠΎΠ²Π½ΡΠΌ ΡΡΠ΅Π±ΠΎΠ²Π°Π½ΠΈΡΠΌ, ΠΏΡΠ΅Π΄ΡΡΠ²Π»ΡΠ΅ΠΌΡΠΌ ΠΊ ΡΡΡΠΎΠΈΡΠ΅Π»ΡΡΡΠ²Ρ ΠΆΠΈΠ»ΡΡ Π·Π΄Π°Π½ΠΈΠΉ.
Π’Π°ΠΊ, Ρ ΡΡΠ΅ΡΠΎΠΌ Π½ΠΎΡΠΌ ΠΏΠΎ ΠΎΠ±ΡΠ΅ΠΌΡ ΡΠΈΡΡΠΎΠ³ΠΎ Π²ΠΎΠ·Π΄ΡΡ Π° Π² ΠΊΠΎΠΌΠ½Π°ΡΠ΅ (23 ΠΌ3), Π½ΡΠΆΠ½ΠΎ Ρ ΠΎΡΠΎΠ±ΠΎΠΉ ΡΡΠ°ΡΠ΅Π»ΡΠ½ΠΎΡΡΡΡ ΠΎΠ±Π΅ΡΠΏΠ΅ΡΠΈΡΡ Π½Π΅ΠΎΠ±Ρ ΠΎΠ΄ΠΈΠΌΡΠΉ ΠΌΠ΅ΡΡΠ°ΠΆ, ΡΡΠΎΠ²Π΅Π½Ρ ΠΏΡΠΎΠ²Π΅ΡΡΠΈΠ²Π°Π½ΠΈΡ. ΠΡΡΠΎΡΠ½ΠΈΠΊΠΈ Π΅ΡΡΠ΅ΡΡΠ²Π΅Π½Π½ΠΎΠ³ΠΎ ΠΎΡΠ²Π΅ΡΠ΅Π½ΠΈΡ ΡΠ°ΠΊΠΆΠ΅ Π²Π°ΠΆΠ½Ρ.
ΠΡΡ Π½Ρ
Π Π°Π·ΠΌΠ΅ΡΡ ΠΊΡΡ Π½ΠΈ ΡΡΠΎΠΈΡ ΡΠ°ΡΡΡΠΈΡΡΠ²Π°ΡΡ, ΠΈΡΡ ΠΎΠ΄Ρ ΠΈΠ· ΡΠΎΠ³ΠΎ, ΠΊΠ°ΠΊΠΎΠ΅ ΠΊΠΎΠ»ΠΈΡΠ΅ΡΡΠ²ΠΎ ΠΌΠ΅Π±Π΅Π»ΠΈ ΠΈ Π±ΡΡΠΎΠ²ΠΎΠΉ ΡΠ΅Ρ Π½ΠΈΠΊΠΈ ΠΏΠ»Π°Π½ΠΈΡΡΠ΅ΡΡΡ ΡΠ°Π·ΠΌΠ΅ΡΠ°ΡΡ Π² Π½Π΅ΠΉ.
ΠΠ°ΠΈΠ»ΡΡΡΠΈΠΌ Π²Π°ΡΠΈΠ°Π½ΡΠΎΠΌ Π΄Π»Ρ ΡΠ°ΡΡΠ½ΠΎΠ³ΠΎ ΡΡΡΠΎΠ΅Π½ΠΈΡ ΡΠ²Π»ΡΠ΅ΡΡΡ ΠΎΠ±ΡΠ΅Π΄ΠΈΠ½Π΅Π½ΠΈΠ΅ Π΄Π²ΡΡ Π·ΠΎΠ½: ΠΏΡΠΈΠ³ΠΎΡΠΎΠ²Π»Π΅Π½ΠΈΡ ΠΏΠΈΡΠΈ ΠΈ ΡΡΠΎΠ»ΠΎΠ²ΠΎΠΉ. ΠΡΠΎ ΡΠ²Π΅Π»ΠΈΡΠΈΠ²Π°Π΅Ρ ΠΎΠ±ΡΠ΅ΠΌΡ ΠΊΠΎΠΌΠ½Π°ΡΡ Ρ ΠΏΠΎΠ»ΡΠ·ΠΎΠΉ Π΄Π»Ρ ΡΡΠ½ΠΊΡΠΈΠΎΠ½Π°Π»ΡΠ½ΠΎΡΡΠΈ.
ΠΠΏΡΠΈΠΌΠ°Π»ΡΠ½ΡΠΌ ΠΏΠΎΠΊΠ°Π·Π°ΡΠ΅Π»Π΅ΠΌ ΠΏΠ»ΠΎΡΠ°Π΄ΠΈ Π΄Π»Ρ ΠΊΡΡ Π½ΠΈ ΡΠ²Π»ΡΠ΅ΡΡΡ 10 ΠΌ2. ΠΠ»Ρ ΠΊΡΡ Π½ΠΈ, ΡΠΎΠ²ΠΌΠ΅ΡΠ΅Π½Π½ΠΎΠΉ ΡΠΎ ΡΡΠΎΠ»ΠΎΠ²ΠΎΠΉ Π΄ΠΎΡΡΠ°ΡΠΎΡΠ½ΠΎ 15ΠΌ2.
Π’ΡΠ°Π»Π΅Ρ ΠΈ Π²Π°Π½Π½Π°Ρ
ΠΠ»Ρ ΡΠ°ΡΡΠ½ΠΎΠΉ ΠΏΠΎΡΡΡΠΎΠΉΠΊΠΈ, Π³Π΄Π΅ ΠΏΡΠΎΠ²Π΅Π΄Π΅Π½ΠΈΠ΅ ΠΊΠ°Π½Π°Π»ΠΈΠ·Π°ΡΠΈΠΎΠ½Π½ΠΎΠΉ ΡΠΈΡΡΠ΅ΠΌΡ ΠΏΡΠ΅Π΄ΡΡΠ°Π²Π»ΡΠ΅Ρ ΡΠΎΠ±ΠΎΠΉ Π½Π°ΡΡΠΎΡΡΡΡ ΡΠΏΠΎΠΏΠ΅Ρ, Π²Π°ΠΆΠ½ΠΎ Π³ΡΠ°ΠΌΠΎΡΠ½ΠΎ ΠΈΡΠΏΠΎΠ»ΡΠ·ΠΎΠ²Π°ΡΡ ΠΏΡΠΎΡΡΡΠ°Π½ΡΡΠ²ΠΎ ΠΈ ΠΌΠ°ΡΠ΅ΡΠΈΠ°Π». ΠΠΎ ΡΡΠΎΠΉ ΠΏΡΠΈΡΠΈΠ½Π΅ ΡΡΠ°Π»Π΅Ρ, Π²Π°Π½Π½Π°Ρ ΠΈ ΠΏΡΠ°ΡΠ΅ΡΠ½Π°Ρ (Π΅ΡΠ»ΠΈ ΡΠ°ΠΊΠΎΠ²Π°Ρ Π²ΡΠ΄Π΅Π»ΡΠ΅ΡΡΡ ΠΎΡΠ΄Π΅Π»ΡΠ½ΠΎ) ΡΠ°ΡΠΏΠΎΠ»Π°Π³Π°ΡΡΡΡ ΡΡΠ΄ΠΎΠΌ Ρ ΠΊΡΡ Π½Π΅ΠΉ.
Π’Π°ΠΊΠΎΠ΅ ΡΠ°Π·ΠΌΠ΅ΡΠ΅Π½ΠΈΠ΅ ΠΏΠΎΠ·Π²ΠΎΠ»ΡΠ΅Ρ ΡΠΎΠ±Π»ΡΡΡΠΈ Π½ΠΎΡΠΌΡ Π³ΠΈΠ³ΠΈΠ΅Π½Ρ, Π²ΡΠ΄Π΅Π»ΠΈΠ² ΠΎΡΠ΄Π΅Π»ΡΠ½ΡΠΉ Ρ
ΠΎΠ·ΡΠΉΡΡΠ²Π΅Π½Π½ΡΠΉ Π±Π»ΠΎΠΊ.
ΠΡΠΈ ΡΡΠΎΠΌ Π½Π°Π±Π»ΡΠ΄Π°Π΅ΡΡΡ ΡΡΡΠ΅ΡΡΠ²Π΅Π½Π½Π°Ρ ΡΠΊΠΎΠ½ΠΎΠΌΠΈΡ Π½Π° ΠΌΠ°ΡΠ΅ΡΠΈΠ°Π»Π΅ ΠΈ ΡΠ°Π±ΠΎΡΠ°Ρ
ΠΏΠΎ ΠΏΡΠΎΠΊΠ»Π°Π΄ΠΊΠ΅ ΠΊΠ°Π½Π°Π»ΠΈΠ·Π°ΡΠΈΠΎΠ½Π½ΡΡ
ΡΡΡΠ± ΠΈ ΡΠΈΡΡΠ΅ΠΌΡ Π²ΠΎΠ΄ΠΎΡΠ½Π°Π±ΠΆΠ΅Π½ΠΈΡ.
ΠΡΠ»ΠΈ ΠΊΠ°ΠΆΠ΄ΠΎΠ΅ ΠΈΠ· ΠΏΠΎΠΌΠ΅ΡΠ΅Π½ΠΈΠΉ ΠΏΠ»Π°Π½ΠΈΡΡΠ΅ΡΡΡ, ΠΊΠ°ΠΊ ΠΎΡΠ΄Π΅Π»ΡΠ½ΠΎΠ΅, ΡΡΠΎΠΈΡ ΠΏΠΎΠ·Π°Π±ΠΎΡΠΈΡΡΡΡ ΠΎ ΡΠΎΠΎΡΠ²Π΅ΡΡΡΠ²ΡΡΡΠ΅ΠΌ ΠΌΠ΅ΡΡΠ°ΠΆΠ΅. ΠΠΈΠ½ΠΈΠΌΠ°Π»ΡΠ½ΡΠΌ ΠΏΠΎΠΊΠ°Π·Π°ΡΠ΅Π»Π΅ΠΌ Π² Π΄Π°Π½Π½ΠΎΠΌ ΡΠ»ΡΡΠ°Π΅ ΡΡΠ°Π½Π΅Ρ 5-6 ΠΌ2.
Π Π°ΡΠΏΡΠ΅Π΄Π΅Π»Π΅Π½ΠΈΠ΅ ΠΏΠ»ΠΎΡΠ°Π΄ΠΈ Π΄ΠΎΠΌΠΎΠ² ΡΠ°Π·Π½ΠΎΠ³ΠΎ ΡΠΈΠΏΠ°
Π‘ΡΡΠΎΠΈΡΡ Π³ΡΠΎΠΌΠΎΠ·Π΄ΠΊΠΈΠ΅ ΠΎΡΠΎΠ±Π½ΡΠΊΠΈ, ΡΡΠ΅Π±ΡΡΡΠΈΠ΅ ΠΎΠ³ΡΠΎΠΌΠ½ΡΡ Π·Π°ΡΡΠ°Ρ ΡΠ½Π΅ΡΠ³ΠΈΠΈ ΠΈ ΡΠ΅ΡΡΡΡΠΎΠ² Π½Π° ΠΎΠ±Π΅ΡΠΏΠ΅ΡΠ΅Π½ΠΈΠ΅ ΠΈΡ ΡΡΠ½ΠΊΡΠΈΠΎΠ½ΠΈΡΠΎΠ²Π°Π½ΠΈΡ, ΡΠ΅ΠΉΡΠ°Ρ ΡΠ»ΠΈΡΠΊΠΎΠΌ Π½Π°ΠΊΠ»Π°Π΄Π½ΠΎ. Π‘ ΡΡΠ΅ΡΠΎΠΌ ΡΡΠΎΠΈΠΌΠΎΡΡΠΈ ΡΡΡΠΎΠΈΡΠ΅Π»ΡΡΡΠ²Π° ΠΈ Π·Π΅ΠΌΠ΅Π»ΡΠ½ΠΎΠ³ΠΎ ΡΡΠ°ΡΡΠΊΠ° ΠΏΠΎΠ΄ ΡΠ°ΠΊΡΡ ΠΏΠΎΡΡΡΠΎΠΉΠΊΡ β ΡΠ΅ΠΌ Π±ΠΎΠ»Π΅Π΅.
ΠΡΠΈ ΡΡΠΎΠΌ ΠΏΠΎΠΏΡΠ»ΡΡΠ½ΡΠΌΠΈ ΠΎΡΡΠ°ΡΡΡΡ ΠΊΠΎΠΌΠΏΠ°ΠΊΡΠ½ΡΠ΅ Π·Π΄Π°Π½ΠΈΡ, ΠΏΠΎΠΌΠ΅ΡΠ°ΡΡΠΈΠ΅ΡΡ Π½Π° Π½Π΅Π±ΠΎΠ»ΡΡΠΈΡ ΡΡΠ°ΡΡΠΊΠ°Ρ Π·Π΅ΠΌΠ»ΠΈ ΠΈ ΡΠΎΠ²ΠΌΠ΅ΡΠ°ΡΡΠΈΠ΅ Π² ΡΠ΅Π±Π΅ Π²ΡΠ΅ Π½Π΅ΠΎΠ±Ρ ΠΎΠ΄ΠΈΠΌΡΠ΅ Π΄Π»Ρ ΠΊΠΎΠΌΡΠΎΡΡΠ½ΠΎΠ³ΠΎ ΠΏΡΠΎΠΆΠΈΠ²Π°Π½ΠΈΡ Π·ΠΎΠ½Ρ. ΠΠΌΠ΅Π½Π½ΠΎ Π² ΡΠ°ΠΊΠΈΡ ΡΡΡΠΎΠ΅Π½ΠΈΡΡ Π³ΡΠ°ΠΌΠΎΡΠ½ΠΎΠ΅ ΠΈΡΠΏΠΎΠ»ΡΠ·ΠΎΠ²Π°Π½ΠΈΠ΅ ΠΏΡΠΎΡΡΡΠ°Π½ΡΡΠ²Π° ΠΏΡΠΈΠΎΠ±ΡΠ΅ΡΠ°Π΅Ρ ΠΏΠ΅ΡΠ²ΠΎΡΡΠ΅ΠΏΠ΅Π½Π½ΠΎΠ΅ Π·Π½Π°ΡΠ΅Π½ΠΈΠ΅.
ΠΡΠ»ΠΈ Π³ΠΎΠ²ΠΎΡΠΈΡΡ ΠΎ ΠΊΠ»Π°ΡΡΠΈΡΠΈΠΊΠ°ΡΠΈΠΈ ΡΠ°ΡΡΠ½ΡΡ
Π΄ΠΎΠΌΠΎΠ², ΡΠΎ ΠΌΠΎΠΆΠ½ΠΎ Π²ΡΠ΄Π΅Π»ΠΈΡΡ Π΄Π²Π° ΠΏΡΠΈΠ·Π½Π°ΠΊΠ° Π΄Π΅Π»Π΅Π½ΠΈΡ: ΡΡΠ°ΠΆΠ½ΠΎΡΡΡ ΠΈ ΡΠ°Π·ΠΌΠ΅Ρ. ΠΠ°ΠΈΠ±ΠΎΠ»Π΅Π΅ ΡΠ°ΡΠΏΡΠΎΡΡΡΠ°Π½Π΅Π½Π½ΡΠΌΠΈ ΡΡΠΈΡΠ°ΡΡΡΡ ΠΊΠΎΠΌΠΏΠ°ΠΊΡΠ½ΡΠ΅ ΠΎΠ΄Π½ΠΎ- ΠΈ Π΄Π²ΡΡ
ΡΡΠ°ΠΆΠ½ΡΠ΅ Π·Π΄Π°Π½ΠΈΡ ΠΏΠ»ΠΎΡΠ°Π΄ΡΡ 6Ρ
6, 8Ρ
8 ΠΈ 10Ρ
10 ΠΌΠ΅ΡΡΠΎΠ².
Π‘ ΡΡΠ΅ΡΠΎΠΌ ΠΎΠ³ΡΠ°Π½ΠΈΡΠ΅Π½Π½ΠΎΠ³ΠΎ ΠΏΡΠΎΡΡΡΠ°Π½ΡΡΠ²Π°, ΠΏΠΎΠΏΡΠ»ΡΡΠ½ΡΠΌ Π²Π°ΡΠΈΠ°Π½ΡΠΎΠΌ ΡΠ²Π»ΡΠ΅ΡΡΡ ΡΡΡΠΎΠ΅Π½ΠΈΠ΅ Ρ ΠΌΠ°Π½ΡΠ°ΡΠ΄ΠΎΠΉ β ΠΆΠΈΠ»ΡΠΌ ΠΏΠΎΠΌΠ΅ΡΠ΅Π½ΠΈΠ΅ΠΌ, ΠΎΠ±ΠΎΡΡΠ΄ΠΎΠ²Π°Π½Π½ΡΠΌ ΠΏΠΎΠ΄ ΠΊΡΡΡΠ΅ΠΉ.
Π’ΠΈΠΏ 6Ρ 6
ΠΠ»Π°Π½ΠΈΡΠΎΠ²ΠΊΠ° Π΄ΠΎΠΌΠ° 6 Π½Π° 6 ΠΌΠ΅ΡΡΠΎΠ² β ΡΠ»ΠΎΠΆΠ½Π°Ρ Π·Π°Π΄Π°ΡΠ°. ΠΠ΅Π΄Ρ, ΠΏΡΠΈ Π½Π΅Π±ΠΎΠ»ΡΡΠΈΡ ΠΏΠ°ΡΠ°ΠΌΠ΅ΡΡΠ°Ρ , Π½ΡΠΆΠ½ΠΎ ΡΠ°Π·ΠΌΠ΅ΡΡΠΈΡΡ Π²ΡΠ΅ Π½Π΅ΠΎΠ±Ρ ΠΎΠ΄ΠΈΠΌΡΠ΅ Π·ΠΎΠ½Ρ ΠΈ ΡΠ΄Π΅Π»Π°ΡΡ ΠΆΠΈΠ»ΠΈΡΠ΅ ΠΊΠΎΠΌΡΠΎΡΡΠ½ΡΠΌ Π΄Π»Ρ ΠΏΡΠΎΠΆΠΈΠ²Π°Π½ΠΈΡ.
Π’ΡΡ ΡΠ΅Π»Π΅ΡΠΎΠΎΠ±ΡΠ°Π·Π½ΠΎ ΡΠ°Π·ΠΌΠ΅ΡΡΠΈΡΡ Π½Π° ΠΏΠ΅ΡΠ²ΠΎΠΌ ΡΡΠ°ΠΆΠ΅ ΠΊΡΡ Π½Ρ/ΡΡΠΎΠ»ΠΎΠ²ΡΡ ΠΈ Π²Π°Π½Π½ΡΡ Ρ ΡΡΠ°Π»Π΅ΡΠΎΠΌ. ΠΠ°Π½ΡΠ°ΡΠ΄Π° Π±ΡΠ΄Π΅Ρ ΠΈΠ³ΡΠ°ΡΡ ΡΠΎΠ»Ρ ΠΏΠΎΠΌΠ΅ΡΠ΅Π½ΠΈΡ Π΄Π»Ρ ΠΎΡΠ΄ΡΡ Π°, ΠΊΠΎΡΠΎΡΠΎΠ΅ ΠΌΠΎΠΆΠ½ΠΎ ΡΠ°Π·Π΄Π΅Π»ΠΈΡΡ Π½Π° Π·ΠΎΠ½Ρ ΡΠΏΠ°Π»ΡΠ½ΠΈ ΠΈ Π΄ΠΎΡΡΠ³Π° (ΠΈΠ»ΠΈ Π΄Π΅ΡΡΠΊΡΡ). ΠΠΎΠ»ΡΡΠ΅ Π΄Π²ΡΡ ΡΡΠ½ΠΊΡΠΈΠΎΠ½Π°Π»ΡΠ½ΡΡ Π·ΠΎΠ½ Π²ΡΠ΄Π΅Π»ΠΈΡΡ Π½Π΅ ΠΏΠΎΠ»ΡΡΠΈΡΡΡ ΠΈΠ·-Π·Π° ΡΠ°Π·ΠΌΠ΅ΡΠ½ΡΡ Ρ Π°ΡΠ°ΠΊΡΠ΅ΡΠΈΡΡΠΈΠΊ ΠΏΠΎΠΌΠ΅ΡΠ΅Π½ΠΈΡ.
Π Π½Π΅ΠΊΠΎΡΠΎΡΡΡ ΡΠ»ΡΡΠ°ΡΡ Π²Π»Π°Π΄Π΅Π»ΡΡΡ ΠΆΠΈΠ»ΠΈΡΠ° ΠΌΠΎΠ³ΡΡ ΠΆΠ΅ΡΡΠ²ΠΎΠ²Π°ΡΡ ΡΡΠ°Π»Π΅ΡΠΎΠΌ Π²Π½ΡΡΡΠΈ Π² ΠΏΠΎΠ»ΡΠ·Ρ ΠΎΠ±ΠΎΡΡΠ΄ΠΎΠ²Π°Π½ΠΈΡ ΠΏΠ°ΡΠ½ΠΎΠΉ Π½Π° Π΄ΡΠΎΠ²Π°Ρ . Π ΠΈΡΠΏΡΠ°Π²Π»Π΅Π½ΠΈΠ΅ ΠΏΠΎΡΡΠ΅Π±Π½ΠΎΡΡΠ΅ΠΉ ΠΏΠ΅ΡΠ΅Π½ΠΎΡΠΈΡΡΡ Π² ΡΡΡΠΎΠ΅Π½ΠΈΠ΅ ΡΠΈΠΏΠ° Π½ΡΠΆΠ½ΠΈΠΊ Π½Π° ΠΏΡΠΈΡΡΠ°Π΄Π΅Π±Π½ΠΎΠΌ ΡΡΠ°ΡΡΠΊΠ΅.
Π’ΠΈΠΏ 8Ρ 8
ΠΠΎΠ³Π΄Π° ΡΠ΅ΡΡ ΠΈΠ΄Π΅Ρ ΠΎ ΠΏΠ»ΠΎΡΠ°Π΄ΠΈ Π² 64 ΠΌ2, ΠΏΡΠΎΡΠ΅ΡΡ ΡΠ°ΡΠΏΡΠ΅Π΄Π΅Π»Π΅Π½ΠΈΡ ΠΏΡΠΎΡΡΡΠ°Π½ΡΡΠ²Π° ΡΡΠ°Π½ΠΎΠ²ΠΈΡΡΡ Π½Π΅ ΡΠ°ΠΊΠΈΠΌ ΡΠ»ΠΎΠΆΠ½ΡΠΌ.
- ΠΏΡΠΈΡ ΠΎΠΆΡΡ β 4 ΠΌ2;
- ΡΠ°Π½ΡΠ·Π΅Π» β 8 ΠΌ2;
- ΠΊΡΡ Π½Ρ ΡΡΠΎΠ»ΠΎΠ²ΡΡ β 15 ΠΌ2;
- ΡΠΏΠ°Π»ΡΠ½Ρ-Π³ΠΎΡΡΠΈΠ½ΡΡ β 22 ΠΌ2;
- Π΄Π΅ΡΡΠΊΡΡ β 15 ΠΌ2.
Π’Π°ΠΊΠΈΠΌ ΡΠ²Π»ΡΠ΅ΡΡΡ ΡΠ°ΡΠΏΡΠ΅Π΄Π΅Π»Π΅Π½ΠΈΠ΅ ΠΏΡΠΈ ΠΏΠ»Π°Π½ΠΈΡΠΎΠ²ΠΊΠ΅ ΠΎΠ΄Π½ΠΎΡΡΠ°ΠΆΠ½ΠΎΠ³ΠΎ Π΄ΠΎΠΌΠ°. ΠΡΠ»ΠΈ ΠΏΠΎΠ΄ΡΠ°Π·ΡΠΌΠ΅Π²Π°Π΅ΡΡΡ Π½Π°Π»ΠΈΡΠΈΠ΅ ΠΌΠ°Π½ΡΠ°ΡΠ΄Ρ, ΠΏΠΎΠ½Π°Π΄ΠΎΠ±ΠΈΡΡΡ ΠΏΠ΅ΡΠ΅ΡΠ°ΡΠΏΡΠ΅Π΄Π΅Π»Π΅Π½ΠΈΠ΅ Ρ ΡΡΠ΅ΡΠΎΠΌ Π»Π΅ΡΡΠ½ΠΈΡΡ (ΠΏΠΎΡΡΠ΄ΠΊΠ° 8 ΠΌ2), Π²Π΅Π΄ΡΡΠ΅ΠΉ Π½Π°Π²Π΅ΡΡ . ΠΠΎΠ΄ ΠΊΡΡΡΠ΅ΠΉ ΠΆΠ΅ ΡΠ²ΠΎΠ±ΠΎΠ΄Π½ΠΎ ΡΠ°Π·ΠΌΠ΅ΡΡΡΡΡΡ Π΄Π²Π΅ ΡΠΏΠ°Π»ΡΠ½ΠΈ 20 ΠΌ2 ΠΈ 13 ΠΌ2.
ΠΡΠΈ ΡΠ°ΠΊΠΎΠΌ ΠΌΠ΅ΡΡΠ°ΠΆΠ΅ ΡΠ°ΠΊΠΆΠ΅ ΡΠ²ΠΎΠ±ΠΎΠ΄Π½ΠΎ ΠΌΠΎΠΆΠ΅Ρ ΠΎΠ±ΡΡΠΆΠ΄Π°ΡΡΡΡ ΠΏΠ»Π°Π½ΠΈΡΠΎΠ²Π°Π½ΠΈΠ΅ ΠΏΡΠΎΡΡΡΠ°Π½ΡΡΠ²Π° Π΄Π»Ρ Π΄Π²ΡΡ ΡΡΠ°ΠΆΠ½ΠΎΠ³ΠΎ Π·Π΄Π°Π½ΠΈΡ. Π ΡΠ°ΠΊΠΎΠΌ ΡΠ»ΡΡΠ°Π΅ ΡΡΠΎΠΈΡ ΡΠ²Π΅Π»ΠΈΡΠΈΡΡ Π²Π°Π½Π½ΡΡ Ρ ΡΡΠ°Π»Π΅ΡΠΎΠΌ, ΡΡΠΎΠ»ΠΎΠ²ΡΡ ΠΈ ΠΏΡΠΈΡ ΠΎΠΆΡΡ, Π° ΡΠ°ΠΊΠΆΠ΅ Π΄ΠΎΠ±Π°Π²ΠΈΡΡ ΠΊΠ»Π°Π΄ΠΎΠ²ΠΎΠ΅ ΠΏΠΎΠΌΠ΅ΡΠ΅Π½ΠΈΠ΅ Π½Π° ΠΏΠ΅ΡΠ²ΠΎΠΌ ΡΡΠ°ΠΆΠ΅. Π Π΄Π΅ΡΡΠΊΠ°Ρ ΠΊΠΎΠΌΠ½Π°ΡΠ°, Π²ΠΌΠ΅ΡΡΠ΅ Ρ Π΄Π²ΡΠΌΡ ΡΠΏΠ°Π»ΡΠ½ΡΠΌΠΈ ΡΠ°Π·ΠΌΠ΅ΡΡΠΈΡΡΡ Π½Π° Π²ΡΠΎΡΠΎΠΌ.
Π’ΠΈΠΏ 10Ρ 10
ΠΠ»ΠΎΡΠ°Π΄Ρ 10 Π½Π° 10 ΠΌΠ΅ΡΡΠΎΠ² Π΄ΠΎΡΡΠ°ΡΠΎΡΠ½Π° Π΄Π»Ρ ΡΠΎΠ³ΠΎ, ΡΡΠΎΠ±Ρ ΡΠ°Π·ΠΌΠ΅ΡΡΠΈΡΡ Π²ΡΠ΅ Π½Π΅ΠΎΠ±Ρ
ΠΎΠ΄ΠΈΠΌΡΠ΅ ΠΏΠΎΠΌΠ΅ΡΠ΅Π½ΠΈΡ Π½Π° ΠΎΠ΄Π½ΠΎΠΌ ΡΡΠ°ΠΆΠ΅. ΠΠ»Π°Π½ΠΈΡΠΎΠ²ΠΊΠ° ΡΠ°ΠΊΠΎΠ³ΠΎ Π΄ΠΎΠΌΠ° Ρ ΠΌΠ°Π½ΡΠ°ΡΠ΄ΠΎΠΉ ΠΏΠΎΠ·Π²ΠΎΠ»ΠΈΡ ΡΠ²Π΅Π»ΠΈΡΠΈΡΡ ΠΌΠ΅ΡΡΠ°ΠΆ ΠΊΠΎΠΌΠ½Π°Ρ ΠΈΠ»ΠΈ, ΠΏΡΠΈ Π½Π΅ΠΎΠ±Ρ
ΠΎΠ΄ΠΈΠΌΠΎΡΡΠΈ, ΠΈΡ
ΠΊΠΎΠ»ΠΈΡΠ΅ΡΡΠ²ΠΎ.
Π’Π°ΠΊ, ΠΏΠΎΠΌΠΈΠΌΠΎ ΡΡΠ°Π½Π΄Π°ΡΡΠ½ΠΎΠ³ΠΎ Π½Π°Π±ΠΎΡΠ° (ΠΊΡΡ Π½Ρ, Π³ΠΎΡΡΠΈΠ½Π°Ρ, Π΄Π΅ΡΡΠΊΠ°Ρ, ΡΠΏΠ°Π»ΡΠ½Ρ, ΡΠ°Π½ΡΠ·Π΅Π»), ΠΌΠΎΠΆΠ½ΠΎ Π²ΡΠ΄Π΅Π»ΠΈΡΡ ΠΌΠ΅ΡΡΠΎ Π΄Π»Ρ ΠΊΠ°Π±ΠΈΠ½Π΅ΡΠ° ΠΈΠ»ΠΈ ΡΠΏΠ΅ΡΠΈΠ°Π»ΠΈΠ·ΠΈΡΠΎΠ²Π°Π½Π½ΠΎΠ³ΠΎ ΠΌΠ΅ΡΡΠ° ΠΎΡΠ΄ΡΡ Π°. ΠΡΠ»ΠΈ ΠΏΠ΅ΡΠ΅Π½Π΅ΡΡΠΈ Π΄Π΅ΡΡΠΊΡΡ Π² ΠΌΠ°Π½ΡΠ°ΡΠ΄Ρ, Π½Π° ΠΏΠ΅ΡΠ²ΠΎΠΌ ΡΡΠ°ΠΆΠ΅ ΠΌΠΎΠΆΠ½ΠΎ ΠΎΠ±ΠΎΡΡΠ΄ΠΎΠ²Π°ΡΡ Π²ΠΌΠ΅ΡΡΠΈΡΠ΅Π»ΡΠ½ΡΡ ΠΏΠ°ΡΠ½ΡΡ.
ΠΠ»Π°Π½ΠΈΡΠΎΠ²ΠΊΠ° Π΄Π²ΡΡ ΡΡΠ°ΠΆΠ½ΠΎΠ³ΠΎ Π΄ΠΎΠΌΠ° ΠΏΠΎΠ΄ΠΎΠ±Π½ΠΎΠ³ΠΎ ΠΌΠ΅ΡΡΠ°ΠΆΠ° ΠΌΠΎΠΆΠ΅Ρ ΠΎΠ³ΡΠ°Π½ΠΈΡΠΈΠ²Π°ΡΡΡΡ ΡΠΎΠ»ΡΠΊΠΎ Π½ΠΎΡΠΌΠ°ΠΌΠΈ Π³ΠΈΠ³ΠΈΠ΅Π½Ρ ΠΈ ΡΡΠ΅Π±ΠΎΠ²Π°Π½ΠΈΡΠΌ ΠΏΡΠΎΡΠΈΠ²ΠΎΠΏΠΎΠΆΠ°ΡΠ½ΠΎΠΉ Π±Π΅Π·ΠΎΠΏΠ°ΡΠ½ΠΎΡΡΠΈ. Π ΠΎΡΡΠ°Π»ΡΠ½ΠΎΠΌ β ΠΌΠ΅ΡΡΠΎ Π΄Π»Ρ Π²ΠΎΠΏΠ»ΠΎΡΠ΅Π½ΠΈΡ ΠΏΠΎΠΆΠ΅Π»Π°Π½ΠΈΠΉ Π²Π»Π°Π΄Π΅Π»ΡΡΠ° Π΄ΠΎΡΡΠ°ΡΠΎΡΠ½ΠΎ.
Π¦Π΅Π»Π΅ΡΠΎΠΎΠ±ΡΠ°Π·Π½ΡΠΌ ΠΎΡΡΠ°Π΅ΡΡΡ ΡΠ°Π·ΠΌΠ΅ΡΠ΅Π½ΠΈΠ΅ Π½Π° ΠΏΠ΅ΡΠ²ΠΎΠΌ ΡΡΠ°ΠΆΠ΅ ΠΊΡΡ Π½ΠΈ ΠΈ ΡΡΠΎΠ»ΠΎΠ²ΠΎΠΉ. ΠΠΎΠ΄ ΠΊΠ»Π°Π΄ΠΎΠ²ΠΎΠ΅ ΠΏΠΎΠΌΠ΅ΡΠ΅Π½ΠΈΠ΅ Π² ΠΆΠΈΠ»ΠΈΡΠ΅ Ρ Π±ΠΎΠ»ΡΡΠΈΠΌ ΠΊΠΎΠ»ΠΈΡΠ΅ΡΡΠ²ΠΎΠΌ ΠΎΠ±ΠΈΡΠ°ΡΠ΅Π»Π΅ΠΉ Π»ΡΡΡΠ΅ ΡΡΠ°Π·Ρ ΠΎΡΠ²Π΅ΡΡΠΈ 6-9 4 ΠΌ2. ΠΡΠΈ ΡΡΠΎΠΌ, ΡΡΠ°Π»Π΅Ρ ΠΈ Π²Π°Π½Π½ΡΡ ΠΌΠΎΠΆΠ½ΠΎ ΠΏΡΠΎΠ΄ΡΠ±Π»ΠΈΡΠΎΠ²Π°ΡΡ Π΄Π»Ρ Π±ΠΎΠ»ΡΡΠ΅Π³ΠΎ ΠΊΠΎΠΌΡΠΎΡΡΠ° ΠΆΠΈΠ»ΡΡΠΎΠ².
ΠΠΎΠ²ΠΎΡΡ ΠΎ ΠΊΠΎΠΌΡΠΎΡΡΠ΅, ΡΡΠΎΠΈΡ ΡΡΠΈΡΡΠ²Π°ΡΡ ΠΏΠΎΡΡΠ΅Π±Π½ΠΎΡΡΠΈ Π²ΡΠ΅Ρ ΠΎΠ±ΠΈΡΠ°ΡΠ΅Π»Π΅ΠΉ. Π’Π°ΠΊ, ΡΠ°Π·ΠΌΠ΅ΡΡ ΡΡΡΠΎΠ΅Π½ΠΈΡ ΠΏΠΎΠ·Π²ΠΎΠ»ΡΡΡ ΠΎΠ±Π΅ΡΠΏΠ΅ΡΠΈΡΡ Π΄Π΅ΡΠ΅ΠΉ ΡΠ°Π·Π½ΠΎΠ³ΠΎ ΠΏΠΎΠ»Π° ΠΎΡΠ΄Π΅Π»ΡΠ½ΡΠΌΠΈ ΠΊΠΎΠΌΠ½Π°ΡΠ°ΠΌΠΈ. ΠΡΠΎ Π±ΡΠ΄Π΅Ρ ΡΡΡΠ΅ΡΡΠ²Π΅Π½Π½ΡΠΌ ΠΏΠ»ΡΡΠΎΠΌ, ΠΊΠΎΠ³Π΄Π° Π΄Π΅ΡΠΈ Π½Π°ΡΠ½ΡΡ Π²Π·ΡΠΎΡΠ»Π΅ΡΡ.
Π Π°Π·ΠΌΠ΅ΡΠ΅Π½ΠΈΠ΅ ΡΠΏΠ°Π»Π΅Π½ Π½Π° Π½ΠΈΠΆΠ½Π΅ΠΌ ΡΡΠ°ΠΆΠ΅ ΡΡΠΎΠΈΡ ΠΏΠ»Π°Π½ΠΈΡΠΎΠ²Π°ΡΡ, ΠΏΠΎΠ΄ΡΠ°Π·ΡΠΌΠ΅Π²Π°Ρ ΠΏΡΠΎΠΆΠΈΠ²Π°Π½ΠΈΠ΅ Π² Π½ΠΈΡ
ΡΡΠ°ΡΡΠ΅Π³ΠΎ ΠΏΠΎΠΊΠΎΠ»Π΅Π½ΠΈΡ.
Π Π²ΠΎΡ ΡΠ°Π±ΠΎΡΠΈΠΉ ΠΊΠ°Π±ΠΈΠ½Π΅Ρ Π΄ΠΎΠ»ΠΆΠ΅Π½ Π½Π°Ρ
ΠΎΠ΄ΠΈΡΡΡΡ Π² ΠΌΠ°ΠΊΡΠΈΠΌΠ°Π»ΡΠ½ΠΎ ΠΎΡΠ΄Π°Π»Π΅Π½ΠΈΠΈ ΠΎΡ Π½Π°ΠΈΠ±ΠΎΠ»Π΅Π΅ ΠΏΠΎΡΠ΅ΡΠ°Π΅ΠΌΡΡ
ΠΏΠΎΠΌΠ΅ΡΠ΅Π½ΠΈΠΉ. ΠΡΡΡΠ΅, Π΅ΡΠ»ΠΈ Π² Π½Π΅Π³ΠΎ ΠΌΠΎΠΆΠ½ΠΎ Π±ΡΠ΄Π΅Ρ ΠΏΠΎΠΏΠ°ΡΡΡ ΡΠΎΠ»ΡΠΊΠΎ ΠΈΠ· ΡΠΏΠ°Π»ΡΠ½ΠΈ Ρ
ΠΎΠ·ΡΠ΅Π².
ΠΠ»Π°Π½ΠΈΡΡΡ ΠΈΠ·Π½Π°ΡΠ°Π»ΡΠ½ΠΎΠ΅ ΡΠ°Π·ΠΌΠ΅ΡΠ΅Π½ΠΈΠ΅ ΠΆΠΈΠ»ΠΈΡΠ° Π½Π° ΡΡΠ°ΡΡΠΊΠ΅ ΠΈ ΠΊΠΎΠΌΠ½Π°Ρ Π² Π½Π΅ΠΌ, ΡΡΠΎΠΈΡ ΠΎΡΡΠ°Π²ΠΈΡΡ ΠΏΡΠΎΡΡΡΠ°Π½ΡΡΠ²ΠΎ Π΄Π»Ρ ΡΠΎΠΎΡΡΠΆΠ΅Π½ΠΈΡ ΡΠΈΡΠΎΠΊΠΎΠ³ΠΎ ΠΊΡΡΠ»ΡΡΠ° ΠΈΠ»ΠΈ Π»Π΅ΡΠ½Π΅ΠΉ ΡΠ΅ΡΡΠ°ΡΡ. Π’Π°ΠΊΠΎΠΉ ΡΠ»Π΅ΠΌΠ΅Π½Ρ Π½Π΅ ΠΏΠΎΡΡΠ΅Π±ΡΠ΅Ρ Π·Π½Π°ΡΠΈΡΠ΅Π»ΡΠ½ΡΡ Π²Π»ΠΎΠΆΠ΅Π½ΠΈΠΉ, Π½ΠΎ ΠΎΠΊΡΠΏΠΈΡΡΡ ΠΌΠ½ΠΎΠ³ΠΎΠΊΡΠ°ΡΠ½ΠΎ, ΠΎΡΠΎΠ±Π΅Π½Π½ΠΎ Π² Π»Π΅ΡΠ½Π΅Π΅ Π²ΡΠ΅ΠΌΡ.
Π€ΠΎΡΠΎ ΠΏΠ»Π°Π½ΠΈΡΠΎΠ²ΠΊΠΈ Π΄ΠΎΠΌΠ°
ΠΡΡΠΎΡΠ½ΠΈΠΊ
ΠΠ°ΠΌ ΠΏΠΎΠ½ΡΠ°Π²ΠΈΠ»Π°ΡΡ ΡΡΠ°ΡΡΡ?
ΠΠ»Π°Π½Ρ Π΄ΠΎΠΌΠΎΠ² — Π²Π½ΡΡΡΠ΅Π½Π½ΡΡ ΠΏΠ»Π°Π½ΠΈΡΠΎΠ²ΠΊΠ° Π΄ΠΎΠΌΠ°, ΡΡ Π΅ΠΌΡ, ΡΠΎΡΠΎ
Π‘ΠΎΠ·Π΄Π°Π½ΠΈΠ΅ ΠΏΠ»Π°Π½Π° Π΄ΠΎΠΌΠ° ΡΠ²ΠΎΠΈΠΌΠΈ ΡΡΠΊΠ°ΠΌΠΈ ΠΎΡΠ²Π΅ΡΡΡΠ²Π΅Π½Π½Π°Ρ Π·Π°Π΄Π°ΡΠ° β ΠΎΠ±Π²ΠΈΠ½ΠΈΡΡ ΡΠΈΡΠΌΡ Π² ΠΎΡΠΈΠ±ΠΊΠ°Ρ
ΠΈ ΠΏΠΎΡΡΠ΅Π±ΠΎΠ²Π°ΡΡ ΠΌΠ°ΡΠ΅ΡΠΈΠ°Π»ΡΠ½ΠΎΠΉ ΠΊΠΎΠΌΠΏΠ΅Π½ΡΠ°ΡΠΈΠΈ ΡΠΆΠ΅ Π½Π΅ ΠΏΠΎΠ»ΡΡΠΈΡΡΡΡ.
Π ΡΡΠΎΠΉ ΡΡΠ°ΡΡΠ΅ ΠΌΡ ΡΠ°Π·Π±Π΅ΡΠ΅ΠΌΡΡ, ΠΊΠ°ΠΊ ΡΠ°ΠΌΠΎΡΡΠΎΡΡΠ΅Π»ΡΠ½ΠΎ ΡΠΎΠ·Π΄Π°ΡΡ Π²Π½ΡΡΡΠ΅Π½Π½ΠΈΠΉ ΠΏΠ»Π°Π½ Π΄ΠΎΠΌΠ° Π΄Π»Ρ ΠΊΠΎΠΌΡΠΎΡΡΠ½ΠΎΠ³ΠΎ ΠΈ ΡΡΡΠ½ΠΎΠ³ΠΎ ΠΏΡΠΎΠΆΠΈΠ²Π°Π½ΠΈΡ Π²ΡΠ΅ΠΉ ΡΠ΅ΠΌΡΠΈ. Π’Π°ΠΊΠΆΠ΅ ΡΠ°ΡΡΠΌΠΎΡΡΠΈΠΌ ΡΠΆΠ΅ Π³ΠΎΡΠΎΠ²ΡΠ΅ ΠΏΡΠΈΠΌΠ΅ΡΡ ΠΏΠ»Π°Π½ΠΈΡΠΎΠ²ΠΊΠΈ Π΄ΠΎΠΌΠΎΠ² ΠΎΡ ΠΏΡΠΎΡΠ΅ΡΡΠΈΠΎΠ½Π°Π»ΡΠ½ΡΡ
Π°ΡΡ
ΠΈΡΠ΅ΠΊΡΠΎΡΠΎΠ².
Π‘ΠΎΠ΄Π΅ΡΠΆΠ°Π½ΠΈΠ΅
Π‘ ΡΠ΅Π³ΠΎ Π½ΡΠΆΠ½ΠΎ Π½Π°ΡΠ°ΡΡ.
ΠΠ°ΠΆΠ½ΡΠ΅ ΠΏΡΠ°Π²ΠΈΠ»Π°.
ΠΡΠΈΠΌΠ΅ΡΡ Π³ΠΎΡΠΎΠ²ΡΡ ΠΏΡΠΎΠ΅ΠΊΡΠΎΠ² ΡΠ°ΡΡΠ½ΡΡ Π΄ΠΎΠΌΠΎΠ²
ΠΡΠΎΠ΅ΠΊΡΠΈΡΠΎΠ²Π°Π½ΠΈΠ΅ ΡΠΎΠ²ΡΠ΅ΠΌΠ΅Π½Π½ΠΎΠ³ΠΎ Π΄ΠΎΠΌΠ°: Π²ΠΎ ΡΠΊΠΎΠ»ΡΠΊΠΎ ΠΎΠ±ΠΎΠΉΠ΄ΡΡΡΡ ΠΌΠ΅ΡΡΡ
4.1 Π¦Π΅Π½ΡΡΠ°Π»ΡΠ½ΠΎΠ΅ ΠΏΡΠ»Π΅ΡΠ΄Π°Π»Π΅Π½ΠΈΠ΅
4.2 Π‘Π°ΡΠ½Π°
4.3 Π‘ΠΠ ΡΠ°Π»ΠΎΠ½
Π‘ ΡΠ΅Π³ΠΎ Π½ΡΠΆΠ½ΠΎ Π½Π°ΡΠ°ΡΡ
ΠΡΠ΅ΠΆΠ΄Π΅ ΡΠ΅ΠΌ Π½Π°ΡΠ°ΡΡ ΡΠ΅ΡΡΠΈΡΡ ΠΏΠ»Π°Π½ Π΄ΠΎΠΌΠ° Π½Π΅ΠΎΠ±Ρ ΠΎΠ΄ΠΈΠΌΠΎ ΠΎΠΏΡΠ΅Π΄Π΅Π»ΠΈΡΡΡΡ Ρ Π΅Π³ΠΎ ΡΠ°Π·ΠΌΠ΅ΡΠΎΠΌ. Π ΡΡΡΠΎΠΈΡΠ΅Π»ΡΡΡΠ²Π΅ ΠΏΡΠΈΠ½ΡΡΡ ΡΠ°ΠΊΠΈΠ΅ Π½ΠΎΡΠΌΡ β Π½Π° ΠΎΠ΄Π½ΠΎΠ³ΠΎ ΡΠ΅Π»ΠΎΠ²Π΅ΠΊΠ° Π½Π΅ΠΎΠ±Ρ ΠΎΠ΄ΠΈΠΌΠΎ 30 ΠΊΠ².ΠΌ. ΠΡΠ»ΠΈ Π΄ΠΎΠΌ ΡΡΡΠΎΠΈΡΡΡΡ Π΄Π»Ρ ΡΠ΅ΠΌΡΠΈ ΠΈΠ· 5 ΡΠ΅Π»ΠΎΠ²Π΅ΠΊ, Π΅Π³ΠΎ ΡΠ΅ΠΊΠΎΠΌΠ΅Π½Π΄ΠΎΠ²Π°Π½Π½Π°Ρ ΠΏΠ»ΠΎΡΠ°Π΄Ρ β 150 ΠΊΠ².ΠΌ.
ΠΠ°Π»Π΅Π΅ ΠΎΠΏΡΠ΅Π΄Π΅Π»ΡΠ΅ΠΌΡΡ Ρ ΡΠΎΡΠΌΠΎΠΉ Π΄ΠΎΠΌΠ°. ΠΡΠΎΡΠΌΠ°ΡΡΠΈΠ²Π°Ρ ΠΊΠ°ΡΠ°Π»ΠΎΠ³ ΡΠ°ΡΡΠ½ΡΡ Π΄ΠΎΠΌΠΎΠ², ΠΎΠ±ΡΠ°ΡΠΈΡΠ΅ Π²Π½ΠΈΠΌΠ°Π½ΠΈΠ΅ Π½Π° ΠΊΠ²Π°Π΄ΡΠ°ΡΠ½ΡΠ΅ ΡΠΎΠΎΡΡΠΆΠ΅Π½ΠΈΡ. Π’Π°ΠΊΠΈΠ΅ ΡΡΡΠΎΠ΅Π½ΠΈΡ ΡΠΊΠΎΠ½ΠΎΠΌΠ½Ρ Π½Π΅ ΡΠΎΠ»ΡΠΊΠΎ Π² ΡΡΡΠΎΠΈΡΠ΅Π»ΡΡΡΠ²Π΅, Π½ΠΎ ΠΈ Π² Π΄Π°Π»ΡΠ½Π΅ΠΉΡΠ΅ΠΌ ΠΎΡΠΎΡΠΌΠ»Π΅Π½ΠΈΠΈ ΠΈ ΡΡ ΠΎΠ΄Π΅.
Π‘ΠΊΠΎΠ»ΡΠΊΠΎ ΡΡΠ°ΠΆΠ΅ΠΉ Π±ΡΠ΄Π΅Ρ Π² Π΄ΠΎΠΌΠ΅? ΠΡΠ»ΠΈ ΠΏΠ»Π°Π½ΠΈΡΡΠ΅ΠΌΠ°Ρ ΠΏΠ»ΠΎΡΠ°Π΄Ρ Π±ΡΠ΄ΡΡΠ΅Π³ΠΎ Π΄ΠΎΠΌΠ° Π½Π΅ Π±ΠΎΠ»Π΅Π΅ 100 ΠΊΠ².
ΠΌ, ΡΠΎ Π·Π°ΡΡΡΠΎΠΉΡΠΈΠΊΠΈ ΡΠ΅ΠΊΠΎΠΌΠ΅Π½Π΄ΡΡΡ ΠΎΡΠ΄Π°ΡΡ ΠΏΡΠ΅Π΄ΠΏΠΎΡΡΠ΅Π½ΠΈΠ΅ ΠΎΠ΄Π½ΠΎΡΡΠ°ΠΆΠ½ΠΎΠΌΡ ΡΡΡΠΎΠ΅Π½ΠΈΡ. ΠΠ²ΡΡ
ΡΡΠ°ΠΆΠ½ΡΠΉ Π·Π°Π³ΠΎΡΠΎΠ΄Π½ΡΠΉ Π΄ΠΎΠΌ ΡΡΡΠΎΡΡ Π² ΡΠΎΠΌ ΡΠ»ΡΡΠ°Π΅, Π΅ΡΠ»ΠΈ Ρ
ΠΎΡΡΡ ΡΠ²Π΅Π»ΠΈΡΠΈΡΡ ΡΠ°Π·ΠΌΠ΅Ρ ΠΏΠ»ΠΎΡΠ°Π΄ΠΈ, Π½ΠΎ Π½Π΅ Π·Π° ΡΡΠ΅Ρ ΡΡΠ°ΡΡΠΊΠ°. Π’ΡΠΈ ΡΡΠ°ΠΆΠ° β ΠΊΡΠ°ΠΉΠ½ΡΡ ΠΌΠ΅ΡΠ°, ΠΊΠΎΠ³Π΄Π° ΡΠ΅ΡΡΠΈΡΠΎΡΠΈΡ ΠΎΡΠ΅Π½Ρ ΠΌΠ°Π»Π°.
ΠΠ°ΠΆΠ½ΠΎ: Π½Π° Π²Π΅ΡΡ Π½ΠΈΡ ΡΡΠ°ΠΆΠ°Ρ ΡΠ°Π·ΠΌΠ΅ΡΠ°ΡΡ ΠΊΠΎΠΌΠ½Π°ΡΡ, ΠΊΠΎΡΠΎΡΡΠ΅ ΡΠ΅Π΄ΠΊΠΎ ΠΏΠΎΡΠ΅ΡΠ°ΡΡΡΡ, ΡΠ°ΡΡΠΎ ΠΏΠΎΠ΄Π½ΠΈΠΌΠ°ΡΡΡΡ ΠΈΠ»ΠΈ ΠΎΠΏΡΡΠΊΠ°ΡΡΡΡ Π½Π΅ΡΠ΄ΠΎΠ±Π½ΠΎ ΠΈ ΡΡΠΎΠΌΠΈΡΠ΅Π»ΡΠ½ΠΎ.
ΠΠΎΠ»ΠΈΡΠ΅ΡΡΠ²ΠΎ ΠΊΠΎΠΌΠ½Π°Ρ ΠΈ ΠΈΡ ΡΠ°Π·ΠΌΠ΅ΡΠ΅Π½ΠΈΠ΅ Π·Π°Π²ΠΈΡΠΈΡ ΠΎΡ ΠΆΠ΅Π»Π°Π½ΠΈΠΉ Π²Π»Π°Π΄Π΅Π»ΡΡΠ΅Π². ΠΠΏΡΠΈΠΌΠ°Π»ΡΠ½ΡΠΉ Π½Π°Π±ΠΎΡ Π΄Π»Ρ ΡΠ°ΡΡΠ½ΠΎΠ³ΠΎ Π΄ΠΎΠΌΠ° ΡΡΠ΅Π΄Π½Π΅ΠΉ Π²ΡΠ»Π΅ΡΠ΅Π½Ρ: Π³ΠΎΡΡΠΈΠ½Π°Ρ, ΠΊΡΡ Π½Ρ, ΡΡΠΎΠ»ΠΎΠ²Π°Ρ, Π²Π°Π½Π½Π°Ρ ΠΈ ΡΡΠ°Π»Π΅ΡΡ (Π½Π° ΠΊΠ°ΠΆΠ΄ΡΡ ΡΡΠΎΠΉΠΊΡ ΠΆΠΈΠ»ΡΡΠΎΠ² Π΄ΠΎΠ»ΠΆΠ½Π° Π±ΡΡΡ ΡΠ²ΠΎΡ Π²Π°Π½Π½Π°Ρ ΠΈ ΡΡΠ°Π»Π΅Ρ), ΡΠΏΠ°Π»ΡΠ½ΠΈ (Π΄Π»Ρ ΠΊΠ°ΠΆΠ΄ΠΎΠ³ΠΎ ΡΠ»Π΅Π½Π° ΡΠ΅ΠΌΡΠΈ), ΠΊΠΎΡΠΈΠ΄ΠΎΡΡ, Π»Π΅ΡΡΠ½ΠΈΡΡ, ΡΠ΅ΡΡΠ°ΡΡ, ΠΏΠΎΠ΄Π²Π°Π» ΠΈ ΠΌΠ°Π½ΡΠ°ΡΠ΄Π°.
ΠΠ°ΠΆΠ½ΠΎ: ΡΠΎΠΎΡΡΠΆΠ΅Π½ΠΈΠ΅ ΠΏΠΎΠ΄Π²Π°Π»Π° Π²ΠΎΠ·ΠΌΠΎΠΆΠ½ΠΎ ΡΠΎΠ»ΡΠΊΠΎ ΠΏΡΠΈ ΠΎΠΏΡΠ΅Π΄Π΅Π»Π΅Π½Π½ΠΎΠΌ ΡΠ΅Π»ΡΠ΅ΡΠ΅ ΠΏΠΎΡΠ²Ρ. ΠΡΠ»ΠΈ Π³ΡΡΠ½ΡΠΎΠ²ΡΠ΅ Π²ΠΎΠ΄Ρ Π½Π°Ρ ΠΎΠ΄ΡΡΡΡ Π±Π»ΠΈΠ·ΠΊΠΎ, ΡΠ°ΠΊΠΎΠ΅ ΡΡΡΠΎΠΈΡΠ΅Π»ΡΡΡΠ²ΠΎ Π½Π΅Π²ΠΎΠ·ΠΌΠΎΠΆΠ½ΠΎ.
ΠΠ°ΠΆΠ½ΡΠ΅ ΠΏΡΠ°Π²ΠΈΠ»Π°
ΠΠ»Π°Π½ΠΈΡΠΎΠ²ΠΊΠ° Π΄ΠΎΠΌΠ° ΡΠ²ΠΎΠΈΠΌΠΈ ΡΡΠΊΠ°ΠΌΠΈ Π½Π΅Π²ΠΎΠ·ΠΌΠΎΠΆΠ½Π° Π±Π΅Π· Π³Π΅ΠΎΠ»ΠΎΠ³ΠΎΡΠ°Π·Π²Π΅Π΄ΠΎΡΠ½ΡΡ ΡΠ°Π±ΠΎΡ. ΠΠ°ΠΊ Π½ΠΈ ΡΡΡΠ°Π½Π½ΠΎ ΡΠ°ΠΊΠΈΠ΅ ΠΈΡΡΠ»Π΅Π΄ΠΎΠ²Π°Π½ΠΈΡ ΠΏΠΎΠ»Π΅Π·Π½Ρ Π½Π΅ ΡΠΎΠ»ΡΠΊΠΎ Π² ΡΡΡΠΎΠΈΡΠ΅Π»ΡΡΡΠ²Π΅, Π½ΠΎ ΠΈ Π½Π° ΡΡΠ°ΠΏΠ΅ ΡΠΎΠ·Π΄Π°Π½ΠΈΡ Π΅Π³ΠΎ ΠΏΠ»Π°Π½Π° Π΄ΠΎΠΌΠ°.
ΠΠΎΡΠ»Π΅ ΠΏΠΎΠ»ΡΡΠ΅Π½ΠΈΡ ΡΠ΅Π·ΡΠ»ΡΡΠ°ΡΠΎΠ² ΡΡΠ°Π½Π΅Ρ ΡΡΠ½ΠΎ ΠΌΠΎΠΆΠ½ΠΎ ΡΠΎΠΎΡΡΠ΄ΠΈΡΡ Π±ΠΎΠ»ΡΡΠΎΠΉ ΠΏΠΎΠ΄Π²Π°Π» ΠΈΠ»ΠΈ Β«ΠΏΠΎΠ΄ Π·Π΅ΠΌΠ»Π΅ΠΉΒ» ΡΡΡΠΎΠΈΡΡ Π½Π΅ Π½ΡΠΆΠ½ΠΎ.ΠΡΠΈ ΠΏΡΠΎΠ΅ΠΊΡΠΈΡΠΎΠ²Π°Π½ΠΈΠΈ ΡΠΊΠΎΠ½ΠΎΠΌΠΈΡΡ Π½Π° ΡΠ°Π·ΠΌΠ΅ΡΠ΅ Π³ΠΎΡΡΠΈΠ½ΠΎΠΉ Π½Π΅Π»ΡΠ·Ρ β ΠΈΠΌΠ΅Π½Π½ΠΎ Π² ΡΡΠΎΠΉ ΠΊΠΎΠΌΠ½Π°ΡΠ΅ Π±ΡΠ΄ΡΡ ΡΠΎΠ±ΠΈΡΠ°ΡΡΡΡ Π±ΠΎΠ»ΡΡΠ΅ Π²ΡΠ΅Π³ΠΎ Π»ΡΠ΄Π΅ΠΉ. ΠΠΏΡΠΈΠΌΠ°Π»ΡΠ½Π°Ρ ΠΏΠ»ΠΎΡΠ°Π΄Ρ Π΄Π»Ρ ΡΡΠ΅Π΄Π½Π΅ΠΉ ΡΠ΅ΠΌΡΠΈ Π½Π΅ ΠΌΠ΅Π½Π΅Π΅ 40 ΠΊΠ².ΠΌ.
Π Π΅ΠΊΠΎΠΌΠ΅Π½Π΄ΡΠ΅ΡΡΡ, ΡΡΠΎΠ±Ρ ΠΊΡΡ Π½Ρ ΠΈ ΡΡΠ°Π»Π΅Ρ Π½Π°Ρ ΠΎΠ΄ΠΈΠ»ΠΈΡΡ Π½Π΅Π΄Π°Π»Π΅ΠΊΠΎ Π΄ΡΡΠ³ ΠΎΡ Π΄ΡΡΠ³Π° β ΡΡΠΎ ΠΎΠ±Π»Π΅Π³ΡΠΈΡ ΠΏΡΠΎΠΊΠ»Π°Π΄ΠΊΡ ΠΊΠΎΠΌΠΌΡΠ½ΠΈΠΊΠ°ΡΠΈΠΉ. Π‘Π°Π½ΡΠ·Π΅Π» Π½Π° Π²ΡΠΎΡΠΎΠΌ ΡΡΠ°ΠΆΠ΅ Π»ΡΡΡΠ΅ ΡΠ°Π·ΠΌΠ΅ΡΠ°ΡΡ Π½Π°Π΄ ΡΠ°Π½ΡΠ·Π»ΠΎΠΌ ΠΏΠ΅ΡΠ²ΠΎΠ³ΠΎ ΡΡΠ°ΠΆΠ°.
ΠΠ΅ ΡΡΠΎΠΈΡ ΠΏΡΠ΅Π½Π΅Π±ΡΠ΅Π³Π°ΡΡ Ρ ΠΎΠ·ΡΠΉΡΡΠ²Π΅Π½Π½ΡΠΌ ΠΏΠΎΠΌΠ΅ΡΠ΅Π½ΠΈΡΠΌΠΈ, ΡΠ°ΠΌ ΠΌΠΎΠΆΠ½ΠΎ Π±ΡΠ΄Π΅Ρ ΡΠ°Π·ΠΌΠ΅ΡΡΠΈΡΡ ΠΊΠΎΡΠ΅Π», Π½Π°Π³ΡΠ΅Π²Π°ΡΠ΅Π»ΡΠ½ΡΠ΅ Π±Π°ΠΊΠΈ, Π½Π°ΡΠΎΡΡ ΠΈ Π΄Ρ.
ΠΡΠΈΠΌΠ΅ΡΡ Π³ΠΎΡΠΎΠ²ΡΡ ΠΏΡΠΎΠ΅ΠΊΡΠΎΠ² ΡΠ°ΡΡΠ½ΡΡ Π΄ΠΎΠΌΠΎΠ²
Π Π°ΡΡΠΌΠΎΡΡΠΈΠΌ ΠΈΠ½ΡΠ΅ΡΠ΅ΡΠ½ΡΠ΅ Π²Π°ΡΠΈΠ°Π½ΡΡ ΠΏΠ»Π°Π½ΠΈΡΠΎΠ²ΠΊΠΈ Π΄ΠΎΠΌΠΎΠ². ΠΠ»Ρ Π½Π°Π³Π»ΡΠ΄Π½ΠΎΡΡΠΈ ΠΊ ΠΊΠ°ΠΆΠ΄ΠΎΠΌΡ ΠΎΠΏΠΈΡΠ°Π½ΠΈΡ ΠΏΡΠΈΠΊΡΠ΅ΠΏΠ»Π΅Π½Ρ ΠΏΠΎΠ΄ΡΠΎΠ±Π½ΡΠ΅ ΠΏΠ»Π°Π½Ρ Π΄ΠΎΠΌΠΎΠ².
ΠΡΠΎΠ΅ΠΊΡ 1 βΠ΄ΠΎΠΌ ΠΎΠ±ΡΠ΅ΠΉ ΠΏΠ»ΠΎΡΠ°Π΄ΡΡ 170 ΠΊΠ².ΠΌ Ρ ΠΌΠ°Π½ΡΠ°ΡΠ΄ΠΎΠΉ, Π³Π°ΡΠ°ΠΆΠΎΠΌ ΠΈ ΠΎΡΠΊΡΡΡΠΎΠΉ ΡΠ΅ΡΡΠ°ΡΠΎΠΉ.
Π‘ΠΈΠ»ΡΠ½Π°Ρ ΡΡΠΎΡΠΎΠ½Π° Π΄Π°Π½Π½ΠΎΠ³ΠΎ ΠΏΡΠΎΠ΅ΠΊΡΠ° β ΡΡΠΎ Π²ΠΎΠ·ΠΌΠΎΠΆΠ½ΠΎΡΡΡ ΡΠ°Π·ΠΌΠ΅ΡΡΠΈΡΡ ΡΠ°ΠΊΠΎΠΉ Π΄ΠΎΠΌ Π½Π° Π½Π΅Π±ΠΎΠ»ΡΡΠΎΠΌ ΡΡΠ°ΡΡΠΊΠ΅. ΠΡΠΎΡΡΡΠ°Π½ΡΡΠ²ΠΎ ΡΠΊΠΎΠ½ΠΎΠΌΠΈΡΡΡ Π²Π΅Π·Π΄Π΅: Π²Ρ
ΠΎΠ΄ ΠΈΠ· Π³Π°ΡΠ°ΠΆΠ° Π² ΠΊΠΎΡΡΠ΅Π΄ΠΆ ΡΠ°ΡΠΏΠΎΠ»ΠΎΠΆΠ΅Π½ ΠΏΠΎΠ΄ Π»Π΅ΡΡΠ½ΠΈΡΠ΅ΠΉ, Π² ΠΏΡΠΈΡ
ΠΎΠΆΠ΅ΠΉ ΡΡΡΠ°Π½ΠΎΠ²Π»Π΅Π½ ΠΎΠ³ΡΠΎΠΌΠ½ΡΠΉ Π²ΡΡΡΠΎΠ΅Π½Π½ΡΠΉ ΡΠΊΠ°Ρ, Π²ΡΠΏΠΎΠ»Π½ΡΡΡΠΈΠΉ ΡΠΎΠ»Ρ Π³Π°ΡΠ΄Π΅ΡΠΎΠ±Π½ΠΎΠΉ.
ΠΠΈΡΡΡΠ°Π»ΡΠ½ΠΎΠ΅ ΡΠΎΡΠΎ Π΄ΠΎΠΌΠ°
ΠΡΡ Π½Ρ ΠΏΡΠΎΡΡΠΎΡΠ½Π°Ρ, ΡΠΎΠ΅Π΄ΠΈΠ½ΡΡΡΠ°ΡΡΡ Ρ Ρ ΠΎΠ»Π»ΠΎΠΌ ΠΈ Π³ΠΎΡΡΠΈΠ½ΠΎΠΉ. ΠΠ±Π΅Π΄Π΅Π½Π½ΡΠΉ ΡΡΠΎΠ» Π½Π° 6 ΠΏΠ΅ΡΡΠΎΠ½ ΡΠ°ΡΠΏΠΎΠ»ΠΎΠΆΠ΅Π½Π½ΡΠΉ Π½Π° ΠΊΡΡ Π½Π΅ ΠΎΡΠ²Π΅ΡΠ°Π΅ΡΡΡ Π½Π΅ ΡΠΎΠ»ΡΠΊΠΎ ΠΈΡΠΊΡΡΡΡΠ²Π΅Π½Π½ΡΠΌ ΡΠ²Π΅ΡΠΎΠΌ, Π½ΠΎ ΠΈ ΡΡΠ΄ΠΎΠΌ ΡΠ°ΡΠΏΠΎΠ»ΠΎΠΆΠ΅Π½Π½ΡΠΌ Π±ΠΎΠ»ΡΡΠΈΠΌ ΠΎΠΊΠ½ΠΎΠΌ. Π‘ΠΏΠ°Π»Π΅Π½ β 3, ΠΏΡΠΎΠ΅ΠΊΡ ΡΠ°Π·ΡΠ°Π±Π°ΡΡΠ²Π°Π»ΡΡ Π΄Π»Ρ ΡΠ΅ΠΌΡΠΈ ΠΈΠ· 4 ΡΠ΅Π»ΠΎΠ²Π΅ΠΊ. ΠΠ°Π΄ Π΄ΠΎΠΌΠΎΠΌ ΠΈ Π³Π°ΡΠ°ΠΆΠΎΠΌ ΡΠ°Π·ΠΌΠ΅ΡΠ΅Π½Ρ ΠΌΠ°Π½ΡΠ°ΡΠ΄Ρ β ΠΊΠΎΠΌΠ½Π°ΡΡ ΠΌΠΎΠ³ΡΡ ΠΈΡΠΏΠΎΠ»ΡΠ·ΠΎΠ²Π°ΡΡΡΡ ΠΊΠ°ΠΊ Π·ΠΎΠ½Ρ ΠΎΡΠ΄ΡΡ Π°, ΡΠΏΠΎΡΡΠ·Π°Π»Ρ ΠΈΠ»ΠΈ Π±ΠΈΠ»ΡΡΡΠ΄Π½ΡΠ΅.
Π’Π΅ΡΡΠ°ΡΠ° ΡΠΎΠ΅Π΄ΠΈΠ½ΡΠ΅Ρ Π΄ΠΎΠΌ Ρ ΡΠ°Π΄ΠΎΠΌ β Π²ΡΠΉΡΠΈ Π½Π° Π½Π΅Π΅ ΠΌΠΎΠΆΠ½ΠΎ Ρ Π³ΠΎΡΡΠΈΠ½ΠΎΠΉ.
ΠΡΠΎΠ΅ΠΊΡ 2 β Π΄ΠΎΠΌ ΠΎΠ±ΡΠ΅ΠΉ ΠΏΠ»ΠΎΡΠ°Π΄ΡΡ 170,9 ΠΊΠ².ΠΌ. Π΄Π²ΡΡ ΡΡΠ°ΠΆΠ½ΡΠΉ Ρ ΡΠ΅ΡΡΠ°ΡΠΎΠΉ ΠΈ Π³Π°ΡΠ°ΠΆΠΎΠΌ.
ΠΠ½ΡΡΡΠ΅Π½Π½ΡΡ ΠΏΠ»Π°Π½ΠΈΡΠΎΠ²ΠΊΠ° Π΄ΠΎΠΌΠ° ΡΠ°Π·Π±ΠΈΡΠ° Π½Π° Π΄Π²Π° ΡΡΠΎΠ²Π½Ρ β Π΄Π½Π΅Π²Π½Π°Ρ ΠΈ Π½ΠΎΡΠ½Π°Ρ ΡΠ°ΡΡΡ. ΠΠ½Π΅Π²Π½Π°Ρ Π·ΠΎΠ½Π° ΠΏΡΠΎΡΡΠΎΡΠ½Π°Ρ, ΡΠ²Π΅ΡΠ»Π°Ρ β ΠΊΡΡ Π½Ρ ΠΈ Π³ΠΎΡΡΠΈΠ½Π°Ρ ΠΎΠ±ΡΠ΅Π΄ΠΈΠ½Π΅Π½Ρ. Π‘ΠΈΡΡΠ΅ΠΌΠ° Π²Ρ ΠΎΠ΄Π° ΠΈ Π²ΡΡ ΠΎΠ΄Π° ΠΈΠ· Π΄ΠΎΠΌΠ° ΠΌΠ°ΠΊΡΠΈΠΌΠ°Π»ΡΠ½ΠΎ ΠΊΠΎΠΌΡΠΎΡΡΠ½Π°. ΠΠ· Π³Π°ΡΠ°ΠΆΠ° ΠΌΠΎΠΆΠ½ΠΎ Π·Π°ΠΉΡΠΈ Π² Π΄ΠΎΠΌ ΡΠ΅ΡΠ΅Π· ΡΠ²Π΅ΡΠ»ΡΡ Π³ΠΎΡΡΠΈΠ½ΡΡ, ΠΈΠ· ΡΠΎΠ³ΠΎ ΠΆΠ΅ Π³Π°ΡΠ°ΠΆΠ° ΠΌΠΎΠΆΠ½ΠΎ ΠΏΡΠΎΠΉΡΠΈ Π² ΡΠ°Π΄.
Π‘Ρ
Π΅ΠΌΠ° Π΄ΠΎΠΌΠ° ΠΏΡΠ΅Π΄ΡΡΠΌΠ°ΡΡΠΈΠ²Π°Π΅Ρ Π½Π΅ΡΠΊΠΎΠ»ΡΠΊΠΎ ΡΠ΅ΡΡΠ°Ρ β ΡΠ°ΠΌΠ°Ρ Π±ΠΎΠ»ΡΡΠ°Ρ ΠΊΡΡΡΠ°Ρ. ΠΠΎΠ΄ Π½Π°Π²Π΅ΡΠΎΠΌ Π»Π΅Π³ΠΊΠΎ ΡΠ°Π·ΠΌΠ΅ΡΡΠΈΡΡΡ Π±ΠΎΠ»ΡΡΠΎΠΉ ΠΎΠ±Π΅Π΄Π΅Π½Π½ΡΠΉ ΡΡΠΎΠ».
ΠΠ° ΠΏΠ΅ΡΠ²ΠΎΠΌ ΡΡΠ°ΠΆΠ΅ Π΄ΠΎΠΌΠ° ΠΏΡΠ΅Π΄ΡΡΠΌΠΎΡΡΠ΅Π½Π° Π΄ΠΎΠΏΠΎΠ»Π½ΠΈΡΠ΅Π»ΡΠ½Π°Ρ ΠΊΠΎΠΌΠ½Π°ΡΠ° β ΠΌΠΎΠΆΠ΅Ρ ΠΈΡΠΏΠΎΠ»ΡΠ·ΠΎΠ²Π°ΡΡΡΡ Π² ΠΊΠ°ΡΠ΅ΡΡΠ²Π΅ ΠΊΠ°Π±ΠΈΠ½Π΅ΡΠ°. Π‘ΠΏΠ°Π»Π΅Π½ 4, Π΄ΠΎΠΌ ΡΠ°ΡΡΡΠΈΡΠ°Π½ Π½Π° ΡΠ΅ΠΌΡΡ ΠΈΠ· 4-5 ΡΠ΅Π»ΠΎΠ²Π΅ΠΊ.
ΠΡΠΎΠ΅ΠΊΡ 3 β Π΄ΠΎΠΌ ΠΎΠ±ΡΠ΅ΠΉ ΠΏΠ»ΠΎΡΠ°Π΄ΡΡ 127 ΠΊΠ².ΠΌ. ΠΎΠ΄Π½ΠΎΡΡΠ°ΠΆΠ½ΡΠΉ Ρ Π³Π°ΡΠ°ΠΆΠΎΠΌ ΠΈ ΠΊΡΡΡΠΎΠΉ ΡΠ΅ΡΡΠ°ΡΠΎΠΉ.
ΠΠ»Π°Π½ Π΄ΠΎΠΌΠ° ΠΎΡΠ»ΠΈΡΠ°Π΅ΡΡΡ ΠΏΡΠΎΡΡΠΎΠΉ ΠΈ Π»Π°ΠΊΠΎΠ½ΠΈΡΠ½ΠΎΠΉ Π²Π½ΡΡΡΠ΅Π½Π½Π΅ΠΉ ΠΏΠ»Π°Π½ΠΈΡΠΎΠ²ΠΊΠΎΠΉ. ΠΠΎ Π²ΡΠ΅ΠΌ Π΄ΠΎΠΌΠ΅ ΡΡΡΠΎΠ³ΠΎΠ΅ Π·ΠΎΠ½ΠΈΡΠΎΠ²Π°Π½ΠΈΠ΅ β Π΄Π½Π΅Π²Π½Π°Ρ ΠΈ Π½ΠΎΡΠ½Π°Ρ ΡΠ°ΡΡΡ Π²ΡΠ½Π΅ΡΠ΅Π½Ρ Π² ΠΎΡΠ΄Π΅Π»ΡΠ½ΡΠ΅ Π±Π»ΠΎΠΊΠΈ. ΠΡΡ Π½Ρ ΠΏΡΠΎΡΡΠΎΡΠ½Π°Ρ 10 ΠΊΠ².ΠΌ ΠΈ ΠΎΡΠ²Π΅ΡΠ΅Π½Π° Π±ΠΎΠ»ΡΡΠΈΠΌ ΠΎΠΊΠ½ΠΎΠΌ. Π Π΄ΠΎΠΌΠ΅ ΠΏΡΠ΅Π΄ΡΡΠΌΠΎΡΡΠ΅Π½Π° ΠΊΠ»Π°Π΄ΠΎΠ²Π°Ρ Ρ Π²ΡΡ ΠΎΠ΄ΠΎΠΌ Π² ΠΊΡΡ Π½Ρ.
ΠΡΠΎΡΡΡΠ°Π½ΡΡΠ²ΠΎ ΠΊΡΡ Π½ΠΈ ΠΎΠ±ΡΠ΅Π΄ΠΈΠ½Π΅Π½ΠΎ Ρ Π³ΠΎΡΡΠΈΠ½ΠΎΠΉ, ΡΡΠΎ ΠΏΠΎΠ·Π²ΠΎΠ»ΡΠ΅Ρ Π²ΠΈΠ·ΡΠ°Π»ΡΠ½ΠΎ ΡΠ°ΡΡΠΈΡΠΈΡΡ ΠΊΠΎΠΌΠ½Π°ΡΡ. Π Π°Π·Π΄Π΅Π»ΡΡΡΠ΅ΠΉ Π³ΡΠ°Π½ΠΈΡΠ΅ΠΉ ΡΡΠΈΡ Π΄Π²ΡΡ ΠΊΠΎΠΌΠ½Π°Ρ Π²ΡΡΡΡΠΏΠ°Π΅Ρ ΠΎΠ±Π΅Π΄Π΅Π½Π½ΡΠΉ ΡΡΠΎΠ». ΠΡΡ ΠΎΠ΄ Π½Π° ΠΊΡΡΡΡΡ ΡΠ΅ΡΡΠ°ΡΡ Π²ΠΎΠ·ΠΌΠΎΠΆΠ΅Π½ ΡΠ΅ΡΠ΅Π· Π³ΠΎΡΡΠΈΠ½ΡΡ ΡΠ΅ΡΠ΅Π΄ Π΄Π²ΡΡ ΡΡΠ²ΠΎΡΡΠ°ΡΡΡ ΡΠΈΡΠΎΠΊΡΡ Π΄Π²Π΅ΡΡ. Π’Π°ΠΊΠΎΠΉ ΠΏΡΠΈΠ΅ΠΌ ΠΎΠ±ΡΠ΅Π΄ΠΈΠ½ΡΠ΅Ρ Π³ΠΎΡΡΠΈΠ½ΡΡ Π½Π΅ ΡΠΎΠ»ΡΠΊΠΎ Ρ ΡΠ΅ΡΡΠ°ΡΠΎΠΉ, Π½ΠΎ ΠΈ ΡΠ°Π΄ΠΎΠΌ.
ΠΡΠΎΠ΅ΠΊΡΠΈΡΠΎΠ²Π°Π½ΠΈΠ΅ ΡΠΎΠ²ΡΠ΅ΠΌΠ΅Π½Π½ΠΎΠ³ΠΎ Π΄ΠΎΠΌΠ°: Π²ΠΎ ΡΠΊΠΎΠ»ΡΠΊΠΎ ΠΎΠ±ΠΎΠΉΠ΄ΡΡΡΡ ΠΌΠ΅ΡΡΡ
ΠΡΠ΅ ΠΌΠ΅ΡΡΠ°ΡΡ ΠΎ ΡΠΎΠ²ΡΠ΅ΠΌΠ΅Π½Π½ΠΎΠΉ Π΄ΠΎΠΌΠ΅, Π½ΠΎ Π΄ΠΎΠ±Π°Π²Π»ΡΡ Π² ΠΏΠ»Π°Π½ Π΄ΠΎΠΌΠ° Π½ΠΎΠ²ΡΠ΅ ΡΠ»Π΅ΠΌΠ΅Π½ΡΡ Π½Π΅ ΠΏΡΠ΅Π΄ΡΡΠ°Π²Π»ΡΡΡ, Π²ΠΎ ΡΠΊΠΎΠ»ΡΠΊΠΎ ΠΎΠ±ΠΎΠΉΠ΄Π΅ΡΡΡ Π² ΠΈΡΠΎΠ³Π΅ ΡΠ°ΠΊΠ°Ρ ΠΌΠΎΠ΄Π΅ΡΠ½ΠΈΠ·Π°ΡΠΈΡ.
Π Π°Π·Π±Π΅ΡΠ΅ΠΌΡΡ Π² Π²ΠΎΠΏΡΠΎΡΠ΅, ΡΡΠΎΠ±Ρ Π½Π΅ ΡΡΠ°ΡΠΈΡΡ Π²ΡΠ΅ΠΌΡ Π½Π° ΡΠ΅Π°Π»ΠΈΠ·Π°ΡΠΈΡ Π½Π΅ΠΏΠΎΠ΄Ρ
ΠΎΠ΄ΡΡΠ΅Π³ΠΎ ΠΏΡΠΎΠ΅ΠΊΡΠ°.
Π¦Π΅Π½ΡΡΠ°Π»ΡΠ½ΠΎΠ΅ ΠΏΡΠ»Π΅ΡΠ΄Π°Π»Π΅Π½ΠΈΠ΅
ΠΡΠΎ ΡΠ»ΠΎΠΆΠ½Π°Ρ ΠΈΠ½ΠΆΠ΅Π½Π΅ΡΠ½Π°Ρ Π·Π°Π΄Π°ΡΠ°, ΠΊΠΎΡΠΎΡΠ°Ρ ΠΏΡΠ΅Π΄ΡΡΠ°Π²Π»ΡΠ΅Ρ ΡΠΎΠ±ΠΎΠΉ Β«ΡΠΌΠ½ΡΠΉΒ» ΠΏΡΠ»Π΅ΡΠΎΡ. ΠΠ΅ Π³Π»Π°Π²Π½ΡΠ΅ ΠΏΠ»ΡΡΡ β ΠΌΠ΅Π½ΡΡΠ΅ ΠΏΡΠ»ΠΈ Π² Π΄ΠΎΠΌΠ΅ (Π²ΡΠ°ΡΡΠ²Π°Π΅ΠΌΡΠΉ Ρ ΠΏΡΠ»ΡΡ Π²ΠΎΠ·Π΄ΡΡ Π²ΡΠ±ΡΠ°ΡΡΠ²Π°Π΅ΡΡΡ ΡΡΠ°Π·Ρ Π½Π°ΡΡΠΆΡ Π΄ΠΎΠΌΠ°), ΠΌΠ΅Π½ΡΡΠ΅ ΡΡΠΌΠ° ΠΎΡ ΡΠ°Π±ΠΎΡΡ, Π½Π΅ Π½ΡΠΆΠ½ΠΎ Π½ΠΎΡΠΈΡΡ Π·Π° ΡΠΎΠ±ΠΎΠΉ ΠΏΡΠ»Π΅ΡΠΎΡ, ΠΏΡΠ»Π΅ΡΠ±ΠΎΡΠ½ΠΈΠΊ Π½ΡΠΆΠ½ΠΎ ΡΠΈΡΡΠΈΡΡ Π²ΡΠ΅Π³ΠΎ 3 ΡΠ°Π·Π° Π² Π³ΠΎΠ΄.
ΠΠ°ΠΆΠ½ΠΎ: Π΅ΡΠ»ΠΈ ΠΏΠ»Π°Π½ΠΈΡΡΠ΅ΡΡΡ ΡΡΡΠ°Π½ΠΎΠ²ΠΈΡΡ ΡΠΈΡΡΠ΅ΠΌΡ ΠΏΡΠ»Π΅ΡΠ΄Π°Π»Π΅Π½ΠΈΡ Π² ΡΠΆΠ΅ ΠΏΠΎΡΡΡΠΎΠ΅Π½Π½ΠΎΠΌ Π΄ΠΎΠΌΠ΅, ΡΠΎ Π½Π΅ΠΎΠ±Ρ ΠΎΠ΄ΠΈΠΌΠΎ ΠΏΠΎΠ½ΠΈΠΌΠ°ΡΡ, ΡΡΠΎ ΠΏΠΎΡΡΠ΅Π±ΡΠ΅ΡΡΡ ΡΠ°ΡΡΠΈΡΠ½ΠΎΠ΅ ΡΠ°Π·ΡΡΡΠ΅Π½ΠΈΠ΅ ΡΡΠ΅Π½.
ΠΠ±ΠΎΠΉΠ΄Π΅ΡΡΡ ΡΠΈΡΡΠ΅ΠΌΠ° Π½Π΅ Π΄Π΅ΡΠ΅Π²ΠΎ, Π²ΡΠ΅ Π·Π°Π²ΠΈΡΠΈΡ ΠΎΡ ΠΏΠ»ΠΎΡΠ°Π΄ΠΈ Π΄ΠΎΠΌΠ°. ΠΠ»Ρ Π΄ΠΎΠΌΠ° ΠΏΠ»ΠΎΡΠ°Π΄ΡΡ 180 ΠΊΠ².ΠΌ ΡΡΠΎΠΈΠΌΠΎΡΡΡ ΡΠ΅Π½ΡΡΠ°Π»ΡΠ½ΠΎΠ³ΠΎ ΠΏΡΠ»Π΅ΡΠ΄Π°Π»Π΅Π½ΠΈΡ Π±ΡΠ΄Π΅Ρ ΠΎΡ 1600 Π΄ΠΎΠ».
Π‘Π°ΡΠ½Π°
Π‘Π°ΡΠ½Π° Π²ΠΎΡΡΡΠ°Π½Π°Π²Π»ΠΈΠ²Π°Π΅Ρ ΡΠΈΠ»Ρ, ΠΎΡΠΈΡΠ°Π΅Ρ ΠΎΡΠ³Π°Π½ΠΈΠ·ΠΌ ΠΎΡ ΡΠΎΠΊΡΠΈΠ½ΠΎΠ², ΡΠ»ΡΡΡΠ°Π΅Ρ ΡΠΌΠΎΡΠΈΠΎΠ½Π°Π»ΡΠ½ΠΎΠ΅ ΡΠΎΡΡΠΎΡΠ½ΠΈΡ. ΠΡΠ΅ΠΆΠ΄Π΅ ΡΠ΅ΠΌ ΡΡΡΠ°Π½ΠΎΠ²ΠΈΡΡ Π΅Π΅ Π² ΡΠ°ΡΡΠ½ΠΎΠΌ Π΄ΠΎΠΌΠ΅ Π½Π΅ΠΎΠ±Ρ
ΠΎΠ΄ΠΈΠΌΠΎ Π·Π½Π°ΡΡ, ΡΡΠΎ ΠΏΠΎΠΌΠ΅ΡΠ΅Π½ΠΈΠ΅ Π΄ΠΎΠ»ΠΆΠ½ΠΎ ΠΈΠΌΠ΅ΡΡ ΠΊΠ°ΡΠ΅ΡΡΠ²Π΅Π½Π½ΡΡ Π²Π΅Π½ΡΠΈΠ»ΡΡΠΈΡ, ΡΡΠ΅Π½Ρ ΠΈ ΠΏΠΎΡΠΎΠ»ΠΎΠΊ Π΄ΠΎΠ»ΠΆΠ½Ρ Π±ΡΡΡ ΠΎΠ±ΡΠΈΡΡ ΡΠΎΠΎΡΠ²Π΅ΡΡΡΠ²ΡΡΡΠΈΠΌ Π²ΠΈΠ΄ΠΎΠΌ Π΄Π΅ΡΠ΅Π²Π°, Π»ΡΠ±ΠΎΠΉ Π²ΠΈΠ΄ ΠΊΠ°ΠΌΠ΅Π½ΠΊΠΈ Π΄ΠΎΠ»ΠΆΠ΅Π½ Π±ΡΡΡ ΡΡΡΠ°Π½ΠΎΠ²Π»Π΅Π½ ΠΏΡΠΎΡΠ΅ΡΡΠΈΠΎΠ½Π°Π»ΠΎΠΌ.
ΠΠ°ΠΆΠ½ΠΎ: Π½Π΅ ΠΏΡΠ°Π²ΠΈΠ»ΡΠ½ΠΎ ΠΎΡΠ³Π°Π½ΠΈΠ·ΠΎΠ²Π°Π½Π½Π°Ρ ΡΠ°ΡΠ½Π° ΠΌΠΎΠΆΠ΅Ρ ΠΏΡΠΈΠ²Π΅ΡΡΠΈ ΠΊ ΠΎΠ±ΡΠ°Π·ΠΎΠ²Π°Π½ΠΈΡ Π½Π° ΡΡΠ΅Π½Π°Ρ Π³ΡΠΈΠ±ΠΊΠ° ΠΈ ΠΏΠ»Π΅ΡΠ΅Π½ΠΈ.
Π‘Π°ΡΠ½Ρ ΠΌΠΎΠΆΠ½ΠΎ ΠΏΠΎΡΡΡΠΎΠΈΡΡ ΡΠ°ΠΌΠΎΡΡΠΎΡΡΠ΅Π»ΡΠ½ΠΎ, Π° ΠΌΠΎΠΆΠ½ΠΎ ΠΊΡΠΏΠΈΡΡ ΡΠΆΠ΅ Π³ΠΎΡΠΎΠ²ΡΠΉ ΠΊΠΎΠΌΠΏΠ»Π΅ΠΊΡ. Π‘ΡΠΎΠΈΠΌΠΎΡΡΡ ΠΎΠ±ΠΎΠΈΡ ΠΏΡΠΎΠ΅ΠΊΡΠΎΠ² ΠΏΡΠΈΠ±Π»ΠΈΠ·ΠΈΡΠ΅Π»ΡΠ½ΠΎ ΠΎΠ΄ΠΈΠ½Π°ΠΊΠΎΠ²Π°Ρ, Π·Π°ΡΡΠ°ΡΡ ΠΏΠΎ ΠΏΠ΅ΡΠ²ΠΎΠΌΡ ΠΏΡΠΎΠ΅ΠΊΡΡ ΠΏΡΠΎΡΡΠΎ ΡΠ°ΡΡΡΠ½ΡΡΡΡ. Π‘Π°ΠΌΡΠΉ ΠΏΡΠΎΡΡΠΎΠΉ Π²Π°ΡΠΈΠ°Π½Ρ Π΄Π²ΡΡ ΠΌΠ΅ΡΡΠ½ΠΎΠΉ ΡΠ°ΡΠ½Ρ ΠΎΠ±ΠΎΠΉΠ΄Π΅ΡΡΡ Π² 1800 Π΄ΠΎΠ».
Π‘ΠΠ ΡΠ°Π»ΠΎΠ½
Π Π΅ΡΡ ΠΈΠ΄Π΅Ρ ΠΎ ΡΠΏΠ΅ΡΠΈΠ°Π»ΡΠ½ΠΎΠΌ Π²ΠΈΠ΄Π΅ Π²Π°Π½Π½-Π±Π°ΡΡΠ΅ΠΉΠ½ΠΎΠ² Π‘ΠΠ, ΠΊΠΎΡΠΎΡΡΠ΅ ΡΠΎΠ·Π΄Π°Π½Ρ Π½ΠΈ Π΄Π»Ρ ΠΌΡΡΡΡ ΡΠ΅Π»Π°. ΠΠΎΠ΄Π° Π² Π½ΠΈΡ Π½Π΅ ΠΌΠ΅Π½ΡΠ΅ΡΡΡ ΠΏΠΎΡΠ»Π΅ ΠΊΠ°ΠΆΠ΄ΠΎΠ³ΠΎ ΠΊΡΠΏΠ°Π½ΠΈΡ Π·Π° ΡΡΠ΅Ρ ΠΈΡΠΏΠΎΠ»ΡΠ·ΠΎΠ²Π°Π½ΠΈΡ ΡΠΎΠ±ΡΡΠ²Π΅Π½Π½ΠΎΠΉ ΡΠΈΡΡΠ΅ΠΌΡ ΡΠΈΠ»ΡΡΡΠ°ΡΠΈΠΈ ΠΈ Π΄Π΅Π·ΠΈΠ½ΡΠ΅ΠΊΡΠΈΠΈ. ΠΡΠΎ Π±ΠΎΠ»Π΅Π΅ ΡΠΎΠ²ΡΠ΅ΠΌΠ΅Π½Π½ΡΠΉ Π²Π°ΡΠΈΠ°Π½Ρ Π΄ΠΆΠ°ΠΊΡΠ·ΠΈ, ΠΎΠΊΠ°Π·ΡΠ²Π°Π΅Ρ ΠΎΠΌΠΎΠ»Π°ΠΆΠΈΠ²Π°ΡΡΠ΅Π΅ Π΄Π΅ΠΉΡΡΠ²ΠΈΠ΅ Π½Π° ΠΊΠΎΠΆΡ, ΡΠ»ΡΡΡΠ°Π΅Ρ ΠΎΠ±ΠΌΠ΅Π½ Π²Π΅ΡΠ΅ΡΡΠ².
ΠΠ°ΠΆΠ½ΠΎ: ΡΠ°ΠΊΠ°Ρ Π·Π°ΠΏΠΎΠ»Π½Π΅Π½Π½Π°Ρ Π‘ΠΠ Π²Π°Π½Π½Π° Π½Π° 3 ΡΠ΅Π»ΠΎΠ²Π΅ΠΊ Π²Π΅ΡΠΈΡ ΠΎΠΊΠΎΠ»ΠΎ 1150 ΠΊΠ³, ΠΏΡΠ΅ΠΆΠ΄Π΅ ΡΠ΅ΠΌ ΡΡΡΠ°Π½ΠΎΠ²ΠΈΡΡ Π΅Π΅ Π² Π΄ΠΎΠΌΠ΅ Π½Π΅ΠΎΠ±Ρ ΠΎΠ΄ΠΈΠΌΠΎ ΡΠ±Π΅Π΄ΠΈΡΡΡ Π² ΠΊΠ°ΡΠ΅ΡΡΠ²Π΅ Π½Π°ΠΏΠΎΠ»ΡΠ½ΡΡ ΠΏΠ΅ΡΠ΅ΠΊΡΡΡΠΈΠΉ.
Π‘ΡΠΎΠΈΠΌΠΎΡΡΡ Π±Π°ΡΡΠ΅ΠΉΠ½Π° Π‘ΠΠ ΠΎΡ 9 000 Π΄ΠΎΠ».
Normal 0 false false false RU X-NONE X-NONEΠΠΈΡΡΡΠ°Π»ΡΠ½ΠΎΠ΅ ΡΠΎΡΠΎ Π΄ΠΎΠΌΠ°
ΠΡΡ
Π½Ρ ΠΏΡΠΎΡΡΠΎΡΠ½Π°Ρ, ΡΠΎΠ΅Π΄ΠΈΠ½ΡΡΡΠ°ΡΡΡ Ρ Ρ
ΠΎΠ»Π»ΠΎΠΌ ΠΈ Π³ΠΎΡΡΠΈΠ½ΠΎΠΉ.
ΠΠ±Π΅Π΄Π΅Π½Π½ΡΠΉ ΡΡΠΎΠ» Π½Π° 6 ΠΏΠ΅ΡΡΠΎΠ½ ΡΠ°ΡΠΏΠΎΠ»ΠΎΠΆΠ΅Π½Π½ΡΠΉ Π½Π° ΠΊΡΡ
Π½Π΅ ΠΎΡΠ²Π΅ΡΠ°Π΅ΡΡΡ Π½Π΅ ΡΠΎΠ»ΡΠΊΠΎ ΠΈΡΠΊΡΡΡΡΠ²Π΅Π½Π½ΡΠΌ ΡΠ²Π΅ΡΠΎΠΌ, Π½ΠΎ ΠΈ ΡΡΠ΄ΠΎΠΌ ΡΠ°ΡΠΏΠΎΠ»ΠΎΠΆΠ΅Π½Π½ΡΠΌ Π±ΠΎΠ»ΡΡΠΈΠΌ ΠΎΠΊΠ½ΠΎΠΌ. Π‘ΠΏΠ°Π»Π΅Π½ β 3, ΠΏΡΠΎΠ΅ΠΊΡ ΡΠ°Π·ΡΠ°Π±Π°ΡΡΠ²Π°Π»ΡΡ Π΄Π»Ρ ΡΠ΅ΠΌΡΠΈ ΠΈΠ· 4 ΡΠ΅Π»ΠΎΠ²Π΅ΠΊ. ΠΠ°Π΄ Π΄ΠΎΠΌΠΎΠΌ ΠΈ Π³Π°ΡΠ°ΠΆΠΎΠΌ ΡΠ°Π·ΠΌΠ΅ΡΠ΅Π½Ρ ΠΌΠ°Π½ΡΠ°ΡΠ΄Ρ β ΠΊΠΎΠΌΠ½Π°ΡΡ ΠΌΠΎΠ³ΡΡ ΠΈΡΠΏΠΎΠ»ΡΠ·ΠΎΠ²Π°ΡΡΡΡ ΠΊΠ°ΠΊ Π·ΠΎΠ½Ρ ΠΎΡΠ΄ΡΡ
Π°, ΡΠΏΠΎΡΡΠ·Π°Π»Ρ ΠΈΠ»ΠΈ Π±ΠΈΠ»ΡΡΡΠ΄Π½ΡΠ΅.
Π’Π΅ΡΡΠ°ΡΠ° ΡΠΎΠ΅Π΄ΠΈΠ½ΡΠ΅Ρ Π΄ΠΎΠΌ Ρ ΡΠ°Π΄ΠΎΠΌ β Π²ΡΠΉΡΠΈ Π½Π° Π½Π΅Π΅ ΠΌΠΎΠΆΠ½ΠΎ Ρ Π³ΠΎΡΡΠΈΠ½ΠΎΠΉ.
ΠΠΎΠ±Π°Π²ΠΈΡΡ ΠΊΠΎΠΌΠΌΠ΅Π½ΡΠ°ΡΠΈΠΉ
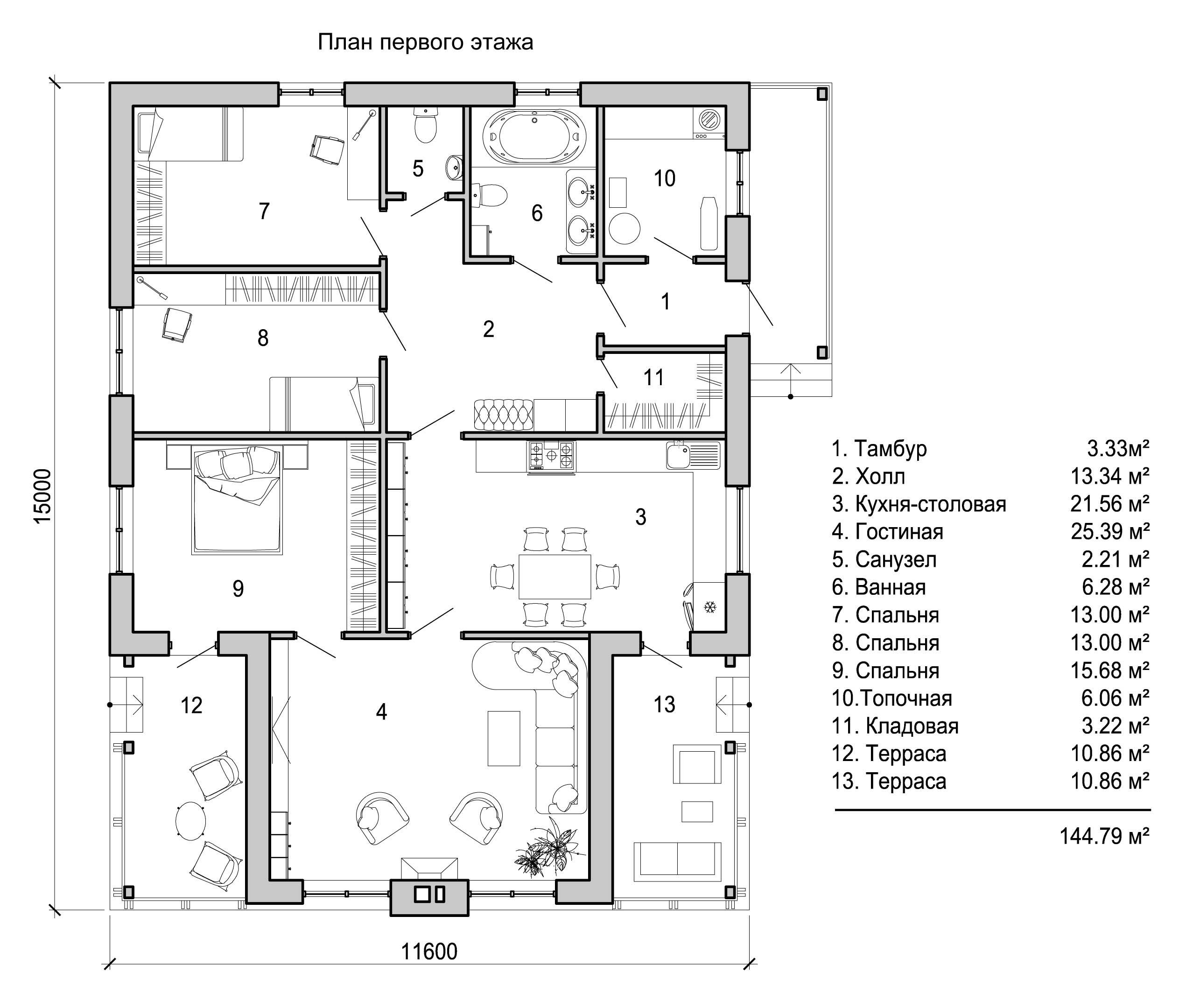
ΠΠ»Π°Π½Ρ ΡΠ°ΡΡΠ½ΡΡ Π΄ΠΎΠΌΠΎΠ² ΡΠ°Π·ΠΌΠ΅ΡΠΎΠΌ 9 Π½Π° 10 ΠΌΠ΅ΡΡΠΎΠ²
ΠΠ±ΡΠ°ΡΠ°Π΅ΠΌ ΠΠ°ΡΠ΅ Π²Π½ΠΈΠΌΠ°Π½ΠΈΠ΅! ΠΡΠΈΠ²Π΅Π΄Π΅Π½Π½ΡΠ΅ ΠΏΠ»Π°Π½ΠΈΡΠΎΠ²ΠΊΠΈ Π½Π΅ ΡΠ²Π»ΡΡΡΡΡ Π·Π°Π²Π΅ΡΡΠ΅Π½Π½ΡΠΌΠΈ Π³ΠΎΡΠΎΠ²ΡΠΌΠΈ ΠΏΡΠΎΠ΅ΠΊΡΠ°ΠΌΠΈ ΠΈ ΡΠ²Π»ΡΡΡΡΡ Π΄ΠΎΡΡΠ°ΡΠΎΡΠ½ΠΎ ΡΡΠ»ΠΎΠ²Π½ΡΠΌΠΈ. Π’Π΅ΠΌ Π½Π΅ ΠΌΠ΅Π½Π΅Π΅ ΠΎΠ½ΠΈ ΠΌΠΎΠ³ΡΡ ΡΠ»ΡΠΆΠΈΡΡ ΠΎΡΠ½ΠΎΠ²ΠΎΠΉ Π΄Π»Ρ ΡΠ°Π·ΡΠ°Π±ΠΎΡΠΊΠΈ ΠΈΠ½Π΄ΠΈΠ²ΠΈΠ΄ΡΠ°Π»ΡΠ½ΠΎΠ³ΠΎ ΠΏΡΠΎΠ΅ΠΊΡΠ° ΠΠ°ΡΠ΅Π³ΠΎ Π΄ΠΎΠΌΠ°. Π ΠΊΠ°ΠΆΠ΄ΠΎΠΉ ΠΈΠ· Π½ΠΈΡ ΠΡ Π½Π°ΠΉΠ΄Π΅ΡΠ΅ Π΄Π»Ρ ΡΠ΅Π±Ρ ΡΠ²ΠΎΠΈ ΠΏΠ»ΡΡΡ ΠΈΠ»ΠΈ ΠΌΠΈΠ½ΡΡΡ.
ΠΠ°Π·Π°Π΄ ΠΊ ΠΏΠ»Π°Π½ΠΈΡΠΎΠ²ΠΊΠ°ΠΌ Π΄ΠΎΠΌΠΎΠ² ΠΈ ΠΊΠΎΡΡΠ΅Π΄ΠΆΠ΅ΠΉ
ΠΠ½Π΄ΠΈΠ²ΠΈΠ΄ΡΠ°Π»ΡΠ½ΡΠΉ ΠΏΡΠΎΠ΅ΠΊΡΠ° Π΄ΠΎΠΌΠ° β ΡΡΠΎ ΠΏΡΠΎΠ΅ΠΊΡ ΡΠ°Π·ΡΠ°Π±ΠΎΡΠ°Π½Π½ΡΠΉ ΡΠΏΠ΅ΡΠΈΠ°Π»ΡΠ½ΠΎ ΠΏΠΎΠ΄ ΠΠ°Ρ. ΠΡΠΈ ΡΠ°Π·ΡΠ°Π±ΠΎΡΠΊΠ΅ ΠΈΠ½Π΄ΠΈΠ²ΠΈΠ΄ΡΠ°Π»ΡΠ½ΠΎΠ³ΠΎ ΠΏΡΠΎΠ΅ΠΊΡΠ° Π°ΡΡ
ΠΈΡΠ΅ΠΊΡΠΎΡ ΡΠΎΠ·Π΄Π°Π΅Ρ ΡΠ½ΠΈΠΊΠ°Π»ΡΠ½ΡΡ ΠΏΠ»Π°Π½ΠΈΡΠΎΠ²ΠΊΡ ΠΈ Π½Π΅ΠΏΠΎΠ²ΡΠΎΡΠΈΠΌΡΠΉ Π²Π½Π΅ΡΠ½ΠΈΠΉ Π²ΠΈΠ΄, ΡΡΠΈΡΡΠ²Π°Ρ Π²ΡΠ΅ ΠΠ°ΡΠΈ ΠΏΠΎΠΆΠ΅Π»Π°Π½ΠΈΡ.
Π£ Π²Π°Ρ ΡΠΆΠ΅ Π΅ΡΡΡ ΠΏΡΠΎΠ΅ΠΊΡ, Π½ΠΎ ΠΡ Ρ ΠΎΡΠ΅Π»ΠΈ Π±Ρ ΠΏΠ΅ΡΠ΅ΡΡΠΈΡΠ°ΡΡ ΡΡΠ½Π΄Π°ΠΌΠ΅Π½Ρ ΠΈΠ»ΠΈ Π΄ΠΎΡΠ°Π±ΠΎΡΠ°ΡΡ ΡΠΎΠΊΠΎΠ»ΡΠ½ΡΠΉ ΡΡΠ°ΠΆ, Π²ΠΎΠ·ΠΌΠΎΠΆΠ½ΠΎ ΠΡ ΡΠ΅ΡΠΈΠ»ΠΈ ΠΏΠΎΠΌΠ΅Π½ΡΡΡ ΠΊΠΎΠ½ΡΡΡΡΠΊΡΠΈΡ ΠΊΡΡΡΠΈ ΠΈΠ»ΠΈ ΠΡ ΡΠΆΠ΅ Π½Π°ΡΠ°Π»ΠΈ ΡΡΡΠΎΠΈΡΠ΅Π»ΡΡΡΠ²ΠΎ, Π½ΠΎ ΠΠ°ΡΠΈΠΌ ΡΡΡΠΎΠΈΡΠ΅Π»ΡΠΌ Π½Π΅ Ρ Π²Π°ΡΠ°Π΅Ρ ΠΊΠ°ΠΊΠΈΡ -ΡΠΎ Π΄ΠΎΠΏΠΎΠ»Π½ΠΈΡΠ΅Π»ΡΠ½ΡΡ ΡΠ·Π»ΠΎΠ²? ΠΠ°ΡΠΈ ΡΠΏΠ΅ΡΠΈΠ°Π»ΠΈΡΡΡ ΠΠ°ΠΌ ΠΏΠΎΠΌΠΎΠ³ΡΡ.
ΠΠΠΠ ΠΠΠΠΠ…ΠΠ»Π°Π½ΠΈΡΠΎΠ²ΠΊΠ° ΠΊΠΎΡΡΠ΅Π΄ΠΆΠ° 9Ρ 10 ΠΌ Ρ Π±ΠΎΠ»ΡΡΠΎΠΉ ΡΠΏΠ°Π»ΡΠ½ΠΎΠΉ Ρ ΠΎΡΠ΄Π΅Π»ΡΠ½ΡΠΌ Π³Π°ΡΠ΄Π΅ΡΠΎΠ±ΠΎΠΌ, ΠΎΠ±ΡΠ΅ΠΉ ΠΏΡΠΎΡΡΠΎΡΠ½ΠΎΠΉ ΠΊΡΡ Π½ΠΈ-Π³ΠΎΡΡΠΈΠ½ΠΎΠΉ, Π½Π΅Π±ΠΎΠ»ΡΡΠΎΠΉ ΠΊΠ»Π°Π΄ΠΎΠ²ΠΎΠΉ, Π³ΠΎΡΡΠ΅Π²ΡΠΌ ΡΡΠ°Π»Π΅ΡΠΎΠΌ ΠΈ ΠΏΡΠΎΡΡΠΎΡΠ½ΠΎΠΉ Π²Π°Π½Π½ΠΎΠΉ Π΄Π»Ρ Ρ ΠΎΠ·ΡΠ΅Π².
ΠΠ»Π°Π½ΠΈΡΠΎΠ²ΠΊΠ° ΠΎΠ΄Π½ΠΎΡΡΠ°ΠΆΠ½ΠΎΠ³ΠΎ ΡΠ°ΡΡΠ½ΠΎΠ³ΠΎ Π΄ΠΎΠΌΠ° ΡΠ°Π·ΠΌΠ΅ΡΠΎΠΌ 9 Π½Π° 10 ΠΌΠ΅ΡΡΠΎΠ² Ρ ΡΡΠ΅ΠΌΡ ΡΠΏΠ°Π»ΡΠ½ΡΠΌΠΈ, ΠΎΠ΄Π½Ρ ΠΈΠ· ΠΊΠΎΡΠΎΡΡΡ ΠΌΠΎΠΆΠ½ΠΎ ΠΏΠ΅ΡΠ΅Π΄Π΅Π»Π°ΡΡ Π² ΠΊΠ°Π±ΠΈΠ½Π΅Ρ, Π½Π΅Π±ΠΎΠ»ΡΡΠ°Ρ Π·ΠΎΠ½Π° Π³ΠΎΡΡΠΈΠ½ΠΎΠΉ ΠΈ ΠΊΡΡ Π½ΠΈ-ΡΡΠΎΠ»ΠΎΠ²ΠΎΠΉ.
ΠΠ»Π°Π½ΠΈΡΠΎΠ²ΠΊΠ° Π΄ΠΎΠΌΠ° 9Ρ 10 ΠΌ Ρ Π΄Π²ΡΠΌΡ ΠΏΡΠΎΡΡΠΎΡΠ½ΡΠΌΠΈ ΡΠΏΠ°Π»ΡΠ½ΡΠΌΠΈ, ΠΎΠ±ΡΠΈΠΌ Π±ΠΎΠ»ΡΡΠΈΠΌ ΠΏΡΠΎΡΡΡΠ°Π½ΡΡΠ²ΠΎΠΌ ΠΊΡΡ Π½ΠΈ ΠΈ Π³ΠΎΡΡΠΈΠ½ΠΎΠΉ, ΡΡΠΎ ΠΏΠΎΠ·Π²ΠΎΠ»ΡΡ ΡΠΎΠ±ΠΈΡΠ°ΡΡΡΡ Π±ΠΎΠ»ΡΡΠΎΠΌΡ ΡΠΈΡΠ»Ρ Π³ΠΎΡΡΠ΅ΠΉ.
ΠΠ»Π°Π½ΠΈΡΠΎΠ²ΠΊΠ° ΠΊΠΎΡΡΠ΅Π΄ΠΆΠ° ΠΏΠ»ΠΎΡΠ°Π΄ΡΡ ΠΌΠ΅Π½Π΅Π΅ 100 ΠΊΠ²Π°Π΄ΡΠ°ΡΠ½ΡΡ ΠΌΠ΅ΡΡΠΎΠ² Ρ Π΄Π²ΡΠΌΡ ΡΠ°Π·Π΄Π΅Π»ΡΠ½ΡΠΌΠΈ ΡΠΏΠ°Π»ΡΠ½ΡΠΌΠΈ, Π½Π΅Π±ΠΎΠ»ΡΡΠΎΠΉ Π·ΠΎΠ½ΠΎΠΉ ΠΊΡΡ Π½ΠΈ, ΠΏΠ»Π°Π²Π½ΠΎ ΠΏΠ΅ΡΠ΅ΡΠ΅ΠΊΠ°ΡΡΠ΅ΠΉ Π² Π³ΠΎΡΡΠΈΠ½ΡΡ, ΠΈ ΠΏΡΠΎΡΡΠΎΡΠ½ΠΎΠΉ Π²Π°Π½Π½ΠΎΠΉ.

ΠΠ»Π°Π½ΠΈΡΠΎΠ²ΠΊΠ° ΠΊΠΎΡΡΠ΅Π΄ΠΆΠ° 9Ρ 10 ΠΌ Ρ Π±ΠΎΠ»ΡΡΠΈΠΌ ΠΎΠ±ΡΠΈΠΌ ΠΏΡΠΎΡΡΡΠ°Π½ΡΡΠ²ΠΎΠΌ, Π³Π΄Π΅ ΡΠ°ΡΠΏΠΎΠ»ΠΎΠΆΠ΅Π½Π° ΠΊΡΡ Π½Ρ, ΡΡΠΎΠ»ΠΎΠ²Π°Ρ ΠΈ Π³ΠΎΡΡΠΈΠ½Π°Ρ. Π Π΄ΠΎΠΌΠ° ΠΈΠΌΠ΅ΡΡΡΡ ΡΠ°ΠΊΠΆΠ΅ Π΄Π²Π΅ ΡΠΏΠ°Π»ΡΠ½ΡΠ΅ ΠΊΠΎΠΌΠ½Π°ΡΡ, ΠΊΠΎΡΠ΅Π»ΡΠ½Π°Ρ ΠΈ Π²Π°Π½Π½Π°Ρ.
ΠΠ»Π°Π½ΠΈΡΠΎΠ²ΠΊΠ° Π΄ΠΎΠΌΠ° ΡΠ°Π·ΠΌΠ΅ΡΠΎΠΌ 9 Π½Π° 10 ΠΌΠ΅ΡΡΠΎΠ² Ρ ΠΎΠ΄Π½ΠΎΠΉ ΡΠΏΠ°Π»ΡΠ½ΠΎΠΉ ΠΊΠΎΠΌΠ½Π°ΡΠΎΠΉ, ΠΎΠ±ΡΠ΅ΠΉ ΠΊΡΡ Π½Π΅ΠΉ-Π³ΠΎΡΡΠΈΠ½ΠΎΠΉ, Ρ ΠΏΡΠΈΡΡΡΠΎΠ΅Π½Π½ΠΎΠΉ Π½Π΅Π±ΠΎΠ»ΡΡΠΎΠΉ ΠΊΠ»Π°Π΄ΠΎΠ²ΠΎΠΉ. ΠΠ°ΡΠ΄Π΅ΡΠΎΠ± Π² ΡΠ°ΠΌΠ±ΡΡΠ΅ ΠΏΠΎΠ·Π²ΠΎΠ»ΡΠ΅Ρ ΠΈΠ·Π±Π°Π²ΠΈΡΡΡΡ ΠΎΡ Π³ΡΠΎΠΌΠΎΠ·Π΄ΠΊΠΈΡ ΡΠΊΠ°ΡΠΎΠ² Π² ΠΊΠΎΡΠΈΠ΄ΠΎΡΠ΅ ΠΈ ΠΊΠΎΠΌΠ½Π°ΡΠ΅.
ΠΠ»Π°Π½ΠΈΡΠΎΠ²ΠΊΠ° ΠΎΠ΄Π½ΠΎΡΡΠ°ΠΆΠ½ΠΎΠ³ΠΎ Π΄ΠΎΠΌΠ° 9Ρ 10 ΠΌ Ρ Π±ΠΎΠ»ΡΡΠΈΠΌ ΡΠ°ΠΌΠ±ΡΡΠΎΠΌ, ΠΏΡΠΎΡΡΠΎΡΠ½Π°Ρ ΡΠΏΠ°Π»ΡΠ½Π°Ρ ΡΠΎ ΡΠ²ΠΎΠΈΠΌ Π³Π°ΡΠ΄Π΅ΡΠΎΠ±ΠΎΠΌ, ΠΎΠ±ΡΠ°Ρ ΠΊΡΡ Π½Ρ-ΡΡΠΎΠ»ΠΎΠ²Π°Ρ-Π³ΠΎΡΡΠΈΠ½Π°Ρ ΠΏΠΎΠ·Π²ΠΎΠ»ΡΠ΅Ρ ΠΎΡΠ³Π°Π½ΠΈΠ·ΠΎΠ²Π°ΡΡ ΠΏΡΠΈΠ΅ΠΌ Π±ΠΎΠ»ΡΡΠ΅Π³ΠΎ ΡΠΈΡΠ»Π° Π³ΠΎΡΡΠ΅ΠΉ.
ΠΠ»Π°Π½ΠΈΡΠΎΠ²ΠΊΠ° ΠΊΠΎΡΡΠ΅Π΄ΠΆΠ° ΡΠ°Π·ΠΌΠ΅ΡΠΎΠΌ 9 Π½Π° 10, Ρ ΠΎΠ±ΡΠ΅ΠΉ Π·ΠΎΠ½ΠΎΠΉ ΠΊΡΡ Π½ΠΈ ΠΈ Π³ΠΎΡΡΠΈΠ½ΠΎΠΉ ΠΈ ΠΎΠ΄Π½ΠΎΠΉ ΠΏΡΠΎΡΡΠΎΡΠ½ΠΎΠΉ ΡΠΏΠ°Π»ΡΠ½ΠΎΠΉ, ΠΈΠΌΠ΅ΡΡΠ΅ΠΉ ΠΎΡΠ΄Π΅Π»ΡΠ½ΡΡ Π³Π°ΡΠ΄Π΅ΡΠΎΠ±Π½ΡΡ. ΠΠ° ΠΊΡΡ Π½Π΅ ΠΏΡΠ΅Π΄ΡΡΠΌΠΎΡΡΠ΅Π½Π° Π½Π΅Π±ΠΎΠ»ΡΡΠ°Ρ ΠΊΠ»Π°Π΄ΠΎΠ²Π°Ρ Π΄Π»Ρ Ρ ΡΠ°Π½Π΅Π½ΠΈΡ ΠΏΡΠΎΠ΄ΡΠΊΡΠΎΠ².
ΠΠ°Π·Π°Π΄ ΠΊ ΠΏΠ»Π°Π½ΠΈΡΠΎΠ²ΠΊΠ°ΠΌ Π΄ΠΎΠΌΠΎΠ² ΠΈ ΠΊΠΎΡΡΠ΅Π΄ΠΆΠ΅ΠΉ
ΠΠ±ΡΠ°ΡΠ°Π΅ΠΌ ΠΠ°ΡΠ΅ Π²Π½ΠΈΠΌΠ°Π½ΠΈΠ΅! ΠΡΠΈΠ²Π΅Π΄Π΅Π½Π½ΡΠ΅ ΠΏΠ»Π°Π½ΠΈΡΠΎΠ²ΠΊΠΈ Π½Π΅ ΡΠ²Π»ΡΡΡΡΡ Π·Π°Π²Π΅ΡΡΠ΅Π½Π½ΡΠΌΠΈ Π³ΠΎΡΠΎΠ²ΡΠΌΠΈ ΠΏΡΠΎΠ΅ΠΊΡΠ°ΠΌΠΈ. Π’Π΅ΠΌ Π½Π΅ ΠΌΠ΅Π½Π΅Π΅ ΠΎΠ½ΠΈ ΠΌΠΎΠ³ΡΡ ΡΠ»ΡΠΆΠΈΡΡ ΠΎΡΠ½ΠΎΠ²ΠΎΠΉ Π΄Π»Ρ ΡΠ°Π·ΡΠ°Π±ΠΎΡΠΊΠΈ ΠΈΠ½Π΄ΠΈΠ²ΠΈΠ΄ΡΠ°Π»ΡΠ½ΠΎΠ³ΠΎ ΠΏΡΠΎΠ΅ΠΊΡΠ° ΠΠ°ΡΠ΅Π³ΠΎ Π΄ΠΎΠΌΠ°.
Π ΠΊΠ°ΠΆΠ΄ΠΎΠΉ ΠΈΠ· Π½ΠΈΡ
ΠΡ Π½Π°ΠΉΠ΄Π΅ΡΠ΅ Π΄Π»Ρ ΡΠ΅Π±Ρ ΡΠ²ΠΎΠΈ ΠΏΠ»ΡΡΡ ΠΈΠ»ΠΈ ΠΌΠΈΠ½ΡΡΡ.
Π‘ΠΎΡΡΠ°Π²Π»ΡΠ΅ΠΌ ΠΏΠ»Π°Π½ Π΄ΠΎΠΌΠ° ΠΏΡΠ°Π²ΠΈΠ»ΡΠ½ΠΎ ΡΠ°ΠΌΠΎΡΡΠΎΡΡΠ΅Π»ΡΠ½ΠΎ Π½Π° ΠΊΠΎΠΌΠΏΡΡΡΠ΅ΡΠ΅: ΠΠ±Π·ΠΎΡ ΠΏΡΠΎΠ³ΡΠ°ΠΌΠΌ +ΠΠΈΠ΄Π΅ΠΎ
ΠΡΠ΅ Π½Π° ΡΠ°ΠΌΠΎΠΌ Π½Π°ΡΠ°Π»Π΅ ΡΡΡΠΎΠΈΡΠ΅Π»ΡΡΡΠ²Π°, ΠΈΠ»ΠΈ ΡΠΊΠΎΡΠ΅Π΅ Π΄Π°ΠΆΠ΅ Π½Π° ΠΌΠΎΠΌΠ΅Π½ΡΠ΅ Π·Π°Π΄ΡΠΌΠΊΠΈ, ΡΠ°ΡΡΠ½ΡΠ΅ Π·Π°ΡΡΡΠΎΠΉΡΠΈΠΊΠΈ ΡΡΠ°Π»ΠΊΠΈΠ²Π°ΡΡΡΡ Ρ ΠΏΡΠΎΠ±Π»Π΅ΠΌΠΎΠΉ ΠΊΠ°ΠΊ ΡΠΎΡΡΠ°Π²ΠΈΡΡ ΠΏΠ»Π°Π½ Π΄ΠΎΠΌΠ° ΠΏΡΠ°Π²ΠΈΠ»ΡΠ½ΠΎ ΡΠ°ΠΌΠΎΠΌΡ.
ΠΡΠΏΠΎΠ»Π½Π΅Π½Π½ΡΠΉ ΠΏΠΎΠ΄ Π·Π°ΠΊΠ°Π· ΠΏΠ»Π°Π½ Π΄ΠΎΠΌΠ° ΠΌΠΎΠΆΠ΅Ρ ΠΎΠ±ΠΎΠΉΡΠΈΡΡ Π·Π°ΡΡΡΠΎΠΉΡΠΈΠΊΡ Π΄ΠΎΠ²ΠΎΠ»ΡΠ½ΠΎ Π΄ΠΎΡΠΎΠ³ΠΎ, ΠΏΠΎΡΡΠΎΠΌΡ Π² Π΄Π°Π½Π½ΠΎΠΉ ΡΡΠ°ΡΡΠ΅ ΠΌΡ ΡΠ°ΡΡΠΌΠΎΡΡΠΈΠΌ Π²ΠΎΠΏΡΠΎΡ ΠΎ ΡΠΎΠΌ, ΡΠ΄Π΅Π»Π°ΡΡ ΠΏΠ»Π°Π½ Π΄ΠΎΠΌΠ° ΡΠ°ΠΌΠΎΡΡΠΎΡΡΠ΅Π»ΡΠ½ΠΎ.
[contents]
ΠΡΠΎΠ΅ΠΊΡΠΈΡΠΎΠ²Π°Π½ΠΈΠ΅ Π·Π΄Π°Π½ΠΈΠΉ ΠΈ Π΄ΠΎΠΌΠΎΠ² β Π΄ΠΎΠ²ΠΎΠ»ΡΠ½ΠΎ ΡΠ»ΠΎΠΆΠ½ΡΠΉ ΠΈ ΠΌΠ½ΠΎΠ³ΠΎΠ³ΡΠ°Π½Π½ΡΠΉ Π²ΠΎΠΏΡΠΎΡ. Π‘ΠΎΡΡΠ°Π²Π»Π΅Π½ΠΈΠ΅ ΠΏΠ»Π°Π½Π° Π΄ΠΎΠΌΠ° ΠΏΠΎΡΡΠ΅Π±ΡΠ΅Ρ ΠΎΡ Π²Π°Ρ, ΠΊΠ°ΠΊ ΠΌΠΈΠ½ΠΈΠΌΡΠΌ, ΠΎΠΏΡΠ΅Π΄Π΅Π»Π΅Π½Π½ΡΡ Π½Π°Π²ΡΠΊΠΎΠ² ΠΈ Π·Π½Π°Π½ΠΈΠΉ Π² Π³Π΅ΠΎΠΌΠ΅ΡΡΠΈΠΈ ΠΈ ΡΠ΅ΡΡΠ΅Π½ΠΈΠΈ. Π’Π°ΠΊΠΆΠ΅ Π²Π°ΠΌ ΠΏΠΎΡΡΠ΅Π±ΡΡΡΡΡ Π΄Π°Π½Π½ΡΠ΅ ΠΎΠ± ΠΎΡΠΎΠ±Π΅Π½Π½ΠΎΡΡΡΡ ΡΡΠ°ΡΡΠΊΠ°, Π½Π° ΠΊΠΎΡΠΎΡΠΎΠΌ ΠΏΠ»Π°Π½ΠΈΡΡΠ΅ΡΡΡ ΡΡΡΠΎΠΉΠΊΠ°. ΠΠ΅ ΠΏΠΎΠΌΠ΅ΡΠ°Π΅Ρ Π² ΡΡΠΎΠΌ Π΄Π΅Π»Π΅ ΠΈ ΠΏΡΠΎΡΡΡΠ°Π½ΡΡΠ²Π΅Π½Π½ΠΎΠ΅ ΠΌΡΡΠ»Π΅Π½ΠΈΠ΅.
ΠΠ΅ΡΠ΅Π΄ Π½Π°ΡΠ°Π»ΠΎΠΌ ΡΠ°Π±ΠΎΡΡ ΠΏΠΎ ΠΏΡΠΎΠ΅ΠΊΡΠΈΡΠΎΠ²ΠΊΠ΅ Π·Π΄Π°Π½ΠΈΡ ΠΏΡΠΎΠ΄ΡΠΌΠ°ΠΉΡΠ΅ ΠΎΠΏΡΠ΅Π΄Π΅Π»Π΅Π½Π½ΡΠ΅ ΠΌΠΎΠΌΠ΅Π½ΡΡ: Π½Π° ΠΏΡΠΎΠΆΠΈΠ²Π°Π½ΠΈΠ΅ ΡΠΊΠΎΠ»ΡΠΊΠΈ ΡΠ΅Π»ΠΎΠ²Π΅ΠΊ Π±ΡΠ΄Π΅Ρ ΡΠ°ΡΡΡΠΈΡΠ°Π½ Π΄ΠΎΠΌ, ΠΊΠ°ΠΊΠΎΠ΅ ΠΊΠΎΠ»ΠΈΡΠ΅ΡΡΠ²ΠΎ ΠΊΠΎΠΌΠ½Π°Ρ ΠΈ ΡΠ°Π½ΡΠ·Π»ΠΎΠ² Π²Π°ΠΌ Π½Π΅ΠΎΠ±Ρ
ΠΎΠ΄ΠΈΠΌΠΎ ΠΏΡΠ΅Π΄ΡΡΠΌΠΎΡΡΠ΅ΡΡ, Π³Π΄Π΅ Π±ΡΠ΄Π΅Ρ ΡΠ°ΡΠΏΠΎΠ»Π°Π³Π°ΡΡΡΡ ΠΊΡΡ
Π½Ρ ΠΈ Π΄Ρ.
Π‘ΠΎΠΎΡΠ½Π΅ΡΠΈΡΠ΅ Π²ΡΠ΅ ΡΡΠΈ Π΄Π°Π½Π½ΡΠ΅ Ρ Π±ΡΠ΄ΠΆΠ΅ΡΠΎΠΌ ΡΡΡΠΎΠΈΡΠ΅Π»ΡΡΡΠ²Π° ΠΈ ΠΏΡΠΈΡΡΡΠΏΠ°ΠΉΡΠ΅ ΠΊ ΡΠ°Π±ΠΎΡΠ΅.
ΠΠ°ΡΠΈΠ°Π½ΡΡ Π²ΡΠΏΠΎΠ»Π½Π΅Π½ΠΈΡ
Π‘Π΅Π³ΠΎΠ΄Π½Ρ Π΅ΡΡΡ Π½Π΅ΡΠΊΠΎΠ»ΡΠΊΠΎ ΡΠΏΠΎΡΠΎΠ±ΠΎΠ² ΡΠΎΡΡΠ°Π²ΠΈΡΡ ΠΏΠ»Π°Π½ Π΄ΠΎΠΌΠ°:
- Π·Π°ΠΊΠ°Π·Π°ΡΡ ΠΏΠ»Π°Π½ Π΄Π»Ρ ΡΡΡΠΎΠΈΡΠ΅Π»ΡΡΡΠ²Π° Π΄ΠΎΠΌΠ° Ρ ΡΠΏΠ΅ΡΠΈΠ°Π»ΠΈΡΡΠΎΠ²;
- ΡΠ°ΠΌΠΎΡΡΠΎΡΡΠ΅Π»ΡΠ½ΠΎ Π½Π°ΡΠ΅ΡΡΠΈΡΡ Π΅Π³ΠΎ Π½Π° Π±ΡΠΌΠ°Π³Π΅, Ρ.Π΅. Π²ΡΠΏΠΎΠ»Π½ΠΈΡΡ ΠΎΡ ΡΡΠΊΠΈ;
- Π²ΠΎΡΠΏΠΎΠ»ΡΠ·ΠΎΠ²Π°ΡΡΡΡ ΡΠΏΠ΅ΡΠΈΠ°Π»ΡΠ½ΡΠΌΠΈ ΠΏΡΠΎΡΠ΅ΡΡΠΈΠΎΠ½Π°Π»ΡΠ½ΡΠΌΠΈ ΠΏΡΠΎΠ³ΡΠ°ΠΌΠΌΠ°ΠΌΠΈ, ΠΊΠΎΡΠΎΡΡΠ΅ ΡΡΡΠ°Π½Π°Π²Π»ΠΈΠ²Π°ΡΡΡΡ Π½Π° ΠΊΠΎΠΌΠΏΡΡΡΠ΅ΡΠ΅;
- Π²ΠΎΡΠΏΠΎΠ»ΡΠ·ΠΎΠ²Π°ΡΡΡΡ ΠΎΠ½Π»Π°ΠΉΠ½ ΡΠ΅ΡΠ²ΠΈΡΠ°ΠΌΠΈ.
Π Π°ΡΡΠΌΠΎΡΡΠΈΠΌ ΠΊΠ°ΠΆΠ΄ΡΠΉ ΠΈΠ· Π²Π°ΡΠΈΠ°Π½ΡΠΎΠ² ΡΠΎΡΡΠ°Π²Π»Π΅Π½ΠΈΡ ΠΏΠ»Π°Π½Π° ΡΠ°ΠΌΠΎΡΡΠΎΡΡΠ΅Π»ΡΠ½ΠΎ Π±ΠΎΠ»Π΅Π΅ ΠΏΠΎΠ΄ΡΠΎΠ±Π½ΠΎ.
Π§Π΅ΡΡΠΈΠΌ ΠΏΠ»Π°Π½ Π΄ΠΎΠΌΠ° ΠΎΡ ΡΡΠΊΠΈ
ΠΡΠ΅ΠΆΠ΄Π΅ Π²ΡΠ΅Π³ΠΎ, Π²Π°ΠΌ ΠΏΠΎΠ½Π°Π΄ΠΎΠ±ΠΈΡΡΡ ΠΏΠ»Π°Π½ ΡΡΠ°ΡΡΠΊΠ° ΡΡΡΠΎΠΈΡΠ΅Π»ΡΡΡΠ²Π°, Π° ΡΠ°ΠΊΠΆΠ΅ Π΄Π°Π½Π½ΡΠ΅ ΠΎ ΡΠΎΡΡΠΎΡΠ½ΠΈΠΈ ΠΏΠΎΡΠ²Ρ Π² ΡΡΠΎΠΌ ΡΠ°ΠΉΠΎΠ½Π΅.
ΠΠ»Π°Π½ ΡΡΠ°ΡΡΠΊΠ° ΠΏΠΎΠ½Π°Π΄ΠΎΠ±ΠΈΡΡΡ Π΄Π»Ρ ΡΠΎΠ³ΠΎ, ΡΡΠΎΠ±Ρ ΡΠΎΡΠΈΠ΅Π½ΡΠΈΡΠΎΠ²Π°ΡΡΡΡ ΠΈ ΠΎΠΏΡΠ΅Π΄Π΅Π»ΠΈΡΡΡ Ρ ΡΠ°Π·ΠΌΠ΅ΡΠ°ΠΌΠΈ Π΄ΠΎΠΌΠ° ΠΈ Π΅Π³ΠΎ ΡΠ°ΡΠΏΠΎΠ»ΠΎΠΆΠ΅Π½ΠΈΠ΅ΠΌ Π½Π° ΠΌΠ΅ΡΡΠ½ΠΎΡΡΠΈ. ΠΠ°Π½Π½ΡΠ΅ ΠΎ ΠΏΠΎΡΠ²Π΅ ΠΏΠΎΠΌΠΎΠ³ΡΡ Π²ΡΠ±ΡΠ°ΡΡ ΠΎΠΏΡΠΈΠΌΠ°Π»ΡΠ½ΡΠΉ Π²ΠΈΠ΄ ΡΡΠ½Π΄Π°ΠΌΠ΅Π½ΡΠ° ΠΏΠΎΠ΄ Π΄ΠΎΠΌ.
- ΠΠΏΡΠ΅Π΄Π΅Π»ΠΈΡΠ΅ΡΡ Ρ ΠΌΠ°ΡΡΡΠ°Π±ΠΎΠΌ ΡΠ΅ΡΡΠ΅ΠΆΠ° ΠΈ Π½Π°ΡΠΈΠ½Π°ΠΉΡΠ΅ ΡΠΈΡΠΎΠ²Π°ΡΡ ΠΏΠ»Π°Π½ Ρ ΡΠ°Π·ΠΌΠ΅ΡΠΊΠΈ ΡΠ΅Π½ΡΡΠΎΠ²ΡΡ
ΠΎΡΠ΅ΠΉ Π²Π½Π΅ΡΠ½ΠΈΡ
ΡΡΠ΅Π½ ΠΈ ΠΊΠ°ΠΆΠ΄ΠΎΠΉ ΠΊΠΎΠΌΠ½Π°ΡΡ.
ΠΡΡΡΠ΅ Π²ΡΠ΅Π³ΠΎ Π΄Π΅Π»Π°ΡΡ ΠΏΡΠΎΠ΅ΠΊΡ Π΄ΠΎΠΌΠ° ΠΏΡΠΎΡΡΡΠΌ, Π±Π΅Π· ΡΠ»ΠΎΠΆΠ½ΡΡ
ΠΊΠΎΠ½ΡΡΡΡΠΊΡΠΈΠ²Π½ΡΡ
ΡΠ΅ΡΠ΅Π½ΠΈΠΉ. ΠΡΠΎ ΠΏΠΎΠΌΠΎΠΆΠ΅Ρ Π²Π°ΠΌ Π±ΠΎΠ»Π΅Π΅ ΡΡΠΏΠ΅ΡΠ½ΠΎ Π²ΠΎΠΏΠ»ΠΎΡΠΈΡΡ Π΅Π³ΠΎ Π² ΠΆΠΈΠ·Π½Ρ ΠΈ Π½Π΅ ΠΏΠΎΡΡΠ°ΡΠΈΡΡ Π»ΠΈΡΠ½ΠΈΠ΅ ΡΡΠ΅Π΄ΡΡΠ²Π° ΠΏΡΠΎΡΡΠΎ ΡΠ°Π΄ΠΈ ΠΈΠ½ΡΠ΅ΡΠ΅ΡΠ½ΠΎΠ³ΠΎ Π΄ΠΈΠ·Π°ΠΉΠ½Π΅ΡΡΠΊΠΎΠ³ΠΎ ΡΠ΅ΡΠ΅Π½ΠΈΡ. - ΠΠ°Π½Π΅ΡΠΈΡΠ΅ ΡΠ°Π·ΠΌΠ΅ΡΠΊΡ Π²Π½ΡΡΡΠ΅Π½Π½ΠΈΡ ΡΡΠ΅Π½ ΠΈ ΡΡΠ΅Π½ΠΎΠ²ΡΡ ΠΏΠ΅ΡΠ΅Π³ΠΎΡΠΎΠ΄ΠΎΠΊ. ΠΠ»Π°Π½ΠΈΡΡΠΉΡΠ΅ ΡΠ°ΡΠΏΠΎΠ»ΠΎΠΆΠ΅Π½ΠΈΠ΅ ΠΊΠΎΠΌΠ½Π°Ρ ΡΠ°ΠΊ, ΡΡΠΎΠ±Ρ Π½Π΅ΠΆΠΈΠ»ΡΠ΅ ΠΏΠΎΠΌΠ΅ΡΠ΅Π½ΠΈΡ ΡΠ°ΡΠΏΠΎΠ»Π°Π³Π°Π»ΠΈΡΡ Π½Π° ΡΠ΅Π²Π΅ΡΠ½ΠΎΠΉ ΡΡΠΎΡΠΎΠ½Π΅, Π° ΠΆΠΈΠ»ΡΠ΅ β Π½Π° ΡΠΆΠ½ΠΎΠΉ.
- ΠΠΏΡΠ΅Π΄Π΅Π»ΠΈΡΠ΅ΡΡ Ρ ΡΠ°ΡΠΏΠΎΠ»ΠΎΠΆΠ΅Π½ΠΈΠ΅ΠΌ ΠΎΠΊΠΎΠ½ ΠΈ Π΄Π²Π΅ΡΠ½ΡΡ ΠΏΡΠΎΠ΅ΠΌΠΎΠ², ΠΎΠ±ΡΠ·Π°ΡΠ΅Π»ΡΠ½ΠΎ ΡΠΊΠ°ΠΆΠΈΡΠ΅ ΠΈΡ Π½Π° ΠΏΠ»Π°Π½Π΅. ΠΠΏΡΠΈΠΌΠ°Π»ΡΠ½ΠΎ ΡΠ°ΡΠΏΠΎΠ»ΠΎΠΆΠ΅Π½Π½ΡΠ΅ ΠΎΠΊΠΎΠ½Π½ΡΠ΅ ΠΏΡΠΎΠ΅ΠΌΡ ΡΠ°ΠΊ, ΡΡΠΎΠ±Ρ Π² ΠΆΠΈΠ»ΡΠ΅ ΠΊΠΎΠΌΠ½Π°ΡΡ (ΡΠΏΠ°Π»ΡΠ½Ρ, Π·Π°Π», ΠΊΠ°Π±ΠΈΠ½Π΅Ρ, Π΄Π΅ΡΡΠΊΡΡ) ΠΏΠΎΠΏΠ°Π΄Π°Π»ΠΎ ΠΌΠ°ΠΊΡΠΈΠΌΠ°Π»ΡΠ½ΠΎΠ΅ ΠΊΠΎΠ»ΠΈΡΠ΅ΡΡΠ²ΠΎ Π΄Π½Π΅Π²Π½ΠΎΠ³ΠΎ ΡΠ²Π΅ΡΠ° ΡΠΎΠ»Π½ΡΠ°.
- Π Π°Π²Π½ΠΎΠΌΠ΅ΡΠ½ΠΎ Ρ ΠΎΠ±Π΅ΠΈΡ ΡΡΠΎΡΠΎΠ½ Β«Π½Π°ΡΠ°ΡΡΠΈΡΠ΅Β» Π½Π° ΠΎΡΠΈ ΠΏΡΠ΅Π΄ΠΏΠΎΠ»Π°Π³Π°Π΅ΠΌΡΡ ΡΠΎΠ»ΡΠΈΠ½Ρ ΡΡΠ΅Π½ Π² ΡΠΎΠΎΡΠ²Π΅ΡΡΡΠ²ΠΈΠΈ Ρ Π²ΡΠ±ΡΠ°Π½Π½ΡΠΌ ΠΌΠ°ΡΠ΅ΡΠΈΠ°Π»ΠΎΠΌ ΡΡΡΠΎΠΈΡΠ΅Π»ΡΡΡΠ²Π°. ΠΠ΅ Π·Π°Π±ΡΠ²Π°ΠΉΡΠ΅ ΡΠΎΠ±Π»ΡΠ΄Π°ΡΡ Π²ΡΠ±ΡΠ°Π½Π½ΡΠΉ ΠΌΠ°ΡΡΡΠ°Π± ΡΠ΅ΡΡΠ΅ΠΆΠ°.
- ΠΠ°Π½Π΅ΡΠΈΡΠ΅ Π½Π° ΠΏΠ»Π°Π½ ΠΌΠ΅ΡΡΠ° ΡΠ°ΡΠΏΠΎΠ»ΠΎΠΆΠ΅Π½ΠΈΡ ΠΎΡΠΎΠΏΠΈΡΠ΅Π»ΡΠ½ΡΡ ΠΏΡΠΈΠ±ΠΎΡΠΎΠ² (ΠΎΡΠΎΠ±Π΅Π½Π½ΠΎ Π°ΠΊΡΡΠ°Π»ΡΠ½ΠΎ ΡΡΠΎ Π΄Π»Ρ Π·Π°Π³ΠΎΡΠΎΠ΄Π½ΠΎΠ³ΠΎ Π΄ΠΎΠΌΠ°, Π³Π΄Π΅ Π½Π΅Ρ Π²ΠΎΠ·ΠΌΠΎΠΆΠ½ΠΎΡΡΠΈ ΠΏΠΎΠ΄ΠΊΠ»ΡΡΠΈΡΡΡΡ ΠΊ ΡΠ΅Π½ΡΡΠ°Π»ΡΠ½ΠΎΠΌΡ ΠΎΡΠΎΠΏΠ»Π΅Π½ΠΈΡ).
- ΠΠΏΡΠ΅Π΄Π΅Π»ΠΈΡΠ΅ΡΡ Ρ ΡΠ°ΡΠΏΠΎΠ»ΠΎΠΆΠ΅Π½ΠΈΠ΅ΠΌ ΠΊΠΎΠΌΠΌΡΠ½ΠΈΠΊΠ°ΡΠΈΠΉ (Π½Π° ΠΊΡΡ
Π½Π΅, Π² ΡΠ°Π½ΡΠ·Π»Π°Ρ
ΠΈ Ρ.
ΠΏ.) ΠΈ ΠΎΡΠΌΠ΅ΡΡΡΠ΅ ΠΈΡ
Π½Π° ΡΠ΅ΡΡΠ΅ΠΆΠ΅. - ΠΠ°Π½Π΅ΡΠΈΡΠ΅ Π½Π° ΡΠ΅ΡΡΠ΅ΠΆ ΡΠ°Π·ΠΌΠ΅ΡΠΊΡ Ρ ΠΎΡΠ½ΠΎΠ²Π½ΡΠΌΠΈ ΡΠ°Π·ΠΌΠ΅ΡΠ°ΠΌΠΈ ΡΡΠ΅Π½, ΠΏΠ΅ΡΠ΅Π³ΠΎΡΠΎΠ΄ΠΎΠΊ ΠΈ ΠΏΡΠΎΠ΅ΠΌΠΎΠ².
- ΠΠ°ΠΆΠ΄ΠΎΠΌΡ ΠΏΠΎΠΌΠ΅ΡΠ΅Π½ΠΈΡ Π²Π½ΡΡΡΠΈ Π΄ΠΎΠΌΠ° ΠΏΡΠΈΡΠ²ΠΎΠΉΡΠ΅ ΠΏΠΎΡΡΠ΄ΠΊΠΎΠ²ΡΠΉ Π½ΠΎΠΌΠ΅Ρ. Π Π°ΡΡΠΈΡΡΡΠΉΡΠ΅ ΡΡΠΈ Π½ΠΎΠΌΠ΅ΡΠ° β ΠΎΠΏΡΠ΅Π΄Π΅Π»ΠΈΡΠ΅, ΠΊΠ°ΠΊΠ°Ρ ΠΊΠΎΠΌΠ½Π°ΡΠ° ΠΎΠ±ΠΎΠ·Π½Π°ΡΠ΅Π½Π° ΡΠΎΠΉ ΠΈΠ»ΠΈ ΠΈΠ½ΠΎΠΉ ΡΠΈΡΡΠΎΠΉ.
Π‘ΠΎΡΡΠ°Π²Π»ΡΠ΅ΠΌ ΠΏΠ»Π°Π½ Π΄ΠΎΠΌΠ° ΠΏΡΠΈ ΠΏΠΎΠΌΠΎΡΠΈ ΠΏΡΠΎΠ³ΡΠ°ΠΌΠΌΡ, ΡΡΡΠ°Π½ΠΎΠ²Π»Π΅Π½Π½ΠΎΠΉ Π½Π° ΠΊΠΎΠΌΠΏΡΡΡΠ΅Ρ
Π‘Π΅Π³ΠΎΠ΄Π½Ρ, ΠΊΠΎΠ³Π΄Π° Ρ ΠΊΠ°ΠΆΠ΄ΠΎΠ³ΠΎ (Π΄ΠΎΠΌΠ° ΠΈΠ»ΠΈ Π½Π° ΡΠ°Π±ΠΎΡΠ΅) ΠΈΠΌΠ΅Π΅ΡΡΡ ΠΏΠ΅ΡΡΠΎΠ½Π°Π»ΡΠ½ΡΠΉ ΠΊΠΎΠΌΠΏΡΡΡΠ΅Ρ ΠΈΠ»ΠΈ Π½ΠΎΡΡΠ±ΡΠΊ, ΡΠΎΠ²Π΅ΡΡΠ΅Π½Π½ΠΎ Π½Π΅ΠΎΠ±ΡΠ·Π°ΡΠ΅Π»ΡΠ½ΠΎ ΡΡΠ°ΡΠΈΡΡ Π²ΡΠ΅ΠΌΡ ΠΈ Π½Π΅ΡΠ²Ρ Π½Π° ΡΠΎΡΡΠ°Π²Π»Π΅Π½ΠΈΠ΅ ΠΏΠΎΠ»Π½Π° Π΄ΠΎΠΌΠ° ΠΎΡ ΡΡΠΊΠΈ. Π‘ΡΡΠ΅ΡΡΠ²ΡΠ΅Ρ Π½Π΅ΠΊΠΎΡΠΎΡΠΎΠ΅ ΠΊΠΎΠ»ΠΈΡΠ΅ΡΡΠ²ΠΎ ΠΏΡΠΎΠ³ΡΠ°ΠΌΠΌΠ½ΡΡ ΠΏΡΠΎΠ΄ΡΠΊΡΠΎΠ², ΠΊΠΎΡΠΎΡΡΠ΅ ΠΌΠΎΠΆΠ½ΠΎ ΡΠΊΠ°ΡΠ°ΡΡ Π² ΠΈΠ½ΡΠ΅ΡΠ½Π΅Ρ ΠΈ ΡΡΡΠ°Π½ΠΎΠ²ΠΈΡΡ Π½Π° ΡΠ²ΠΎΠΉ ΠΠ. ΠΡΠΈ ΠΏΠΎΠΌΠΎΡΠΈ ΡΡΠΈΡ ΠΏΡΠΎΠ³ΡΠ°ΠΌΠΌ, ΠΌΠ½ΠΎΠ³ΠΈΠ΅ ΠΈΠ· ΠΊΠΎΡΠΎΡΡΡ ΡΠ°ΡΡΡΠΈΡΠ°Π½Ρ Π½Π° Π½Π΅ΠΏΡΠΎΡΠ΅ΡΡΠΈΠΎΠ½Π°Π»ΠΎΠ², ΠΌΠΎΠΆΠ½ΠΎ ΡΠ΅ΡΠΈΡΡ Π²ΠΏΠΎΠ»Π½Π΅ ΠΏΡΠΎΡΠ΅ΡΡΠΈΠΎΠ½Π°Π»ΡΠ½ΡΠ΅ Π·Π°Π΄Π°ΡΠΈ ΠΈ ΡΠΎΡΡΠ°Π²ΠΈΡΡ ΠΏΠ»Π°Π½ Π·Π°Π³ΠΎΡΠΎΠ΄Π½ΠΎΠ³ΠΎ Π΄ΠΎΠΌΠ° Π»ΡΠ±ΠΎΠΉ ΡΠ»ΠΎΠΆΠ½ΠΎΡΡΠΈ.
ΠΠΎΠΊΡΠΏΠ°ΡΡ ΡΠΏΠ΅ΡΠΈΠ°Π»ΠΈΠ·ΠΈΡΠΎΠ²Π°Π½Π½ΠΎΠ΅ ΠΏΡΠΎΠ³ΡΠ°ΠΌΠΌΠ½ΠΎΠ΅ ΠΎΠ±Π΅ΡΠΏΠ΅ΡΠ΅Π½ΠΈΠ΅ Π²ΠΎΠ²ΡΠ΅ Π½Π΅ ΠΎΠ±ΡΠ·Π°ΡΠ΅Π»ΡΠ½ΠΎ. ΠΠΎΡΡΠ°ΡΠΎΡΠ½ΠΎ ΡΠΊΠ°ΡΠ°ΡΡ ΡΡΠ»ΠΎΠ²Π½ΠΎ Π±Π΅ΡΠΏΠ»Π°ΡΠ½ΡΠΉ ΠΏΡΠΎΠ΄ΡΠΊΡ. Π’Π°ΠΊΠΎΠ³ΠΎ ΡΠΎΠ΄Π° ΠΏΡΠΎΠ³ΡΠ°ΠΌΠΌΠ½ΠΎΠ΅ ΠΎΠ±Π΅ΡΠΏΠ΅ΡΠ΅Π½ΠΈΠ΅ Π΄Π°Π΅Ρ Π΄ΠΎΡΡΡΠΏ Π½Π° Π½Π΅ΠΊΠΎΡΠΎΡΡΠΉ ΠΏΡΠΎΠΌΠ΅ΠΆΡΡΠΎΠΊ Π²ΡΠ΅ΠΌΠ΅Π½ΠΈ ΠΈΠ»ΠΈ Π½Π° ΠΊΠΎΠ»ΠΈΡΠ΅ΡΡΠ²ΠΎ Π·Π°ΠΏΡΡΠΊΠΎΠ².
ΠΡΡ ΠΈΡΠ΅ΠΊΡΡΡΠ½ΡΠ΅ ΠΏΡΠΎΠ³ΡΠ°ΠΌΠΌΡ ΠΏΡΠΎΠ΅ΠΊΡΠΈΡΠΎΠ²ΡΠΈΠΊΠΈ ΡΠΏΠΎΡΠΎΠ±Π½Ρ ΡΠΎΠ·Π΄Π°Π²Π°ΡΡ Π΄Π²ΡΡ - ΠΈ Π΄Π°ΠΆΠ΅ ΡΡΠ΅Ρ ΠΌΠ΅ΡΠ½ΡΡ ΠΌΠΎΠ΄Π΅Π»Ρ Π΄ΠΎΠΌΠ° ΠΏΠΎ Π·Π°Π΄Π°Π½Π½ΡΠΌ ΠΏΠ°ΡΠ°ΠΌΠ΅ΡΡΠ°ΠΌ. Π’Π°ΠΊΠΆΠ΅ Π΅ΡΡΡ Π²ΠΎΠ·ΠΌΠΎΠΆΠ½ΠΎΡΡΡ ΡΠΎΡΡΠ°Π²ΠΈΡΡ ΠΏΠ»Π°Π½ Π΄ΠΎΠΌΠ° Π² Π½Π΅ΡΠΊΠΎΠ»ΡΠΊΠΎ ΡΡΠ°ΠΆΠ΅ΠΉ.
ΠΠ΄ΠΈΠ½Π° ΠΈΠ· ΡΠ°ΠΊΠΈΡ ΠΏΡΠΎΠ³ΡΠ°ΠΌΠΌ β ΠΏΡΠΎΠ³ΡΠ°ΠΌΠΌΠ½ΡΠΉ ΠΏΡΠΎΠ΄ΡΠΊΡ Ashampoo Home Designer Pro 2.0. Π£ΡΡΠ°Π½ΠΎΠ²Π»Π΅Π½Π½Π°Ρ Π½Π° ΠΊΠΎΠΌΠΏΡΡΡΠ΅Ρ, Π΄Π°Π½Π½Π°Ρ ΠΏΡΠΎΠ³ΡΠ°ΠΌΠΌΠ° ΠΏΠΎΠΌΠΎΠΆΠ΅Ρ Π²Π°ΠΌ ΡΠΎΡΡΠ°Π²ΠΈΡΡ ΠΏΠ»Π°Π½ Π΄ΠΎΠΌΠ°, ΠΈΡΠΏΠΎΠ»ΡΠ·ΡΡ Π³ΠΎΡΠΎΠ²ΡΠ΅ ΡΠ°Π±Π»ΠΎΠ½Ρ ΠΈ ΠΊΠΎΠ½ΡΡΡΡΠΊΡΠΈΠ²Π½ΡΠ΅ ΡΠ΅ΡΠ΅Π½ΠΈΡ.
ΠΡΠΈΡΡΡΠΏΠ°Ρ ΠΊ ΡΠ°Π±ΠΎΡΠ΅, Π²Π°ΠΌ Π½ΡΠΆΠ½ΠΎ Π±ΡΠ΄Π΅Ρ Π·Π°Π΄Π°ΡΡ ΠΎΡΠ½ΠΎΠ²Π½ΡΠ΅ ΡΠ°Π·ΠΌΠ΅ΡΡ Π·Π΄Π°Π½ΠΈΡ ΠΈ ΠΊΠΎΠ»ΠΈΡΠ΅ΡΡΠ²ΠΎ ΡΡΠ°ΠΆΠ΅ΠΉ. ΠΠ°Π»Π΅Π΅ Π½Π° ΡΠ΅ΡΠ½ΠΎΠ²ΠΎΠΉ ΠΌΠ°ΠΊΠ΅Ρ Π½Π°Π½ΠΎΡΡΡΡΡ Π΄Π²Π΅ΡΠΈ ΠΈ ΠΎΠΊΠ½Π°.
ΠΡΠ»ΠΈ Ρ Π²Π°Ρ ΠΈΠΌΠ΅Π΅ΡΡΡ ΠΏΠ»Π°Π½ ΡΡΠ°ΡΡΠΊΠ°, Π²Ρ ΠΌΠΎΠΆΠ΅ΡΠ΅ Π²Π½Π΅ΡΡΠΈ ΠΊΠ°Π΄Π°ΡΡΡΠΎΠ²ΡΠ΅ Π΄Π°Π½Π½ΡΠ΅ Π² ΠΏΡΠΎΠ³ΡΠ°ΠΌΠΌΡ. 3D ΠΌΠΎΠ΄Π΅Π»Ρ ΠΏΠΎΠ·Π²ΠΎΠ»ΠΈΡ Π²Π°ΠΌ ΡΠ°ΡΡΠΌΠΎΡΡΠ΅ΡΡ Π²Π°Ρ Π±ΡΠ΄ΡΡΠΈΠΉ Π΄ΠΎΠΌ ΠΈ Π΅Π³ΠΎ ΡΠ°ΡΠΏΠΎΠ»ΠΎΠΆΠ΅Π½ΠΈΠ΅ Π½Π° ΠΌΠ΅ΡΡΠ½ΠΎΡΡΠΈ.
Π ΡΡΠ½ΠΊΡΠΈΠΈ ΠΏΡΠΎΠ³ΡΠ°ΠΌΠΌΡ Ashampoo Home Designer Pro 2.0 Π²ΠΊΠ»ΡΡΠ΅Π½Π° Π²ΠΎΠ·ΠΌΠΎΠΆΠ½ΠΎΡΡΡ ΠΏΡΠΎΠ΅ΠΊΡΠΈΡΠΎΠ²ΠΊΠΈ Π½Π΅ ΡΠΎΠ»ΡΠΊΠΎ ΠΏΠΎΠΌΠ΅ΡΠ΅Π½ΠΈΠΉ, Π½ΠΎ ΠΈ ΠΊΡΡΡΠΈ Π±ΡΠ΄ΡΡΠ΅Π³ΠΎ Π΄ΠΎΠΌΠ°. Π’Π°ΠΊΠΆΠ΅ Π΅ΡΡΡ ΡΡΠ½ΠΊΡΠΈΡ ΠΏΠΎ ΠΏΠΎΠ΄Π±ΠΎΡΡ Π²Π½ΡΡΡΠ΅Π½Π½Π΅ΠΉ ΠΎΡΠ΄Π΅Π»ΠΊΠΈ ΠΏΠΎΠΌΠ΅ΡΠ΅Π½ΠΈΠΉ ΠΈ Π΄Π°ΠΆΠ΅ ΡΠ°ΡΡΡΠ°Π½ΠΎΠ²ΠΊΠΈ ΠΌΠ΅Π±Π΅Π»ΠΈ.
Π’Π°ΠΊΠΆΠ΅ Π½Π΅Π΄ΠΎΡΠΎΠ³ΠΈΠΌΠΈ ΠΈ Π΄ΠΎΡΡΠ°ΡΠΎΡΠ½ΠΎ ΡΠ΄ΠΎΠ±Π½ΡΠΌΠΈ, Π° Π³Π»Π°Π²Π½ΠΎΠ΅ β ΠΏΠΎΠ½ΡΡΠ½ΡΠΌΠΈ ( Π΄Π°ΠΆΠ΅ Π½Π΅ΠΎΠΏΡΡΠ½ΠΎΠΌΡ ΠΏΠΎΠ»ΡΠ·ΠΎΠ²Π°ΡΠ΅Π»Ρ), ΡΠ²Π»ΡΡΡΡΡ ΠΏΡΠΎΠ³ΡΠ°ΠΌΠΌΠ½ΡΠ΅ ΠΏΡΠΎΠ΄ΡΠΊΡΡ *ΠΠΈΠ·Π°ΠΉΠ½-ΡΡΡΠ΄ΠΈΡ 3D Home 3.
0* ΠΈΠ»ΠΈ *ArCon Home & ΠΠ°Π½Π΄ΡΠ°ΡΡ*.
ΠΠ½Π»Π°ΠΉΠ½ ΡΠ΅ΡΠ²ΠΈΡΡ
Π‘ΡΡΠ΅ΡΡΠ²ΡΡΡ ΡΠ°ΠΊΠΆΠ΅ ΠΈ ΠΎΠ½Π»Π°ΠΉΠ½ ΠΏΡΠΎΠ³ΡΠ°ΠΌΠΌΡ, ΠΊΠΎΡΠΎΡΡΠ΅ ΠΏΠΎΠ·Π²ΠΎΠ»ΡΡΡ ΡΠΎΡΡΠ°Π²Π»ΡΡΡ 2D ΠΈΠ»ΠΈ 3D ΠΌΠΎΠ΄Π΅Π»ΠΈ Π΄ΠΎΠΌΠ°. ΠΠ΄Π½ΠΈΠΌ ΠΈΠ· ΡΠ°ΠΊΠΈΡ ΡΠ΅ΡΠ²ΠΈΡΠΎΠ² ΡΠ²Π»ΡΠ΅ΡΡΡ ΠΎΠ½Π»Π°ΠΉΠ½ ΠΏΡΠΎΠ΅ΠΊΡΠΈΡΠΎΠ²ΡΠΈΠΊ https://ru.floorplanner.com/.
ΠΠ°ΠΊ ΡΠ΄Π΅Π»Π°ΡΡ ΠΏΡΠΎΠ΅ΠΊΡ Π΄ΠΎΠΌΠ° ΡΠ°ΠΌΠΎΡΡΠΎΡΡΠ΅Π»ΡΠ½ΠΎ: ΠΊΠ°ΠΊ ΠΏΡΠ°Π²ΠΈΠ»ΡΠ½ΠΎ ΡΠΎΡΡΠ°Π²ΠΈΡΡ ΠΈ Π½Π°ΡΠ΅ΡΡΠΈΡΡ ΠΏΠ»Π°Π½ ΠΆΠΈΠ»ΡΡ ΡΠ²ΠΎΠΈΠΌΠΈ ΡΡΠΊΠ°ΠΌΠΈ
Π‘ΠΎΠ±ΡΡΠ²Π΅Π½Π½ΠΎΠ΅ Π·Π°Π³ΠΎΡΠΎΠ΄Π½ΠΎΠ΅ ΠΆΠΈΠ»ΡΠ΅ ΠΏΠΎ ΠΌΠ½ΠΎΠ³ΠΈΠΌ ΠΏΠ°ΡΠ°ΠΌΠ΅ΡΡΠ°ΠΌ Π²ΡΠΈΠ³ΡΡΠ²Π°Π΅Ρ Ρ Π³ΠΎΡΠΎΠ΄ΡΠΊΠΎΠΉ ΠΊΠ²Π°ΡΡΠΈΡΡ Π² ΠΌΠ½ΠΎΠ³ΠΎΡΡΠ°ΠΆΠΊΠ΅. ΠΡΠΈ ΡΡΠΎΠΌ ΡΠ»Π΅Π΄ΡΠ΅Ρ ΠΏΠΎΠ½ΠΈΠΌΠ°ΡΡ, ΡΡΠΎ ΡΡΡΠΎΠΈΡΠ΅Π»ΡΡΡΠ²ΠΎ ΠΆΠΈΠ»ΠΎΠ³ΠΎ Π·Π΄Π°Π½ΠΈΡ β Π΄Π΅Π»ΠΎ Π²Π΅ΡΡΠΌΠ° Π½Π΅ΠΏΡΠΎΡΡΠΎΠ΅, Π½Π΅Π΄Π΅ΡΠ΅Π²ΠΎΠ΅. Π, ΠΏΠΎΠΆΠ°Π»ΡΠΉ, ΡΠ°ΠΌΠΎΠ΅ ΡΡΡΠ΅ΡΡΠ²Π΅Π½Π½ΠΎΠ΅ Π·Π°ΡΡΡΠ΄Π½Π΅Π½ΠΈΠ΅, Ρ ΠΊΠΎΡΠΎΡΡΠΌ ΠΌΠΎΠΆΠ΅Ρ ΡΡΠΎΠ»ΠΊΠ½ΡΡΡΡΡ ΡΠΎΠ±ΡΡΠ²Π΅Π½Π½ΠΈΠΊ Π·Π΅ΠΌΠ΅Π»ΡΠ½ΠΎΠ³ΠΎ ΡΡΠ°ΡΡΠΊΠ° β ΡΡΠΎ ΠΏΡΠΎΠ΅ΠΊΡΠΈΡΠΎΠ²Π°Π½ΠΈΠ΅. ΠΠΎΡΡΠΎΠΌΡ Π²ΡΠ΅ΠΌ, ΠΊΡΠΎ ΠΏΡΠΈΡΡΡΠΏΠ°Π΅Ρ ΠΊ ΠΏΠΎΡΡΡΠΎΠΉΠΊΠ΅ ΡΠ°ΡΡΠ½ΠΎΠ³ΠΎ ΠΆΠΈΠ»ΠΈΡΠ°, Π½Π΅ ΠΏΠΎΠΌΠ΅ΡΠ°Π΅Ρ Π·Π½Π°ΡΡ, ΠΊΠ°ΠΊ ΡΠ΄Π΅Π»Π°ΡΡ ΠΏΡΠΎΠ΅ΠΊΡ Π΄ΠΎΠΌΠ° ΡΠ°ΠΌΠΎΡΡΠΎΡΡΠ΅Π»ΡΠ½ΠΎ ΡΠ²ΠΎΠΈΠΌΠΈ ΡΡΠΊΠ°ΠΌΠΈ.
Π§ΡΠΎ Π½ΡΠΆΠ½ΠΎ ΡΡΠΈΡΡΠ²Π°ΡΡ ΠΏΡΠΈ ΡΠΎΡΡΠ°Π²Π»Π΅Π½ΠΈΠΈ
Π Π°ΡΡΡΠΈΡΠ°ΡΡ Π½ΡΠΆΠ½ΡΠ΅ ΠΏΠ°ΡΠ°ΠΌΠ΅ΡΡΡ ΠΈ Π²ΡΠ΅ Π³ΡΠ°ΠΌΠΎΡΠ½ΠΎ ΡΠΏΠ»Π°Π½ΠΈΡΠΎΠ²Π°ΡΡ Π±Π΅Π· ΠΏΡΠΈΠ²Π»Π΅ΡΠ΅Π½ΠΈΡ ΠΎΠΏΡΡΠ½ΡΡ
ΡΠΏΠ΅ΡΠΈΠ°Π»ΠΈΡΡΠΎΠ² Π΄ΠΎΠ²ΠΎΠ»ΡΠ½ΠΎ ΡΠ»ΠΎΠΆΠ½ΠΎ, Π½ΠΎ Π²ΡΠ΅-ΡΠ°ΠΊΠΈ ΡΠ΅Π°Π»ΡΠ½ΠΎ.
ΠΠ»Π°Π²Π½ΠΎΠ΅, ΡΡΠΎ Π½Π΅ΠΎΠ±Ρ
ΠΎΠ΄ΠΈΠΌΠΎ Π±ΡΠ°ΡΡ Π²ΠΎ Π²Π½ΠΈΠΌΠ°Π½ΠΈΠ΅ ΠΏΡΠΈ ΠΏΠ»Π°Π½ΠΈΡΠΎΠ²Π°Π½ΠΈΠΈ:
- Π€ΡΠ½ΠΊΡΠΈΠΎΠ½Π°Π»ΡΠ½ΠΎΡΡΡ. ΠΠΎΠ·Π²Π΅Π΄Π΅Π½Π½ΠΎΠ΅ ΠΆΠΈΠ»ΡΠ΅ ΠΏΠΎ ΠΈΡΠΎΠ³Ρ Π΄ΠΎΠ»ΠΆΠ½ΠΎ Π±ΡΡΡ ΠΌΠ°ΠΊΡΠΈΠΌΠ°Π»ΡΠ½ΠΎ ΠΊΠΎΠΌΡΠΎΡΡΠ½ΡΠΌ ΠΈ ΠΏΡΠ°ΠΊΡΠΈΡΠ½ΡΠΌ.
- ΠΡΠΎΡΡΠΎΡΠ° ΡΠΎΠΎΡΡΠΆΠ΅Π½ΠΈΡ. ΠΠ΅ ΡΠ»Π΅Π΄ΡΠ΅Ρ Π±ΡΠ°ΡΡΡΡ Π·Π° ΡΠ΅Π°Π»ΠΈΠ·Π°ΡΠΈΡ ΡΠ»ΠΈΡΠΊΠΎΠΌ ΠΌΡΠ΄ΡΠ΅Π½ΡΡ ΠΏΡΠΎΠ΅ΠΊΡΠ½ΡΡ ΡΠ΅ΡΠ΅Π½ΠΈΠΉ. ΠΠΎΠ³Π°ΡΠ°Ρ ΡΠ°Π½ΡΠ°Π·ΠΈΡ β ΡΡΠΎ Π±Π΅Π·ΡΡΠ»ΠΎΠ²Π½ΠΎ Π·Π΄ΠΎΡΠΎΠ²ΠΎ, Π½ΠΎ Π±Π΅Π· ΡΠΎΠΎΡΠ²Π΅ΡΡΡΠ²ΡΡΡΠΈΡ Π½Π°Π²ΡΠΊΠΎΠ² ΠΈ ΠΎΠ±ΡΠ°Π·ΠΎΠ²Π°Π½ΠΈΡ ΡΠ΄Π΅Π»Π°ΡΡ Π²ΡΠ΅ ΠΏΡΠ°Π²ΠΈΠ»ΡΠ½ΠΎ ΡΠ°ΠΌΠΎΠΌΡ Π½Π΅ ΡΠ΄Π°ΡΡΡΡ.
- ΠΡΡΠ΅ΡΠΈΠΊΠ°. ΠΠ½Π° Π²Π°ΠΆΠ½Π° Π½Π΅ ΠΌΠ΅Π½Π΅Π΅ ΠΏΡΠ°ΠΊΡΠΈΡΠ½ΠΎΡΡΠΈ. ΠΠΎΡΡΡΠΎΠ΅Π½Π½ΡΠΉ ΠΎΠ±ΡΠ΅ΠΊΡ ΠΎΠ±ΡΠ·Π°Π½ ΡΠ°Π΄ΠΎΠ²Π°ΡΡ Π³Π»Π°Π· ΡΠ²ΠΎΠ΅Π³ΠΎ Π²Π»Π°Π΄Π΅Π»ΡΡΠ°, Π±ΡΡΡ ΠΏΡΠΈΠ²Π»Π΅ΠΊΠ°ΡΠ΅Π»ΡΠ½ΡΠΌ ΠΊΠ°ΠΊ Ρ Π²Π½Π΅ΡΠ½Π΅ΠΉ ΡΡΠΎΡΠΎΠ½Ρ, ΡΠ°ΠΊ ΠΈ Π²Π½ΡΡΡΠΈ.
ΠΡΡΠ΅ΠΏΠ΅ΡΠ΅ΡΠΈΡΠ»Π΅Π½Π½ΡΠ΅ ΠΏΡΠΈΠ½ΡΠΈΠΏΡ Π½Π΅ΠΎΠ±Ρ ΠΎΠ΄ΠΈΠΌΠΎ ΠΎΠ±ΡΠ·Π°ΡΠ΅Π»ΡΠ½ΠΎ ΡΡΠΈΡΡΠ²Π°ΡΡ. Π’ΠΎΠ»ΡΠΊΠΎ ΡΠ»Π΅Π΄ΡΡ ΠΈΠΌ ΠΌΠΎΠΆΠ½ΠΎ ΡΠΏΡΠ°Π²ΠΈΡΡΡΡ Ρ ΠΏΠΎΡΡΠ°Π²Π»Π΅Π½Π½ΠΎΠΉ Π·Π°Π΄Π°ΡΠ΅ΠΉ. Π‘ΡΠΎΠΈΡ Π΅ΡΠ΅ ΡΠ°Π· Π½Π°ΠΏΠΎΠΌΠ½ΠΈΡΡ, ΡΡΠΎ Π² Π΄Π°Π½Π½ΠΎΠΌ ΡΠ»ΡΡΠ°Π΅ ΡΠ΅ΡΡ ΠΈΠ΄Π΅Ρ ΠΎ ΠΏΠΎΡΡΡΠΎΠΉΠΊΠ΅ ΡΠ°ΠΌΠΎΠ³ΠΎ ΠΏΡΠΎΡΡΠΎΠ³ΠΎ Π² ΠΏΡΠΎΠ΅ΠΊΡΠ½ΠΎΠΌ ΠΎΡΠ½ΠΎΡΠ΅Π½ΠΈΠΈ ΡΠ°ΡΡΠ½ΠΎΠ³ΠΎ Π·Π΄Π°Π½ΠΈΡ. Π‘ ΠΏΡΠΎΠ΅ΠΊΡΠΈΡΠΎΠ²ΠΊΠΎΠΉ Π΄Π°ΠΆΠ΅ ΡΡΠ΅Π΄Π½Π΅ΠΉ ΡΠ»ΠΎΠΆΠ½ΠΎΡΡΠΈ Π»ΡΠ±ΠΈΡΠ΅Π»Ρ ΡΠ°ΠΌ Π½Π΅ ΡΠΏΡΠ°Π²ΠΈΡΡΡ.
ΠΡΠΎΠ³ΡΠ°ΠΌΠΌΡ Π΄Π»Ρ ΠΏΡΠΎΠ΅ΠΊΡΠΈΡΠΎΠ²Π°Π½ΠΈΡ Π΄ΠΎΠΌΠΎΠ² ΡΠ°ΠΌΠΎΡΡΠΎΡΡΠ΅Π»ΡΠ½ΠΎ
ΠΡΠΈ ΡΠ°ΠΊΠΎΠΉ ΡΠ°Π·ΡΠ°Π±ΠΎΡΠΊΠ΅ ΡΡ Π΅ΠΌΡ ΠΏΠΎΡΡΡΠΎΠΉΠΊΠΈ Ρ ΠΏΠΎΠΌΠΎΡΡΡ ΠΊΠΎΠΌΠΏΡΡΡΠ΅ΡΠ½ΠΎΠ³ΠΎ ΠΏΡΠΈΠ»ΠΎΠΆΠ΅Π½ΠΈΡ Π½ΡΠΆΠ½ΠΎ:
- Π·Π½Π°ΡΡ ΡΠ°ΠΌΡ ΠΏΡΠΎΠ³ΡΠ°ΠΌΠΌΡ, Π² ΠΊΠΎΡΠΎΡΠΎΠΉ ΠΏΡΠ΅Π΄ΡΡΠΎΠΈΡ ΡΠ°Π±ΠΎΡΠ°ΡΡ;
- ΠΏΠΎΠ½ΠΈΠΌΠ°ΡΡ ΡΡΠΎ ΠΈ ΠΊΠ°ΠΊ Π½Π΅ΠΎΠ±Ρ ΠΎΠ΄ΠΈΠΌΠΎ ΠΏΠ»Π°Π½ΠΈΡΠΎΠ²Π°ΡΡ;
-
ΠΈΠΌΠ΅ΡΡ ΠΏΡΠ΅Π΄ΡΡΠ°Π²Π»Π΅Π½ΠΈΠ΅ ΠΎΠ± Π°ΡΡ
ΠΈΡΠ΅ΠΊΡΡΡΠ½ΠΎΠΌ ΠΏΠ»Π°Π½ΠΈΡΠΎΠ²Π°Π½ΠΈΠΈ (ΠΆΠ΅Π»Π°ΡΠ΅Π»ΡΠ½ΠΎ Π½Π΅ ΠΏΠΎΠ½Π°ΡΠ»ΡΡΠΊΠ΅).

ΠΠ΅Π· ΡΡΠΈΡ ΡΡΠ΅Ρ ΠΎΠ±ΡΠ·Π°ΡΠ΅Π»ΡΠ½ΡΡ ΡΡΠ»ΠΎΠ²ΠΈΠΉ ΠΏΠΎΡΡΡΠΎΠΈΡΡ ΡΠΎΠ±ΡΡΠ²Π΅Π½Π½ΠΎΠ΅ ΠΆΠΈΠ»ΡΠ΅ ΠΏΠΎ ΡΠΎΠ±ΡΡΠ²Π΅Π½Π½ΠΎΡΡΡΠ½ΠΎ ΡΠΎΠ·Π΄Π°Π½Π½ΠΎΠΌΡ ΠΏΡΠΎΠ΅ΠΊΡΡ Π½Π΅Π²ΠΎΠ·ΠΌΠΎΠΆΠ½ΠΎ.
ΠΠ½Π»Π°ΠΉΠ½ ΠΠ
Π Π΅ΡΠ°Ρ ΡΠΏΡΠΎΠ΅ΠΊΡΠΈΡΠΎΠ²Π°ΡΡ Π±ΡΠ΄ΡΡΡΡ ΠΏΠΎΡΡΡΠΎΠΉΠΊΡ ΡΠ°ΠΊΠΈΠΌ ΡΠΏΠΎΡΠΎΠ±ΠΎΠΌ, Π²Π°ΠΆΠ½ΠΎ ΠΏΠΎΠ½ΠΈΠΌΠ°ΡΡ, ΡΡΠΎ ΠΏΠΎΠ»Π½ΠΎΡΠ΅Π½Π½ΡΡ ΠΈΠ½ΡΡΡΡΠΌΠ΅Π½ΡΠΎΠ² Π² Π΄Π°Π½Π½ΠΎΠΌ ΡΠΎΡΠΌΠ°ΡΠ΅ Π½Π΅ ΡΡΡΠ΅ΡΡΠ²ΡΠ΅Ρ. ΠΠ°, Π΅ΡΡΡ ΡΠ΅ΡΠ΅Π²ΡΠ΅ ΡΠ΅ΡΡΡΡΡ, ΠΏΠΎΠ·Π²ΠΎΠ»ΡΡΡΠΈΠ΅ ΠΎΡΡΡΠ΅ΡΡΠ²ΠΈΡΡ ΠΏΠ»Π°Π½ΠΈΡΠΎΠ²ΠΊΡ ΠΈ Π΄Π°ΠΆΠ΅ ΡΠ°ΡΡΠΌΠΎΡΡΠ΅ΡΡ Π΅Π΅ Π² 3D Π½Π° ΠΊΠΎΠΌΠΏΡΡΡΠ΅ΡΠ΅. ΠΠ΄Π½Π°ΠΊΠΎ ΠΎΠ±ΡΠ΅ΠΌΠ½ΠΎΠ΅ ΠΌΠΎΠ΄Π΅Π»ΠΈΡΠΎΠ²Π°Π½ΠΈΠ΅ Π² Π½ΡΠ½Π΅ΡΠ½ΠΈΠΉ ΠΌΠΎΠΌΠ΅Π½Ρ Π²ΡΠ΅ Π΅ΡΠ΅ Π½Π΅Π΄ΠΎΡΡΠ³Π°Π΅ΠΌΠΎ.
Floorplanner
ΠΠΎΠ²ΠΎΠ»ΡΠ½ΠΎ ΠΏΠΎΠΏΡΠ»ΡΡΠ½Π°Ρ ΠΏΡΠΎΠ³ΡΠ°ΠΌΠΌΠ°. ΠΡΠΈΠ²Π»Π΅ΠΊΠ°Π΅Ρ ΠΏΠΎΠ»ΡΠ·ΠΎΠ²Π°ΡΠ΅Π»Π΅ΠΉ ΠΏΠΎΠ½ΡΡΠ½ΡΠΌ ΠΈΠ½ΡΠ΅ΡΡΠ΅ΠΉΡΠΎΠΌ, Π΄Π°Π΅Ρ Π²ΠΎΠ·ΠΌΠΎΠΆΠ½ΠΎΡΡΡ Π΄ΠΎΠ±Π°Π²Π»ΡΡΡ ΠΎΠΏΠΈΡΠ°Π½ΠΈΡ, ΡΠΎΡΠΎ ΠΈ Π²ΠΈΠ΄Π΅ΠΎΡΠΎΠ»ΠΈΠΊΠΈ Π² ΡΠΎΠ·Π΄Π°Π²Π°Π΅ΠΌΡΠΉ ΠΏΡΠΎΠ΅ΠΊΡ. ΠΡΠΈΠ΅Π½ΡΠΈΡΠΎΠ²Π°Π½Π° Π±ΠΎΠ»ΡΡΠ΅ Π½Π° ΡΠΈΡΠ»ΡΠΎΡΠΎΠ², ΡΠΎΠ·Π΄Π°ΡΡΠΈΡ ΠΏΡΠ΅Π·Π΅Π½ΡΠ°ΡΠΈΠΈ ΠΆΠΈΠ»ΡΡ Π·Π΄Π°Π½ΠΈΠΉ.
Autodesk Homestyler
ΠΠΎΠΆΠ°Π»ΡΠΉ, Π»ΡΡΡΠΈΠΉ Π²Π°ΡΠΈΠ°Π½Ρ Π΄Π»Ρ ΡΠΎΠ³ΠΎ, ΠΊΡΠΎ ΡΠ΅ΡΠ°Π΅Ρ Π·Π°Π΄Π°ΡΡ, ΠΊΠ°ΠΊ ΠΈ ΠΈΠ· ΡΠ΅Π³ΠΎ ΠΌΠΎΠΆΠ½ΠΎ ΡΠ΄Π΅Π»Π°ΡΡ ΠΏΠ»Π°Π½ΠΈΡΠΎΠ²ΠΊΡ Π΄ΠΎΠΌΠ° ΡΠ°ΠΌΠΎΡΡΠΎΡΡΠ΅Π»ΡΠ½ΠΎ. ΠΡΠ° Π²Π΅ΡΡΠΈΡ ΡΠ²Π»ΡΠ΅ΡΡΡ Π½Π΅ ΡΠΎΠ»ΡΠΊΠΎ ΠΏΡΠΈΠ»ΠΎΠΆΠ΅Π½ΠΈΠ΅ΠΌ Π΄Π»Ρ ΡΠΎΠ·Π΄Π°Π½ΠΈΡ ΡΡ
Π΅ΠΌΡ ΡΡΡΠΎΠΈΡΠ΅Π»ΡΡΡΠ²Π° Π±ΡΠ΄ΡΡΠ΅Π³ΠΎ ΠΆΠΈΠ»ΠΈΡΠ°, Π½ΠΎ ΠΈ ΡΠ΅ΡΠ΅Π²ΡΠΌ ΠΌΠ°Π³Π°Π·ΠΈΠ½ΠΎΠΌ ΠΏΠΎ ΡΠ΅Π°Π»ΠΈΠ·Π°ΡΠΈΠΈ ΠΏΡΠ΅Π΄ΠΌΠ΅ΡΠΎΠ² ΠΌΠ΅Π±Π΅Π»ΠΈ ΠΈ ΡΡΡΠΎΠΉΠΌΠ°ΡΠ΅ΡΠΈΠ°Π»ΠΎΠ².
ΠΠΎΠ·Π²ΠΎΠ»ΡΠ΅Ρ Π·Π°Π΄Π°Π²Π°ΡΡ ΠΏΠ°ΡΠ°ΠΌΠ΅ΡΡΡ Π²ΡΡΡΠ½ΡΡ ΠΈ Π½Π°ΡΡΡΠ°ΠΈΠ²Π°ΡΡ ΡΠΎΠ»ΡΠΈΠ½Ρ ΡΡΠ΅Π½ ΡΡΡΠΎΠ΅Π½ΠΈΡ.
ΠΡΠΎΡΠ΅ΡΡΠΈΠΎΠ½Π°Π»ΡΠ½ΡΠ΅ ΠΎΡΠ»Π°ΠΉΠ½-ΠΏΡΠΎΠ³ΡΠ°ΠΌΠΌΡ
ΠΡΠΎ ΡΠΆΠ΅ Π±ΠΎΠ»Π΅Π΅ ΡΠ΅ΡΡΠ΅Π·Π½ΡΠΉ ΠΏΠΎΠ΄Ρ ΠΎΠ΄ ΠΊ ΡΠ΅ΡΠ΅Π½ΠΈΡ Π²ΠΎΠΏΡΠΎΡΠ°. ΠΠΎ ΡΡΠ°Π²Π½Π΅Π½ΠΈΡ Ρ ΠΎΠ½Π»Π°ΠΉΠ½-Π²Π°ΡΠΈΠ°Π½ΡΠ°ΠΌΠΈ ΠΏΡΠ΅Π΄ΠΎΡΡΠ°Π²Π»ΡΡΡ Π±ΠΎΠ»ΡΡΠ΅ Π²ΠΎΠ·ΠΌΠΎΠΆΠ½ΠΎΡΡΠ΅ΠΉ Π΄Π»Ρ ΡΠ΅Π°Π»ΠΈΠ·Π°ΡΠΈΠΈ ΠΈΠ΄Π΅ΠΉ.
Graphisoft ArchiCAD
ΠΠΏΡΠΈΠΌΠ°Π»ΡΠ½Π°Ρ Π²Π΅ΡΡΠΈΡ Π΄Π»Ρ ΡΠΎΠ·Π΄Π°Π½ΠΈΡ Π³ΠΎΡΠΎΠ²ΠΎΠΉ ΡΡ Π΅ΠΌΡ Π±ΡΠ΄ΡΡΠ΅Π³ΠΎ ΠΆΠΈΠ»ΡΡ. ΠΡΠΎΠ΄ΠΎΠ»ΠΆΠΈΡΠ΅Π»ΡΠ½ΠΎΠ΅ Π²ΡΠ΅ΠΌΡ ΠΎΠ½Π° Π»ΠΈΠ΄ΠΈΡΠΎΠ²Π°Π»Π° Π½Π° ΡΡΠ½ΠΊΠ΅ ΠΊΠΎΠΌΠΏΡΡΡΠ΅ΡΠ½ΠΎΠ³ΠΎ ΠΏΡΠΎΠ΅ΠΊΡΠΈΡΠΎΠ²Π°Π½ΠΈΡ. ΠΠΎ ΡΡΡΠΈ, ΡΡΠΎ ΡΠ΅Π»Π°Ρ ΠΏΡΠΎΠ΅ΠΊΡΠ½Π°Ρ ΡΠΈΡΡΠ΅ΠΌΠ°, ΠΏΠΎΠ·Π²ΠΎΠ»ΡΡΡΠ°Ρ Π³ΡΠ°ΠΌΠΎΡΠ½ΠΎ ΡΡΠΎΡΠΌΠΈΡΠΎΠ²Π°ΡΡ ΠΈ ΡΠΎΠ²ΠΌΠ΅ΡΡΠΈΡΡ Π²ΡΠ΅ Π΄Π΅ΡΠ°Π»ΠΈ ΠΏΡΠΎΠ΅ΠΊΡΠ°. ΠΡΠ΅ΠΆΠ΄Π΅ ΡΠ΅ΠΌ ΠΏΡΠΈΡΡΡΠΏΠ°ΡΡ ΠΊ ΡΠΎΡΡΠ°Π²Π»Π΅Π½ΠΈΡ ΡΠ΅ΡΡΠ΅ΠΆΠ΅ΠΉ, ΠΏΠΎΠ»ΡΠ·ΠΎΠ²Π°ΡΠ΅Π»Ρ ΠΏΡΠ΅Π΄ΡΡΠΎΠΈΡ ΠΏΡΠΎΠΉΡΠΈ ΠΎΠ±ΡΡΠ°ΡΡΠΈΠΉ ΠΊΡΡΡ ΠΏΠΎ ΡΠ°Π±ΠΎΡΠ΅ Ρ Π΄Π°Π½Π½ΡΠΌ ΠΈΠ½ΡΡΡΡΠΌΠ΅Π½ΡΠΎΠΌ.
Autodesk Revit
ΠΡΠ½Π΅ΡΠ½ΠΈΠΉ Π±Π΅Π·ΡΡΠ»ΠΎΠ²Π½ΡΠΉ Π»ΠΈΠ΄Π΅Ρ. ΠΠ΅Π΄ΡΡΠΈΠΌ Π΄ΠΎΡΡΠΎΠΈΠ½ΡΡΠ²ΠΎΠΌ ΠΏΡΠΎΠ³ΡΠ°ΠΌΠΌΡ Π²ΡΡΡΡΠΏΠ°Π΅Ρ ΠΎΡΠ»ΠΈΡΠ½Π°Ρ ΠΈΠ½ΡΠ΅Π³ΡΠ°ΡΠΈΡ Ρ ΠΈΠ½ΡΠΌΠΈ ΠΏΡΠΎΠ΄ΡΠΊΡΠ°ΠΌΠΈ ΡΡΠΎΠΉ ΠΊΠΎΠΌΠΏΠ°Π½ΠΈΠΈ, Π·Π°ΡΡΠ°Π³ΠΈΠ²Π°ΡΡΠΈΠΌΠΈ ΠΏΡΠΎΠ΅ΠΊΡΠ½ΡΡ Π΄Π΅ΡΡΠ΅Π»ΡΠ½ΠΎΡΡΡ. Π‘ Π΅Π΅ ΠΏΠΎΠΌΠΎΡΡΡ ΠΌΠΎΠΆΠ½ΠΎ ΡΠΌΠΎΠ΄Π΅Π»ΠΈΡΠΎΠ²Π°ΡΡ ΠΎΠ΄Π½ΠΎΠ²ΡΠ΅ΠΌΠ΅Π½Π½ΠΎ (Π² Π²ΠΈΠ΄Π΅ Π΅Π΄ΠΈΠ½ΠΎΠΉ ΠΌΠΎΠ΄Π΅Π»ΠΈ) Π²ΡΠ΅ ΠΊΠΎΠ½ΡΡΡΡΠΊΡΠΈΠΈ, ΠΊΠΎΠΌΠΌΡΠ½ΠΈΠΊΠ°ΡΠΈΠΈ ΠΈ Π°ΡΡ
ΠΈΡΠ΅ΠΊΡΡΡΠ½ΡΠ΅ ΡΠ»Π΅ΠΌΠ΅Π½ΡΡ.
ΠΠ±ΡΠΈΡΠ½ΡΠ΅ Π²ΠΎΠ·ΠΌΠΎΠΆΠ½ΠΎΡΡΠΈ Π΄Π΅Π»Π°ΡΡ Π΅Π΅ ΠΎΡΠ΅Π½Ρ ΠΏΠΎΠΏΡΠ»ΡΡΠ½ΠΎΠΉ ΡΡΠ΅Π΄ΠΈ ΠΏΡΠΎΡΠ΅ΡΡΠΈΠΎΠ½Π°Π»ΠΎΠ².
ΠΠ΅ΠΎΠ»ΠΎΠ³ΠΈΡΠ΅ΡΠΊΠ°Ρ ΡΠ°Π·Π²Π΅Π΄ΠΊΠ° ΡΡΠ°ΡΡΠΊΠ°
ΠΠ΅Π· Π½Π΅Π΅ Π½Π΅Π»ΡΠ·Ρ ΠΏΡΠΈΡΡΡΠΏΠ°ΡΡ ΠΊ ΡΠ°Π±ΠΎΡΠ΅ Π½Π°Π΄ ΡΠΎΠ·Π΄Π°Π½ΠΈΠ΅ΠΌ ΡΡ Π΅ΠΌΡ Π±ΡΠ΄ΡΡΠ΅Π³ΠΎ ΠΆΠΈΠ»ΡΡ. ΠΡΠ΅Π½Ρ Π²Π°ΠΆΠ½ΠΎ Π·Π°ΡΠ°Π½Π΅Π΅ ΠΈΡΡΠ»Π΅Π΄ΠΎΠ²Π°ΡΡ Ρ Π°ΡΠ°ΠΊΡΠ΅ΡΠ½ΡΠ΅ ΠΎΡΠΎΠ±Π΅Π½Π½ΠΎΡΡΠΈ ΠΌΠ΅ΡΡΠ½ΠΎΡΡΠΈ. ΠΡΡΡΠ½ΠΈΡΡ ΡΠΎΡΡΠ°Π² Π³ΡΡΠ½ΡΠ°, ΡΠ·Π½Π°ΡΡ Π³Π»ΡΠ±ΠΈΠ½Ρ Π·Π°Π»Π΅Π³Π°Π½ΠΈΡ ΠΏΠ»Π°ΡΡΠΎΠ² ΠΏΠΎΠ΄Π·Π΅ΠΌΠ½ΡΡ Π²ΠΎΠ΄. ΠΠΏΡΠΈΠΌΠ°Π»ΡΠ½ΠΎΠ΅ Π²ΡΠ΅ΠΌΡ ΠΏΡΠΎΠ²Π΅Π΄Π΅Π½ΠΈΡ ΡΠ°Π·Π²Π΅Π΄ΡΠ²Π°ΡΠ΅Π»ΡΠ½ΡΡ Π΄Π΅ΠΉΡΡΠ²ΠΈΠΉ β Π²Π΅ΡΠ½Π°. ΠΠΌΠ΅Π½Π½ΠΎ Π² ΡΡΠΎΡ ΠΏΠ΅ΡΠΈΠΎΠ΄ ΡΠ΄Π°ΡΡΡΡ ΠΏΠΎΠ»ΡΡΠΈΡΡ ΠΌΠ°ΠΊΡΠΈΠΌΠ°Π»ΡΠ½ΠΎ Π΄ΠΎΡΡΠΎΠ²Π΅ΡΠ½ΡΠ΅ ΠΏΠΎΠΊΠ°Π·Π°ΡΠ΅Π»ΠΈ.
ΠΠ°ΡΠ°Π»ΡΠ½ΡΠΉ ΡΡΠ°ΠΏ ΠΏΡΠΎΠ΅ΠΊΡΠΈΡΠΎΠ²Π°Π½ΠΈΡ
ΠΡΠΎ ΠΏΠ΅ΡΠ²ΠΎΠ΅, ΡΡΠΎ Π½ΡΠΆΠ½ΠΎ ΡΠ΄Π΅Π»Π°ΡΡ, Π·Π°Π΄Π°Π²Π°ΡΡΡ Π²ΠΎΠΏΡΠΎΡΠΎΠΌ: ΠΊΠ°ΠΊ ΡΠΏΡΠΎΠ΅ΠΊΡΠΈΡΠΎΠ²Π°ΡΡ Π΄ΠΎΠΌ. ΠΠ»Ρ ΡΡΠΎΠ³ΠΎ ΠΏΡΠ΅Π΄ΡΡΠΎΠΈΡ Π²Π·ΡΡΡ Π»ΠΈΡΡ Π±ΡΠΌΠ°Π³ΠΈ (Π»ΡΡΡΠ΅ ΡΠ΅ΡΡΠ°Π΄Π½ΡΠΉ Π² ΠΊΠ»Π΅ΡΠΊΡ) ΠΈ ΠΊΠ°ΡΠ°Π½Π΄Π°Ρ. ΠΡΠ½ΠΎΠ²Π½ΠΎΠΉ ΠΌΠΎΠΌΠ΅Π½Ρ β Π·Π°Π΄Π°ΡΡ ΠΏΡΠ°Π²ΠΈΠ»ΡΠ½ΡΠΉ ΠΌΠ°ΡΡΡΠ°Π±. ΠΠ±ΠΎΠ·Π½Π°ΡΡΡΠ΅ ΡΡΠ»ΠΎΠ²Π½ΠΎ 10 ΠΌ Π·Π΅ΠΌΠ»ΠΈ Π·Π° Π΄Π²Π΅ ΠΊΠ»Π΅ΡΠΎΡΠΊΠΈ. Π Π΄Π°Π»ΡΠ½Π΅ΠΉΡΠ΅ΠΌ 1 ΡΠΌ Π½Π° Π»ΠΈΡΡΠΊΠ΅ Π±ΡΠ΄Π΅Ρ ΡΠ°Π²Π΅Π½ 10 ΠΌ Π½Π° ΡΡΠ°ΡΡΠΊΠ΅.
ΠΡΠΆΠ½Π° Π½Π°ΡΠ° ΠΊΠΎΠ½ΡΡΠ»ΡΡΠ°ΡΠΈΡ?
ΠΡΠ»ΠΈ ΠΏΡΠΈ ΡΠ°Π±ΠΎΡΠ΅ Ρ ΡΠ°ΠΉΡΠΎΠΌ ΠΈΠ»ΠΈ Π² ΠΏΡΠΎΡΠ΅ΡΡΠ΅ Π²ΡΠ±ΠΎΡΠ° ΠΏΡΠΎΠ΅ΠΊΡΠ° Ρ Π²Π°Ρ Π²ΠΎΠ·Π½ΠΈΠΊΠ»ΠΈ Π²ΠΎΠΏΡΠΎΡΡ, ΠΎΠ±ΡΠ°ΡΠΈΡΠ΅ΡΡ Π·Π° ΠΏΠΎΠΌΠΎΡΡΡ ΠΊ Π½Π°ΠΌ
ΠΠ°Π½Π΅ΡΠΈΡΠ΅ ΠΊΠΎΠ½ΡΡΡΡ ΡΠ°ΠΌΠΎΠ³ΠΎ Π½Π°Π΄Π΅Π»Π° ΠΈ Π±ΡΠ΄ΡΡΠΈΡ
ΠΏΠΎΡΡΡΠΎΠ΅ΠΊ.
ΠΡΠΈ Π²ΡΠΏΠΎΠ»Π½Π΅Π½ΠΈΠΈ ΡΠ»Π΅Π΄ΠΈΡΠ΅ Π·Π° ΡΠΎΠ±Π»ΡΠ΄Π΅Π½ΠΈΠ΅ΠΌ ΠΌΠ°ΡΡΡΠ°Π±Π½ΠΎΠ³ΠΎ ΡΠΎΠΎΡΠ²Π΅ΡΡΡΠ²ΠΈΡ. ΠΡΡ
ΠΎΠ΄Ρ ΠΈΠ· ΡΠ°Π·ΠΌΠ΅ΡΠΎΠ² 1/1000 ΠΌΠΎΠΆΠ½ΠΎ Π΄ΠΎΡΡΠ°ΡΠΎΡΠ½ΠΎ Π±ΡΡΡΡΠΎ ΠΈ Π±Π΅Π· ΠΏΡΠΎΠ±Π»Π΅ΠΌ Π½Π°ΡΠ΅ΡΡΠΈΡΡ Π½ΡΠΆΠ½ΡΡ ΡΡ
Π΅ΠΌΡ. ΠΡΠΈ ΡΠΎΡΡΠ°Π²Π»Π΅Π½ΠΈΠΈ Π½Π΅ΠΎΠ±Ρ
ΠΎΠ΄ΠΈΠΌΠΎ ΡΡΠΈΡΡΠ²Π°ΡΡ Π½Π΅ ΡΠΎΠ»ΡΠΊΠΎ Π³ΡΠ°Π½ΠΈΡΡ ΡΠΎΠ±ΡΡΠ²Π΅Π½Π½ΠΎΠ³ΠΎ Π·Π΅ΠΌΠ΅Π»ΡΠ½ΠΎΠ³ΠΎ Π½Π°Π΄Π΅Π»Π°, Π½ΠΎ ΠΈ Π²ΡΠ΅ Π½Π°Ρ
ΠΎΠ΄ΡΡΠΈΠ΅ΡΡ Π½Π° Π½Π΅ΠΌ ΠΎΠ±ΡΠ΅ΠΊΡΡ, ΠΊΠΎΡΠΎΡΡΠ΅ Π½Π΅Π²ΠΎΠ·ΠΌΠΎΠΆΠ½ΠΎ Π±ΡΠ΄Π΅Ρ ΡΠ½Π΅ΡΡΠΈ ΠΈΠ»ΠΈ ΠΏΠ΅ΡΠ΅Π½Π΅ΡΡΠΈ Π² ΠΏΠ΅ΡΡΠΏΠ΅ΠΊΡΠΈΠ²Π΅. Π’ΠΎΠ»ΡΠΊΠΎ ΠΏΠΎΡΠ»Π΅ ΠΈΡ
ΠΎΠ±ΠΎΠ·Π½Π°ΡΠ΅Π½ΠΈΡ ΠΌΠΎΠΆΠ½ΠΎ ΠΏΡΠΈΡΡΡΠΏΠ°ΡΡ ΠΊ Π½Π΅ΠΏΠΎΡΡΠ΅Π΄ΡΡΠ²Π΅Π½Π½ΠΎΠΌΡ ΠΏΡΠΎΠ΅ΠΊΡΠΈΡΠΎΠ²Π°Π½ΠΈΡ ΠΆΠΈΠ»ΠΎΠ³ΠΎ Π·Π΄Π°Π½ΠΈΡ.
ΠΠΎΠ΄Π²Π°Π»ΡΠ½ΠΎΠ΅ ΠΏΠΎΠΌΠ΅ΡΠ΅Π½ΠΈΠ΅
ΠΡΠ½ΠΎΠ²Π°Π½ΠΈΠ΅ ΠΏΠΎΠ΄Π²Π°Π»Π° Π΄Π°Π»Π΅ΠΊΠΎ Π½Π΅ Π²ΡΠ΅Π³Π΄Π° Π±ΡΠ²Π°Π΅Ρ ΡΠ΅Π»Π΅ΡΠΎΠΎΠ±ΡΠ°Π·Π½ΡΠΌ. Π’Π°ΠΊ, Π΅ΡΠ»ΠΈ ΠΏΠΎΠ΄Π·Π΅ΠΌΠ½ΡΠ΅ Π²ΠΎΠ΄Ρ Π·Π°Π»Π΅Π³Π°ΡΡ ΡΠ»ΠΈΡΠΊΠΎΠΌ Π±Π»ΠΈΠ·ΠΊΠΎ ΠΊ ΠΏΠΎΠ²Π΅ΡΡ Π½ΠΎΡΡΠΈ, ΠΎΡ Π΅Π³ΠΎ ΡΡΡΠΎΠΈΡΠ΅Π»ΡΡΡΠ²Π° Π»ΡΡΡΠ΅ ΠΎΡΠΊΠ°Π·Π°ΡΡΡΡ. Π ΠΏΡΠΎΡΠΈΠ²Π½ΠΎΠΌ ΡΠ»ΡΡΠ°Π΅ Π΅Π³ΠΎ ΠΎΠ±ΡΡΡΡΠΎΠΉΡΡΠ²ΠΎ ΠΎΠ±ΠΎΠΉΠ΄Π΅ΡΡΡ Π² ΠΊΡΡΠ³Π»ΡΡ ΡΡΠΌΠΌΡ. ΠΠΎΡΠ°Π·Π΄ΠΎ ΠΏΡΠ°ΠΊΡΠΈΡΠ½Π΅Π΅ Π±ΡΠ΄Π΅Ρ ΠΏΡΠΎΠ΄ΡΠΌΠ°ΡΡ Π΄ΠΎΠΏΠΎΠ»Π½ΠΈΡΠ΅Π»ΡΠ½ΡΡ ΠΊΠΎΠΌΠ½Π°ΡΡ Π² ΠΊΠ°ΡΠ΅ΡΡΠ²Π΅ ΡΠ΅Ρ Π½ΠΈΡΠ΅ΡΠΊΠΎΠ³ΠΎ ΠΎΡΠ΄Π΅Π»Π°.
ΠΠ΅ΡΠ²ΡΠΉ ΡΡΠ°ΠΆ
ΠΡΠΎΠ±ΡΠ°Π·ΠΈΡΠ΅ Π½Π° ΡΡΠΊΠΈΠ·Π΅ ΡΠ°ΠΌΠ±ΡΡ ΠΈ Π·ΠΎΠ½Ρ ΠΏΡΠΈΡ ΠΎΠΆΠ΅ΠΉ. ΠΡ Π½ΠΈΡ Π±ΡΠ΄Π΅Ρ ΡΠ΄ΠΎΠ±Π½Π΅Π΅ ΠΏΠ΅ΡΠ΅Ρ ΠΎΠ΄ΠΈΡΡ ΠΊ ΠΊΡΡ Π½Π΅ ΠΈ ΠΊΠΎΠΌΠ½Π°ΡΠ°ΠΌ. Π Π°Π·ΠΌΡΡΠ»ΡΡ, ΠΊΠ°ΠΊ Π½Π°ΡΠΈΡΠΎΠ²Π°ΡΡ ΡΠ΅ΡΡΠ΅ΠΆ Π΄ΠΎΠΌΠ°, Π½Π΅ Π·Π°Π±ΡΠ²Π°ΠΉΡΠ΅, ΡΡΠΎ ΡΠ°Π·ΠΌΠ΅ΡΠ°ΡΡ ΠΈΡ Π½ΡΠΆΠ½ΠΎ, ΡΡΠΈΡΡΠ²Π°Ρ ΡΡΠ΄ Π½ΡΠ°Π½ΡΠΎΠ²:
- ΡΡΠ°Π»Π΅Ρ, Π²Π°Π½Π½ΡΡ ΠΈ ΠΎΠ±Π»Π°ΡΡΡ Π΄Π»Ρ ΠΏΡΠΈΠ³ΠΎΡΠΎΠ²Π»Π΅Π½ΠΈΡ ΠΏΠΈΡΠΈ ΡΠ»Π΅Π΄ΡΠ΅Ρ ΡΠ°ΡΠΏΠΎΠ»ΠΎΠΆΠΈΡΡ Π½Π΅Π΄Π°Π»Π΅ΠΊΠΎ Π΄ΡΡΠ³ ΠΎΡ Π΄ΡΡΠ³Π°;
- ΠΏΠΎΡΡΠ°ΡΠ°ΠΉΡΠ΅ΡΡ ΠΈΠ·Π±Π΅ΠΆΠ°ΡΡ ΠΏΠ»Π°Π½ΠΈΡΠΎΠ²Π°Π½ΠΈΡ ΠΏΡΠΎΡ ΠΎΠ΄Π½ΡΡ ΠΆΠΈΠ»ΡΡ ΠΏΠΎΠΌΠ΅ΡΠ΅Π½ΠΈΠΉ;
-
ΠΈΠΌΠ΅Π½Π½ΠΎ Π²Π½ΠΈΠ·Ρ Π·Π΄Π°Π½ΠΈΡ Π½Π΅ΠΎΠ±Ρ
ΠΎΠ΄ΠΈΠΌΠΎ ΠΏΡΠ΅Π΄ΡΡΠΌΠΎΡΡΠ΅ΡΡ Π½Π°Π»ΠΈΡΠΈΠ΅ ΡΠ΅Ρ
Π½ΠΈΡΠ΅ΡΠΊΠΈΡ
ΠΎΠ±ΡΠ΅ΠΊΡΠΎΠ² ΠΈ ΠΎΡΠ΄Π΅Π»Π΅Π½ΠΈΠΉ, ΡΡΠΎ ΠΎΠ±Π΅ΡΠΏΠ΅ΡΠΈΡ Π² Π΄Π°Π»ΡΠ½Π΅ΠΉΡΠ΅ΠΌ ΠΌΠ°ΠΊΡΠΈΠΌΠ°Π»ΡΠ½ΠΎΠ΅ ΡΠ΄ΠΎΠ±ΡΡΠ²ΠΎ ΠΆΠΈΠ»ΡΡΠ°ΠΌ.

ΠΠ°Π»Π΅Π΅ ΠΏΠ΅ΡΠ΅Ρ ΠΎΠ΄ΠΈΡΠ΅ ΠΊ ΡΠ°Π·ΠΌΠ΅ΡΠ΅Π½ΠΈΡ Π΄Π²Π΅ΡΠ½ΡΡ ΠΈ ΠΎΠΊΠΎΠ½Π½ΡΡ ΠΏΡΠΎΠ΅ΠΌΠΎΠ². ΠΡΠΈ ΡΡΠΎΠΌ ΠΎΠ±ΡΠ°ΡΠΈΡΠ΅ Π²Π½ΠΈΠΌΠ°Π½ΠΈΠ΅ Π½Π° ΠΌΠ΅ΡΡΠΎΡΠ°ΡΠΏΠΎΠ»ΠΎΠΆΠ΅Π½ΠΈΠ΅ ΡΡΡΠΎΠ΅Π½ΠΈΡ ΠΈ ΡΡΡΠΈΡΠ΅ ΠΏΡΠ΅Π΄ΠΏΠΎΠ»Π°Π³Π°Π΅ΠΌΡΠΉ ΡΡΠΎΠ²Π΅Π½Ρ ΠΎΡΠ²Π΅ΡΠ΅Π½Π½ΠΎΡΡΠΈ.
ΠΡΠΎΡΠΎΠΉ ΡΡΠ°ΠΆ
Π‘ Π²Π΅ΡΡ Π½Π΅ΠΉ ΡΠ°ΡΡΡΡ ΠΎΠ±ΡΠ΅ΠΊΡΠ° Π±ΡΠ΄Π΅Ρ Π½Π°ΠΌΠ½ΠΎΠ³ΠΎ ΠΏΡΠΎΡΠ΅, ΡΠ°ΠΊ ΠΊΠ°ΠΊ ΠΊΠΎΠΌΠ½Π°ΡΡ Π·Π΄Π΅ΡΡ Π±ΡΠ΄ΡΡ ΡΠ°ΡΠΏΠΎΠ»Π°Π³Π°ΡΡΡΡ Π² ΡΡ ΠΎΠΆΠ΅ΠΌ ΠΏΠΎΡΡΠ΄ΠΊΠ΅. ΠΠ΅ Π·Π°Π±ΡΠ²Π°ΠΉΡΠ΅, ΡΡΠΎ Π½Π΅Π»ΡΠ·Ρ ΠΌΠ΅Π½ΡΡΡ Π²Π·Π°ΠΈΠΌΠ½ΠΎΠ΅ ΠΏΠΎΠ»ΠΎΠΆΠ΅Π½ΠΈΠ΅ ΡΠ°Π½ΡΠ·Π»ΠΎΠ². Π ΠΏΡΠΎΡΠΈΠ²Π½ΠΎΠΌ ΡΠ»ΡΡΠ°Π΅ ΠΏΡΠΎΡΠ΅ΡΡ ΠΏΠΎΠ΄Π²Π΅Π΄Π΅Π½ΠΈΡ ΡΡΡΠ± ΡΡΡΠ΅ΡΡΠ²Π΅Π½Π½ΠΎ ΡΡΠ»ΠΎΠΆΠ½ΠΈΡΡΡ. ΠΡΡΠ°Π΅ΡΡΡ ΡΠΏΠ»Π°Π½ΠΈΡΠΎΠ²Π°ΡΡ ΠΌΠ΅ΡΡΠ° Π΄Π»Ρ Π΄Π²Π΅ΡΠ΅ΠΉ ΠΈ ΠΎΠΊΠΎΠ½. ΠΠ° Π·Π°ΠΌΠ΅ΡΠΊΡ: ΡΠΏΠ΅ΡΠΈΠ°Π»ΠΈΡΡΡ ΡΠΎΠ²Π΅ΡΡΡΡ ΠΎΠ±ΡΡΡΡΠ°ΠΈΠ²Π°ΡΡ Π΄Π²Π° Π²Ρ ΠΎΠ΄Π° Π½Π° Π²Π΅ΡΡ Π·Π΄Π°Π½ΠΈΡ (Ρ ΡΠ»ΠΈΡΡ ΠΈ Ρ ΠΏΠ΅ΡΠ²ΠΎΠ³ΠΎ ΡΡΠΎΠ²Π½Ρ).
ΠΠ°Π½ΡΠ°ΡΠ΄Π° ΠΈ ΠΊΡΡΡΠ°
ΠΡΠΎΠ΅ΠΊΡΠΈΡΡΡ Π΄Π°Π½Π½ΡΠ΅ ΠΎΠ±ΡΠ΅ΠΊΡΡ, ΠΏΠΎΠΌΠ½ΠΈΡΠ΅ ΠΎ ΠΏΡΠΎΡΡΠΎΡΠ΅. Π§ΡΠ΅Π·ΠΌΠ΅ΡΠ½ΠΎ ΡΠ»ΠΎΠΆΠ½Π°Ρ ΡΠΎΡΠΌΠ° ΠΊΡΠΎΠ²Π»ΠΈ ΠΏΡΠ΅Π²ΡΠ°ΡΠΈΡ ΡΡΡΠΎΠΈΡΠ΅Π»ΡΠ½ΡΠΉ ΠΏΡΠΎΡΠ΅ΡΡ Π² Π½Π°ΡΡΠΎΡΡΠ΅Π΅ ΠΈΡΠΏΡΡΠ°Π½ΠΈΠ΅. Π’Π΅ΠΌ Π±ΠΎΠ»Π΅Π΅, Π±Π΅Π· ΡΠΎΠΎΡΠ²Π΅ΡΡΡΠ²ΡΡΡΠ΅Π³ΠΎ ΠΎΠΏΡΡΠ° ΠΈ Π·Π½Π°Π½ΠΈΠΉ ΡΠΏΡΠ°Π²ΠΈΡΡΡΡ Ρ ΡΡΠΎΠΉ Π·Π°Π΄Π°ΡΠ΅ΠΉ Π½Π΅Π²ΠΎΠ·ΠΌΠΎΠΆΠ½ΠΎ. Π£ΠΊΡΡΠ²Π½Π°Ρ ΠΊΠΎΠ½ΡΡΡΡΠΊΡΠΈΡ ΡΠ²Π»ΡΠ΅ΡΡΡ ΠΎΠ΄Π½ΠΎΠΉ ΠΈΠ· ΡΠ°ΠΌΡΡ
Π²Π°ΠΆΠ½ΡΡ
Π² Π΄ΠΎΠΌΠ΅. ΠΠΎΡΡΠΎΠΌΡ Π·Π°Π±ΡΠ²Π°ΡΡ ΠΎ ΠΏΡΠ°ΠΊΡΠΈΡΠ½ΠΎΡΡΠΈ ΠΈ Π½Π°Π΄Π΅ΠΆΠ½ΠΎΡΡΠΈ Π² ΠΏΠΎΠ³ΠΎΠ½Π΅ Π·Π° ΡΡΡΠ΅ΠΊΡΠ½ΡΠΌ Π²Π½Π΅ΡΠ½ΠΈΠΌ Π²ΠΈΠ΄ΠΎΠΌ ΠΎΠΏΡΠ΅Π΄Π΅Π»Π΅Π½Π½ΠΎ Π½Π΅ ΡΡΠΎΠΈΡ.
ΠΡΠΈ ΠΏΡΠΎΡΠΈΡΠΎΠ²ΠΊΠ΅ ΠΎΡΡΠ°Π»ΠΊΠΈΠ²Π°ΠΉΡΠ΅ΡΡ ΠΎΡ Π½Π°ΠΈΠ±ΠΎΠ»Π΅Π΅ ΠΏΡΠΎΡΡΡΡ
Π² ΡΠ΅Π°Π»ΠΈΠ·Π°ΡΠΈΠΈ ΠΈΠ΄Π΅ΠΉ.
ΠΡΠ°ΠΌΠΎΡΠ½ΠΎΠ΅ ΡΠ°Π·ΠΌΠ΅ΡΠ΅Π½ΠΈΠ΅ ΠΊΠΎΠΌΠ½Π°Ρ
ΠΡΠΈ Π²ΠΎΠ·Π²Π΅Π΄Π΅Π½ΠΈΠΈ ΠΆΠΈΠ»ΠΎΠ³ΠΎ Π·Π΄Π°Π½ΠΈΡ ΡΠ»Π΅Π΄ΡΠ΅Ρ ΠΏΡΠΈΠ΄Π΅ΡΠΆΠΈΠ²Π°ΡΡΡΡ ΠΎΠ΄Π½ΠΎΠ³ΠΎ Π²Π°ΠΆΠ½ΠΎΠ³ΠΎ ΠΏΡΠ°Π²ΠΈΠ»Π° β Π²ΡΠ΅ ΡΠ΅Ρ Π½ΠΈΡΠ΅ΡΠΊΠΈΠ΅ ΠΏΠΎΠΌΠ΅ΡΠ΅Π½ΠΈΡ ΠΎΠ±ΡΡΡΡΠ°ΠΈΠ²Π°ΠΉΡΠ΅ Π² ΡΠ΅Π²Π΅ΡΠ½ΠΎΠΉ ΡΠ°ΡΡΠΈ. ΠΠΎΠ½Π΅ΡΠ½ΠΎ, Π½ΠΈΠΊΡΠΎ Π½Π΅ ΠΎΡΠΌΠ΅Π½ΡΠ» ΡΠ΅ΠΏΠ»ΠΎΠΈΠ·ΠΎΠ»ΡΡΠΈΡ ΠΈ ΠΎΠ½Π° ΠΏΡΠ΅ΠΊΡΠ°ΡΠ½ΠΎ ΡΠΏΡΠ°Π²Π»ΡΠ΅ΡΡΡ ΡΠΎ ΡΠ²ΠΎΠΈΠΌΠΈ ΡΡΠ½ΠΊΡΠΈΡΠΌΠΈ. ΠΠΎ ΡΠ΅ΡΠ°Ρ Π²ΠΎΠΏΡΠΎΡ, ΠΊΠ°ΠΊ ΡΠΏΠ»Π°Π½ΠΈΡΠΎΠ²Π°ΡΡ Π΄ΠΎΠΌ ΡΠ°ΠΌΠΎΠΌΡ, ΡΠ°ΡΠΏΠΎΠ»Π°Π³Π°Ρ ΡΠΏΠ°Π»ΡΠ½ΠΈ ΠΈ ΠΏΠΎΠΌΠ΅ΡΠ΅Π½ΠΈΡ ΠΎΠ±ΡΠ΅Π³ΠΎ ΠΏΠΎΠ»ΡΠ·ΠΎΠ²Π°Π½ΠΈΡ Π½Π° ΡΠΆΠ½ΠΎΠΉ ΡΡΠΎΡΠΎΠ½Π΅, ΡΠ΄Π°ΡΡΡΡ Π½Π΅ΠΏΠ»ΠΎΡ ΠΎ ΡΡΠΊΠΎΠ½ΠΎΠΌΠΈΡΡ Π½Π° ΠΎΡΠΎΠΏΠ»Π΅Π½ΠΈΠΈ ΠΈ ΠΎΡΠ²Π΅ΡΠ΅Π½ΠΈΠΈ.
Π£ΡΠ²Π΅ΡΠΆΠ΄Π΅Π½ΠΈΠ΅ ΠΏΡΠΎΠ΅ΠΊΡΠ°
ΠΠ°ΠΆΠ΅ Π΅ΡΠ»ΠΈ Π²Ρ ΡΠΏΡΠ°Π²ΠΈΠ»ΠΈΡΡ Ρ Π·Π°Π΄Π°ΡΠ΅ΠΉ ΠΈ ΡΠ°ΠΌΠΎΡΡΠΎΡΡΠ΅Π»ΡΠ½ΠΎ ΡΠΏΡΠΎΠ΅ΠΊΡΠΈΡΠΎΠ²Π°Π»ΠΈ Π±ΡΠ΄ΡΡΠ΅Π΅ ΠΆΠΈΠ»ΠΈΡΠ΅, Π½Π΅ΠΎΠ±Ρ ΠΎΠ΄ΠΈΠΌΠΎ ΠΏΠΎΠΊΠ°Π·Π°ΡΡ ΡΠ΅Π·ΡΠ»ΡΡΠ°Ρ ΠΎΠΏΡΡΠ½ΡΠΌ ΡΠΏΠ΅ΡΠΈΠ°Π»ΠΈΡΡΠ°ΠΌ. ΠΠ΅ΡΠ΅Π΄ ΡΡΠ°ΡΡΠΎΠΌ Π·Π°ΡΡΡΠΎΠΉΠΊΠΈ Π½Π΅ ΠΏΠΎΠΌΠ΅ΡΠ°Π΅Ρ ΠΏΡΠΎΠ΄Π΅ΠΌΠΎΠ½ΡΡΡΠΈΡΠΎΠ²Π°ΡΡ ΠΈΡΠΎΠ³ΠΈ ΠΏΡΠΎΠ΅ΠΊΡΠΈΡΠΎΠ²Π°Π½ΠΈΡ Π°ΡΡ ΠΈΡΠ΅ΠΊΡΠΎΡΡ ΠΈΠ»ΠΈ ΠΏΡΠΎΡΠ°Π±Ρ. ΠΡ ΠΌΠ½Π΅Π½ΠΈΠ΅ ΠΎΠΏΡΠ΅Π΄Π΅Π»Π΅Π½Π½ΠΎ Π½Π΅ Π±ΡΠ΄Π΅Ρ Π»ΠΈΡΠ½ΠΈΠΌ. ΠΡΠΎΠΌΠ΅ ΡΠΎΠ³ΠΎ, Π² Π»ΡΠ±ΠΎΠΌ ΡΠ»ΡΡΠ°Π΅ ΠΏΡΠ΅Π΄ΡΡΠΎΠΈΡ ΡΠΎΠ³Π»Π°ΡΠΎΠ²Π°ΡΡ ΡΠ°ΠΊΠΈΠ΅ ΠΌΠΎΠΌΠ΅Π½ΡΡ, ΠΊΠ°ΠΊ:
- ΠΏΠΎΠ΄Π²ΠΎΠ΄ΠΊΠ° ΡΠ»Π΅ΠΊΡΡΠΈΡΠ΅ΡΡΠ²Π°;
- ΠΎΡΠ³Π°Π½ΠΈΠ·Π°ΡΠΈΡ ΠΊΠ°Π½Π°Π»ΠΈΠ·Π°ΡΠΈΠΈ;
-
ΠΏΠΎΠ΄Π²Π΅Π΄Π΅Π½ΠΈΠ΅ ΡΡΡΠ± Π²ΠΎΠ΄ΠΎΡΠ½Π°Π±ΠΆΠ΅Π½ΠΈΡ.

ΠΡΠ΅ Π²ΡΡΠ΅ΡΠΊΠ°Π·Π°Π½Π½ΡΠ΅ Π½ΡΠ°Π½ΡΡ Π½Π΅ ΡΠ²Π»ΡΡΡΡΡ Π°ΡΡ ΠΈΡΠ΅ΠΊΡΡΡΠ½ΠΎΠΉ ΠΈΠ»ΠΈ ΡΡΡΠ΅ΡΠΈΡΠ΅ΡΠΊΠΎΠΉ ΡΡΠΎΡΠΎΠ½ΠΎΠΉ Π΄Π΅Π»Π°. ΠΡΠΎ Π½Π°ΡΡΡΠ½ΡΠ΅ Π²ΠΎΠΏΡΠΎΡΡ, ΡΡΠ΅Π±ΡΡΡΠΈΠ΅ ΡΠ²ΠΎΠ΅Π²ΡΠ΅ΠΌΠ΅Π½Π½ΠΎΠ³ΠΎ ΡΠ΅ΡΠ΅Π½ΠΈΡ. Π Π°Π·ΠΎΠ±ΡΠ°ΡΡΡΡ Ρ Π»ΡΠ±ΡΠΌΠΈ Π²ΠΎΠ·Π½ΠΈΠΊΠ°ΡΡΠΈΠΌΠΈ ΠΏΡΠΎΠ±Π»Π΅ΠΌΠ°ΠΌΠΈ ΡΠΏΠΎΡΠΎΠ±Π½Ρ ΡΠΎΠ»ΡΠΊΠΎ ΠΎΠΏΡΡΠ½ΡΠ΅ ΠΌΠ°ΡΡΠ΅ΡΠ°.
Π’Π°ΠΊ, Π²ΠΎ ΠΈΠ·Π±Π΅ΠΆΠ°Π½ΠΈΠ΅ Π»ΠΈΡΠ½ΠΈΡ ΡΠ»ΠΎΠΆΠ½ΠΎΡΡΠ΅ΠΉ, ΡΡΠΎΠΈΡ ΠΎΠ±ΡΠ°ΡΠΈΡΡΡΡ Π·Π° ΠΏΠΎΠΌΠΎΡΡΡ ΠΊ ΡΠΏΠ΅ΡΠΈΠ°Π»ΠΈΡΡΠ°ΠΌ Β«ΠΠ²ΠΈΡΠΎΠ½ ΠΠ΅Π²Π΅Π»ΠΎΠΏΠΌΠ΅Π½ΡΒ». ΠΠ°ΡΠ° Π΄Π΅Π²Π΅Π»ΠΎΠΏΠ΅ΡΡΠΊΠ°Ρ ΠΊΠΎΠΌΠΏΠ°Π½ΠΈΡ ΠΏΠΎΠΌΠΎΠΆΠ΅Ρ ΠΏΡΠΎΠ°Π½Π°Π»ΠΈΠ·ΠΈΡΠΎΠ²Π°ΡΡ ΡΠ»ΠΎΠΆΠΈΠ²ΡΡΡΡΡ ΡΠΈΡΡΠ°ΡΠΈΡ ΠΎΡΡΡΠΊΠ°ΡΡ ΠΎΠΏΡΠΈΠΌΠ°Π»ΡΠ½ΡΠΉ Π²Π°ΡΠΈΠ°Π½Ρ ΡΠ΅ΡΠ΅Π½ΠΈΡ Π·Π°Π΄Π°ΡΠΈ ΠΌΠ°ΠΊΡΠΈΠΌΠ°Π»ΡΠ½ΠΎ Π±ΡΡΡΡΠΎ ΠΈ ΡΡΡΠ΅ΠΊΡΠΈΠ²Π½ΠΎ. ΠΡ Ρ Π±ΠΎΠ»ΡΡΠΎΠΉ ΡΠΎΡΠ½ΠΎΡΡΡΡ Π²ΡΠΏΠΎΠ»Π½ΡΡ Π²ΡΠ΅ Π²Π°ΡΠΈ ΠΏΠΎΠΆΠ΅Π»Π°Π½ΠΈΡ ΠΈ ΡΡΠ΅Π±ΠΎΠ²Π°Π½ΠΈΡ ΠΎΡΠ½ΠΎΡΠΈΡΠ΅Π»ΡΠ½ΠΎ Π²ΠΎΠ·Π²ΠΎΠ΄ΠΈΠΌΠΎΠ³ΠΎ ΠΎΠ±ΡΠ΅ΠΊΡΠ°.
ΠΠΎΡΡΠ°ΠΏΠ½Π°Ρ ΠΈΠ½ΡΡΡΡΠΊΡΠΈΡ, ΠΊΠ°ΠΊ ΠΏΡΠ°Π²ΠΈΠ»ΡΠ½ΠΎ Π½Π°ΡΠ΅ΡΡΠΈΡΡ ΠΏΠ»Π°Π½ Π΄ΠΎΠΌΠ° ΡΠ°ΠΌΠΎΠΌΡ Π½Π° Π±ΡΠΌΠ°Π³Π΅
ΠΡΠΈΠ½ΠΈΠΌΠ°ΡΡΡ Π·Π° Π΄Π΅Π»ΠΎ, ΡΠ»Π΅Π΄ΡΠ΅Ρ ΡΠ°Π·Π±ΠΈΡΡ Π²Π΅ΡΡ ΠΏΡΠΎΡΠ΅ΡΡ Π½Π° ΡΡΠ°ΠΏΡ ΠΈ ΠΏΠΎΡΠ»Π΅Π΄ΠΎΠ²Π°ΡΠ΅Π»ΡΠ½ΠΎ ΠΈΡ Π²ΡΠΏΠΎΠ»Π½ΡΡΡ.
ΠΠ»Π°Π½ΠΈΡΠΎΠ²Π°Π½ΠΈΠ΅
ΠΠ΅ΡΠ²ΡΠΌ Π΄Π΅Π»ΠΎΠΌ ΠΏΠΎΠ΄ΡΠΌΠ°ΠΉΡΠ΅ ΠΎ Π±ΡΠ΄ΡΡΠ΅ΠΉ ΠΏΠΎΡΡΡΠΎΠΉΠΊΠ΅ Π² ΠΎΠ±ΡΠ΅ΠΌ. ΠΡΠΈΠΊΠΈΠ½ΡΡΠ΅ ΠΏΡΠ΅Π΄ΠΏΠΎΠ»Π°Π³Π°Π΅ΠΌΡΠ΅ ΡΠ°Π·ΠΌΠ΅ΡΡ Π·Π΄Π°Π½ΠΈΡ, ΠΎΠΏΡΠ΅Π΄Π΅Π»ΠΈΡΠ΅ ΡΠ΅Π»Π΅Π²ΠΎΠ΅ Π½Π°Π·Π½Π°ΡΠ΅Π½ΠΈΠ΅ ΠΎΡΠ½ΠΎΠ²Π½ΠΎΠ³ΠΎ ΡΡΡΠΎΠ΅Π½ΠΈΡ ΠΈ Π²ΡΠΏΠΎΠΌΠΎΠ³Π°ΡΠ΅Π»ΡΠ½ΡΡ
ΠΎΠ±ΡΠ΅ΠΊΡΠΎΠ².
ΠΡΡΡΠ½ΠΈΡΠ΅, Π½ΡΠΆΠ΅Π½ Π»ΠΈ Π²Π°ΠΌ Π³Π°ΡΠ°ΠΆ ΠΈΠ»ΠΈ Π±Π΅ΡΠ΅Π΄ΠΊΠ°. ΠΠ·ΡΡΠΈΡΠ΅ Π³Π΅ΠΎΠ³ΡΠ°ΡΠΈΡΠ΅ΡΠΊΠΈΠ΅ ΠΎΡΠΎΠ±Π΅Π½Π½ΠΎΡΡΠΈ ΡΠΎΠ±ΡΡΠ²Π΅Π½Π½ΠΎΠ³ΠΎ Π·Π΅ΠΌΠ΅Π»ΡΠ½ΠΎΠ³ΠΎ Π½Π°Π΄Π΅Π»Π°. Π£Π·Π½Π°ΠΉΡΠ΅, Π½Π°Ρ
ΠΎΠ΄ΡΡΡΡ Π»ΠΈ Π½Π° ΡΠ΅ΡΡΠΈΡΠΎΡΠΈΠΈ ΠΏΠΎΠ΄Π²ΠΎΠ΄ΠΊΠΈ Π²ΠΎΠ΄ΠΎΠΏΡΠΎΠ²ΠΎΠ΄Π° ΠΈ ΠΊΠ°Π½Π°Π»ΠΈΠ·Π°ΡΠΈΠΈ.
ΠΡΠΊΠΈΠ·Ρ
ΠΠ° Π²ΡΠΎΡΠΎΠΌ ΡΡΠ°ΠΏΠ΅ Π²ΡΠ΅ Π²ΡΡΠ²Π»Π΅Π½Π½ΡΠ΅ Π½ΡΠ°Π½ΡΡ, Π° ΡΠ°ΠΊΠΆΠ΅ Π»ΠΈΡΠ½ΡΠ΅ ΠΏΠΎΠΆΠ΅Π»Π°Π½ΠΈΡ ΠΊΠΎΠΌΠΏΠΎΠ½ΡΡΡΡΡ Π² ΠΎΠ΄Π½Ρ ΠΎΠ±ΡΡΡ ΠΌΠΎΠ΄Π΅Π»Ρ. ΠΡΠΈ ΡΡΠΎΠΌ ΠΎΠΏΡΠ΅Π΄Π΅Π»ΡΠ΅ΡΡΡ ΡΡΠ°ΠΆΠ½ΠΎΡΡΡ, ΡΠΈΡΠ»ΠΎ Π²Π½ΡΡΡΠ΅Π½Π½ΠΈΡ ΠΏΠΎΠΌΠ΅ΡΠ΅Π½ΠΈΠΉ (ΡΠ΅Ρ Π½ΠΈΡΠ΅ΡΠΊΠΈΡ ΠΈ ΠΆΠΈΠ»ΡΡ ). ΠΠΎ ΡΡΡΠ΅ΡΡΠ²Ρ, ΡΡΠΊΠΈΠ·Π½ΡΠΉ ΠΏΡΠΎΠ΅ΠΊΡ β ΡΡΠΎ Π½Π°Π±ΡΠΎΡΠΎΠΊ, Π½Π° ΠΊΠΎΡΠΎΡΠΎΠΌ Π±ΡΠ΄ΡΡΠΈΠ΅ ΡΡΡΠΎΠ΅Π½ΠΈΡ ΠΈΠ·ΠΎΠ±ΡΠ°ΠΆΠ΅Π½Ρ Ρ ΡΠ°Π·Π½ΡΡ ΡΡΠΎΡΠΎΠ½: ΡΠ°ΡΠ°Π΄, Π²ΠΈΠ΄ ΡΠ±ΠΎΠΊΡ, ΡΠ·Π°Π΄ΠΈ, Π² ΡΠ°Π·ΡΠ΅Π·Π΅. Π ΡΡΠΎΡ ΠΆΠ΅ ΠΌΠΎΠΌΠ΅Π½Ρ ΡΠΎΡΠΌΠΈΡΡΡΡ ΡΠΏΠΈΡΠΎΠΊ ΡΡΠ΅Π±ΡΠ΅ΠΌΡΡ ΡΡΡΠΎΠΉΠΌΠ°ΡΠ΅ΡΠΈΠ°Π»ΠΎΠ² ΠΈ ΠΈΡ ΠΊΠΎΠ»ΠΈΡΠ΅ΡΡΠ²ΠΎ, ΡΠΊΠ°Π·ΡΠ²Π°ΡΡ ΡΠΈΠΏ ΠΊΡΡΡΠΈ, ΡΠΎΠ»ΡΠΈΠ½Ρ ΡΡΠ΅Π½ ΠΈ ΠΏΠ°ΡΠ°ΠΌΠ΅ΡΡΡ ΠΏΠ΅ΡΠ΅ΠΊΡΡΡΠΈΠΉ.
Π‘Ρ Π΅ΠΌΠ° ΡΠ°Π±ΠΎΡΡ
Π ΡΡΠΎ ΡΠΆΠ΅ ΠΏΠΎΠ»Π½ΠΎΡΠ΅Π½Π½Π°Ρ ΠΈΠ½ΡΡΡΡΠΊΡΠΈΡ ΡΡΡΠΎΠΈΡΠ΅Π»ΡΠ½ΠΎΠ³ΠΎ ΠΏΠΎΠ΄ΡΡΠ΄Π°. ΠΠ½Π° Π΄ΠΎΠ»ΠΆΠ½Π° ΠΏΠΎΠ»Π½ΠΎΡΡΡΡ ΠΎΠΏΠΈΡΡΠ²Π°ΡΡ Π²ΡΠ΅ ΠΏΡΠ΅Π΄ΡΡΠΎΡΡΠΈΠ΅ Π΄Π΅ΠΉΡΡΠ²ΠΈΡ Π² ΡΡΡΠΎΠ³ΠΎΠΉ ΠΏΠΎΡΠ»Π΅Π΄ΠΎΠ²Π°ΡΠ΅Π»ΡΠ½ΠΎΡΡΠΈ. ΠΡΠΎ ΠΎΠ±ΡΠ·Π°ΡΠ΅Π»ΡΠ½ΠΎ Π½ΡΠΆΠ½ΠΎ ΡΡΠΈΡΡΠ²Π°ΡΡ, ΠΈΠ·ΡΡΠ°Ρ ΠΈΠ½ΡΠΎΡΠΌΠ°ΡΠΈΡ, ΠΊΠ°ΠΊ ΡΠΎΠ·Π΄Π°Π²Π°ΡΡ ΠΏΡΠΎΠ΅ΠΊΡΡ Π΄ΠΎΠΌΠΎΠ².
Π Π°ΡΡ
ΠΈΡΠ΅ΠΊΡΡΡΠ½ΠΎΠΉ ΡΠ°ΡΡΠΈ Π½Π΅ΠΎΠ±Ρ
ΠΎΠ΄ΠΈΠΌΠΎ Π½Π°ΠΌΠ΅ΡΠΈΡΡ ΠΈ ΠΏΡΠΎΡΠΈΡΠΎΠ²Π°ΡΡ ΠΌΠ΅ΡΡΠΎΡΠ°ΡΠΏΠΎΠ»ΠΎΠΆΠ΅Π½ΠΈΠ΅ Π²ΡΠ΅Ρ
ΠΊΠΎΠΌΠ½Π°Ρ, Π±Π°Π»ΠΊΠΎΠ½ΠΎΠ², ΡΠ΅ΡΡΠ°Ρ, ΡΠΊΠ°Π·Π°ΡΡ ΡΠ°Π·ΠΌΠ΅ΡΡ ΠΎΠΊΠΎΠ½Π½ΡΡ
ΠΈ Π΄Π²Π΅ΡΠ½ΡΡ
ΠΏΡΠΎΠ΅ΠΌΠΎΠ², ΡΠΎΠ»ΡΠΈΠ½Ρ ΡΡΠ΅Π½, ΡΠ³ΠΎΠ» Π½Π°ΠΊΠ»ΠΎΠ½Π° ΠΊΡΡΡΠΈ.
Π ΠΊΠΎΠ½ΡΡΡΡΠΊΡΠΈΠ²Π½ΠΎΠΌ ΡΠ°Π·Π΄Π΅Π»Π΅ ΡΠ»Π΅Π΄ΡΠ΅Ρ ΠΏΠΎΠ΄ΡΠΎΠ±Π½ΠΎ ΠΈΠ·ΡΡΠΈΡΡ Π²ΡΠ΅ ΡΠ»Π΅ΠΌΠ΅Π½ΡΡ ΡΡΡΠΎΠ΅Π½ΠΈΡ: ΡΡΠ½Π΄Π°ΠΌΠ΅Π½Ρ, ΠΏΠ΅ΡΠ΅ΠΊΡΡΡΠΈΡ, Π΄ΡΠΌΠΎΠΎΡΠ²ΠΎΠ΄, ΡΡΡΠΎΠΏΠΈΠ»Π°, Π»Π΅ΡΡΠ½ΠΈΡΠ½ΡΠ΅ ΠΏΡΠΎΠ»Π΅ΡΡ ΠΈ Ρ.Π΄. Π‘Π»ΠΎΠ²ΠΎΠΌ, ΡΠ°ΡΠΏΠΈΡΠ°ΡΡ ΠΏΠΎΠ΄ΡΠΎΠ±Π½ΠΎΡΡΠΈ. Π’Π°ΠΊ, Π΄Π»Ρ ΠΎΠΊΠΎΠ½ ΠΏΠΎΡΡΠ΅Π±ΡΠ΅ΡΡΡ ΠΏΡΠΎΠΏΠΈΡΠ°ΡΡ Π²ΡΠ΅ Π½Π΅ΠΎΠ±Ρ ΠΎΠ΄ΠΈΠΌΡΠ΅ Ρ Π°ΡΠ°ΠΊΡΠ΅ΡΠΈΡΡΠΈΠΊΠΈ: ΡΠΈΡΠΈΠ½Ρ ΠΏΡΠΎΡΠΈΠ»Ρ, Π²ΠΈΠ΄ Π½Π°ΠΊΠ»Π°Π΄ΠΊΠΈ, ΡΠΈΡΠ»ΠΎ ΡΠ»ΠΎΠ΅Π² ΡΡΠ΅ΠΊΠ»ΠΎΠΏΠ°ΠΊΠ΅ΡΠ°, ΠΎΡΠΎΠ±Π΅Π½Π½ΠΎΡΡΠΈ ΠΏΠΎΠ΄ΠΎΠΊΠΎΠ½Π½ΠΈΠΊΠ°.
ΠΠ»Ρ ΠΈΠ½ΠΆΠ΅Π½Π΅ΡΠ½ΠΎ-ΡΠ΅Ρ Π½ΠΈΡΠ΅ΡΠΊΠΎΠ³ΠΎ ΠΏΠ»Π°Π½ΠΈΡΠΎΠ²Π°Π½ΠΈΡ Ρ Π°ΡΠ°ΠΊΡΠ΅ΡΠ½ΠΎ ΡΠΎΡΠΌΠΈΡΠΎΠ²Π°Π½ΠΈΠ΅ ΠΏΠΎΡΡΠ°ΠΏΠ½ΠΎΠ³ΠΎ Π°Π»Π³ΠΎΡΠΈΡΠΌΠ° Π΄Π΅ΠΉΡΡΠ²ΠΈΠΉ ΠΏΠΎ ΠΎΡΠ³Π°Π½ΠΈΠ·Π°ΡΠΈΠΈ ΠΊΠ°Π½Π°Π»ΠΈΠ·Π°ΡΠΈΠΈ, Π²Π΅Π½ΡΠΈΠ»ΡΡΠΈΠΎΠ½Π½ΡΡ , ΠΎΡ ΡΠ°Π½Π½ΡΡ ΠΈ Π²ΠΎΠ΄ΠΎΠΏΡΠΎΠ²ΠΎΠ΄Π½ΡΡ ΡΠΈΡΡΠ΅ΠΌ, ΠΏΡΠΎΠ²Π΅Π΄Π΅Π½ΠΈΡ ΡΠ»Π΅ΠΊΡΡΠΈΡΠ΅ΡΡΠ²Π°.
ΠΠΈΠ·Π°ΠΉΠ½Π΅ΡΡΠΊΠ°Ρ ΡΠ°ΡΡΡ Π²ΠΊΠ»ΡΡΠ°Π΅Ρ Π² ΡΠ΅Π±Ρ ΠΏΡΠΎΡΠ°Π±ΠΎΡΠΊΡ ΡΠ²Π΅ΡΠΎΠ²ΠΎΠΉ ΠΏΠ°Π»ΠΈΡΡΡ, ΠΈΡΠΏΠΎΠ»ΡΠ·ΡΠ΅ΠΌΠΎΠΉ ΠΏΡΠΈ ΠΎΡΠ΄Π΅Π»ΠΊΠ΅ ΠΊΠΎΡΡΠ΅Π΄ΠΆΠ° ΠΈΠ»ΠΈ Π΄ΡΡΠ³ΠΎΠ³ΠΎ Π²ΠΈΠ΄Π° ΠΆΠΈΠ»ΠΈΡΠ°, ΡΠ°ΡΡΠΌΠΎΡΡΠ΅Π½ΠΈΠ΅ ΡΠΌΠ΅ΡΡΠ½ΡΡ Π΄Π΅ΠΊΠΎΡΠ°ΡΠΈΠ²Π½ΡΡ ΡΠ»Π΅ΠΌΠ΅Π½ΡΠΎΠ². ΠΡΠ΅ΠΌΡ ΡΡΠΎΠΌΡ Π½Π΅ΠΏΡΠ΅ΠΌΠ΅Π½Π½ΠΎ ΠΎΡΠ²ΠΎΠ΄ΡΡ ΠΌΠ΅ΡΡΠΎ, ΡΠ΅ΡΠ°Ρ, ΠΊΠ°ΠΊ ΡΠ΄Π΅Π»Π°ΡΡ ΠΏΠ»Π°Π½ Π΄ΠΎΠΌΠ°.
Π Π°Π·Π½ΠΎΠ²ΠΈΠ΄Π½ΠΎΡΡΠΈ ΠΏΡΠΎΠ΅ΠΊΡΠΎΠ²
ΠΡΡΠ°Π»ΠΊΠΈΠ²Π°ΡΡΡ ΠΎΡ ΡΠΎΠ±ΡΡΠ²Π΅Π½Π½ΡΡ ΠΏΡΠ΅Π΄ΠΏΠΎΡΡΠ΅Π½ΠΈΠΉ ΠΈ ΡΠΈΠ½Π°Π½ΡΠΎΠ²ΡΡ Π²ΠΎΠ·ΠΌΠΎΠΆΠ½ΠΎΡΡΠ΅ΠΉ, ΠΌΠΎΠΆΠ½ΠΎ ΠΏΠΎΠ΄ΠΎΠ±ΡΠ°ΡΡ ΠΏΠΎΠ΄Ρ ΠΎΠ΄ΡΡΠΈΠΉ Π²Π°ΡΠΈΠ°Π½Ρ.
ΠΠΎΡΡΡΠΎΠΉΠΊΠ° ΠΈΠ· Π±ΡΡΡΠ°
ΠΡΠ΅Π²Π΅ΡΠΈΠ½Ρ Π½Π΅ΡΠ΅Π΄ΠΊΠΎ Π²ΡΠ±ΠΈΡΠ°ΡΡ Π² ΠΊΠ°ΡΠ΅ΡΡΠ²Π΅ ΠΎΡΠ½ΠΎΠ²Π½ΠΎΠ³ΠΎ ΡΡΡΠΎΠΉΠΌΠ°ΡΠ΅ΡΠΈΠ°Π»Π°.
ΠΠ½Π° ΠΏΡΠΈΠ²Π»Π΅ΠΊΠ°Π΅Ρ ΡΠ²ΠΎΠ΅ΠΉ ΠΏΡΠΎΡΠ½ΠΎΡΡΡΡ, Π΄ΠΎΠ»Π³ΠΎΠ²Π΅ΡΠ½ΠΎΡΡΡΡ ΠΈ ΠΎΡΠ½ΠΎΡΠΈΡΠ΅Π»ΡΠ½ΠΎ Π½Π΅Π²ΡΡΠΎΠΊΠΎΠΉ ΡΡΠΎΠΈΠΌΠΎΡΡΡΡ. ΠΡΠΈ Π²ΠΎΠ·Π²Π΅Π΄Π΅Π½ΠΈΠΈ Π·Π΄Π°Π½ΠΈΡ ΠΈΠ· Π΄Π΅ΡΠ΅Π²Π° Π½Π΅ΠΎΠ±Ρ
ΠΎΠ΄ΠΈΠΌΠΎ ΡΠΎΠ±Π»ΡΠ΄Π°ΡΡ ΡΠ»Π΅Π΄ΡΡΡΠΈΠ΅ ΡΡΠ»ΠΎΠ²ΠΈΡ:
- ΠΏΡΠΈ ΠΈΡΠΏΠΎΠ»ΡΠ·ΠΎΠ²Π°Π½ΠΈΠΈ Π±ΡΡΡΡΠ΅Π² Π΄Π»ΠΈΠ½Π½Π΅Π΅ 6 ΠΌ Π½ΡΠΆΠ½ΠΎ Π΄ΠΎΠΏΠΎΠ»Π½ΠΈΡΠ΅Π»ΡΠ½ΠΎΠ΅ ΡΡΠ΅ΠΏΠ»Π΅Π½ΠΈΠ΅ ΡΡΡΠΊΠΎΠ²;
- ΡΠ°ΠΌΠΈ ΠΌΠ΅ΡΡΠ° ΡΠΎΠ΅Π΄ΠΈΠ½Π΅Π½ΠΈΠΉ ΡΠ°Π·ΠΌΠ΅ΡΠ°ΡΡ Π² ΡΠ°Ρ ΠΌΠ°ΡΠ½ΠΎΠΌ ΠΏΠΎΡΡΠ΄ΠΊΠ΅;
- ΠΊΠΎΠ»ΠΈΡΠ΅ΡΡΠ²ΠΎ ΡΠ³Π»ΠΎΠ² ΠΎΠ±ΡΠ·Π°Π½ΠΎ Π±ΡΡΡ ΡΠ΅ΡΠ½ΡΠΌ;
- Π½Π΅ Π·Π°Π±ΡΠ΄ΡΡΠ΅ ΠΏΡΠΎ ΠΏΡΠ°Π²ΠΈΠ»ΡΠ½ΠΎΠ΅ ΡΠ°ΡΠΏΡΠ΅Π΄Π΅Π»Π΅Π½ΠΈΠ΅ Π½Π°Π³ΡΡΠ·ΠΊΠΈ;
- ΠΏΠ΅ΡΠ΅Π³ΠΎΡΠΎΠ΄ΠΊΠΈ ΠΈΠ· Π±ΡΠ΅Π²Π΅Π½ ΡΠ°ΡΠΏΠΎΠ»Π°Π³Π°ΡΡ ΠΈΡΠΊΠ»ΡΡΠΈΡΠ΅Π»ΡΠ½ΠΎ Π½Π°Π΄ Π½Π΅ΡΡΡΠΈΠΌΠΈ ΡΡΠ΅Π½Π°ΠΌΠΈ ΠΈΠ»ΠΈ Π½Π° Π΄ΠΎΠ±Π°Π²ΠΎΡΠ½ΡΡ ΠΏΠΎΠ΄ΠΏΠΎΡΠΊΠ°Ρ .
ΠΠ»Π°Π½: ΠΊΠ°ΠΊ ΠΏΠΎΡΡΡΠΎΠΈΡΡ Π΄ΠΎΠΌ ΠΈΠ· ΠΊΠΈΡΠΏΠΈΡΠ°
ΠΠΈΡΠΏΠΈΡΠ½ΠΎΠ΅ ΠΆΠΈΠ»ΡΠ΅ ΠΏΡΠ΅Π΄ΠΏΠΎΠ»Π°Π³Π°Π΅Ρ Π·Π°Π΄Π΅ΠΉΡΡΠ²ΠΎΠ²Π°Π½ΠΈΠ΅ Π²Π½ΡΡΠΈΡΠ΅Π»ΡΠ½ΡΡ ΡΡΠ΅Π΄ΡΡΠ². ΠΡΠΎ Π΄ΠΎΡΠΎΠ³ΠΎΠΉ ΠΌΠ°ΡΠ΅ΡΠΈΠ°Π», ΠΊΠΎΡΠΎΡΡΠΉ ΠΊ ΡΠΎΠΌΡ ΠΆΠ΅ ΡΡΠ΅Π±ΡΠ΅Ρ Π²ΠΎΠ·Π²Π΅Π΄Π΅Π½ΠΈΡ ΠΎΡΠ½ΠΎΠ²Π°ΡΠ΅Π»ΡΠ½ΠΎΠ³ΠΎ ΡΡΠ½Π΄Π°ΠΌΠ΅Π½ΡΠ°. ΠΡΠ° Π±Π°Π·Π° ΡΠΎΠΆΠ΅ ΠΎΠ±ΠΎΠΉΠ΄Π΅ΡΡΡ Π²Π»Π°Π΄Π΅Π»ΡΡΡ Π² ΠΊΡΡΠ³Π»ΡΡ ΡΡΠΌΠΌΡ.
ΠΡΠΈ ΠΏΠ»Π°Π½ΠΈΡΠΎΠ²Π°Π½ΠΈΠΈ ΠΏΠΎΡΡΡΠΎΠΉΠΊΠΈ ΡΠ°ΠΊΠΎΠ³ΠΎ ΡΠΈΠΏΠ° ΡΠ»Π΅Π΄ΡΠ΅Ρ Π±ΡΠ°ΡΡ Π² ΡΠ°ΡΡΠ΅Ρ Ρ
Π°ΡΠ°ΠΊΡΠ΅ΡΠΈΡΡΠΈΠΊΠΈ ΡΡΡΠΎΠΉΠΌΠ°ΡΠ΅ΡΠΈΠ°Π»Π°: Π½Π΅ΠΎΠ±Ρ
ΠΎΠ΄ΠΈΠΌΠΎΡΡΡ Π°ΡΠΌΠΈΡΠΎΠ²Π°Π½ΠΈΡ, Π³ΠΈΠ΄ΡΠΎΠΈΠ·ΠΎΠ»ΡΡΠΈΡ Π² ΠΌΠ΅ΡΡΠ°Ρ
ΠΏΠΎΠ²ΡΡΠ΅Π½Π½ΠΎΠΉ Π²Π»Π°ΠΆΠ½ΠΎΡΡΠΈ (Π²Π°Π½Π½Π°Ρ), ΡΠΎΠ±Π»ΡΠ΄Π΅Π½ΠΈΠ΅ ΠΎΠΏΡΠ΅Π΄Π΅Π»Π΅Π½Π½ΠΎΠΉ ΠΊΠ»Π°Π΄ΠΊΠΈ, Π²ΡΠΊΠ»Π°Π΄ΡΠ²Π°Π½ΠΈΠ΅ ΠΏΡΠΎΠ΅ΠΌΠΎΠ² ΠΎΠΊΠΎΠ½ ΠΈ Π΄Π²Π΅ΡΠ΅ΠΉ ΠΎΡΠΎΠ±ΡΠΌ ΠΎΠ±ΡΠ°Π·ΠΎΠΌ.
ΠΠ°ΡΠΈΠ°Π½Ρ Ρ ΡΠ΅ΡΡΠ°ΡΠΎΠΉ
ΠΠ°Π½Π½ΡΡ ΠΏΡΠΈΡΡΡΠΎΠΉΠΊΡ ΠΊ ΠΎΡΠ½ΠΎΠ²Π½ΠΎΠΌΡ ΡΡΡΠΎΠ΅Π½ΠΈΡ Π½ΡΠΆΠ½ΠΎ ΠΏΡΠΎΠ΅ΠΊΡΠΈΡΠΎΠ²Π°ΡΡ ΠΎΡΠ΄Π΅Π»ΡΠ½ΠΎ. ΠΡΠΈ ΡΠΎΡΠΌΠΈΡΠΎΠ²Π°Π½ΠΈΠΈ ΠΏΠ»Π°Π½Π° ΠΎΠ±ΡΠ°ΡΠ°ΡΡ Π²Π½ΠΈΠΌΠ°Π½ΠΈΠ΅ Π½Π° ΠΌΠ΅ΡΡΠΎΡΠ°ΡΠΏΠΎΠ»ΠΎΠΆΠ΅Π½ΠΈΠ΅ Π·Π΄Π°Π½ΠΈΡ, ΠΎΡΠΊΡΡΡΠΎΡΡΡ, ΠΏΠΎΠ΄ΡΡΠΈΡΡΠ²Π°ΡΡ Π½Π΅ΠΎΠ±Ρ ΠΎΠ΄ΠΈΠΌΠΎΠ΅ ΠΊΠΎΠ»ΠΈΡΠ΅ΡΡΠ²ΠΎ ΡΡΡΠΏΠ΅Π½Π΅ΠΉ, Π½ΡΠ°Π½ΡΡ ΠΈΡ ΡΠΎΡΠΌΡ.
ΠΠ°ΠΊ ΠΏΡΠ°Π²ΠΈΠ»ΡΠ½ΠΎ ΡΠ΄Π΅Π»Π°ΡΡ ΠΏΡΠΎΠ΅ΠΊΡ Π΄ΠΎΠΌΠ° ΡΠ°ΠΌΠΎΡΡΠΎΡΡΠ΅Π»ΡΠ½ΠΎ
ΠΡΠ»ΠΈ ΠΈΠΌΠ΅ΡΡ Π½Π΅ΠΊΠΎΡΠΎΡΡΠ΅ Π½Π°Π²ΡΠΊΠΈ ΠΈ ΡΠΌΠ΅Π½ΠΈΡ, ΡΠΎ ΠΎΡΡΡΠ΅ΡΡΠ²ΠΈΡΡ ΡΡΠΎ Π½Π΅ΡΠ»ΠΎΠΆΠ½ΠΎ. ΠΠΎΡΡΠ°ΡΠΎΡΠ½ΠΎ Π²ΠΎΠΎΡΡΠΆΠΈΡΡΡΡ Π»ΠΈΡΡΠΎΠΌ Π±ΡΠΌΠ°Π³ΠΈ (Π»ΡΡΡΠ΅ ΡΠ΅ΡΡΠ°Π΄Π½ΡΠΌ Π² ΠΊΠ»Π΅ΡΠΊΡ) ΠΈ Π·Π°ΡΠΎΡΠ΅Π½Π½ΡΠΌ ΠΊΠ°ΡΠ°Π½Π΄Π°ΡΠΎΠΌ. ΠΠ»Π°Π²Π½ΠΎΠ΅ β ΠΏΠ΅ΡΠ΅Π½Π΅ΡΡΠΈ Π»ΠΈΡΡΠΎΠΊ ΡΠ²ΠΎΠ΅ Π±ΡΠ΄ΡΡΠ΅Π΅ ΠΆΠΈΠ»ΠΈΡΠ΅ ΠΈ Π²ΡΠ΅ ΡΠ°ΡΠΏΠΎΠ»ΠΎΠΆΠ΅Π½Π½ΡΠ΅ ΡΡΠ΄ΠΎΠΌ Ρ Π½ΠΈΠΌ ΠΏΠΎΡΡΡΠΎΠΉΠΊΠΈ Ρ ΠΌΠ°ΠΊΡΠΈΠΌΠ°Π»ΡΠ½ΠΎΠΉ ΡΠΎΡΠ½ΠΎΡΡΡΡ.
Π ΡΡΠΎΠΌ Π΄Π΅Π»Π΅ Π²Π°ΠΌ ΠΏΠΎΠΌΠΎΠ³ΡΡ ΡΠ°ΠΊΠΈΠ΅ ΠΏΠΎΠ»Π΅Π·Π½ΡΠ΅ ΠΎΡΠΈΠ΅Π½ΡΠΈΡΡ, ΠΊΠ°ΠΊ ΡΠΆΠ΅ Π²ΡΠΏΠΎΠ»Π½Π΅Π½Π½ΡΠ΅ ΠΆΠΈΠ»ΡΠ΅ ΠΎΠ±ΡΠ΅ΠΊΡΡ, ΠΊΠΎΡΠΎΡΡΠ΅ ΠΌΠΎΠΆΠ½ΠΎ ΠΏΠΎΡΠΌΠΎΡΡΠ΅ΡΡ Π² ΡΠ΅ΡΠΈ. ΠΠΎΠ·ΡΠΌΠΈΡΠ΅ ΠΈΡ Π·Π° ΠΎΡΠ½ΠΎΠ²Ρ ΠΈ ΡΠ°ΡΡΠΈΡΠΈΡΡ Π½Π° ΡΠ²ΠΎΠ΅ ΡΡΠΌΠΎΡΡΠ΅Π½ΠΈΠ΅ ΠΈΡΡ ΠΎΠ΄Ρ ΠΈΠ· ΡΡΠ»ΠΎΠ²ΠΈΠΉ ΠΈ ΡΠΎΠ±ΡΡΠ²Π΅Π½Π½ΡΡ ΠΏΡΠ΅Π΄ΠΏΠΎΡΡΠ΅Π½ΠΈΠΉ.
Π‘Π°ΠΌΠΎΡΡΠΎΡΡΠ΅Π»ΡΠ½Π°Ρ ΡΠ°Π±ΠΎΡΠ° Π½Π°Π΄ ΠΏΡΠΎΠ΅ΠΊΡΠΈΡΠΎΠ²Π°Π½ΠΈΠ΅ΠΌ ΠΈ Π΅Π΅ ΠΏΡΠ΅ΠΈΠΌΡΡΠ΅ΡΡΠ²Π°
ΠΠ»Π°Π½ ΠΆΠΈΠ»ΡΡ Π²Ρ Π²ΠΏΠΎΠ»Π½Π΅ ΠΌΠΎΠΆΠ΅ΡΠ΅ ΡΠΎΡΡΠ°Π²ΠΈΡΡ ΡΠΎΠ±ΡΡΠ²Π΅Π½Π½ΠΎΡΡΡΠ½ΠΎ. ΠΠΎΠ½Π΅ΡΠ½ΠΎ, Π΄Π»Ρ ΡΡΠΎΠ³ΠΎ ΠΏΠΎΡΡΠ΅Π±ΡΠ΅ΡΡΡ Π·Π°Π΄Π΅ΠΉΡΡΠ²ΠΎΠ²Π°ΡΡ Π²ΡΠ΅ ΡΠ²ΠΎΠΈ ΡΠΏΠΎΡΠΎΠ±Π½ΠΎΡΡΠΈ ΠΈ ΠΎΡΠ΅Π½Ρ ΠΎΡΠ²Π΅ΡΡΡΠ²Π΅Π½Π½ΠΎ ΠΏΠΎΠ΄ΠΎΠΉΡΠΈ ΠΊ Π΅Π³ΠΎ ΡΠΎΡΠΌΠΈΡΠΎΠ²Π°Π½ΠΈΡ.
ΠΠ΅Π΄Ρ ΡΡΠΎΠ±Ρ ΠΎΠΏΡΠ΅Π΄Π΅Π»ΠΈΡΡ, Π³Π΄Π΅ ΠΈΠΌΠ΅Π½Π½ΠΎ Π±ΡΠ΄ΡΡ Π½Π°Ρ
ΠΎΠ΄ΠΈΡΡΡΡ ΡΠ΅Ρ
ΠΏΠΎΡΡΡΠΎΠΉΠΊΠΈ ΠΈ ΠΎΡΠ½ΠΎΠ²Π½ΠΎΠ΅ Π·Π΄Π°Π½ΠΈΠ΅ ΠΎΡΠΎΠ±ΡΡ
ΡΠΌΠ΅Π½ΠΈΠΉ Π½Π΅ Π½ΡΠΆΠ½ΠΎ. ΠΠ°ΡΠΎ ΠΏΡΠΈ ΠΏΡΠΎΠ²Π΅Π΄Π΅Π½ΠΈΠΈ ΠΊΠΎΠΌΠΌΡΠ½ΠΈΠΊΠ°ΡΠΈΠΎΠ½Π½ΡΡ
ΠΏΠΎΠ΄Π²ΠΎΠ΄ΠΎΠΊ, Π²Π΅ΡΠ½Π΅Π΅, ΠΏΡΠΈ ΠΈΡ
ΠΏΠ»Π°Π½ΠΈΡΠΎΠ²Π°Π½ΠΈΠΈ, ΡΡΠ°ΡΡΠΈΠ΅ ΠΏΡΠΎΡΠ΅ΡΡΠΈΠΎΠ½Π°Π»ΠΎΠ² ΠΆΠΈΠ·Π½Π΅Π½Π½ΠΎ Π½Π΅ΠΎΠ±Ρ
ΠΎΠ΄ΠΈΠΌΠΎ. Π’ΠΎΠ»ΡΠΊΠΎ ΡΠ°ΠΊΠΎΠΉ ΠΎΡΠ½ΠΎΠ²Π°ΡΠ΅Π»ΡΠ½ΡΠΉ ΠΏΠΎΠ΄Ρ
ΠΎΠ΄ ΠΏΠΎΠ·Π²ΠΎΠ»ΠΈΡ ΠΏΠΎΡΡΡΠΎΠΈΡΡ ΠΏΠΎ-Π½Π°ΡΡΠΎΡΡΠ΅ΠΌΡ Ρ
ΠΎΡΠΎΡΠ΅Π΅ ΠΆΠΈΠ»ΠΈΡΠ΅, ΠΊΠΎΡΠΎΡΠΎΠ΅ ΠΏΡΠΎΡΠ»ΡΠΆΠΈΡ Π²Π°ΠΌ ΠΈ Π²Π°ΡΠ΅ΠΉ ΡΠ΅ΠΌΡΠ΅ Π΄ΠΎΠ»Π³ΠΈΠ΅ Π³ΠΎΠ΄Ρ.
ΠΠΈΠ΄Π΅ΠΎ-ΠΎΠ±ΡΠ°Π·Π΅Ρ, ΠΊΠ°ΠΊ ΡΠΎΡΡΠ°Π²ΠΈΡΡ ΠΏΡΠΎΠ΅ΠΊΡ Π΄ΠΎΠΌΠ° ΡΠ°ΠΌΠΎΡΡΠΎΡΡΠ΅Π»ΡΠ½ΠΎ
Π§ΡΠΎΠ±Ρ ΠΈΠΌΠ΅ΡΡ ΠΏΠΎΠ»Π½ΠΎΠ΅ ΠΏΡΠ΅Π΄ΡΡΠ°Π²Π»Π΅Π½ΠΈΠ΅, ΠΊΠ°ΠΊ ΠΏΡΠΎΠΈΠ·Π²ΠΎΠ΄ΠΈΡΡΡ ΠΏΡΠΎΠ΅ΠΊΡΠΈΡΠΎΠ²Π°Π½ΠΈΠ΅, ΡΡΠΎΠΈΡ ΠΏΠΎΡΠΌΠΎΡΡΠ΅ΡΡ Π²ΠΈΠ΄Π΅ΠΎΡΠΎΠ»ΠΈΠΊ ΡΠ΅ΠΊΠΎΠΌΠ΅Π½Π΄Π°ΡΠ΅Π»ΡΠ½ΠΎΠ³ΠΎ Ρ Π°ΡΠ°ΠΊΡΠ΅ΡΠ°:
ΠΠ°ΠΊ Π½Π°ΡΠ΅ΡΡΠΈΡΡ ΠΏΠ»Π°Π½ Π½Π° Π±ΡΠΌΠ°Π³Π΅
Π§ΡΠΎΠ±Ρ ΡΠΎΠ·Π΄Π°ΡΡ ΡΠ΅ΡΡΠ΅ΠΆ Π½Π° Π±ΡΠΌΠ°ΠΆΠ½ΠΎΠΌ Π½ΠΎΡΠΈΡΠ΅Π»Π΅ (ΠΌΠΈΠ»Π»ΠΈΠΌΠ΅ΡΡΠΎΠ²ΠΊΠ°, Π²Π°ΡΠΌΠ°Π½), Π½Π΅ΠΎΠ±Ρ ΠΎΠ΄ΠΈΠΌΠΎ ΡΠΎΠ±Π»ΡΡΡΠΈ ΡΠ»Π΅Π΄ΡΡΡΠΈΠ΅ ΡΡΠ»ΠΎΠ²ΠΈΡ:
-
ΠΠ° ΠΊΠ°ΠΆΠ΄ΡΠΉ ΡΡΠ°ΠΆ, ΠΊΡΠΎΠ²Π»Ρ, ΠΎΡΠ½ΠΎΠ²Ρ ΠΏΠΎΡΡΡΠΎΠΉΠΊΠΈ, ΡΠ°Π½ΡΠ΅Ρ
Π½ΠΈΡΠ΅ΡΠΊΠΈΠ΅ ΠΈ ΡΠ»Π΅ΠΊΡΡΠΈΡΠ΅ΡΠΊΠΈΠ΅ ΡΠ»Π΅ΠΌΠ΅Π½ΡΡ Π½ΡΠΆΠ½ΠΎ Π½Π°ΡΠΈΡΠΎΠ²Π°ΡΡ ΠΎΡΠ΄Π΅Π»ΡΠ½ΡΡ ΡΡ
Π΅ΠΌΡ-ΡΠ΅ΡΡΠ΅ΠΆ.
ΠΡΠΈ Π²ΡΠΏΠΎΠ»Π½Π΅Π½ΠΈΠΈ ΡΡ
Π΅ΠΌΠ°ΡΠΈΡΠ½ΡΡ
ΠΎΡΠΎΠ±ΡΠ°ΠΆΠ΅Π½ΠΈΠΉ ΡΠ»Π΅Π΄ΡΠ΅Ρ ΡΡΡΠΎΠ³ΠΎ ΡΠΎΠ±Π»ΡΠ΄Π°ΡΡ ΠΌΠ°ΡΡΡΠ°Π±Π½ΠΎΡΡΡ. - ΠΠΎΡΠ»Π΅ ΠΏΡΠΈΡΡΠ°Π»ΡΠ½ΠΎΠ³ΠΎ ΠΈΠ·ΡΡΠ΅Π½ΠΈΡ ΠΏΡΠ΅Π΄Π»ΠΎΠΆΠ΅Π½ΠΈΠΉ Π² ΡΠ΅ΡΠΈ ΠΈΠ»ΠΈ ΡΠΏΠ΅ΡΠΈΠ°Π»ΡΠ½ΡΡ ΠΈΠ·Π΄Π°Π½ΠΈΡΡ , ΠΏΠΎΠ΄Π±Π΅ΡΠΈΡΠ΅ Π²Π°ΡΠΈΠ°Π½Ρ, ΠΊΠΎΡΠΎΡΡΠΉ ΠΏΠΎΠ΄ΠΎΠΉΠ΄Π΅Ρ Π²Π°ΠΌ ΠΏΠΎ Π²ΡΠ΅ΠΌ ΠΏΠ°ΡΠ°ΠΌΠ΅ΡΡΠ°ΠΌ. ΠΠ»ΡΠ΄Ρ Π½Π° Π½Π΅Π³ΠΎ, Π²Ρ ΠΏΠΎΠΉΠΌΠ΅ΡΠ΅, ΠΊΠ°ΠΊ ΠΏΡΠ°Π²ΠΈΠ»ΡΠ½ΠΎ ΡΠΎΠ·Π΄Π°ΡΡ ΡΠ²ΠΎΠΉ ΡΠΎΠ±ΡΡΠ²Π΅Π½Π½ΡΠΉ.
- ΠΠΏΡΠ΅Π΄Π΅Π»ΠΈΡΠ΅ΡΡ Ρ ΠΌΠ°ΡΡΡΠ°Π±ΠΎΠΌ. ΠΠ΅ΡΠ΅Π½Π΅ΡΠΈΡΠ΅ Π½Π° Π±ΡΠΌΠ°Π³Ρ Π³ΡΠ°Π½ΠΈΡΡ ΡΡΡΠΎΠ΅Π½ΠΈΡ. ΠΡΡΡΡΠΏΠΈΡΠ΅ Π²Π½ΡΡΡΡ ΡΠ°ΡΡΡΠΎΡΠ½ΠΈΠ΅ ΠΏΡΠ΅Π΄ΡΡΠΌΠΎΡΡΠ΅Π½Π½ΠΎΠ΅ Π½Π° ΡΠΎΠ»ΡΠΈΠ½Ρ ΡΡΠ΅Π½. ΠΡΠΎΡΠΈΡΡΠΉΡΠ΅ ΠΏΠ°ΡΠ°Π»Π»Π΅Π»ΡΠ½ΡΠ΅ Π»ΠΈΠ½ΠΈΠΈ. ΠΡΠΈΠ΅Π½ΡΠΈΡΡΡΡΡ ΠΏΠΎ ΡΡΠΎΡΠΎΠ½Π°ΠΌ ΡΠ²Π΅ΡΠ°, ΡΠ°ΡΠΏΠΎΠ»ΠΎΠΆΠΈΡΠ΅ Π·Π΄Π°Π½ΠΈΠ΅ Π½Π° ΡΡΠ°ΡΡΠΊΠ΅. Π‘ΠΊΠΎΠΏΠΈΡΡΠΉΡΠ΅ ΡΠ΅ΡΡΠ΅ΠΆΠΈ ΠΊΠΎΠΌΠΌΡΠ½ΠΈΠΊΠ°ΡΠΈΠΉ ΠΈ ΡΡΠ°ΠΆΠ΅ΠΉ (Π΅ΡΠ»ΠΈ ΠΎΠ½ Π½Π΅ ΠΎΠ΄ΠΈΠ½).
- Π Π°ΡΠΏΡΠ΅Π΄Π΅Π»ΠΈΡΠ΅ ΠΈ ΠΎΡΠΎΠ±ΡΠ°Π·ΠΈΡΠ΅ Π²Π½ΡΡΡΠ΅Π½Π½ΠΈΠ΅ ΠΏΠ΅ΡΠ΅Π³ΠΎΡΠΎΠ΄ΠΊΠΈ, ΠΎΠΏΡΠ΅Π΄Π΅Π»ΠΈΡΠ΅ ΠΊΠΎΠΌΠ½Π°ΡΡ.
Π€ΠΎΡΠΎ ΡΠΏΡΠΎΠ΅ΠΊΡΠΈΡΠΎΠ²Π°Π½Π½ΡΡ ΠΆΠΈΠ»ΡΡ Π·Π΄Π°Π½ΠΈΠΉ
ΠΠΈΠΆΠ΅ ΠΏΡΠΈΠ²Π΅Π΄Π΅Π½Ρ Π²ΠΎΠ·ΠΌΠΎΠΆΠ½ΡΠ΅ ΡΡ Π΅ΠΌΡ ΠΏΠ»Π°Π½ΠΈΡΠΎΠ²ΠΎΠΊ.
ΠΡΠΌΠ°Π΅ΠΌ, ΡΠ΅ΠΏΠ΅ΡΡ ΠΏΡΠ΅Π΄Π΅Π»ΡΠ½ΠΎ ΡΡΠ½ΠΎ, ΠΌΠΎΠΆΠ½ΠΎ Π»ΠΈ ΡΠ°ΠΌΠΎΠΌΡ ΡΠ΄Π΅Π»Π°ΡΡ ΠΏΡΠΎΠ΅ΠΊΡ Π΄ΠΎΠΌΠ°. ΠΡΠ²Π΅Ρ ΠΎΡΠ΅Π²ΠΈΠ΄Π΅Π½ β Π²ΠΏΠΎΠ»Π½Π΅. ΠΠ»Π°Π²Π½ΠΎΠ΅ β Π±ΡΠ°ΡΡΡΡ Π·Π° Π΄Π΅Π»ΠΎ, ΠΏΠΎΠ»Π½ΠΎΡΡΡΡ ΠΎΡΠ΄Π°Π²Π°Ρ ΠΎΡΡΠ΅Ρ ΡΠ²ΠΎΠΈΠΌ ΡΠΏΠΎΡΠΎΠ±Π½ΠΎΡΡΡΠΌ ΠΈ Π·Π΄ΡΠ°Π²ΠΎ ΠΎΡΠ΅Π½ΠΈΠ²Π°Ρ ΡΠΎΠ±ΡΡΠ²Π΅Π½Π½ΡΠ΅ ΡΠΈΠ»Ρ.
Π ΠΊΠΎΠ½Π΅ΡΠ½ΠΎ, ΠΏΡΠΈ Π²ΠΎΠ·Π½ΠΈΠΊΠ°ΡΡΠΈΡ
Π·Π°ΡΡΡΠ΄Π½Π΅Π½ΠΈΡΡ
ΡΡΠ°Π·Ρ ΠΆΠ΅ ΠΎΠ±ΡΠ°ΡΠ°ΡΡΡΡ Π·Π° ΠΏΠΎΠΌΠΎΡΡΡ ΠΊ ΠΎΠΏΡΡΠ½ΡΠΌ ΡΠΏΠ΅ΡΠΈΠ°Π»ΠΈΡΡΠ°ΠΌ.
ΠΠ»Π°Π½ΠΎΠ² Π΄ΠΎΠΌΠ° ΠΏΠΎ Π Π°ΡΡΠΈΡΠ΅Π½Π½ΡΠΌ ΠΏΠ»Π°Π½Π°ΠΌ Π΄ΠΎΠΌΠΎΠ²
Π Π°ΡΡΠΈΡΠ΅Π½Π½ΡΠ΅ ΠΏΠ»Π°Π½Ρ Π΄ΠΎΠΌΠΎΠ² ΠΏΡΠ΅Π΄Π»Π°Π³Π°ΡΡ ΡΠΈΡΠΎΠΊΡΡ ΠΊΠΎΠ»Π»Π΅ΠΊΡΠΈΡ ΠΏΠ»Π°Π½ΠΎΠ² Ρ ΠΌΠ½ΠΎΠΆΠ΅ΡΡΠ²ΠΎΠΌ ΡΠ°Π·Π½ΡΡ ΡΡΠΈΠ»Π΅ΠΉ. ΠΡ Π½Π΅ Π²Π°ΡΠ° ΡΠΈΠΏΠΈΡΠ½Π°Ρ Π΄ΠΈΠ·Π°ΠΉΠ½Π΅ΡΡΠΊΠ°Ρ ΠΊΠΎΠΌΠΏΠ°Π½ΠΈΡ. ΠΡΠ΅ ΠΏΠ»Π°Π½Ρ Π½Π° Π½Π°ΡΠ΅ΠΌ ΡΠ°ΠΉΡΠ΅ ΡΠ°Π·ΡΠ°Π±ΠΎΡΠ°Π½Ρ ΠΌΡ, ΠΏΡΠΎΠ΄Π°Π²Π°Π΅ΠΌΡΠ΅ Π½Π°ΠΌΠΈ, ΠΈ Π΄Π»Ρ ΠΏΡΠΎΠ΄Π°ΠΆΠΈ Π²Π°ΠΌ ΠΏΠΎ ΠΏΠ»Π°Π½ΠΎΠ²ΠΎΠΉ ΡΠ΅Π½Π΅ ΡΠΊΠ»Π°Π΄ΡΠΊΠΎΠ³ΠΎ Π΄ΠΎΠΌΠ°. ΠΠΎΠ·Π²ΠΎΠ»ΡΡΠ΅ Π½Π°ΠΌ ΠΏΠΎΠΌΠΎΡΡ Π²Π°ΠΌ ΠΠΎΡΡΡΠΎΠΉΡΠ΅ Π΄ΠΎΠΌ ΡΠ²ΠΎΠ΅ΠΉ ΠΌΠ΅ΡΡΡ Ρ ΠΈΠ΄Π΅Π°Π»ΡΠ½ΡΠΌ ΠΏΠ»Π°Π½ΠΎΠΌ.
ΠΡΠ»ΠΈ Π²Ρ ΠΈΡΠ΅ΡΠ΅ ΠΏΠ»Π°Π½Ρ Π΄ΠΎΠΌΠ°, Π½Π°ΡΠΈ ΠΏΠ»Π°Π½Ρ Π΄ΠΎΠΌΠ° Π΄ΠΎΡΡΡΠΏΠ½Ρ Π΄Π»Ρ ΠΏΠΎΠΈΡΠΊΠ° ΠΏΠΎ Π½Π΅ΡΠΊΠΎΠ»ΡΠΊΠΈΠΌ ΡΠ°Π·Π»ΠΈΡΠ½ΡΠ΅ ΠΊΠΎΠ»Π»Π΅ΠΊΡΠΈΠΈ, ΡΠ°ΠΊΠΈΠ΅ ΠΊΠ°ΠΊ 1-ΡΡΠ°ΠΆΠ½ΡΠ΅ Π΄ΠΎΠΌΠ°, 1.5-ΡΡΠ°ΠΆΠ½ΡΠ΅ Π΄ΠΎΠΌΠ°, 2-Ρ ΡΡΠ°ΠΆΠ½ΡΠ΅ Π΄ΠΎΠΌΠ°, ΠΏΠ»Π°Π½Ρ Ρ ΡΠΎΡΠΎ, ΠΏΠ»Π°Π½Ρ Π½Π΅Π±ΠΎΠ»ΡΡΠΈΡ Π΄ΠΎΠΌΠΎΠ², Π΄Π²ΡΡ ΡΡΠΎΠ²Π½Π΅Π²ΡΡ Π΄ΠΎΠΌΠΎΠ² ΠΈ ΠΌΠ½ΠΎΠ³ΠΎΠΊΠ²Π°ΡΡΠΈΡΠ½ΡΡ Π΄ΠΎΠΌΠΎΠ². ΠΡ ΠΏΡΠ΅Π΄Π»Π°Π³Π°Π΅ΠΌ Π²ΡΠ΅ Π½Π°ΡΠΈ ΠΏΠ»Π°Π½Ρ Π΄ΠΎΠΌΠ° Ρ 3 ΡΠΈΠΏΠ°ΠΌΠΈ ΡΡΠ½Π΄Π°ΠΌΠ΅Π½ΡΠΎΠ² (ΡΡΠ½Π΄Π°ΠΌΠ΅Π½Ρ ΠΈΠ· ΠΏΠ»ΠΈΡ, ΡΡΠ½Π΄Π°ΠΌΠ΅Π½Ρ ΠΏΠΎΠ΄Π²Π°Π»Π° ΠΈΠ»ΠΈ ΡΡΠ½Π΄Π°ΠΌΠ΅Π½Ρ ΠΏΠΎΠ΄Π²Π°Π»Π°)
ΠΠ»Π°Π½ ΠΎΠ΄Π½ΠΎΡΡΠ°ΠΆΠ½ΠΎΠ³ΠΎ Π΄ΠΎΠΌΠ° ΡΠ°ΠΊΠΆΠ΅ ΠΈΠ·Π²Π΅ΡΡΠ΅Π½ ΠΊΠ°ΠΊ ΠΏΠ»Π°Π½ ΡΠ°Π½ΡΠΎ ΠΈΠ»ΠΈ Π±ΡΠΎΠ΄ΡΠ³Π°.
Π ΡΡΠΎΠΉ ΠΊΠΎΠ»Π»Π΅ΠΊΡΠΈΠΈ Π΅ΡΡΡ
Π³Π»Π°Π²Π½Π°Ρ ΡΠΏΠ°Π»ΡΠ½Ρ ΠΈ Π²ΡΠΎΡΠΎΡΡΠ΅ΠΏΠ΅Π½Π½ΡΠ΅ ΡΠΏΠ°Π»ΡΠ½ΠΈ Π½Π° ΠΏΠ΅ΡΠ²ΠΎΠΌ ΡΡΠ°ΠΆΠ΅.ΠΠ΅ΠΊΠΎΡΠΎΡΡΠ΅ ΠΈΠ· Π½Π°ΡΠΈΡ
ΠΏΠ»Π°Π½ΠΎΠ² ΠΎΠ΄Π½ΠΎΡΡΠ°ΠΆΠ½ΠΎΠ³ΠΎ Π΄ΠΎΠΌΠ° ΡΠ°ΠΊΠΆΠ΅ Π²ΠΊΠ»ΡΡΠ°ΡΡ
Π³ΠΎΡΠΎΠ²ΡΠΉ ΠΏΠ»Π°Π½ ΠΏΠΎΠ΄Π²Π°Π»Π°, Π² ΠΊΠΎΡΠΎΡΠΎΠΌ Π±ΡΠ΄ΡΡ Π΄ΠΎΠΏΠΎΠ»Π½ΠΈΡΠ΅Π»ΡΠ½ΡΠ΅ ΡΠΏΠ°Π»ΡΠ½ΠΈ ΠΈ Π΅ΡΠ΅ ΠΎΠ΄Π½Π° ΠΆΠΈΠ»Π°Ρ ΠΏΠ»ΠΎΡΠ°Π΄Ρ. ΠΡΠ»ΠΈ ΠΏΠΎ ΠΏΠ»Π°Π½Ρ ΡΡ
ΠΈΡΠΈΡΠ΅, Π½Π΅Ρ, ΡΠ²ΡΠΆΠΈΡΠ΅ΡΡ Ρ Π½Π°ΡΠΈΠΌ ΠΎΡΠ΄Π΅Π»ΠΎΠΌ ΠΈΠ·ΠΌΠ΅Π½Π΅Π½ΠΈΠΉ, ΠΈ ΠΌΡ ΠΌΠΎΠΆΠ΅ΠΌ ΡΠΏΡΠΎΠ΅ΠΊΡΠΈΡΠΎΠ²Π°ΡΡ Π΅Π³ΠΎ Π΄Π»Ρ Π²Π°Ρ.
ΠΡΠ΅ ΠΎΠ΄Π½Π° ΠΏΠΎΠΏΡΠ»ΡΡΠ½Π°Ρ ΠΊΠΎΠ»Π»Π΅ΠΊΡΠΈΡ — Π½Π°ΡΠΈ 1,5-ΡΡΠ°ΠΆΠ½ΡΠ΅ Π΄ΠΎΠΌΠ°. Π’Π°ΠΊΠΆΠ΅ ΠΈΠ·Π²Π΅ΡΡΠ΅Π½ ΠΊΠ°ΠΊ Π³Π΅Π½Π΅ΡΠ°Π»ΡΠ½ΡΠΉ ΠΏΠ»Π°Π½ ΠΎΡΠ½ΠΎΠ²Π½ΠΎΠ³ΠΎ ΡΡΠΎΠ²Π½Ρ. ΠΡΠ° ΠΊΠΎΠ»Π»Π΅ΠΊΡΠΈΡ
ΡΠΎΡΡΠΎΠΈΡ ΠΈΠ· Π³Π»Π°Π²Π½ΠΎΠΉ ΡΠΏΠ°Π»ΡΠ½ΠΈ Π½Π° ΠΏΠ΅ΡΠ²ΠΎΠΌ ΡΡΠ°ΠΆΠ΅ ΠΈ Π΄ΠΎΠΏΠΎΠ»Π½ΠΈΡΠ΅Π»ΡΠ½ΡΡ
ΡΠΏΠ°Π»Π΅Π½ Π½Π°Π²Π΅ΡΡ
Ρ.Π₯ΠΎΡΡ ΡΡΠΎΡ ΡΠ±ΠΎΡΠ½ΠΈΠΊ
ΠΎΠ±ΡΡΠ½ΠΎ ΡΠ°ΠΌΡΠΉ Π΄ΠΎΡΠΎΠ³ΠΎΠΉ Π² ΡΡΡΠΎΠΈΡΠ΅Π»ΡΡΡΠ²Π΅, ΠΎΠ½ ΡΠ°ΠΊΠΆΠ΅ ΠΏΡΠ΅Π΄Π»Π°Π³Π°Π΅Ρ ΡΠΈΡ
ΠΎΠ΅ ΠΌΠ΅ΡΡΠΎ Π½Π°Π²Π΅ΡΡ
Ρ, Π³Π΄Π΅ Π΄Π΅ΡΠΈ ΠΌΠΎΠ³ΡΡ ΡΠΏΠ°ΡΡ, ΠΊΠΎΠ³Π΄Π°
ΡΠΎΠ΄ΠΈΡΠ΅Π»ΠΈ Π²ΡΠ΅ Π΅ΡΠ΅ Π·Π°Π½ΡΡΡ ΠΏΡΠΎΠΆΠΈΠ²Π°Π½ΠΈΠ΅ΠΌ Π½Π° ΠΏΠ΅ΡΠ²ΠΎΠΌ ΡΡΠ°ΠΆΠ΅. ΠΡΠ΅ ΠΎΠ΄Π½Π° Π·Π°ΠΌΠ΅ΡΠ°ΡΠ΅Π»ΡΠ½Π°Ρ ΠΎΡΠΎΠ±Π΅Π½Π½ΠΎΡΡΡ ΠΏΠ»Π°Π½ΠΎΠ² 1,5-ΡΡΠ°ΠΆΠ½ΡΡ
Π΄ΠΎΠΌΠΎΠ²
ΡΠ²Π»ΡΡΡΡΡ Π»ΠΈ Π²Π½Π΅ΡΠ½ΠΈΠ΅ ΡΠ°ΡΠ°Π΄Ρ, ΠΊΠ°ΠΊ ΠΏΡΠ°Π²ΠΈΠ»ΠΎ, Π±ΠΎΠ»Π΅Π΅ ΡΠ½ΠΈΠΊΠ°Π»ΡΠ½ΡΠΌΠΈ ΠΈΠ·-Π·Π° Π΄Π²ΡΡ
ΡΡΠ°ΠΆΠ½ΠΎΠ³ΠΎ Π²Π½Π΅ΡΠ½Π΅Π³ΠΎ Π²ΠΈΠ΄Π° ΡΡΠΎΠ³ΠΎ Π³Π΅Π½Π΅ΡΠ°Π»ΡΠ½ΠΎΠ³ΠΎ ΠΏΠ»Π°Π½Π° ΠΎΡΠ½ΠΎΠ²Π½ΠΎΠ³ΠΎ ΡΡΠΎΠ²Π½Ρ.
ΡΠΎΠ·Π΄Π°Π΅Ρ. ΠΠΎΠ²Π°Ρ ΠΈ ΠΏΠΎΡΡΠΎΡΠ½Π½ΠΎ ΠΏΠΎΠΏΠΎΠ»Π½ΡΡΡΠ°ΡΡΡ ΠΊΠΎΠ»Π»Π΅ΠΊΡΠΈΡ — ΡΡΠΎ Π½Π°ΡΠΈ Β«ΠΠ»Π°Π½Ρ Ρ ΡΠΎΡΠΎΠ³ΡΠ°ΡΠΈΡΠΌΠΈΒ».Π ΡΡΠΎΠΉ ΠΊΠΎΠ»Π»Π΅ΠΊΡΠΈΠΈ ΠΏΡΠ΅Π΄ΡΡΠ°Π²Π»Π΅Π½Ρ ΠΊΠ»ΠΈΠ΅Π½ΡΡΠΊΠΈΠ΅ ΡΠ±ΠΎΡΠΊΠΈ ΠΏΠΎ
ΡΡΡΠ°Π½Π°. ΠΠΎΠ³Π΄Π° Π²Ρ Π·Π½Π°Π΅ΡΠ΅, ΡΡΠΎ ΠΏΠ»Π°Π½ Π±ΡΠ» ΠΏΠΎΡΡΡΠΎΠ΅Π½ ΡΠ°Π½ΡΡΠ΅, ΡΡΠΎ Π²ΡΠ΅Π³Π΄Π° ΡΡΠΏΠΎΠΊΠ°ΠΈΠ²Π°Π΅Ρ. ΠΠΎΡΠΌΠΎΡΡΠΈΡΠ΅ ΡΡΡ ΠΊΠΎΠ»Π»Π΅ΠΊΡΠΈΡ
ΠΠΆΠ΅Π΄Π½Π΅Π²Π½ΠΎ, ΠΏΠΎΡΠΊΠΎΠ»ΡΠΊΡ ΠΎΠ½ ΡΠ°ΡΡΠ΅Ρ ΠΊΠ°ΠΆΠ΄ΡΠΉ ΡΠ°Π·, ΠΊΠΎΠ³Π΄Π° ΠΎΠ΄ΠΈΠ½ ΠΈΠ· Π½Π°ΡΠΈΡ
ΠΊΠ»ΠΈΠ΅Π½ΡΠΎΠ² ΠΏΡΠΈΡΡΠ»Π°Π΅Ρ ΡΠ²Π΅ΠΆΠΈΠ΅ Π½ΠΎΠ²ΠΎΡΡΡΠΎΠΉΠΊΠΈ ΠΏΠΎ ΠΏΠ»Π°Π½Ρ Π΄ΠΎΠΌΠ°.
ΠΠ°ΠΊΠΎΠ½Π΅Ρ, Π²Ρ ΠΈΠ½Π²Π΅ΡΡΠΎΡ, ΠΆΠ΅Π»Π°ΡΡΠΈΠΉ ΠΏΠΎΡΡΡΠΎΠΈΡΡ ΠΈΠ½Π²Π΅ΡΡΠΈΡΠΈΠΎΠ½Π½ΡΡ Π½Π΅Π΄Π²ΠΈΠΆΠΈΠΌΠΎΡΡΡ? ΠΠΎΠ·ΠΌΠΎΠΆΠ½ΠΎ, Π²Ρ Π·Π°Ρ ΠΎΡΠΈΡΠ΅ ΠΏΡΠΎΡΠΌΠΎΡΡΠ΅ΡΡ Π½Π°ΡΡ ΠΌΠ½ΠΎΠ³ΠΎΡΠ΅ΠΌΠ΅ΠΉΠ½ΡΡ ΠΊΠΎΠ»Π»Π΅ΠΊΡΠΈΡ. ΠΡΠΈ Π½Π΅Π΄ΠΎΡΠΎΠ³ΠΈΠ΅ ΠΏΠ»Π°Π½Ρ ΡΡΠ°ΠΆΠ΅ΠΉ ΠΏΡΠ΅Π΄ΡΡΠ°Π²Π»ΡΡΡ ΡΠΎΠ±ΠΎΠΉ ΠΏΠ»Π°Π½Ρ Π΄ΠΎΠΌΠΎΠ², ΡΠ°ΠΊΠΈΠ΅ ΠΊΠ°ΠΊ Π΄ΡΠΏΠ»Π΅ΠΊΡΡ, ΡΡΠΈΠΏΠ»Π΅ΠΊΡΡ ΠΈ ΡΠ΅ΡΡΡΠ΅Ρ ΡΡΠ°ΠΆΠ½ΡΠ΅ Π΄ΠΎΠΌΠ°, ΠΈΠ΄Π΅Π°Π»ΡΠ½ΠΎ ΠΏΠΎΠ΄Ρ ΠΎΠ΄ΡΡΠΈΠ΅ Π΄Π»Ρ ΡΡΡΠΎΠΈΡΡ Π² ΡΠ²ΠΎΠ΅ΠΌ ΡΠΎΠΎΠ±ΡΠ΅ΡΡΠ²Π΅.
ΠΡ ΡΠ°ΠΊΠΆΠ΅ ΠΌΠΎΠΆΠ΅ΡΠ΅ ΠΈΡΠΊΠ°ΡΡ ΠΏΠ»Π°Π½Ρ Π΄ΠΎΠΌΠΎΠ² ΠΏΠΎ Π°ΡΡ
ΠΈΡΠ΅ΠΊΡΡΡΠ½ΡΠΌ ΡΡΠΈΠ»ΡΠΌ. ΠΠ΄ΠΈΠ½ ΠΈΠ· Π½Π°ΡΠΈΡ
ΡΠ°ΠΌΡΡ
ΠΏΠΎΠΏΡΠ»ΡΡΠ½ΡΡ
ΡΡΠΈΠ»Π΅ΠΉ — ΡΠΎΠ²ΡΠ΅ΠΌΠ΅Π½Π½ΡΠΉ ΡΠ΅ΡΠΌΠ΅ΡΡΠΊΠΈΠΉ Π΄ΠΎΠΌ /
Π‘ΠΎΠ²ΡΠ΅ΠΌΠ΅Π½Π½ΡΠΉ Π΄ΠΎΠΌ.
ΠΠΎΠ»Π»Π΅ΠΊΡΠΈΡ ΠΏΠ»Π°Π½ Modern Farmhouse ΡΠΎΡΠ΅ΡΠ°Π΅Ρ Π² ΡΠ΅Π±Π΅ Π½Π΅ΠΏΠΎΠ΄Π²Π»Π°ΡΡΠ½ΡΠ΅ Π²ΡΠ΅ΠΌΠ΅Π½ΠΈ ΡΠ»Π΅ΠΌΠ΅Π½ΡΡ Π΄Π΅ΡΠ΅Π²Π΅Π½ΡΠΊΠΎΠ³ΠΎ ΡΡΠΈΠ»Ρ Ρ Π±ΠΎΠ»Π΅Π΅ ΡΠΎΠ²ΡΠ΅ΠΌΠ΅Π½Π½ΡΠΌΠΈ ΡΠ»Π΅ΠΌΠ΅Π½ΡΠ°ΠΌΠΈ. ΠΠΎ ΡΠΊΡΡΠ΅ΡΡΠ΅ΡΡ Π ΡΠΎΠ²ΡΠ΅ΠΌΠ΅Π½Π½ΠΎΠΌ ΡΠ΅ΡΠΌΠ΅ΡΡΠΊΠΎΠΌ Π΄ΠΎΠΌΠ΅ Π²Ρ ΠΎΠ±ΡΡΠ½ΠΎ Π½Π°ΠΉΠ΄Π΅ΡΠ΅ Π΄Π²ΡΡΠΊΠ°ΡΠ½ΡΠ΅ ΠΊΡΡΡΠΈ, Π΄ΠΎΡΠΊΡ ΠΈ ΠΎΠ±ΡΠ΅ΡΠ΅ΡΠΊΡ, Π±ΠΎΠ»ΡΡΠΈΠ΅ ΠΊΡΡΡΡΠ΅ Π²Π΅ΡΠ°Π½Π΄Ρ ΠΈ ΠΌΠ΅ΡΠ°Π»Π»ΠΈΡΠ΅ΡΠΊΠΈΠ΅ ΠΊΡΡΡΠΈ.ΠΠ½ΡΡΡΠΈ Π΄ΠΎΠΌΠ° Π²Ρ ΠΏΠΎΡΡΠ²ΡΡΠ²ΡΠ΅ΡΠ΅ ΡΠ΅Π±Ρ ΠΊΠ°ΠΊ Π΄ΠΎΠΌΠ° Ρ ΠΏΠ°Π»ΠΈΡΡΠΎΠΉ Π½Π΅ΠΉΡΡΠ°Π»ΡΠ½ΡΡ ΡΠ²Π΅ΡΠΎΠ² Ρ Π΄Π΅ΡΠ΅Π²ΡΠ½Π½ΡΠΌΠΈ Π°ΠΊΡΠ΅Π½ΡΠ°ΠΌΠΈ. ΠΠ±ΡΠΈΠ²ΠΊΠ°, ΡΠ΅Π³Π΅Π½Π΅ΡΠΈΡΠΎΠ²Π°Π½Π½Π°Ρ Π΄ΡΠ΅Π²Π΅ΡΠΈΠ½Π°, Π΄Π²Π΅ΡΠΈ ΡΠ°ΡΠ°Ρ ΠΈ ΠΎΡΠ²Π΅ΡΠ΅Π½ΠΈΠ΅ ΡΠ°ΡΠ°Ρ — Π΄ΡΡΠ³ΠΈΠ΅ Π²Π°ΠΆΠ½ΡΠ΅ ΠΎΡΠΎΠ±Π΅Π½Π½ΠΎΡΡΠΈ Π² ΠΏΠ»Π°Π½Π΅ Π΄ΠΎΠΌΠ° ΡΠΎΠ²ΡΠ΅ΠΌΠ΅Π½Π½ΠΎΠ³ΠΎ ΡΠ΅ΡΠΌΠ΅ΡΡΠΊΠΎΠ³ΠΎ Π΄ΠΎΠΌΠ°.
ΠΡΠ΅ ΠΎΠ΄ΠΈΠ½ ΡΡΠΈΠ»Ρ, ΠΊΠΎΡΠΎΡΡΠΉ ΠΌΡ ΠΏΡΠ΅Π΄Π»Π°Π³Π°Π΅ΠΌ, — ΡΡΠΎ ΠΊΠΎΠ»Π»Π΅ΠΊΡΠΈΡ Π² ΡΡΠΈΠ»Π΅ ΡΡΠ΅Π΄ΠΈΠ·Π΅ΠΌΠ½ΠΎΠΌΠΎΡΡΠΊΠΎΠ³ΠΎ Π΄ΠΎΠΌΠ°. ΠΡΠΎΡ ΡΡΠΈΠ»Ρ ΠΎΡΠ»ΠΈΡΠ°Π΅ΡΡΡ Π»Π΅ΠΏΠ½ΠΈΠ½ΠΎΠΉ Π½Π° Π²Π½Π΅ΡΠ½ΠΈΡ
ΡΡΠ΅Π½Π°Ρ
Ρ ΡΡΠΆΠ΅Π»ΡΠΌΠΈ
ΠΠ΅ΠΏΠ½ΠΈΠ½Π°, ΠΊΠ°ΠΌΠ΅Π½Π½ΡΠ΅ Π°ΠΊΡΠ΅Π½ΡΡ ΠΈ ΡΠ΅ΡΠ΅ΠΏΠΈΡΠ½ΡΠ΅ ΠΊΡΡΡΠΈ.ΠΡΡΠ³ΠΈΠ΅ ΠΎΡΠΎΠ±Π΅Π½Π½ΠΎΡΡΠΈ ΡΡΠ΅Π΄ΠΈΠ·Π΅ΠΌΠ½ΠΎΠΌΠΎΡΡΠΊΠΎΠ³ΠΎ ΠΏΠ»Π°Π½Π° Π΄ΠΎΠΌΠ° — ΡΡΠΎ ΠΊΡΡΠ³Π»ΡΠ΅ Π²Π΅ΡΡ
Π½ΠΈΠ΅ ΠΎΠΊΠ½Π°, ΠΊΡΡΡΡΠ΅
Π»Π°Π½Π°ΠΈΡ ΠΈ Π΄Π΅ΡΠ΅Π²ΡΠ½Π½ΡΠ΅ ΠΊΡΠΎΠ½ΡΡΠ΅ΠΉΠ½Ρ.
ΠΡΠΎΡ ΡΡΠΈΠ»Ρ ΠΏΠ»Π°Π½Π° ΠΎΠ±ΡΡΠ½ΠΎ Π²ΡΡΡΠ΅ΡΠ°Π΅ΡΡΡ Π½Π° ΡΠΆΠ½ΡΡ
ΡΡΠ½ΠΊΠ°Ρ
, ΠΏΠΎΡΡΡΠΎΠ΅Π½Π½ΡΡ
Π½Π° ΠΏΠ»ΠΈΡΠΎΡΠ½ΠΎΠΌ ΡΡΠ½Π΄Π°ΠΌΠ΅Π½ΡΠ΅. ΡΠ΅ΠΌ Π½Π΅ ΠΌΠ΅Π½ΠΈΠ΅
ΠΌΠ½ΠΎΠ³ΠΈΠ΅ ΡΠ΅ΠΌΡΠΈ Π‘ΡΠ΅Π΄Π½Π΅Π³ΠΎ ΠΠ°ΠΏΠ°Π΄Π° Π²Π΅ΡΠ½ΡΠ»ΠΈ ΠΏΡΠΎΠ΅ΠΊΡ ΡΡΠ΅Π΄ΠΈΠ·Π΅ΠΌΠ½ΠΎΠΌΠΎΡΡΠΊΠΎΠ³ΠΎ Π΄ΠΎΠΌΠ° Π½Π° ΡΡΠ½ΠΎΠΊ ΠΈ ΡΠ΄Π΅Π»Π°Π»ΠΈ Π΅Π³ΠΎ ΡΠΎΠ±ΡΡΠ²Π΅Π½Π½ΡΠΌΠΈ
ΠΏΡΠΎΡΡΠΎ Π·Π°ΠΌΠ΅Π½ΠΈΡΡ ΠΊΡΡΡΡ Π½Π° ΡΠ΅ΡΠ΅ΠΏΠΈΡΡ ΠΈ Π·Π°ΠΌΠ΅Π½ΠΈΡΡ Π»Π΅ΠΏΠ½ΠΈΠ½Ρ Π½Π° Π»Π΅ΠΏΠ½ΠΈΠ½Ρ.
Π‘ΠΎΠ²ΡΠ΅ΠΌΠ΅Π½Π½ΡΠ΅ ΠΏΡΠ΅ΡΠΈΠΈ — ΡΡΠΎ ΠΎΡΠ΅Π½Ρ ΡΠ½ΠΈΠΊΠ°Π»ΡΠ½ΡΠΉ ΡΡΠΈΠ»Ρ, ΠΊΠΎΡΠΎΡΡΠΉ ΠΌΡ ΠΏΡΠ΅Π΄Π»Π°Π³Π°Π΅ΠΌ.ΠΡΠ»ΠΈ Π²Ρ Ρ
ΠΎΡΠΈΡΠ΅ ΠΏΡΠΎΠΈΠ·Π²Π΅ΡΡΠΈ Π²ΠΏΠ΅ΡΠ°ΡΠ»Π΅Π½ΠΈΠ΅ Π½Π° ΡΠ²ΠΎΠΈΡ
ΡΠΎΡΠ΅Π΄Π΅ΠΉ ΡΠΎΠ²ΡΠ΅ΠΌΠ΅Π½Π½ΡΠΌΠΈ / ΠΌΠΎΠ΄Π΅ΡΠ½ΠΈΡΡΡΠΊΠΈΠΌΠΈ
ΡΡΠΈΠ»Ρ ΠΏΡΠ΅ΡΠΈΠΈ Π΄Π»Ρ Π²Π°Ρ. ΠΡΠΎΡ ΡΡΠΈΠ»Ρ ΠΏΠ»Π°Π½Π° Π΄ΠΎΠΌΠ° ΠΌΠΎΠΆΠ΅Ρ ΠΈΠΌΠ΅ΡΡ ΠΏΠ»ΠΎΡΠΊΠΈΠ΅ ΠΊΡΡΡΠΈ, ΠΊΡΡΡΠΈ Ρ Π½ΠΈΠ·ΠΊΠΈΠΌ ΡΠΊΠ°ΡΠΎΠΌ ΠΈΠ»ΠΈ ΠΎΠ΄Π½ΠΎΡΠΊΠ°ΡΠ½ΡΠ΅ ΠΊΡΡΡΠΈ. Π‘Π°ΠΉΠ΄ΠΈΠ½Π³
ΠΠ°ΡΠ΅ΡΠΈΠ°Π» ΠΏΡΠ΅Π΄Π»Π°Π³Π°Π΅Ρ ΡΠΎΡΠ΅ΡΠ°Π½ΠΈΠ΅ Π»Π΅ΠΏΠ½ΠΈΠ½Ρ, ΠΊΠ°ΠΌΠ½Ρ, ΠΏΠ»ΠΈΡΠΊΠΈ ΠΈ ΡΠ°ΠΉΠ΄ΠΈΠ½Π³Π° ΠΈΠ· ΠΊΠ΅Π΄ΡΠ°. ΠΡΠ΅ ΠΎΠ΄Π½Π° Π·Π°ΠΌΠ΅ΡΠ°ΡΠ΅Π»ΡΠ½Π°Ρ ΡΠ΅ΡΡΠ° ΠΏΠ»Π°Π½Π° Π΄ΠΎΠΌΠ° Π² ΡΠΎΠ²ΡΠ΅ΠΌΠ΅Π½Π½ΠΎΠΌ ΡΡΠΈΠ»Π΅
Π±ΠΎΠ»ΡΡΠΈΠ΅ ΠΎΠΊΠ½Π° ΠΈ Π²Π½Π΅ΡΠ½ΠΈΠ΅ Π΄Π²ΠΎΡΠΈΠΊΠΈ. ΠΠ½ΡΡΡΠΈ Π²Ρ Π½Π°ΠΉΠ΄Π΅ΡΠ΅ ΠΎΡΠΊΡΡΡΡΠ΅ ΠΆΠΈΠ»ΡΠ΅ ΠΏΠΎΠΌΠ΅ΡΠ΅Π½ΠΈΡ, Π²Π΅Π»ΠΈΡΠ΅ΡΡΠ²Π΅Π½Π½ΡΠ΅ ΠΏΠΎΡΠΎΠ»ΠΊΠΈ ΠΈ Π½Π΅ΠΊΠΎΡΠΎΡΡΠ΅ ΠΈΠ· Π½ΠΈΡ
.
ΠΏΠ»Π°Π²Π°ΡΡΠΈΠ΅ Π»Π΅ΡΡΠ½ΠΈΡΡ.
ΠΡΠ΅ ΠΎΠ΄Π½Π° ΡΡΡΠ°Π½ΠΈΡΠ° ΠΊΠΎΠ»Π»Π΅ΠΊΡΠΈΠΈ, ΠΊΠΎΡΠΎΡΡΡ Π²Ρ ΠΌΠΎΠ³Π»ΠΈ Π±Ρ ΡΠ°ΡΡΠΌΠΎΡΡΠ΅ΡΡ, — ΡΡΠΎ Π½Π°ΡΠΈ ΠΏΠ»Π°Π½Ρ Π³Π°ΡΠ°ΠΆΠ°. ΠΡ Π½Π΅ ΡΠΈΠΏΠΈΡΠ½ΡΠΉ Π΄ΠΈΠ·Π°ΠΉΠ½Π΅Ρ ΠΏΠ»Π°Π½Π° Π³Π°ΡΠ°ΠΆΠ°. ΠΠ½ΠΎΠ³ΠΈΠ΅ ΠΈΠ· ΠΠ°ΡΠΈ Π³Π°ΡΠ°ΠΆΠΈ ΠΏΡΠ΅Π΄Π»Π°Π³Π°ΡΡ ΠΏΡΠΎΡ Π»Π°Π΄Π½ΡΠΉ ΡΠΊΡΡΠ΅ΡΡΠ΅Ρ, ΠΊΠΎΡΠΎΡΡΠΉ ΠΏΠΎΠΌΠΎΠΆΠ΅Ρ Π΄ΠΎΠΏΠΎΠ»Π½ΠΈΡΡ Π²Π°Ρ ΡΡΡΠ΅ΡΡΠ²ΡΡΡΠΈΠΉ Π΄ΠΎΠΌ. ΠΡΡΠ³ΠΈΠ΅ ΡΡΠ½ΠΊΡΠΈΠΈ, ΠΏΡΠ΅Π΄Π»Π°Π³Π°Π΅ΠΌΡΠ΅ Π½Π°ΡΠΈΠΌΠΈ ΠΏΠ»Π°Π½Π°ΠΌΠΈ Π³Π°ΡΠ°ΠΆΠ° ΡΡΠΎ ΡΠΊΠ»Π°Π΄ΡΠΊΠΈΠ΅ ΠΏΠΎΠΌΠ΅ΡΠ΅Π½ΠΈΡ, ΠΌΠ°ΡΡΠ΅ΡΡΠΊΠΈΠ΅, Π²ΡΡΠΎΠΊΠΈΠ΅ ΠΏΠΎΡΠΎΠ»ΠΊΠΈ Π΄Π»Ρ Π»ΠΈΡΡΠΎΠ² ΠΈΠ»ΠΈ Π»ΠΎΠ΄ΠΎΠΊ ΠΈ Π΄Π°ΠΆΠ΅ Π½Π°Π²Π΅ΡΡ Π΄Π»Ρ Π°Π²ΡΠΎΠΌΠΎΠ±ΠΈΠ»Π΅ΠΉ.
ΠΠ²Π°ΡΡΠΈΡΠ½ΡΠ΅ Π³Π°ΡΠ°ΠΆΠΈ — Π΅ΡΠ΅ ΠΎΠ΄Π½Π° Π½Π°Π±ΠΈΡΠ°ΡΡΠ°Ρ ΠΏΠΎΠΏΡΠ»ΡΡΠ½ΠΎΡΡΡ ΠΊΠΎΠ»Π»Π΅ΠΊΡΠΈΡ.ΠΠ°ΡΠ°ΠΆΠΈ Ρ ΠΊΠ²Π°ΡΡΠΈΡΠ°ΠΌΠΈ — ΡΡΠΎ ΠΎΡΠ΄Π΅Π»ΡΠ½ΠΎ ΡΡΠΎΡΡΠΈΠ΅ ΡΡΡΠΎΠ΅Π½ΠΈΡ, Π² ΡΠΎΡΡΠ°Π² ΠΊΠΎΡΠΎΡΡΡ Π²Ρ ΠΎΠ΄ΡΡ Π³Π°ΡΠ°ΠΆΠΈ. Π½Π° ΠΏΠ΅ΡΠ²ΠΎΠΌ ΡΡΠ°ΠΆΠ΅ Ρ ΠΆΠΈΠ»ΡΠΌΠΈ ΠΏΠΎΠΌΠ΅ΡΠ΅Π½ΠΈΡΠΌΠΈ Π²ΡΡΠ΅. Π Π½Π΅ΠΊΠΎΡΠΎΡΡΡ Π³Π°ΡΠ°ΠΆΠ°Ρ Π΅ΡΡΡ 1-2 ΡΠΏΠ°Π»ΡΠ½ΠΈ Ρ ΠΊΡΡ Π½ΡΠΌΠΈ ΠΈ Π²Π°Π½Π½ΡΠΌΠΈ ΠΊΠΎΠΌΠ½Π°ΡΠ°ΠΌΠΈ. Ρ ΠΎΡΠΎΡΠΎ. ΠΠ΄Π΅Π°Π»ΡΠ½ΠΎ ΠΏΠΎΠ΄Ρ ΠΎΠ΄ΠΈΡ Π΄Π»Ρ ΡΠ²Π΅ΠΊΡΠΎΠ²ΠΈ ΠΈΠ»ΠΈ Π΄Π»Ρ ΡΠ΅Π±Π΅Π½ΠΊΠ°, ΠΈΠ΄ΡΡΠ΅Π³ΠΎ Π² ΠΈΠ½ΡΡΠΈΡΡΡ.
ΠΠ»Π°Π½Ρ ΠΏΡΠΎΠ΅ΠΊΡΠΎΠ² ΡΠ°ΠΊΠΆΠ΅ ΠΌΠΎΠΆΠ½ΠΎ Π½Π°ΠΉΡΠΈ Π½Π° Π½Π°ΡΠ΅ΠΉ ΡΡΡΠ°Π½ΠΈΡΠ΅ ΠΊΠΎΠ»Π»Π΅ΠΊΡΠΈΠΈ.
ΠΠ»Π°Π½Ρ ΠΏΡΠΎΠ΅ΠΊΡΠ° Π²ΠΊΠ»ΡΡΠ°ΡΡ ΠΏΠ»Π°Π½Ρ ΡΠ΅ΡΡΠ°Ρ, Π±Π΅ΡΠ΅Π΄ΠΎΠΊ, Π½Π°Π²Π΅ΡΠΎΠ², ΠΏΠ»Π°Π½Ρ Π΄ΠΎΠΌΠΈΠΊΠΎΠ² Ρ Π±Π°ΡΡΠ΅ΠΉΠ½Π°,
ΠΊΡΡΡΡΠ½ΠΈΠΊΠΈ ΠΈ ΠΌΠ°ΡΡΠ΅ΡΡΠΊΠΈΠ΅.
ΠΠ΄Π½Π° ΠΈΠ· ΡΠ°ΠΌΡΡ ΠΊΡΡΡΡΡ Π½ΠΎΠ²ΡΡ Π±Π°Π½Π½Π΅ΡΠ½ΡΡ ΡΡΡΠ°Π½ΠΈΡ — ΡΡΠΎ ΡΡΡΠ°Π½ΠΈΡΠ° «Π’Π΅Π½Π΄Π΅Π½ΡΠΈΠΈ». ΠΠ° ΡΡΡΠ°Π½ΠΈΡΠ΅ «Π’Π΅Π½Π΄Π΅Π½ΡΠΈΠΈ» ΠΏΡΠ΅Π΄ΡΡΠ°Π²Π»Π΅Π½Ρ 10 Π½Π°ΡΠΈΡ ΡΠ°ΠΌΡΡ ΠΏΠΎΠΏΡΠ»ΡΡΠ½ΡΡ ΠΏΠ»Π°Π½ΠΎΠ² Π½Π° ΡΠ΅Π³ΠΎΠ΄Π½ΡΡΠ½ΠΈΠΉ Π΄Π΅Π½Ρ. ΠΡΠΈ ΠΏΠ»Π°Π½Ρ — ΡΠΎ, ΡΡΠΎ Π½Π°ΡΠΈΡ ΡΡΠΈΡΠ°Π΅Ρ ΡΠ°ΠΌΡΠΌΠΈ ΠΊΡΡΡΡΠΌΠΈ ΠΏΠ»Π°Π½Π°ΠΌΠΈ Π΄Π½Ρ, ΠΈ ΠΎΠ½ΠΈ Π±ΡΠ΄ΡΡ ΠΌΠ΅Π½ΡΡΡΡΡ ΡΠΎΠΎΡΠ²Π΅ΡΡΡΠ²Π΅Π½Π½ΠΎ.
ΠΡ ΠΌΠ΅ΡΡΠ°Π΅ΡΠ΅ ΠΏΠΎΡΡΡΠΎΠΈΡΡ ΡΠ²ΠΎΠΉ ΡΠΎΠ±ΡΡΠ²Π΅Π½Π½ΡΠΉ ΠΊΡΠΎΡΠ΅ΡΠ½ΡΠΉ Π΄ΠΎΠΌΠΈΠΊ Π² ΠΊΠ°ΡΠ΅ΡΡΠ²Π΅ ΡΠ΅Π΄ΠΈΠ½Π΅Π½ΠΈΡ ΠΈΠ»ΠΈ Π΄ΠΎΠΏΠΎΠ»Π½ΠΈΡΠ΅Π»ΡΠ½ΠΎΠ³ΠΎ ΠΌΠ΅ΡΡΠ° Π΄Π»Ρ Π³ΠΎΡΡΠ΅ΠΉ? Π£ Π½Π°Ρ Π΅ΡΡΡ ΠΏΠ»Π°Π½Ρ ΡΡΠ°ΠΆΠ΅ΠΉ! Π ΠΌΡ ΠΏΡΠ΅Π΄Π»Π°Π³Π°Π΅ΠΌ ΠΏΠ»Π°Π½Ρ Π΄Π»Ρ Π΄ΡΡΠ³ΠΈΡ ΡΠΈΠΏΠΎΠ² Π·Π΄Π°Π½ΠΈΠΉ, ΠΊΠΎΡΠΎΡΡΠ΅ ΠΌΠΎΠ³ΡΡ Π²Π°ΠΌ ΠΏΠΎΠ½Π°Π΄ΠΎΠ±ΠΈΡΡΡΡ, Π½Π°ΠΏΡΠΈΠΌΠ΅Ρ, ΡΡΠΎΠ»Π±ΠΎΠ² ΠΈ Π±Π°ΡΠ½Π΄ΠΎΠΌΠΈΠ½ΠΈΡΠΌΠΎΠ².ΠΡ ΡΠ°Π±ΠΎΡΠ°Π΅ΠΌ Ρ ΡΠΈΡΠΎΠΊΠΈΠΌ ΡΠΏΠ΅ΠΊΡΡΠΎΠΌ Π°ΡΡ ΠΈΡΠ΅ΠΊΡΡΡΠ½ΡΡ Π²Π»ΠΈΡΠ΅Ρ Π½Π° ΠΏΡΠ΅Π΄Π»ΠΎΠΆΠ΅Π½ΠΈΠ΅ ΠΏΠ»Π°Π½ΠΎΠ² Π΄ΠΎΠΌΠ°ΡΠ½Π΅Π³ΠΎ Π΄ΠΈΠ·Π°ΠΉΠ½Π° Π² ΡΠ°ΠΊΠΈΡ ΡΡΠΈΠ»ΡΡ , ΠΊΠ°ΠΊ Contemporary, Modern, Traditional, Craftsman ΠΈ Π΄Ρ.
ΠΠ΅Π·Π°Π²ΠΈΡΠΈΠΌΠΎ ΠΎΡ ΡΠ°Π·ΠΌΠ΅ΡΠ° ΠΈΠ»ΠΈ ΡΡΠΈΠ»Ρ ΠΏΠ»Π°Π½Π° Π΄ΠΎΠΌΠ°, Π΄Π»Ρ ΠΊΠΎΡΠΎΡΠΎΠ³ΠΎ Π²Π°ΠΌ Π½ΡΠΆΠ½Ρ ΠΏΠΎΡΡΠ°ΠΆΠ½ΡΠ΅ ΠΏΠ»Π°Π½Ρ, Π² Advanced House ΠΏΠ»Π°Π½Π°Ρ
Π΅ΡΡΡ Π΄ΠΈΠ·Π°ΠΉΠ½ Π΄ΠΎΠΌΠ° Π΄Π»Ρ Π²Π°Ρ.
Π Π½Π° ΡΠ»ΡΡΠ°ΠΉ
Π²Ρ Π½Π΅ Π²ΠΈΠ΄ΠΈΡΠ΅ ΠΏΡΠ°Π²ΠΈΠ»ΡΠ½ΠΎΠ³ΠΎ ΠΏΠ»Π°Π½Π° ΡΡΠ°ΠΆΠ° ΠΈΠ»ΠΈ Π΄ΠΈΠ·Π°ΠΉΠ½Π° Π΄ΠΎΠΌΠ°, ΠΎ ΠΊΠΎΡΠΎΡΡΡ
Π²Ρ ΠΌΠ΅ΡΡΠ°Π»ΠΈ ΠΎ Π½Π°ΡΠΈΡ
ΡΡΡΠ΅ΡΡΠ²ΡΡΡΠΈΡ
ΠΏΠ»Π°Π½Π°Ρ
, ΠΌΡ ΠΏΡΠ΅Π΄Π»Π°Π³Π°Π΅ΠΌ ΠΈΠ½Π΄ΠΈΠ²ΠΈΠ΄ΡΠ°Π»ΡΠ½ΡΠ΅ ΠΏΠ»Π°Π½Ρ Π΄ΠΎΠΌΠ°
ΠΈ ΠΈΠ·ΠΌΠ΅Π½Π΅Π½ΠΈΡ ΠΏΠ»Π°Π½Π° Π΄ΠΎΠΌΠ°, ΡΡΠΎΠ±Ρ ΠΏΠΎΠΌΠΎΡΡ Π²Π°ΠΌ ΡΠΎΠ·Π΄Π°ΡΡ ΠΏΠ»Π°Π½ Π΄ΠΎΠΌΠ°, ΠΊΠΎΡΠΎΡΡΠΉ ΠΈΠ΄Π΅Π°Π»ΡΠ½ΠΎ ΠΏΠΎΠ΄Ρ
ΠΎΠ΄ΠΈΡ Π΄Π»Ρ Π²Π°ΡΠ΅ΠΉ ΡΠ΅ΠΌΡΠΈ.Π’Π°ΠΊ ΡΡΠΎ ΠΏΡΠΎΡΠΌΠΎΡΡΠΈΡΠ΅ Π½Π°Ρ ΠΌΠ½ΠΎΠ³ΠΎ ΡΠ°Π·Π½ΡΡ
Π΄ΠΎΠΌΠΎΠ²
ΠΏΡΠΎΠ΅ΠΊΡΡ, ΠΏΠ»Π°Π½Ρ Π³Π°ΡΠ°ΠΆΠ΅ΠΉ ΠΈ ΠΏΠ»Π°Π½Ρ ΠΏΡΠΎΠ΅ΠΊΡΠΎΠ² ΠΈ ΠΏΠΎΡΠΌΠΎΡΡΠΈΡΠ΅, ΠΊΠ°ΠΊΠΎΠΉ ΠΈΠ· Π½ΠΈΡ
Π²Π°ΠΌ ΠΏΠΎΠ΄Ρ
ΠΎΠ΄ΠΈΡ. ΠΡΠ»ΠΈ Ρ Π²Π°Ρ Π΅ΡΡΡ Π²ΠΎΠΏΡΠΎΡΡ ΠΏΠΎ ΠΏΡΠΎΡΠ΅ΡΡΡ, ΠΏΠΎΠΆΠ°Π»ΡΠΉΡΡΠ°
ΡΠ²ΡΠΆΠΈΡΠ΅ΡΡ Ρ Π½Π°ΠΌΠΈ ΠΏΠΎ Π°Π΄ΡΠ΅ΡΡ [email protected] ΠΈΠ»ΠΈ 1-844-675-9638 ΠΈΠ»ΠΈ Π² Π½Π°ΡΠ΅ΠΌ ΡΠ΄ΠΎΠ±Π½ΠΎΠΌ ΠΆΠΈΠ²ΠΎΠΌ ΡΠ°ΡΠ΅, ΠΈ ΠΌΡ Π±ΡΠ΄Π΅ΠΌ ΡΠ°Π΄Ρ ΠΏΠΎΠΌΠΎΡΡ Π²Π°ΠΌ.
ΠΠ°ΡΠΈ ΠΏΠ»Π°Π½Ρ Π±ΡΠ»ΠΈ ΠΏΡΠ΅Π΄ΡΡΠ°Π²Π»Π΅Π½Ρ Π²ΠΎ Π²ΡΠ΅ΠΌ ΠΌΠΈΡΠ΅, ΠΈ ΠΈΡ
ΠΌΠΎΠΆΠ½ΠΎ ΠΊΡΠΏΠΈΡΡ Π½Π° Π½Π΅ΠΊΠΎΡΠΎΡΡΡ
ΠΈΠ· Π»ΡΡΡΠΈΡ
ΡΠ°ΠΉΡΠΎΠ² Ρ ΠΏΠ»Π°Π½Π°ΠΌΠΈ Π΄ΠΎΠΌΠΎΠ², ΡΠ°ΠΊΠΈΡ
ΠΊΠ°ΠΊ
Menards.com, architecturedesigns.com
ΠΠ»Π°Π½Ρ Π΄ΠΎΠΌΠΎΠ² | ΠΡΠΎΡΠΌΠΎΡΡΠΈΡΠ΅ Π±ΠΎΠ»Π΅Π΅ 29000 ΠΏΠ»Π°Π½ΠΎΠ² ΠΈ ΠΏΡΠΎΠ΅ΠΊΡΠΎΠ² ΡΡΠ°ΠΆΠ΅ΠΉ
ΠΠ»Π°Π½Ρ Π΄ΠΎΠΌΠΎΠ², ΡΠ°Π·ΡΠ°Π±ΠΎΡΠ°Π½Π½ΡΠ΅ Π΄ΠΈΠ·Π°ΠΉΠ½Π΅ΡΠ°ΠΌΠΈ ΠΈ Π°ΡΡ ΠΈΡΠ΅ΠΊΡΠΎΡΠ°ΠΌΠΈ — Π²ΡΠ±ΡΠ°Π½Π½ΡΠ΅ Π²Π°ΠΌΠΈ
ΠΠΎΠ³Π΄Π° Π²Ρ ΠΈΡΠ΅ΡΠ΅ ΠΏΠ»Π°Π½Ρ Π΄ΠΎΠΌΠΎΠ² Π½Π° ΠΏΠ»Π°Π½Π°Ρ
Π΄ΠΎΠΌΠΎΠ²-ΠΌΠΎΠ½ΡΡΡΠΎΠ², Ρ Π²Π°Ρ Π΅ΡΡΡ Π΄ΠΎΡΡΡΠΏ ΠΊ ΡΠΎΡΠ½ΡΠΌ ΠΏΠ»Π°Π½ΠΎΠ² Π΄ΠΎΠΌΠΎΠ² ΠΈ ΠΏΠ»Π°Π½ΠΈΡΠΎΠ²ΠΎΠΊ, ΡΠΎΠ·Π΄Π°Π½Π½ΡΡ
Ρ ΡΡΠ΅ΡΠΎΠΌ ΠΎΡΠ΅Π½Ρ Π²ΡΡΠΎΠΊΠΈΡ
ΡΡΠ΅Π±ΠΎΠ²Π°Π½ΠΈΠΉ.
Π‘ ΠΏΠ»Π°Π½Π°ΠΌΠΈ Monster House Π²Ρ ΠΌΠΎΠΆΠ΅ΡΠ΅ Π½Π°ΡΡΡΠΎΠΈΡΡ ΠΏΡΠΎΡΠ΅ΡΡ ΠΏΠΎΠΈΡΠΊΠ° Π² ΡΠΎΠΎΡΠ²Π΅ΡΡΡΠ²ΠΈΠΈ ΡΠΎ ΡΠ²ΠΎΠΈΠΌΠΈ ΠΏΠΎΡΡΠ΅Π±Π½ΠΎΡΡΡΠΌΠΈ. ΠΡ ΡΠ°ΠΊΠΆΠ΅ ΠΌΠΎΠΆΠ΅ΡΠ΅ ΠΏΠ΅ΡΡΠΎΠ½Π°Π»ΠΈΠ·ΠΈΡΠΎΠ²Π°ΡΡ ΠΏΠ»Π°Π½ ΡΠ²ΠΎΠ΅Π³ΠΎ Π΄ΠΎΠΌΠ° Ρ ΠΏΠΎΠΌΠΎΡΡΡ Π΄ΠΎΠΏΠΎΠ»Π½ΠΈΡΠ΅Π»ΡΠ½ΡΡ
ΡΡΠ½ΠΊΡΠΈΠΉ, ΡΠ°ΠΊΠΈΡ
ΠΊΠ°ΠΊ:
- Π Π΅ΠΌΠΎΠ½Ρ ΠΈ ΠΎΡΠ½Π°ΡΠ΅Π½ΠΈΠ΅ ΠΊΡΡ ΠΎΠ½Ρ ΠΈ ΡΡΠΎΠ»ΠΎΠ²ΡΡ
- ΠΠ°Π½Π½ΡΠ΅ ΠΊΠΎΠΌΠ½Π°ΡΡ ΠΠΆΠ΅ΠΊΠ° ΠΈ ΠΠΆΠΈΠ»Π» Π΄Π»Ρ ΡΠ°ΡΡΡΡΠΈΡ ΡΠ΅ΠΌΠ΅ΠΉ
- ΠΡΠ΅ΠΏΠ°ΡΠ°ΡΡ Π΄Π»Ρ ΠΏΡΠ΅ΡΡΠ°ΡΠ΅Π»ΡΡ ΡΠΎΠ΄ΠΈΡΠ΅Π»Π΅ΠΉ ΠΈ ΡΠΎΠ΄ΡΡΠ²Π΅Π½Π½ΠΈΠΊΠΎΠ²
- ΠΠΎΠΌΠ°ΡΠ½ΠΈΠΉ ΠΎΡΠΈΡ
ΠΠΎΠ³Π΄Π° Π²Ρ Π½Π°ΡΠ½Π΅ΡΠ΅ ΠΏΡΠΎΡΠ΅ΡΡ ΠΏΠΎΠΈΡΠΊΠ°, Π²Ρ ΡΠΌΠΎΠΆΠ΅ΡΠ΅ Π½Π°ΡΠ°ΡΡ Ρ Π½Π΅ΡΠΊΠΎΠ»ΡΠΊΠΈΡ ΠΏΡΠ΅Π΄Π»ΠΎΠΆΠ΅Π½ΠΈΠΉ ΠΈΠ· Π½Π°ΡΠ΅ΠΉ Π±ΠΈΠ±Π»ΠΈΠΎΡΠ΅ΠΊΠΈ ΠΏΠ»Π°Π½ΠΎΠ² Π΄ΠΎΠΌΠΎΠ².ΠΡ ΡΠΌΠΎΠΆΠ΅ΡΠ΅ ΠΏΡΠΎΡΠΌΠ°ΡΡΠΈΠ²Π°ΡΡ ΡΠ°Π·Π»ΠΈΡΠ½ΡΠ΅ ΡΡΠ½ΠΊΡΠΈΠΈ ΠΊΠ°ΠΆΠ΄ΠΎΠ³ΠΎ Ρ Π½Π΅ΡΠΊΠΎΠ»ΡΠΊΠΈΠΌΠΈ Π²Π°ΡΠΈΠ°Π½ΡΠ°ΠΌΠΈ Π·Π°Π³ΡΡΠ·ΠΊΠΈ.
ΠΡ ΡΠ°ΠΊΠΆΠ΅ ΠΌΠΎΠΆΠ΅ΡΠ΅ ΠΈΡΠΏΠΎΠ»ΡΠ·ΠΎΠ²Π°ΡΡ Π½Π°ΡΡ ΠΌΠΎΡΠ½ΡΡ ΠΏΠ°Π½Π΅Π»Ρ ΠΏΠΎΠΈΡΠΊΠ°, ΡΡΠΎΠ±Ρ Π½Π°ΡΠ°ΡΡ Π±ΠΎΠ»Π΅Π΅ ΡΠ°ΡΡΠΈΡΠ΅Π½Π½ΡΠΉ ΠΏΠΎΠΈΡΠΊ.
ΠΠ½ΠΎΠ³ΠΈΠ΅ ΠΏΠΎΠΊΡΠΏΠ°ΡΠ΅Π»ΠΈ ΠΆΠΈΠ»ΡΡ ΡΠ½Π°ΡΠ°Π»Π° ΠΏΡΠΎΡΠΌΠ°ΡΡΠΈΠ²Π°ΡΡ Π΄ΠΎΡΡΡΠΏΠ½ΡΠ΅ ΠΈΠ»ΠΈ ΠΏΡΠ΅Π΄Π»Π°Π³Π°Π΅ΠΌΡΠ΅ Π²Π°ΡΠΈΠ°Π½ΡΡ, Π° Π·Π°ΡΠ΅ΠΌ ΠΈΡΠΏΠΎΠ»ΡΠ·ΡΡΡ ΠΈΡ Π² ΠΊΠ°ΡΠ΅ΡΡΠ²Π΅ Π²Π΄ΠΎΡ Π½ΠΎΠ²Π΅Π½ΠΈΡ Π΄Π»Ρ Π²ΡΠΏΠΎΠ»Π½Π΅Π½ΠΈΡ ΡΠΎΠ±ΡΡΠ²Π΅Π½Π½ΡΡ ΠΏΠΎΠΈΡΠΊΠΎΠ². ΠΠ°ΠΊΠΎΠΉ Π±Ρ ΠΌΠ°ΡΡΡΡΡ Π²Ρ Π½ΠΈ Π²ΡΠ±ΡΠ°Π»ΠΈ, ΠΊΠΎΠ½Π΅ΡΠ½ΡΠΉ ΡΠ΅Π·ΡΠ»ΡΡΠ°Ρ Π±ΡΠ΄Π΅Ρ ΠΎΠ΄ΠΈΠ½Π°ΠΊΠΎΠ²ΡΠΌ: ΠΈΠ½Π΄ΠΈΠ²ΠΈΠ΄ΡΠ°Π»ΡΠ½ΡΠΉ ΠΏΠ»Π°Π½ Π΄ΠΎΠΌΠ°, ΡΠΎΠ·Π΄Π°Π½Π½ΡΠΉ Π²Π°ΠΌΠΈ ΠΈ Π΄Π»Ρ Π²Π°Ρ.
ΠΠ° ΡΡΠΎ ΠΎΠ±ΡΠ°ΡΠ°ΡΡ Π²Π½ΠΈΠΌΠ°Π½ΠΈΠ΅ ΠΏΡΠΈ ΠΏΠ»Π°Π½ΠΈΡΠΎΠ²ΠΊΠ΅ Π΄ΠΎΠΌΠ°
ΠΡΠ»ΠΈ Π²Ρ Π±Π΅ΡΠΏΠΎΠΊΠΎΠΈΡΠ΅ΡΡ ΠΈΠ»ΠΈ Π½Π΅ ΠΏΠΎΠ½ΠΈΠΌΠ°Π΅ΡΠ΅, ΡΡΠΎ Π²Π°ΠΌ ΡΠ»Π΅Π΄ΡΠ΅Ρ ΠΈΡΠΊΠ°ΡΡ Π² ΠΎΠ½Π»Π°ΠΉΠ½-ΠΏΠ»Π°Π½Π΅ Π΄ΠΎΠΌΠ°, Π²ΠΎΡ Π½Π΅ΡΠΊΠΎΠ»ΡΠΊΠΎ ΠΌΠ΅ΡΡ Π΄Π»Ρ Π½Π°ΡΠ°Π»Π°:
- ΠΠ°Ρ ΡΡΠΈΠ»Ρ ΠΆΠΈΠ·Π½ΠΈ: Π’ΠΎ, ΡΡΠΎ Π±ΡΠ΄Π΅Ρ Ρ ΠΎΡΠ΅ΡΡ ΠΏΠ°ΡΠ° ΠΏΠ΅Π½ΡΠΈΠΎΠ½Π΅ΡΠΎΠ², ΠΎΡΠ»ΠΈΡΠ°Π΅ΡΡΡ ΠΎΡ ΡΠΎΠ³ΠΎ, ΡΡΠΎ Π½ΡΠΆΠ½ΠΎ ΠΌΠΎΠ»ΠΎΠ΄ΠΎΠΆΠ΅Π½Π°ΠΌ.ΠΡΠ΅ΠΆΠ΄Π΅ ΡΠ΅ΠΌ ΠΈΡΠΊΠ°ΡΡ ΠΏΠ»Π°Π½ ΡΡΠ°ΠΆΠ°, ΠΎΠΏΡΠ΅Π΄Π΅Π»ΠΈΡΠ΅, ΠΊΠ°ΠΊΠΎΠ²Ρ ΡΡΠΈ ΠΏΡΠΈΠΎΡΠΈΡΠ΅ΡΡ.
- ΠΠΎΠ½ΡΠΈΠ΄Π΅Π½ΡΠΈΠ°Π»ΡΠ½ΠΎΡΡΡ: Π Π°ΡΡΠΌΠΎΡΡΠΈΡΠ΅ Π²Π°ΡΠΈΠ°Π½Ρ U-ΠΎΠ±ΡΠ°Π·Π½ΠΎΠΉ ΠΈΠ»ΠΈ L-ΠΎΠ±ΡΠ°Π·Π½ΠΎΠΉ ΡΠΎΡΠΌΡ, Π΅ΡΠ»ΠΈ Π²Ρ ΠΈΡΠ΅ΡΠ΅ ΠΎΠ±ΡΡΡ ΠΊΠΎΠ½ΡΠΈΠ΄Π΅Π½ΡΠΈΠ°Π»ΡΠ½ΠΎΡΡΡ ΡΡΠ°ΡΡΠΊΠ°, ΠΈΠ»ΠΈ ΠΎΡΠΊΡΡΡΠΎΠ³ΠΎ ΠΏΠ»Π°Π½Π° ΡΡΠ°ΠΆΠ°, Π΅ΡΠ»ΠΈ Π²Ρ Ρ ΠΎΡΠΈΡΠ΅ ΡΠ°Π·Π΄Π΅Π»ΠΈΡΡ ΡΠ²ΠΎΠ΅ ΠΏΡΠΎΡΡΡΠ°Π½ΡΡΠ²ΠΎ.
- Π‘ΡΠ°ΡΡΡ Π·Π΅ΠΌΠ»ΠΈ: ΠΠ»Ρ ΡΠ°Π·Π½ΡΡ ΡΡΠ΅Π΄ ΡΡΠ΅Π±ΡΡΡΡΡ ΡΠ°Π·Π½ΡΠ΅ ΠΏΠ»Π°Π½Ρ — Π΄Π»Ρ Π΄ΠΎΠΌΠ°, ΡΠ°ΡΠΏΠΎΠ»ΠΎΠΆΠ΅Π½Π½ΠΎΠ³ΠΎ Π½Π° Π·Π°Π±ΠΎΠ»ΠΎΡΠ΅Π½Π½ΠΎΠΉ ΠΈΠ»ΠΈ Ρ ΠΎΠ»ΠΌΠΈΡΡΠΎΠΉ ΠΌΠ΅ΡΡΠ½ΠΎΡΡΠΈ, ΠΏΠΎΡΡΠ΅Π±ΡΠ΅ΡΡΡ ΠΏΠ»Π°Π½ Π΄ΠΎΠΌΠ°, ΡΡΠΈΡΡΠ²Π°ΡΡΠΈΠΉ ΡΡΠΎΡ ΡΡΠ°ΡΡΡ Π·Π΅ΠΌΠ»ΠΈ.
- ΠΠ½ΠΎΠ³ΠΎΡΡΠ°ΠΆΠ½ΡΠΉ Π΄ΠΎΠΌ ΠΈΠ»ΠΈ Π±ΡΠ½Π³Π°Π»ΠΎ: Π Π΅ΡΠΈΡΠ΅, ΡΠΊΠΎΠ»ΡΠΊΠΎ ΡΡΠΎΠ²Π½Π΅ΠΉ Π΄ΠΎΠ»ΠΆΠ½ΠΎ Π±ΡΡΡ Ρ Π²Π°ΡΠ΅Π³ΠΎ Π΄ΠΎΠΌΠ°, ΠΈΡΡ ΠΎΠ΄Ρ ΠΈΠ· Π²Π°ΡΠ΅Π³ΠΎ Π²ΠΈΠ΄Π΅Π½ΠΈΡ, Π½ΠΎ ΠΎΡΡΠ°Π²Π°ΠΉΡΠ΅ΡΡ ΠΎΡΠΊΡΡΡΡΠΌΠΈ.
ΠΡΠ΅ΠΈΠΌΡΡΠ΅ΡΡΠ²Π° ΠΏΠΎΠΊΡΠΏΠΊΠΈ Π΄ΠΎΠΌΠ° Π² ΠΠ½ΡΠ΅ΡΠ½Π΅ΡΠ΅
ΠΡΠ»ΠΈ Π²Ρ Π½ΠΈΠΊΠΎΠ³Π΄Π° ΡΠ°Π½ΡΡΠ΅ Π½Π΅ Π·Π°Π΄ΡΠΌΡΠ²Π°Π»ΠΈΡΡ ΠΎ ΠΏΠΎΠΊΡΠΏΠΊΠ΅ Π΄ΠΎΠΌΠ°ΡΠ½Π΅Π³ΠΎ ΠΏΠ»Π°Π½Π° ΡΠ΅ΡΠ΅Π· ΠΠ½ΡΠ΅ΡΠ½Π΅Ρ, Π²Ρ Π±ΡΠ΄Π΅ΡΠ΅ ΡΠ°Π΄Ρ ΡΠ·Π½Π°ΡΡ, ΡΡΠΎ Ρ Π²Π°Ρ Π΅ΡΡΡ ΠΌΠ½ΠΎΠΆΠ΅ΡΡΠ²ΠΎ ΠΏΡΠ΅ΠΈΠΌΡΡΠ΅ΡΡΠ².
Π‘Π±ΠΎΡΠ½ΡΠ΅ Π΄ΠΎΠΌΠ° ΠΏΡΠ΅Π΄Π»Π°Π³Π°ΡΡ ΡΡΠ²ΡΡΠ²ΠΎ Π±Π΅Π·ΠΎΠΏΠ°ΡΠ½ΠΎΡΡΠΈ ΠΊΠ°ΠΊ Π½ΠΎΠ²ΠΈΡΠΊΠ°ΠΌ, ΡΠ°ΠΊ ΠΈ Π½ΠΎΠ²ΠΈΡΠΊΠ°ΠΌ. ΠΠΎ ΠΊΠΎΠ³Π΄Π° ΠΎΠ½ΠΈ ΠΏΠ΅ΡΠ΅Π΅Π·ΠΆΠ°ΡΡ, ΠΎΠ½ΠΈ Π½Π΅ ΡΠ°ΠΊ ΡΠ°Π΄Ρ Π²ΠΈΠ΄Π΅ΡΡ, ΠΊΠ°ΠΊ ΠΈΠ½Π΄ΠΈΠ²ΠΈΠ΄ΡΠ°Π»ΡΠ½ΡΠΉ Π²ΡΠ±ΠΎΡ Π΄ΠΈΠ·Π°ΠΉΠ½Π°, ΡΠ΄Π΅Π»Π°Π½Π½ΡΠΉ Π½Π° Π±ΡΠΌΠ°Π³Π΅, ΡΠ°Π·Π²Π΅ΡΠ½ΡΠ»ΡΡ Π² ΡΠ΅Π°Π»ΡΠ½ΠΎΠΉ ΠΆΠΈΠ·Π½ΠΈ.
Π‘ ΠΎΠ½Π»Π°ΠΉΠ½-ΠΏΠ»Π°Π½Π°ΠΌΠΈ Π΄ΠΎΠΌΠΎΠ² Ρ Π²Π°Ρ Π΅ΡΡΡ ΡΠ°Π½Ρ ΡΠ΄Π΅Π»Π°ΡΡ ΡΡΠΎ Ρ ΡΠ°ΠΌΠΎΠ³ΠΎ Π½Π°ΡΠ°Π»Π°.Π’Π°ΠΊ ΠΏΠΎΡΠ΅ΠΌΡ ΠΆΠ΅ Π²Π°ΠΌ ΡΡΠΎΠΈΡ ΠΏΠΎΠ΄ΡΠΌΠ°ΡΡ ΠΎ ΠΏΠΎΠΊΡΠΏΠΊΠ΅ Π΄ΠΎΠΌΠ° Π² ΠΠ½ΡΠ΅ΡΠ½Π΅ΡΠ΅?
1) ΠΡΠΎ ΡΠ΅Π½ΡΠ°Π±Π΅Π»ΡΠ½ΡΠΉ ΡΠΏΠΎΡΠΎΠ± ΡΠ°Π·ΡΠ°Π±ΠΎΡΠ°ΡΡ ΠΏΠ»Π°Π½ ΡΡΠ°ΠΆΠ°
ΠΠ΄Π½Π° ΠΈΠ· Π½Π°ΠΈΠ±ΠΎΠ»Π΅Π΅ Π·Π½Π°ΡΠΈΠΌΡΡ ΠΈ ΠΏΠΎΡΡΠΎΡΠ½Π½ΡΡ ΠΏΡΠΈΡΠΈΠ½, ΠΏΠΎ ΠΊΠΎΡΠΎΡΡΠΌ ΡΡΡΡΡΠΈ Π΄ΠΎΠΌΠΎΠ²Π»Π°Π΄Π΅Π»ΡΡΠ΅Π² ΠΈΡΡΡ ΠΏΠ»Π°Π½Ρ Monster House, — ΡΡΠΎ ΠΈΡ ΡΡΠΎΠΈΠΌΠΎΡΡΡ.
ΠΡ Π·Π½Π°Π΅ΡΠ΅, ΡΡΠΎ Ρ ΠΎΡΠΈΡΠ΅ Π·Π°Π½ΠΈΠΌΠ°ΡΡΡΡ Π΄ΠΈΠ·Π°ΠΉΠ½ΠΎΠΌ Π΄ΠΎΠΌΠ° ΡΠ²ΠΎΠ΅ΠΉ ΠΌΠ΅ΡΡΡ, Π½ΠΎ Π½Π°ΡΠ°ΡΡ ΠΏΡΠΎΡΠ΅ΡΡ Ρ Π½ΡΠ»Ρ Ρ Π°ΡΡ ΠΈΡΠ΅ΠΊΡΠΎΡΠΎΠΌ ΠΈΠ»ΠΈ Π΄ΠΈΠ·Π°ΠΉΠ½Π΅ΡΠΎΠΌ ΠΊΠ°ΠΆΠ΅ΡΡΡ ΡΠ΅ΡΡΠ΅Π·Π½ΡΠΌ ΠΎΠ±ΡΠ·Π°ΡΠ΅Π»ΡΡΡΠ²ΠΎΠΌ, ΠΎΡΠΎΠ±Π΅Π½Π½ΠΎ ΠΊΠΎΠ³Π΄Π° ΡΠ΅ΡΡ ΠΈΠ΄Π΅Ρ ΠΎ Π²Π°ΡΠ΅ΠΌ Π±ΡΠ΄ΠΆΠ΅ΡΠ΅.
ΠΠΎ ΡΡΠΎ, Π΅ΡΠ»ΠΈ Π±Ρ Π²Ρ ΠΌΠΎΠ³Π»ΠΈ Π½Π°ΡΠ°ΡΡ Ρ ΠΊΠΎΠ½ΠΊΡΠ΅ΡΠ½ΠΎΠ³ΠΎ ΠΏΠ»Π°Π½Π° ΡΡΠ°ΠΆΠ°, Π²ΡΠ±ΡΠ°Π½Π½ΠΎΠ³ΠΎ Π²Π°ΠΌΠΈ, Π° Π·Π°ΡΠ΅ΠΌ ΡΠ°Π±ΠΎΡΠ°ΡΡ Ρ Π°ΡΡ ΠΈΡΠ΅ΠΊΡΠΎΡΠΎΠΌ ΠΈΠ»ΠΈ Π΄ΠΈΠ·Π°ΠΉΠ½Π΅ΡΠΎΠΌ, ΠΊΠΎΡΠΎΡΡΠΉ ΠΏΠΎΠΌΠΎΠΆΠ΅Ρ Π²Π°ΠΌ Π² ΡΡΠΎΠΌ ΠΏΡΠΎΡΠ΅ΡΡΠ΅?
ΠΠΎΡ Ρ ΡΠ΅Π³ΠΎ Π²Ρ Π½Π°ΡΠ½Π΅ΡΠ΅.
2) ΠΠ°ΠΌ ΠΎΡΡΠ°Π΅ΡΡΡ Π²ΡΠ±ΠΈΡΠ°ΡΡ — Π±Π΅Π· ΠΊΠΎΠΌΠΏΡΠΎΠΌΠΈΡΡΠΎΠ²
ΠΠΎΠ³Π΄Π° Π²Ρ ΠΏΠΎΠΊΡΠΏΠ°Π΅ΡΠ΅ ΠΏΠ»Π°Π½ Π΄ΠΎΠΌΠ° Π² ΠΠ½ΡΠ΅ΡΠ½Π΅ΡΠ΅, Ρ Π²Π°Ρ Π΅ΡΡΡ ΠΎΠ±ΡΠΈΡΠ½ΡΠ΅ ΠΈ ΠΏΠΎΠ΄ΡΠΎΠ±Π½ΡΠ΅ ΠΏΠ°ΡΠ°ΠΌΠ΅ΡΡΡ ΠΏΠΎΠΈΡΠΊΠ°, ΠΊΠΎΡΠΎΡΡΠ΅ ΠΏΠΎΠΌΠΎΠ³ΡΡ Π²Π°ΠΌ ΡΡΠ·ΠΈΡΡ Π²ΡΠ±ΠΎΡ Π΄ΠΈΠ·Π°ΠΉΠ½Π°.
ΠΠΎΠ±Π°Π²ΡΡΠ΅ ΠΊ ΡΡΠΎΠΌΡ ΡΠΎΡ ΡΠ°ΠΊΡ, ΡΡΠΎ Π²Ρ ΠΌΠΎΠΆΠ΅ΡΠ΅ Π½Π°ΡΡΡΠ°ΠΈΠ²Π°ΡΡ ΠΏΠ»Π°Π½Ρ Ρ ΠΏΠΎΠΌΠΎΡΡΡ Π½Π°ΡΠ΅Π³ΠΎ ΠΈΠ½ΡΠ΅Π»Π»Π΅ΠΊΡΡΠ°Π»ΡΠ½ΠΎΠ³ΠΎ 3D-ΠΌΠΎΠ΄Π΅Π»ΠΈΡΠΎΠ²Π°Π½ΠΈΡ ΠΈ Π΄ΠΎΠΏΠΎΠ»Π½ΠΈΡΠ΅Π»ΡΠ½ΡΡ Π½Π°Π΄ΡΡΡΠΎΠ΅ΠΊ, ΠΈ Ρ Π²Π°Ρ Π΅ΡΡΡ ΡΠ°Π½Ρ ΠΏΠΎΡΡΡΠΎΠΈΡΡ ΠΏΠΎ-Π½Π°ΡΡΠΎΡΡΠ΅ΠΌΡ ΠΈΠ½Π΄ΠΈΠ²ΠΈΠ΄ΡΠ°Π»ΡΠ½ΡΠΉ Π΄ΠΎΠΌ — Ρ ΠΎΠ³ΡΠ°Π½ΠΈΡΠ΅Π½Π½ΡΠΌ Π±ΡΠ΄ΠΆΠ΅ΡΠΎΠΌ!
3) ΠΡ Π½Π΅ ΡΠΎΡΠΎΠΏΠΈΡΠ΅ΡΡ, ΠΏΠΎΡΡΠΎΠΌΡ ΠΌΠΎΠΆΠ΅ΡΠ΅ ΡΡΠ°Π·Ρ Π½Π°ΡΠ°ΡΡ ΡΡΡΠΎΠΈΡΠ΅Π»ΡΡΡΠ²ΠΎ
Π‘ ΠΏΠ»Π°Π½Π°ΠΌΠΈ Π΄ΠΎΠΌΠ°-ΠΌΠΎΠ½ΡΡΡΠ° Π²Ρ ΠΌΠΎΠΆΠ΅ΡΠ΅ ΡΠΎΡΡΠ΅Π΄ΠΎΡΠΎΡΠΈΡΡΡΡ Π½Π° ΡΡΠ°ΠΏΠ΅ ΠΏΡΠΎΠ΅ΠΊΡΠΈΡΠΎΠ²Π°Π½ΠΈΡ Π΄ΠΎΠΌΠ° Π²Π°ΡΠ΅ΠΉ ΠΌΠ΅ΡΡΡ.ΠΡ Π½Π΅ ΠΆΠ΄Π΅ΡΠ΅, ΡΡΠΎ Π°ΡΡ ΠΈΡΠ΅ΠΊΡΠΎΡ ΡΠΎΡΡΠ°Π²ΠΈΡ Π²Π°ΡΠΈ ΠΏΠ»Π°Π½Ρ, ΠΈ Π²Ρ Π½Π΅ ΡΡΠ°ΡΠΈΡΠ΅ Π²ΡΠ΅ΠΌΡ Π½Π° ΡΠΎ, ΡΡΠΎΠ±Ρ Π΄ΠΎΡΠ°Π±Π°ΡΡΠ²Π°ΡΡ, ΠΊΠΎΠ½ΡΡΠ»ΡΡΠΈΡΠΎΠ²Π°ΡΡ ΠΈ Π²Π½ΠΎΡΠΈΡΡ ΠΈΠ·ΠΌΠ΅Π½Π΅Π½ΠΈΡ.
ΠΠΌΠ΅ΡΡΠΎ ΡΡΠΎΠ³ΠΎ Π²Ρ ΡΠ°ΠΌΠΈ Π²ΡΠ±ΠΈΡΠ°Π΅ΡΠ΅ ΡΠ΅ ΡΡΠ½ΠΊΡΠΈΠΈ, ΠΊΠΎΡΠΎΡΡΠ΅ Π²Π°ΠΌ Π½ΡΠΆΠ½Ρ. ΠΡ ΠΌΠΎΠΆΠ΅ΡΠ΅ Π½Π΅ ΡΠΎΡΠΎΠΏΠΈΡΡΡΡ, Π²ΡΠ±ΠΈΡΠ°Ρ ΠΏΠ»Π°Π½Ρ, Π° Π·Π°ΡΠ΅ΠΌ ΠΏΡΠΎΠΊΠΎΠ½ΡΡΠ»ΡΡΠΈΡΠΎΠ²Π°ΡΡΡΡ Ρ Π½Π°ΡΠΈΠΌΠΈ Π°ΡΡ ΠΈΡΠ΅ΠΊΡΠΎΡΠ°ΠΌΠΈ ΠΈ ΠΊΠΎΠΌΠ°Π½Π΄Π°ΠΌΠΈ Π΄ΠΈΠ·Π°ΠΉΠ½Π΅ΡΠΎΠ² ΠΏΠΎ Π²ΠΎΠΏΡΠΎΡΠ°ΠΌ Π±Π΅Π·ΠΎΠΏΠ°ΡΠ½ΠΎΡΡΠΈ ΠΈ ΠΆΠΈΠ·Π½Π΅ΡΠΏΠΎΡΠΎΠ±Π½ΠΎΡΡΠΈ ΠΏΠ»Π°Π½Π° Π²Π°ΡΠ΅Π³ΠΎ Π΄ΠΎΠΌΠ° Ρ ΡΡΠ΅ΡΠΎΠΌ ΡΡΠ°ΡΡΡΠ° Π²Π°ΡΠ΅Π³ΠΎ Π·Π΅ΠΌΠ΅Π»ΡΠ½ΠΎΠ³ΠΎ ΡΡΠ°ΡΡΠΊΠ°.
ΠΠ°ΡΠ΅ΠΌ ΠΌΠΎΠΆΠ½ΠΎ ΠΏΠ΅ΡΠ΅Ρ ΠΎΠ΄ΠΈΡΡ ΠΊ ΡΡΠ°ΠΏΡ ΡΡΡΠΎΠΈΡΠ΅Π»ΡΡΡΠ²Π°. ΠΡ Π½ΠΈΠΊΠΎΠ³Π΄Π° Π½Π΅ ΡΠΈΡΠΊΡΠ΅ΡΠ΅ ΠΏΡΠ΅ΡΠ²Π°ΡΡ Π³ΡΠ°ΡΠΈΠΊ ΡΡΡΠΎΠΈΡΠ΅Π»ΡΡΡΠ²Π° ΠΈΠ·-Π·Π° Π½Π΅ΠΎΠΆΠΈΠ΄Π°Π½Π½ΡΡ ΠΈΠ»ΠΈ ΠΏΠΎΡΡΠΎΡΠ½Π½ΡΡ ΠΈΠ·ΠΌΠ΅Π½Π΅Π½ΠΈΠΉ.
4) ΠΡ ΠΌΠΎΠΆΠ΅ΡΠ΅ ΠΈΡΠΏΠΎΠ»ΡΠ·ΠΎΠ²Π°ΡΡ ΡΠ²ΠΎΠΉ ΠΏΠΎΠΈΡΠΊ ΠΊΠ°ΠΊ ΠΎΡΠΏΡΠ°Π²Π½ΡΡ ΡΠΎΡΠΊΡ
ΠΠ°ΠΆΠ΅ Π΅ΡΠ»ΠΈ Π²Ρ ΠΏΠ»Π°Π½ΠΈΡΡΠ΅ΡΠ΅ ΡΠ°Π±ΠΎΡΠ°ΡΡ Ρ Π°ΡΡ ΠΈΡΠ΅ΠΊΡΠΎΡΠΎΠΌ, ΠΎΠ½Π»Π°ΠΉΠ½-ΠΏΠ»Π°Π½Ρ Π΄ΠΎΠΌΠ° ΡΡΠ°Π½ΡΡ ΠΎΡΠΏΡΠ°Π²Π½ΠΎΠΉ ΡΠΎΡΠΊΠΎΠΉ Π΄Π»Ρ Π΄ΠΈΠ·Π°ΠΉΠ½Π° Π΄ΠΎΠΌΠ° Π²Π°ΡΠ΅ΠΉ ΠΌΠ΅ΡΡΡ.
ΠΠΎΠΆΠ½ΠΎ ΠΏΡΠ΅Π΄ΡΡΠ°Π²ΠΈΡΡ ΡΠ΅Π±Π΅ Π½Π΅ΡΠΊΠΎΠ»ΡΠΊΠΎ ΡΡΠ½ΠΊΡΠΈΠΉ, ΠΎ ΠΊΠΎΡΠΎΡΡΡ Π²Ρ Π²ΡΠ΅Π³Π΄Π° ΠΌΠ΅ΡΡΠ°Π»ΠΈ, Π½ΠΎ ΡΡΠΎ ΠΌΠΎΠΆΠ΅Ρ Π±ΡΡΡ Π½Π΅Π²Π΅ΡΠΎΡΡΠ½ΠΎ ΠΎΡΠ΅Π»ΠΎΠΌΠ»ΡΡΡΠΈΠΌ. ΠΠ°Ρ ΠΏΡΡΡ ΠΊ ΠΏΡΠΎΠ΅ΠΊΡΠΈΡΠΎΠ²Π°Π½ΠΈΡ ΡΠΎΠ±ΡΡΠ²Π΅Π½Π½ΠΎΠ³ΠΎ Π΄ΠΎΠΌΠ° ΠΌΠΎΠΆΠ΅Ρ Π·Π°Π½ΡΡΡ ΠΏΠ°ΡΡ ΠΌΠ΅ΡΡΡΠ΅Π², Π½ΠΎ Π»ΡΡΡΠ΅ Π½Π°ΡΠ°ΡΡ Ρ ΡΠ΅ΡΠΊΠΈΡ ΠΏΠ»Π°Π½ΠΎΠ².
ΠΠ°Π»ΠΈΡΠΈΠ΅ Π±ΠΈΠ±Π»ΠΈΠΎΡΠ΅ΠΊΠΈ ΠΏΠ»Π°Π½ΠΎΠ² Π΄ΠΎΠΌΠΎΠ² Π½Π° Π²ΡΠ±ΠΎΡ ΠΌΠΎΠΆΠ΅Ρ ΠΏΠΎΠΌΠΎΡΡ Π²Π°ΠΌ ΠΈΠΌΠ΅ΡΡ ΡΠ΅ΡΠΊΡΡ ΠΎΡΠΏΡΠ°Π²Π½ΡΡ ΡΠΎΡΠΊΡ.ΠΡΡΡΠ΄Π° Π²Ρ ΠΌΠΎΠΆΠ΅ΡΠ΅ ΠΏΠΎΠ½ΡΡΡ, ΠΊΠ°ΠΊΠΈΠ΅ ΡΡΠ½ΠΊΡΠΈΠΈ ΠΈ Π½ΠΎΠΌΠ΅ΡΠ° Π½Π΅ ΠΏΠΎΠ΄Π»Π΅ΠΆΠ°Ρ ΠΎΠ±ΡΡΠΆΠ΄Π΅Π½ΠΈΡ, Π° ΠΊΠ°ΠΊΠΈΠ΅ — Β«Ρ ΠΎΡΠΎΡΠΎ ΠΈΠΌΠ΅ΡΡΒ».
ΠΡΠΏΠΈΡΠ΅ ΠΏΠ»Π°Π½Ρ Π΄ΠΎΠΌΠ° ΠΎΠ½Π»Π°ΠΉΠ½ ΡΠ΅Π³ΠΎΠ΄Π½Ρ!
Π£ΡΡΠΈΡΠ΅ ΡΠ»Π΅Π΄ΡΡΡΠ΅Π΅: ΠΊΠΎΠ³Π΄Π° Π²Ρ ΠΏΠΎΠΊΡΠΏΠ°Π΅ΡΠ΅ ΠΏΠ»Π°Π½Ρ Π΄ΠΎΠΌΠ° Π² ΠΠ½ΡΠ΅ΡΠ½Π΅ΡΠ΅, ΡΠ°ΠΌΠΎΠ΅ Π²Π°ΠΆΠ½ΠΎΠ΅ ΠΏΡΠ΅ΠΈΠΌΡΡΠ΅ΡΡΠ²ΠΎ, ΠΊΠΎΡΠΎΡΠΎΠ΅ Π²Ρ ΠΏΠΎΠ»ΡΡΠ°Π΅ΡΠ΅, — ΡΡΠΎ ΡΠΏΡΠΎΡΠ΅Π½ΠΈΠ΅.
ΠΡΠΎΡΠΌΠΎΡΡ ΡΡΠ΄Π° ΠΏΠ»Π°Π½ΠΎΠ² Π΄ΠΎΠΌΠ° Π΄Π°Π΅Ρ Π²Π°ΠΌ Π²ΠΎΠ·ΠΌΠΎΠΆΠ½ΠΎΡΡΡ Π²ΡΠ±ΡΠ°ΡΡ ΠΏΡΠ°Π²ΠΈΠ»ΡΠ½ΡΠΉ Π΄ΠΈΠ·Π°ΠΉΠ½, ΡΠΎΠΎΡΠ²Π΅ΡΡΡΠ²ΡΡΡΠΈΠΉ ΠΏΠΎΡΡΠ΅Π±Π½ΠΎΡΡΡΠΌ Π²Π°ΡΠ΅ΠΉ ΡΠ΅ΠΌΡΠΈ ΠΈ Π²Π°ΡΠΈΠΌ Π±ΡΠ΄ΡΡΠΈΠΌ ΡΠ΅Π»ΡΠΌ. ΠΡΠΎΡΠ΅ΡΡ ΡΡΡΠΎΠΈΡΠ΅Π»ΡΡΡΠ²Π° ΠΈ ΠΏΡΠΎΠ΅ΠΊΡΠΈΡΠΎΠ²Π°Π½ΠΈΡ ΡΠ°ΠΌ ΠΏΠΎ ΡΠ΅Π±Π΅ Π΄ΠΎΡΡΠ°ΡΠΎΡΠ½ΠΎ Π½Π°ΠΏΡΡΠΆΠ΅Π½Π½ΡΠΉ, ΠΏΠΎΡΡΠΎΠΌΡ Π»ΡΡΡΠ΅ Π²ΡΠ΅Π³ΠΎ Π²ΡΠ±ΠΈΡΠ°ΡΡ Π»Π΅Π³ΠΊΠΎΡΡΡ ΡΠ°ΠΌ, Π³Π΄Π΅ ΡΡΠΎ Π²ΠΎΠ·ΠΌΠΎΠΆΠ½ΠΎ.ΠΠΎΡ Π½Π΅ΡΠΊΠΎΠ»ΡΠΊΠΎ ΠΈΠ· Π½Π°ΡΠΈΡ ΠΏΠΎΠΏΡΠ»ΡΡΠ½ΡΡ ΡΡΠΈΠ»Π΅ΠΉ ΠΏΠ»Π°Π½ΠΈΡΠΎΠ²ΠΊΠΈ Π΄ΠΎΠΌΠ°:
ΠΠ°Π»ΠΈΡΠΈΠ΅ Π±ΠΈΠ±Π»ΠΈΠΎΡΠ΅ΠΊΠΈ ΠΏΠ»Π°Π½ΠΎΠ² Π΄ΠΎΠΌΠΎΠ² Π½Π° Π²ΡΠ±ΠΎΡ ΠΌΠΎΠΆΠ΅Ρ ΠΏΠΎΠΌΠΎΡΡ Π²Π°ΠΌ ΠΈΠΌΠ΅ΡΡ ΡΠ΅ΡΠΊΡΡ ΠΎΡΠΏΡΠ°Π²Π½ΡΡ ΡΠΎΡΠΊΡ. ΠΡΡΡΠ΄Π° Π²Ρ ΠΌΠΎΠΆΠ΅ΡΠ΅ ΠΏΠΎΠ½ΡΡΡ, ΠΊΠ°ΠΊΠΈΠ΅ ΡΡΠ½ΠΊΡΠΈΠΈ ΠΈ Π½ΠΎΠΌΠ΅ΡΠ° Π½Π΅ ΠΏΠΎΠ΄Π»Π΅ΠΆΠ°Ρ ΠΎΠ±ΡΡΠΆΠ΄Π΅Π½ΠΈΡ, Π° ΠΊΠ°ΠΊΠΈΠ΅ — Β«Ρ ΠΎΡΠΎΡΠΎ ΠΈΠΌΠ΅ΡΡΒ».
ΠΠ»Π°Π½Ρ Π΄ΠΎΠΌΠΎΠ² — ΠΡΠΎΠ΅ΠΊΡΡ Π΄ΠΎΠΌΠΎΠ² — Π§Π΅ΡΡΠ΅ΠΆΠΈ
ΠΠΎΠΈΡΠΊ Π΄ΠΎΠΌΠ° ΡΠ²ΠΎΠ΅ΠΉ ΠΌΠ΅ΡΡΡ ΠΌΠΎΠΆΠ΅Ρ ΠΏΠΎΠΊΠ°Π·Π°ΡΡΡΡ ΡΠ»ΠΎΠΆΠ½ΡΠΌ, ΠΏΠΎΡΠΊΠΎΠ»ΡΠΊΡ Π²Ρ ΠΏΡΡΠ°Π΅ΡΠ΅ΡΡ ΠΎΡΠ»ΠΈΡΠΈΡΡ Π΅Π³ΠΎ ΠΎΡ ΡΡΡΡΡ ΠΏΠ»Π°Π½ΠΎΠ² ΡΡΠ°ΠΆΠ΅ΠΉ. ΠΡ ΠΎΠ±Π»Π΅Π³ΡΠ°Π΅ΠΌ Π²Π°ΠΌ Π·Π°Π΄Π°ΡΡ.ΠΠ°Ρ Π²Π΅Π±-ΡΠ°ΠΉΡ ΠΈ ΠΏΡΠ±Π»ΠΈΠΊΠ°ΡΠΈΠΈ, ΡΠ²Π»ΡΡΡΠΈΠ΅ΡΡ ΠΊΡΡΠΏΠ½Π΅ΠΉΡΠΈΠΌ ΠΈΠ·Π΄Π°ΡΠ΅Π»Π΅ΠΌ ΠΊΠ½ΠΈΠ³ ΠΏΠΎ ΠΏΠ»Π°Π½ΠΈΡΠΎΠ²ΠΊΠ΅ Π΄ΠΎΠΌΠΎΠ², ΠΏΠΎΡΠ²ΡΡΠ΅Π½Ρ ΡΠ°ΠΌΡΠΌ ΠΏΡΠΎΠ΄Π°Π²Π°Π΅ΠΌΡΠΌ ΠΏΡΠΎΠ΅ΠΊΡΠ°ΠΌ ΠΎΡ Π²Π΅Π΄ΡΡΠΈΡ Π°ΡΡ ΠΈΡΠ΅ΠΊΡΠΎΡΠΎΠ² ΠΈ Π΄ΠΈΠ·Π°ΠΉΠ½Π΅ΡΠΎΠ² Π‘Π΅Π²Π΅ΡΠ½ΠΎΠΉ ΠΠΌΠ΅ΡΠΈΠΊΠΈ. ΠΡ ΠΌΠΎΠΆΠ΅ΡΠ΅ Π½Π°ΠΉΡΠΈ Π½Π°ΡΠΈ ΠΊΠ½ΠΈΠ³ΠΈ Π² ΠΊΡΡΠΏΠ½ΡΡ ΠΌΠ°Π³Π°Π·ΠΈΠ½Π°Ρ ΠΈ Π² ΠΠ½ΡΠ΅ΡΠ½Π΅ΡΠ΅.
House Plan and More ΠΏΡΠ΅Π΄Π»Π°Π³Π°Π΅Ρ ΡΡΠ½ΠΊΡΠΈΠΈ ΠΏΠΎΠΈΡΠΊΠ°, ΠΊΠΎΡΠΎΡΡΠ΅ ΠΏΠΎΠΌΠΎΠ³ΡΡ Π²Π°ΠΌ ΡΡΠ·ΠΈΡΡ Π²ΡΠ±ΠΎΡ Π΄ΠΎ ΡΠ΅Ρ ΠΏΠΎΡ, ΠΏΠΎΠΊΠ° Π²Ρ Π½Π΅ Π½Π°ΠΉΠ΄Π΅ΡΠ΅ Π΄ΠΎΠΌ, ΠΊΠΎΡΠΎΡΡΠΉ ΡΠΎΠΎΡΠ²Π΅ΡΡΡΠ²ΡΠ΅Ρ Π²Π°ΡΠ΅ΠΌΡ ΡΠ½ΠΈΠΊΠ°Π»ΡΠ½ΠΎΠΌΡ ΠΎΠ±ΡΠ°Π·Ρ ΠΆΠΈΠ·Π½ΠΈ. ΠΠ½ΡΡΡΡΠΌΠ΅Π½Ρ ΡΠ°ΡΡΠΈΡΠ΅Π½Π½ΠΎΠ³ΠΎ ΠΏΠΎΠΈΡΠΊΠ° Β«ΠΠ»Π°Π½Ρ Π΄ΠΎΠΌΠΎΠ² ΠΈ ΠΌΠ½ΠΎΠ³ΠΎΠ΅ Π΄ΡΡΠ³ΠΎΠ΅Β» ΠΏΠΎΠΌΠΎΠΆΠ΅Ρ Π²Π°ΠΌ ΡΡΠ·ΠΈΡΡ Π²ΡΠ±ΠΎΡ Π½Π° ΠΎΡΠ½ΠΎΠ²Π΅ Π²ΡΠ±ΡΠ°Π½Π½ΡΡ Π²Π°ΠΌΠΈ ΠΊΡΠΈΡΠ΅ΡΠΈΠ΅Π².ΠΡ ΠΌΠΎΠΆΠ΅ΡΠ΅ ΡΡΠ·ΠΈΡΡ ΠΎΠ±Π»Π°ΡΡΡ ΠΏΠΎΠΈΡΠΊΠ° Π΄ΠΎ ΠΏΡΠΎΠ΅ΠΊΡΠΎΠ² Π΄ΠΎΠΌΠΎΠ² Π² ΠΎΠΏΡΠ΅Π΄Π΅Π»Π΅Π½Π½ΠΎΠΌ Π°ΡΡ ΠΈΡΠ΅ΠΊΡΡΡΠ½ΠΎΠΌ ΡΡΠΈΠ»Π΅ ΠΈΠ»ΠΈ Ρ ΠΎΠΏΡΠ΅Π΄Π΅Π»Π΅Π½Π½ΠΎΠΉ ΠΎΡΠΎΠ±Π΅Π½Π½ΠΎΡΡΡΡ, Π½Π°ΠΏΡΠΈΠΌΠ΅Ρ Π»Π΅ΡΠ½ΡΡ ΠΊΡΡ Π½Ρ. ΠΠ»ΠΈ ΠΏΠΎΠ»ΡΡΠΈΡΠ΅ ΠΎΡΡΠ΅Ρ ΠΎ ΡΡΠΎΠΈΠΌΠΎΡΡΠΈ ΡΡΡΠΎΠΈΡΠ΅Π»ΡΡΡΠ²Π°, ΡΡΠΎΠ±Ρ ΠΎΠΏΡΠ΅Π΄Π΅Π»ΠΈΡΡ ΠΎΡΠΈΠ΅Π½ΡΠΈΡΠΎΠ²ΠΎΡΠ½ΡΡ ΡΡΠΎΠΈΠΌΠΎΡΡΡ ΡΡΡΠΎΠΈΡΠ΅Π»ΡΡΡΠ²Π° ΡΠ°Π·Π»ΠΈΡΠ½ΡΡ Π΄ΠΎΠΌΠΎΠ² Π½Π° ΠΎΡΠ½ΠΎΠ²Π΅ Π²Π°ΡΠ΅Π³ΠΎ ΠΏΠΎΡΡΠΎΠ²ΠΎΠ³ΠΎ ΠΈΠ½Π΄Π΅ΠΊΡΠ°. ΠΠ°ΡΠ΅ΠΌ Π²ΠΎΡΠΏΠΎΠ»ΡΠ·ΡΠΉΡΠ΅ΡΡ Π½Π°ΡΠΈΠΌ Π²Π΅Π±-ΡΠ°ΠΉΡΠΎΠΌ, ΡΡΠΎΠ±Ρ Π½Π°ΠΉΡΠΈ ΠΊΠ²Π°Π»ΠΈΡΠΈΡΠΈΡΠΎΠ²Π°Π½Π½ΠΎΠ³ΠΎ ΡΡΡΠΎΠΈΡΠ΅Π»Ρ Π² Π²Π°ΡΠ΅ΠΌ ΡΠ°ΠΉΠΎΠ½Π΅.
Π©Π΅Π»ΠΊΠ½ΠΈΡΠ΅ «Π Π΅ΡΡΡΡΡ» Π² Π²Π΅ΡΡ Π½Π΅ΠΉ ΡΠ°ΡΡΠΈ Π΄ΠΎΠΌΠ°ΡΠ½Π΅ΠΉ ΡΡΡΠ°Π½ΠΈΡΡ ΠΈ ΡΠ΅Π»ΠΊΠ½ΠΈΡΠ΅ «ΠΠ°ΠΉΡΠΈ-A-Builder Π² Π²Π°ΡΠ΅ΠΌ ΡΠ°ΠΉΠΎΠ½Π΅». ΠΠ°ΡΠ΅ΠΌ Π²ΡΠ±Π΅ΡΠΈΡΠ΅ ΡΡΠ°Ρ, Π² ΠΊΠΎΡΠΎΡΠΎΠΌ Π²Ρ ΡΠΎΠ±ΠΈΡΠ°Π΅ΡΠ΅ΡΡ ΡΡΡΠΎΠΈΡΡ, Π΄Π»Ρ ΠΏΠΎΠ»ΡΡΠ΅Π½ΠΈΡ ΡΠΏΠΈΡΠΊΠ° ΠΊΠ²Π°Π»ΠΈΡΠΈΡΠΈΡΠΎΠ²Π°Π½Π½ΡΡ ΡΡΡΠΎΠΈΡΠ΅Π»Π΅ΠΉ.ΠΠΎΡΠ»Π΅ ΡΠΎΠ³ΠΎ, ΠΊΠ°ΠΊ Π²Ρ Π²ΡΠ±ΡΠ°Π»ΠΈ Π΄ΠΈΠ·Π°ΠΉΠ½ ΡΠ²ΠΎΠ΅Π³ΠΎ Π΄ΠΎΠΌΠ°, ΠΌΡ ΠΏΡΠΎΠ΄Π°Π΅ΠΌ ΡΠ΅ΡΡΠ΅ΠΆΠΈ ΡΡΠΎΠ³ΠΎ Π΄ΠΎΠΌΠ° ΠΊΠ°ΠΊ Π² ΠΏΠ΅ΡΠ°ΡΠ½ΠΎΠΌ, ΡΠ°ΠΊ ΠΈ Π² ΡΠΈΡΡΠΎΠ²ΠΎΠΌ ΡΠΎΡΠΌΠ°ΡΠ°Ρ .
ΠΠ°ΠΊΠΎΠΉ ΡΠΎΡΠΌΠ°Ρ Π»ΡΡΡΠ΅ Π²ΡΠ΅Π³ΠΎ Π²Π°ΠΌ ΠΏΠΎΠ΄Ρ ΠΎΠ΄ΠΈΡ, Π·Π°Π²ΠΈΡΠΈΡ ΠΎΡ:
- ΡΠΊΠΎΠ»ΡΠΊΠΎ ΠΈΠ·ΠΌΠ΅Π½Π΅Π½ΠΈΠΉ Π²Ρ Ρ ΠΎΡΠΈΡΠ΅ Π²Π½Π΅ΡΡΠΈ Π² Π΄Π°Π½Π½ΡΠΉ ΠΏΠ»Π°Π½
- Π½Π°ΡΠΊΠΎΠ»ΡΠΊΠΎ Π±ΡΡΡΡΠΎ Π²Π°ΠΌ ΠΏΠΎΠ½Π°Π΄ΠΎΠ±ΡΡΡΡ ΠΏΠ»Π°Π½Ρ
- ΡΠΎΡΠΌΠ°Ρ, ΠΏΡΠ΅Π΄ΠΏΠΎΡΠΈΡΠ°Π΅ΠΌΡΠΉ Π²Π°ΡΠΈΠΌ ΡΡΡΠΎΠΈΡΠ΅Π»Π΅ΠΌ ΠΈ ΠΌΠ΅ΡΡΠ½ΡΠΌ ΡΡΡΠΎΠΈΡΠ΅Π»ΡΠ½ΡΠΌ ΠΎΡΠ΄Π΅Π»ΠΎΠΌ.
ΠΠ°ΠΏΡΠΈΠΌΠ΅Ρ, Π΅ΡΠ»ΠΈ Π²Ρ Π²ΡΠ±ΡΠ°Π»ΠΈ ΠΏΡΠ΅Π΄Π²Π°ΡΠΈΡΠ΅Π»ΡΠ½ΠΎ Π½Π°ΡΠΈΡΠΎΠ²Π°Π½Π½ΡΠΉ ΠΏΠ»Π°Π½ ΡΡΠ°ΠΆΠ°, ΠΊΠΎΡΠΎΡΡΠΉ Π½Π΅ Π½ΡΠΆΠ΄Π°Π΅ΡΡΡ Π² ΠΊΠ°ΠΊΠΈΡ -Π»ΠΈΠ±ΠΎ ΠΈΠ·ΠΌΠ΅Π½Π΅Π½ΠΈΡΡ ΠΈ ΠΌΠΎΠΆΠ΅Ρ Π±ΡΡΡ ΠΎΡΠΏΡΠ°Π²Π»Π΅Π½ Π² ΠΌΠ΅ΡΡΠ½ΡΡ ΡΡΡΠΎΠΈΡΠ΅Π»ΡΠ½ΡΡ Π°Π΄ΠΌΠΈΠ½ΠΈΡΡΡΠ°ΡΠΈΡ Π² ΠΏΠ΅ΡΠ°ΡΠ½ΠΎΠΌ ΠΈΠ»ΠΈ ΡΠΈΡΡΠΎΠ²ΠΎΠΌ ΡΠΎΡΠΌΠ°ΡΠ΅, Π²Ρ ΠΌΠΎΠΆΠ΅ΡΠ΅ Π²ΡΠ±ΡΠ°ΡΡ Π»ΡΠ±ΠΎΠΉ ΠΈΠ· Π΄ΠΎΡΡΡΠΏΠ½ΡΡ ΠΏΠ°ΠΊΠ΅ΡΠΎΠ² ΠΏΠ»Π°Π½ΠΎΠ².
ΠΠ»Ρ ΠΏΠΎΠ»ΡΡΠ΅Π½ΠΈΡ Π΄ΠΎΠΏΠΎΠ»Π½ΠΈΡΠ΅Π»ΡΠ½ΡΡ ΠΈΠ½ΡΡΡΡΠΊΡΠΈΠΉ ΡΠ΅Π»ΠΊΠ½ΠΈΡΠ΅ ΠΏΠΎ ΡΡΠΎΠΉ ΡΡΡΠ»ΠΊΠ΅: ΠΠ°ΠΊΠΎΠΉ ΠΏΠ°ΠΊΠ΅Ρ ΡΠ°ΡΠΈΡΠ½ΡΡ ΠΏΠ»Π°Π½ΠΎΠ² ΠΌΠ½Π΅ ΠΏΠΎΠ΄Ρ ΠΎΠ΄ΠΈΡ? ΠΈ ΠΎΠ·Π½Π°ΠΊΠΎΠΌΡΡΠ΅ΡΡ Ρ ΠΏΠΎΠ΄ΡΠΎΠ±Π½ΡΠΌ ΠΎΠ±ΡΡΡΠ½Π΅Π½ΠΈΠ΅ΠΌ ΡΠΎΠ³ΠΎ, ΡΡΠΎ ΡΠ»Π΅Π΄ΡΠ΅Ρ ΡΡΠΈΡΡΠ²Π°ΡΡ ΠΏΠ΅ΡΠ΅Π΄ Π²ΡΠ±ΠΎΡΠΎΠΌ ΠΊΠΎΠ½ΠΊΡΠ΅ΡΠ½ΠΎΠ³ΠΎ ΠΏΠ°ΠΊΠ΅ΡΠ° ΡΠ°ΡΠΈΡΠ½ΠΎΠ³ΠΎ ΠΏΠ»Π°Π½Π°.ΠΡΠ»ΠΈ Π²Ρ ΡΡΡΠΎΠΈΡΠ΅Π»Ρ, ΠΏΡΠΈΡΠΎΠ΅Π΄ΠΈΠ½ΡΠΉΡΠ΅ΡΡ ΠΊ Π½Π°ΡΠ΅ΠΉ ΠΏΡΠΎΠ³ΡΠ°ΠΌΠΌΠ΅ Builderβs Advantage ΠΈ ΠΏΠΎΠ»ΡΡΠ°ΠΉΡΠ΅ ΡΠΏΠ΅ΡΠΈΠ°Π»ΡΠ½ΡΠ΅ ΡΠΊΠΈΠ΄ΠΊΠΈ. ΠΠ°Ρ Π²Π΅Π±-ΡΠ°ΠΉΡ ΡΠΏΠ΅ΡΠΈΠ°Π»ΡΠ½ΠΎ ΡΠ°Π·ΡΠ°Π±ΠΎΡΠ°Π½, ΡΡΠΎΠ±Ρ ΠΏΠΎΠΌΠΎΡΡ ΡΡΡΠΎΠΈΡΠ΅Π»ΡΠΌ, ΡΠ°Π±ΠΎΡΠ°ΡΡΠΈΠΌ Ρ ΠΊΠ»ΠΈΠ΅Π½ΡΠ°ΠΌΠΈ, Π²ΡΠ±ΡΠ°ΡΡ Π΄Π»Ρ Π½ΠΈΡ ΠΏΠΎΠ΄Ρ ΠΎΠ΄ΡΡΠ΅Π΅ ΠΆΠΈΠ»ΡΠ΅.
House Supplies and More ΠΎΠ±ΡΠ΅Π΄ΠΈΠ½ΡΠ΅Ρ Π²ΡΠ΅ Π»ΡΡΡΠΈΠ΅ ΠΏΠ»Π°Π½Ρ Π² ΠΎΠ΄Π½ΠΎΠΌ ΠΌΠ΅ΡΡΠ΅, ΠΏΠΎΡΡΠΎΠΌΡ ΡΠ΅ΠΌΡΠΈ ΠΌΠΎΠ³ΡΡ Π½Π°ΠΉΡΠΈ Π΄ΠΎΠΌ ΡΠ²ΠΎΠ΅ΠΉ ΠΌΠ΅ΡΡΡ, Π° ΡΠ°ΠΊΠΆΠ΅ ΠΏΡΠ΅Π΄ΠΎΡΡΠ°Π²Π»ΡΡΡ ΡΡΡΠΎΠΈΡΠ΅Π»ΡΠΌ ΠΈΠ½ΡΡΡΡΠΌΠ΅Π½ΡΡ Π΄Π»Ρ ΡΠΊΠΎΠ½ΠΎΠΌΠΈΠΈ Π²ΡΠ΅ΠΌΠ΅Π½ΠΈ ΠΈ ΡΡΠ΅Π΄ΡΡΠ². ΠΡΠΈ ΠΏΠΎΠ΄Π΄Π΅ΡΠΆΠΊΠ΅ Design America, Inc. ΠΌΡ ΡΡΡΠ΅ΠΌΠΈΠΌΡΡ ΠΏΠΎΠΌΠΎΡΡ ΡΠ΅ΠΌΡΡΠΌ Π½Π°ΠΉΡΠΈ Π½Π΅ ΡΠΎΠ»ΡΠΊΠΎ ΠΈΠ΄Π΅Π°Π»ΡΠ½ΠΎΠ΅ ΠΆΠΈΠ»ΡΠ΅, Π½ΠΎ ΠΈ Π»ΡΡΡΠΈΠ΅ Π°ΠΊΡΠ΅ΡΡΡΠ°ΡΡ Π΄Π»Ρ ΠΈΡ ΠΎΠ±ΡΠ°Π·Π° ΠΆΠΈΠ·Π½ΠΈ ΠΈ ΠΆΠΈΠ·Π½ΠΈ.ΠΠ·Π½Π°ΠΊΠΎΠΌΡΡΠ΅ΡΡ Ρ Π½Π°ΡΠΈΠΌΠΈ ΠΏΡΠΎΠ΅ΠΊΡΠ½ΡΠΌΠΈ ΠΏΠ»Π°Π½Π°ΠΌΠΈ Π΄Π»Ρ ΡΠΎΡΠ΅Π½ ΡΠ°ΠΌΠΎΡΡΠΎΡΡΠ΅Π»ΡΠ½ΡΡ ΠΏΡΠΎΠ΅ΠΊΡΠΎΠ², Π²ΠΊΠ»ΡΡΠ°Ρ ΠΏΠ»Π°Π½Ρ Π³Π°ΡΠ°ΠΆΠ΅ΠΉ, ΠΏΠ»Π°Π½Ρ Π½Π°Π²Π΅ΡΠΎΠ², ΠΏΠ»Π°Π½Ρ ΠΏΡΠΎΠ΅ΠΊΡΠΎΠ² Π½Π° Π·Π°Π΄Π½Π΅ΠΌ Π΄Π²ΠΎΡΠ΅, Π° ΡΠ°ΠΊΠΆΠ΅ ΠΌΠ½ΠΎΠ³ΠΈΠ΅ Π΄ΡΡΠ³ΠΈΠ΅ Π·Π°ΠΌΠ΅ΡΠ°ΡΠ΅Π»ΡΠ½ΡΠ΅ ΠΏΡΠΎΠ΅ΠΊΡΡ Π΄ΠΎΠΌΠ° ΠΈ ΠΏΠ»Π°Π½Ρ Π·Π°ΠΏΠ°ΡΠΎΠ².
ΠΏΡΠΎΠ΅ΠΊΡΠΎΠ² Π΄ΠΎΠΌΠΎΠ² | ΠΠΎΠΌΠ°ΡΠ½ΠΈΠΉ Π΄ΠΈΠ·Π°ΠΉΠ½ | ΠΡΠΎΠ΅ΠΊΡΡ Π΄ΠΎΠΌΠΎΠ² ΠΎΠ½Π»Π°ΠΉΠ½
ΠΠ»Π°Π½ ΠΏΠΎΠΊΡΠΏΠΊΠΈ Π΄ΠΎΠΌΠ° Π² ΠΠ½ΡΠ΅ΡΠ½Π΅ΡΠ΅
Π Π΄ΠΈΠ·Π°ΠΉΠ½Π΅ΡΠ°Ρ Π΄ΠΎΠΌΠΎΠ²
ΠΠΎΠΊΡΠΏΠΊΠ° ΠΏΠ»Π°Π½ΠΎΠ² Π΄ΠΎΠΌΠΎΠ² Ρ The House Designers ΠΎΠ·Π½Π°ΡΠ°Π΅Ρ, ΡΡΠΎ Π²Ρ ΠΏΠΎΠΊΡΠΏΠ°Π΅ΡΠ΅ ΡΠ²ΠΎΠΈ ΠΏΠ»Π°Π½Ρ Π½Π΅ΠΏΠΎΡΡΠ΅Π΄ΡΡΠ²Π΅Π½Π½ΠΎ Ρ Π°ΡΡ ΠΈΡΠ΅ΠΊΡΠΎΡΠΎΠ² ΠΈ Π΄ΠΈΠ·Π°ΠΉΠ½Π΅ΡΠΎΠ², Π½ΠΎ Ρ The House Designers, ΠΊΠΎΡΠΎΡΡΠ΅ Π±ΡΠ΄ΡΡ Π²Π°ΡΠΈΠΌ ΡΠ²ΡΠ·ΡΡΡΠΈΠΌ Π·Π²Π΅Π½ΠΎΠΌ, Π΅ΡΠ»ΠΈ Ρ Π²Π°Ρ Π²ΠΎΠ·Π½ΠΈΠΊΠ½ΡΡ ΠΊΠ°ΠΊΠΈΠ΅-Π»ΠΈΠ±ΠΎ ΠΏΡΠΎΠ±Π»Π΅ΠΌΡ ΠΈΠ»ΠΈ ΠΎΠΏΠ°ΡΠ΅Π½ΠΈΡ.ΠΡΠΎ ΠΏΠΎΠ·Π²ΠΎΠ»ΡΠ΅Ρ Π½Π°ΠΌ ΠΎΠ±Π΅ΡΠΏΠ΅ΡΠΈΠ²Π°ΡΡ Π±Π΅Π·ΡΠΏΡΠ΅ΡΠ½ΠΎΠ΅ ΠΎΠ±ΡΠ»ΡΠΆΠΈΠ²Π°Π½ΠΈΠ΅ ΠΊΠ»ΠΈΠ΅Π½ΡΠΎΠ², Π³Π°ΡΠ°Π½ΡΠΈΡ Π»ΡΡΡΠ΅ΠΉ ΡΠ΅Π½Ρ ΠΈ ΡΠ²ΡΠ·ΡΠ²Π°ΡΡΡΡ Ρ Π°ΡΡ ΠΈΡΠ΅ΠΊΡΠΎΡΠΎΠΌ ΠΈΠ»ΠΈ Π΄ΠΈΠ·Π°ΠΉΠ½Π΅ΡΠΎΠΌ ΠΏΠΎ Π»ΡΠ±ΡΠΌ Π²ΠΎΠΏΡΠΎΡΠ°ΠΌ, ΠΊΠΎΡΠΎΡΡΠ΅ ΠΌΠΎΠ³ΡΡ Ρ Π²Π°Ρ Π²ΠΎΠ·Π½ΠΈΠΊΠ½ΡΡΡ. ΠΡ ΠΏΡΠ΅Π΄ΡΡΠ°Π²Π»ΡΠ΅ΠΌ ΡΠΎΠ»ΡΠΊΠΎ Π»ΡΡΡΠΈΡ Π°ΡΡ ΠΈΡΠ΅ΠΊΡΠΎΡΠΎΠ² ΠΈ Π΄ΠΈΠ·Π°ΠΉΠ½Π΅ΡΠΎΠ² Π² Π‘Π¨Π ΠΈ ΠΠ°Π½Π°Π΄Π΅, ΠΊΠΎΡΠΎΡΡΠ΅ ΡΠΎΠΎΡΠ²Π΅ΡΡΡΠ²ΡΡΡ Π½Π°ΡΠΈΠΌ ΡΡΡΠΎΠ³ΠΈΠΌ ΡΡΠ΅Π±ΠΎΠ²Π°Π½ΠΈΡΠΌ ΡΠΎΠΎΡΠ²Π΅ΡΡΡΠ²ΠΈΡ ΠΊΠΎΠ΄Π΅ΠΊΡΡ IRC ΠΈ ΡΡΠΈ ΠΏΠ»Π°Π½Ρ ΡΠΎΠ΄Π΅ΡΠΆΠ°Ρ ΡΡΡΡΠΊΡΡΡΠ½ΡΠ΅ Π΄Π΅ΡΠ°Π»ΠΈ, Π½Π΅ΠΎΠ±Ρ ΠΎΠ΄ΠΈΠΌΡΠ΅ Π²Π°ΡΠ΅ΠΌΡ ΡΡΡΠΎΠΈΡΠ΅Π»Ρ Π΄Π»Ρ ΡΡΡΠΎΠΈΡΠ΅Π»ΡΡΡΠ²Π° Π±Π΅Π·ΠΎΠΏΠ°ΡΠ½ΠΎΠ³ΠΎ ΠΈ ΠΏΠΎΠ»Π½ΠΎΡΠ΅Π½Π½ΠΎΠ³ΠΎ Π΄ΠΎΠΌΠ°. ΠΠ° Π½Π°ΡΠ΅ΠΌ ΡΠ°ΠΉΡΠ΅ Π²Ρ Π½Π°ΠΉΠ΄Π΅ΡΠ΅ Π²ΡΠ΅ Π°ΡΡ ΠΈΡΠ΅ΠΊΡΡΡΠ½ΡΠ΅ ΡΡΠΈΠ»ΠΈ ΠΈ ΡΠ°Π·ΠΌΠ΅ΡΡ, ΠΏΠΎΠ»ΡΡΠΈΡΠ΅ Π±Π΅ΡΠΏΠ»Π°ΡΠ½ΡΠ΅ ΠΊΠΎΠ½ΡΡΠ»ΡΡΠ°ΡΠΈΠΎΠ½Π½ΡΠ΅ ΡΡΠ»ΡΠ³ΠΈ ΠΏΠΎ ΠΌΠΎΠ΄ΠΈΡΠΈΠΊΠ°ΡΠΈΠΈ ΠΊΠ°ΠΆΠ΄ΠΎΠ³ΠΎ ΠΏΠ»Π°Π½Π° Π΄ΠΎΠΌΠ°, Π° ΡΠ°ΠΊΠΆΠ΅ Π±Π΅ΡΠΏΠ»Π°ΡΠ½ΡΡ ΠΎΡΠ΅Π½ΠΊΡ ΠΌΠΎΠ΄ΠΈΡΠΈΠΊΠ°ΡΠΈΠΉ!
ΠΠ°ΡΠΈ ΠΏΡΠ΅Π΄ΠΏΠΎΡΡΠΈΡΠ΅Π»ΡΠ½ΡΠ΅, Π³ΠΎΡΠΎΠ²ΡΠ΅ ΠΊ ΡΡΡΠΎΠΈΡΠ΅Π»ΡΡΡΠ²Ρ ΠΏΠ»Π°Π½Ρ Π΄ΠΎΠΌΠΎΠ² Π²ΠΊΠ»ΡΡΠ°ΡΡ Π² ΡΠ΅Π±Ρ Π²ΡΠ΅ Π½Π΅ΠΎΠ±Ρ ΠΎΠ΄ΠΈΠΌΠΎΠ΅ Π΄Π»Ρ ΡΡΡΠΎΠΈΡΠ΅Π»ΡΡΡΠ²Π° Π΄ΠΎΠΌΠ° ΡΠ²ΠΎΠ΅ΠΉ ΠΌΠ΅ΡΡΡ.ΠΠ½ΠΈ Π³Π°ΡΠ°Π½ΡΠΈΡΠΎΠ²Π°Π½Π½ΠΎ Π²ΠΊΠ»ΡΡΠ°ΡΡ ΠΏΠΎΠ»Π½ΡΠ΅ ΠΈ ΠΏΠΎΠ΄ΡΠΎΠ±Π½ΡΠ΅ ΠΏΠ»Π°Π½Ρ ΡΡΠ°ΠΆΠ΅ΠΉ Ρ ΡΠ°Π·ΠΌΠ΅ΡΠ°ΠΌΠΈ, ΠΎΡΠ½ΠΎΠ²Π½ΡΠ΅ ΡΠ»Π΅ΠΊΡΡΠΈΡΠ΅ΡΠΊΠΈΠ΅ ΡΡ Π΅ΠΌΡ, ΡΡΡΡΠΊΡΡΡΠ½ΡΡ ΠΈΠ½ΡΠΎΡΠΌΠ°ΡΠΈΡ, ΠΏΠ»Π°Π½Ρ ΠΊΡΡΡΠΈ, ΠΏΠΎΠΏΠ΅ΡΠ΅ΡΠ½ΡΠ΅ ΡΠ΅ΡΠ΅Π½ΠΈΡ, ΠΌΠ°ΠΊΠ΅ΡΡ ΡΠΊΠ°ΡΠΎΠ² ΠΈ ΡΠ°ΡΠ°Π΄Ρ, Π° ΡΠ°ΠΊΠΆΠ΅ Π²ΡΠ΅ ΠΎΠ±ΡΠΈΠ΅ ΡΠΏΠ΅ΡΠΈΡΠΈΠΊΠ°ΡΠΈΠΈ, ΠΊΠΎΡΠΎΡΡΠ΅ ΠΏΠΎΡΡΠ΅Π±ΡΡΡΡΡ Π²Π°ΡΠ΅ΠΌΡ ΡΡΡΠΎΠΈΡΠ΅Π»Ρ Π΄Π»Ρ ΡΡΡΠΎΠΈΡΠ΅Π»ΡΡΡΠ²Π° Π²Π°ΡΠ΅Π³ΠΎ Π½ΠΎΠ²ΠΎΠ³ΠΎ Π΄ΠΎΠΌΠ°.
Π ΡΡΠΈΠ»ΡΡ ΠΏΠ»Π°Π½ΠΈΡΠΎΠ²ΠΊΠΈ Π΄ΠΎΠΌΠ°
ΠΡΠ΅ΡΠ΅ ΡΠΎΠ²ΡΠ΅ΠΌΠ΅Π½Π½ΡΠ΅ ΠΏΠ»Π°Π½Ρ Π΄ΠΎΠΌΠ° ΠΈΠ»ΠΈ ΠΏΠ»Π°Π½Ρ Π΄ΠΎΠΌΠ° ΠΌΠ°ΡΡΠ΅ΡΠ° Π² ΠΠ½ΡΠ΅ΡΠ½Π΅ΡΠ΅? ΠΠ»ΠΈ Π²Ρ Π±Ρ ΠΏΡΠ΅Π΄ΠΏΠΎΡΠ»ΠΈ ΠΏΠ»Π°Π½ ΡΠ΅ΡΠΌΠ΅ΡΡΠΊΠΎΠ³ΠΎ Π΄ΠΎΠΌΠ° ΠΈΠ»ΠΈ Π΄ΠΎΠΌΠ° Π² ΡΡΠΈΠ»Π΅ ΠΊΠΎΡΡΠ΅Π΄ΠΆΠ°? Π£ Π½Π°Ρ Π΅ΡΡΡ Π±ΠΎΠ»Π΅Π΅ 6000 ΡΠ°Π·Π½ΠΎΠΎΠ±ΡΠ°Π·Π½ΡΡ ΠΏΠ»Π°Π½ΠΎΠ², ΠΏΠΎΡΡΠΎΠΌΡ Ρ Π½Π°Ρ ΠΎΠ±ΡΠ·Π°ΡΠ΅Π»ΡΠ½ΠΎ Π½Π°ΠΉΠ΄Π΅ΡΡΡ Π΄ΠΎΠΌ, ΠΊΠΎΡΠΎΡΡΠΉ Π²Ρ ΡΠ°ΠΊ Π΄ΠΎΠ»Π³ΠΎ ΠΈΡΠΊΠ°Π»ΠΈ.ΠΡΠ»ΠΈ Π²Π°Ρ ΠΏΠΎΠΈΡΠΊ Π½Π΅ Π΄Π°Π΅Ρ ΡΠΎΡΠ½ΡΡ ΠΎΠ½Π»Π°ΠΉΠ½-ΠΏΠ»Π°Π½ΠΎΠ² Π΄ΠΎΠΌΠΎΠ², ΠΊΠΎΡΠΎΡΡΠ΅ Π²Π°ΠΌ Π½ΡΠΆΠ½Ρ, ΡΠ²ΡΠΆΠΈΡΠ΅ΡΡ Ρ Π½Π°ΠΌΠΈ, ΡΡΠΎΠ±Ρ ΠΌΡ ΡΠΎΡΡΠ°Π²ΠΈΠ»ΠΈ ΠΏΠ»Π°Π½, ΡΠΎΠΎΡΠ²Π΅ΡΡΡΠ²ΡΡΡΠΈΠΉ Π²Π°ΡΠΈΠΌ ΡΠΏΠ΅ΡΠΈΡΠΈΠΊΠ°ΡΠΈΡΠΌ. ΠΠ°ΡΠ° ΠΈΠ·ΠΌΠ΅Π½Π΅Π½Π½Π°Ρ ΡΠΌΠ΅ΡΠ° ΠΏΠ»Π°Π½Π° Π΄ΠΎΠΌΠ° Π²ΡΠ΅Π³Π΄Π° Π±Π΅ΡΠΏΠ»Π°ΡΠ½Π°!
ΠΠΎΡΠ΅ΠΌΡ Π΄ΠΈΠ·Π°ΠΉΠ½Π΅ΡΡ Π΄ΠΎΠΌΠΎΠ²?
ΠΠΎΠ»ΡΡΠΈΠ½ΡΡΠ²ΠΎ Π½Π°ΡΠΈΡ ΠΏΡΠΎΠ΅ΠΊΡΠΎΠ² Π½Π°ΡΠΈΠ½Π°Π»ΠΎΡΡ ΠΊΠ°ΠΊ ΠΈΠ½Π΄ΠΈΠ²ΠΈΠ΄ΡΠ°Π»ΡΠ½ΡΠ΅ ΠΏΠ»Π°Π½Ρ Π΄ΠΎΠΌΠΎΠ² Π΄Π»Ρ ΡΠ°ΡΡΠ½ΡΡ ΠΊΠ»ΠΈΠ΅Π½ΡΠΎΠ², ΠΈ ΡΠ΅ΠΏΠ΅ΡΡ ΠΌΡ ΠΌΠΎΠΆΠ΅ΠΌ ΠΏΡΠ΅Π΄Π»ΠΎΠΆΠΈΡΡ ΠΈΡ Π² ΠΠ½ΡΠ΅ΡΠ½Π΅ΡΠ΅ ΠΊΠ°ΠΊ Β«ΡΡΠ°Π½Π΄Π°ΡΡΠ½ΡΠ΅Β» ΠΏΠ»Π°Π½Ρ Π΄ΠΎΠΌΠΎΠ² ΠΏΠΎ Π΄ΠΎΡΡΡΠΏΠ½ΠΎΠΉ ΡΠ΅Π½Π΅. ΠΠ°ΡΠ΅ ΡΡΡΠ΅ΠΌΠ»Π΅Π½ΠΈΠ΅ ΠΊ ΡΠΎΠ±Π»ΡΠ΄Π΅Π½ΠΈΡ ΠΊΠΎΠ΄ΠΎΠ² ΠΈ ΡΡΡΡΠΊΡΡΡΠ½ΡΠΌ Π΄Π΅ΡΠ°Π»ΡΠΌ, Π° ΡΠ°ΠΊΠΆΠ΅ Π½Π°ΡΠΈ ΡΠΎΡΠ½ΠΈ ΠΎΡΠ·ΡΠ²ΠΎΠ² ΠΊΠ»ΠΈΠ΅Π½ΡΠΎΠ² ΠΌΠΎΠ³ΡΡ Π³Π°ΡΠ°Π½ΡΠΈΡΠΎΠ²Π°ΡΡ, ΡΡΠΎ Π²Ρ ΠΏΠΎΠΊΡΠΏΠ°Π΅ΡΠ΅ ΠΏΠ»Π°Π½Ρ Π΄ΠΎΠΌΠ° ΠΈΠ· Π½Π°Π΄Π΅ΠΆΠ½ΠΎΠ³ΠΎ ΠΈΡΡΠΎΡΠ½ΠΈΠΊΠ°.
ΠΠ°ΡΠΈ 10 Π³Π°ΡΠ°Π½ΡΠΈΠΉ
The House Designers ΡΡΡΠ΅ΠΌΠΈΡΡΡ ΠΏΡΠ΅Π΄Π»Π°Π³Π°ΡΡ Π² ΠΠ½ΡΠ΅ΡΠ½Π΅ΡΠ΅ ΠΏΠ»Π°Π½Ρ Π΄ΠΎΠΌΠΎΠ² Π²ΡΡΠΎΡΠ°ΠΉΡΠ΅Π³ΠΎ ΠΊΠ°ΡΠ΅ΡΡΠ²Π°, ΡΠΎΠΎΡΠ²Π΅ΡΡΡΠ²ΡΡΡΠΈΠ΅ ΠΊΠΎΠ΄Π΅ΠΊΡΡ, ΠΈ ΠΎΠ±Π΅ΡΠΏΠ΅ΡΠΈΠ²Π°ΡΡ ΠΎΡΠ»ΠΈΡΠ½ΠΎΠ΅ ΠΎΠ±ΡΠ»ΡΠΆΠΈΠ²Π°Π½ΠΈΠ΅ ΠΊΠ»ΠΈΠ΅Π½ΡΠΎΠ², ΡΡΠΎΠ±Ρ ΠΏΠΎΠΌΠΎΡΡ Π²Π°ΠΌ Π½Π°ΠΉΡΠΈ ΠΈΠ΄Π΅Π°Π»ΡΠ½ΡΠΉ ΠΏΠ»Π°Π½ Π΄ΠΎΠΌΠ° ΠΈ Π±ΡΡΡ ΡΠ²Π΅ΡΠ΅Π½Π½ΡΠΌ Π² ΡΠ²ΠΎΠ΅ΠΌ Π²ΡΠ±ΠΎΡΠ΅. ΠΠ·Π½Π°ΠΊΠΎΠΌΡΡΠ΅ΡΡ Ρ Π½Π°ΡΠΈΠΌΠΈ 10 Π³Π°ΡΠ°Π½ΡΠΈΡΠΌΠΈ ΠΊΠ»ΠΈΠ΅Π½ΡΠΎΠ², ΠΊΠΎΡΠΎΡΡΠ΅ ΠΌΡ ΠΏΠΎΠ΄Π΄Π΅ΡΠΆΠΈΠ²Π°Π΅ΠΌ, ΡΡΠΎΠ±Ρ ΡΡΠΎ ΠΏΡΠΎΠΈΠ·ΠΎΡΠ»ΠΎ. Π£ΠΠΠΠ’Π¬ ΠΠΠΠ¬Π¨Π
ΠΡΠ΅Π½ΠΊΠ° ΠΌΠΎΠ΄ΠΈΡΠΈΠΊΠ°ΡΠΈΠΈ Π±Π΅ΡΠΏΠ»Π°ΡΠ½ΠΎΠ³ΠΎ Π΄ΠΎΠΌΠ°ΡΠ½Π΅Π³ΠΎ ΠΏΠ»Π°Π½Π°
ΠΡ ΠΌΠΎΠΆΠ΅ΡΠ΅ ΠΏΠΎΠ»ΡΡΠΈΡΡ Π±Π΅ΡΠΏΠ»Π°ΡΠ½ΡΡ ΠΎΡΠ΅Π½ΠΊΡ ΠΌΠΎΠ΄ΠΈΡΠΈΠΊΠ°ΡΠΈΠΈ Π»ΡΠ±ΠΎΠ³ΠΎ ΠΈΠ· Π½Π°ΡΠΈΡ ΠΏΠ»Π°Π½ΠΎΠ² Π΄ΠΎΠΌΠ°, ΠΏΠΎΠ·Π²ΠΎΠ½ΠΈΠ² ΠΏΠΎ ΡΠ΅Π»Π΅ΡΠΎΠ½Ρ 866-214-2242, ΡΠ²ΡΠ·Π°Π²ΡΠΈΡΡ Ρ Π½Π°ΠΌΠΈ ΡΠ΅ΡΠ΅Π· ΡΠ°Ρ ΠΈΠ»ΠΈ ΡΠ΅ΡΠ΅Π· ΡΠΎΡΠΌΡ ΠΎΠ½Π»Π°ΠΉΠ½-Π·Π°ΠΏΡΠΎΡΠ°.ΠΡ Π±ΡΠ΄Π΅ΡΠ΅ ΡΠ°Π±ΠΎΡΠ°ΡΡ Ρ Π½Π°ΡΠΈΠΌ ΠΎΡΠ΄Π΅Π»ΠΎΠΌ ΠΌΠΎΠ΄ΠΈΡΠΈΠΊΠ°ΡΠΈΠΉ ΠΈΠ»ΠΈ Π½Π°ΠΏΡΠ°Π²Π»ΡΡΡ Π°ΡΡ ΠΈΡΠ΅ΠΊΡΠΎΡΠ°, ΡΡΠΎΠ±Ρ ΠΈΠ·ΠΌΠ΅Π½Π΅Π½ΠΈΡ Π±ΡΠ»ΠΈ Π²Π½Π΅ΡΠ΅Π½Ρ. ΠΠ·ΠΌΠ΅Π½Π΅Π½ΠΈΡ Π² ΠΏΠ»Π°Π½Π΅ Π΄ΠΎΠΌΠ° ΠΌΠΎΠ³ΡΡ Π±ΡΡΡ ΡΠ°ΠΊΠΈΠΌΠΈ Π½Π΅Π·Π½Π°ΡΠΈΡΠ΅Π»ΡΠ½ΡΠΌΠΈ, ΠΊΠ°ΠΊ ΡΠ²Π΅Π»ΠΈΡΠ΅Π½ΠΈΠ΅ ΡΠ°Π·ΠΌΠ΅ΡΠ° ΠΊΠΎΠΌΠ½Π°ΡΡ, ΡΠ²Π΅Π»ΠΈΡΠ΅Π½ΠΈΠ΅ ΠΈΠ»ΠΈ ΡΠΌΠ΅Π½ΡΡΠ΅Π½ΠΈΠ΅ Π²ΡΡΠΎΡΡ ΠΏΠΎΡΠΎΠ»ΠΊΠ°, Π½ΠΎ ΠΌΡ ΡΠ°ΠΊΠΆΠ΅ ΡΠ°Π±ΠΎΡΠ°Π΅ΠΌ Ρ Π±ΠΎΠ»Π΅Π΅ ΡΠ»ΠΎΠΆΠ½ΡΠΌΠΈ ΠΈΠ·ΠΌΠ΅Π½Π΅Π½ΠΈΡΠΌΠΈ, ΡΠ°ΠΊΠΈΠΌΠΈ ΠΊΠ°ΠΊ ΠΈΠ·ΠΌΠ΅Π½Π΅Π½ΠΈΠ΅ Π»ΠΈΠ½ΠΈΠΈ ΠΊΡΡΡΠΈ. ΠΠ°ΡΠΈ Π°ΡΡ ΠΈΡΠ΅ΠΊΡΠΎΡΡ ΠΏΡΠΎΠ²Π΅Π΄ΡΡ Π²Π°Ρ ΡΠ΅ΡΠ΅Π· Π²Π΅ΡΡ ΠΏΡΠΎΡΠ΅ΡΡ ΠΈ ΠΏΠΎΠ·Π°Π±ΠΎΡΡΡΡΡ ΠΎ ΡΠΎΠΌ, ΡΡΠΎΠ±Ρ Π²Π°Ρ ΠΎΠΊΠΎΠ½ΡΠ°ΡΠ΅Π»ΡΠ½ΡΠΉ ΠΏΠ»Π°Π½ Π΄ΠΎΠΌΠ° Π±ΡΠ» ΠΈΠΌΠ΅Π½Π½ΠΎ ΡΠ°ΠΊΠΈΠΌ, ΠΊΠ°ΠΊ Π²Ρ Ρ ΠΎΡΠ΅Π»ΠΈ. ΠΠ΅ Π·Π°Π±ΡΠ΄ΡΡΠ΅ ΠΏΡΠΈΠΎΠ±ΡΠ΅ΡΡΠΈ ΡΠ°ΠΉΠ» CAD, Π΅ΡΠ»ΠΈ Π²Ρ ΠΏΠ»Π°Π½ΠΈΡΡΠ΅ΡΠ΅ Π²Π½Π΅ΡΡΠΈ ΡΠ΅ΡΡΠ΅Π·Π½ΡΠ΅ ΠΈΠ·ΠΌΠ΅Π½Π΅Π½ΠΈΡ Π² Π½Π°ΡΠΈ ΠΏΠ»Π°Π½Ρ Π΄ΠΎΠΌΠ°.
ΠΡ Π³Π°ΡΠ°Π½ΡΠΈΡΡΠ΅ΠΌ ΡΠ΄ΠΎΠ²Π»Π΅ΡΠ²ΠΎΡΠ΅Π½ΠΈΠ΅ Π·Π°ΠΏΡΠΎΡΠΎΠ² ΠΊΠ»ΠΈΠ΅Π½ΡΠΎΠ²
ΠΠΎΠΊΡΠΏΠΊΠ° ΠΏΠ»Π°Π½Π° Π΄ΠΎΠΌΠ° ΠΌΠΎΠΆΠ΅Ρ Π±ΡΡΡ ΠΎΠ΄Π½ΠΈΠΌ ΠΈΠ· ΡΠ°ΠΌΡΡ Π±ΠΎΠ»ΡΡΠΈΡ Π²Π»ΠΎΠΆΠ΅Π½ΠΈΠΉ Π² Π²Π°ΡΡ ΠΆΠΈΠ·Π½Ρ, ΠΏΠΎΡΡΠΎΠΌΡ ΠΌΡ Π·Π΄Π΅ΡΡ, ΡΡΠΎΠ±Ρ ΠΏΠΎΠΌΠΎΡΡ Ρ Π½Π°ΡΠΈΠΌΠΈ ΠΎΠΏΡΡΠ½ΡΠΌΠΈ ΡΠΏΠ΅ΡΠΈΠ°Π»ΠΈΡΡΠ°ΠΌΠΈ ΠΏΠΎ ΠΏΠ»Π°Π½ΠΈΡΠΎΠ²Π°Π½ΠΈΡ Π΄ΠΎΠΌΠ° ΠΈ Π°ΡΡ ΠΈΡΠ΅ΠΊΡΠΎΡΠ°ΠΌΠΈ.ΠΡΠΎΡΡΠΎ ΠΏΠΎΠ³ΠΎΠ²ΠΎΡΠΈΡΠ΅ Π² ΡΠ°ΡΠ΅, Π½Π°ΠΏΠΈΡΠΈΡΠ΅ ΠΏΠΎ ΡΠ»Π΅ΠΊΡΡΠΎΠ½Π½ΠΎΠΉ ΠΏΠΎΡΡΠ΅ ΠΈΠ»ΠΈ ΠΏΠΎΠ·Π²ΠΎΠ½ΠΈΡΠ΅ Π½Π°ΠΌ ΠΏΠΎ ΡΠ΅Π»Π΅ΡΠΎΠ½Ρ 866-214-2242, ΠΈ ΠΌΡ Π±ΡΠ΄Π΅ΠΌ ΡΠ°Π΄Ρ ΠΏΠΎΠΌΠΎΡΡ Π²Π°ΠΌ. ΠΡΠ»ΠΈ Π²Π°ΠΌ ΡΠ΄Π°ΡΡΡΡ Π½Π°ΠΉΡΠΈ Π³Π΄Π΅-Π½ΠΈΠ±ΡΠ΄Ρ ΠΎΠ΄ΠΈΠ½ ΠΈΠ· Π½Π°ΡΠΈΡ ΠΏΠ»Π°Π½ΠΎΠ² Π΄ΠΎΠΌΠ° ΠΏΠΎ Π±ΠΎΠ»Π΅Π΅ Π½ΠΈΠ·ΠΊΠΎΠΉ ΡΠ΅Π½Π΅, ΠΌΡ ΡΠΎΠΏΠΎΡΡΠ°Π²ΠΈΠΌ ΡΡΡ ΡΠ΅Π½Ρ ΠΈ Π΄Π°Π΄ΠΈΠΌ Π²Π°ΠΌ Π΄ΠΎΠΏΠΎΠ»Π½ΠΈΡΠ΅Π»ΡΠ½ΡΡ ΡΠΊΠΈΠ΄ΠΊΡ 5% Π½Π° ΠΏΠΎΠΊΡΠΏΠΊΡ ΠΏΠ»Π°Π½Π°. ΠΡΠΎ ΡΠ°ΠΊΠΆΠ΅ Π²ΠΊΠ»ΡΡΠ°Π΅Ρ Π² ΡΠ΅Π±Ρ Π½Π°ΡΠΈ ΠΌΠΎΠ΄ΠΈΡΠΈΠΊΠ°ΡΠΈΠΈ ΠΈΠ»ΠΈ ΡΠ΅Π½Ρ Π½Π° ΠΈΠ½Π΄ΠΈΠ²ΠΈΠ΄ΡΠ°Π»ΡΠ½ΡΠΉ ΠΏΠ»Π°Π½ Π΄ΠΎΠΌΠ°. ΠΠ°ΡΠΈ ΠΏΠ»Π°Π½Ρ Π½Π° Π΄ΠΎΠΌ Π²ΠΊΠ»ΡΡΠ°ΡΡ Π±Π΅ΡΠΏΠ»Π°ΡΠ½ΡΡ Π΄ΠΎΡΡΠ°Π²ΠΊΡ, Π±Π΅ΡΠΏΠ»Π°ΡΠ½ΡΡ ΠΊΠΎΠ½ΡΡΠ»ΡΡΠ°ΡΠΈΡ ΠΏΠΎ Π΄ΠΈΠ·Π°ΠΉΠ½Ρ ΠΈ Π±Π΅ΡΠΏΠ»Π°ΡΠ½ΡΠΉ ΠΎΡΠ³Π°Π½Π°ΠΉΠ·Π΅Ρ Π΄Π»Ρ ΡΡΡΠΎΠΈΡΠ΅Π»ΡΡΡΠ²Π° Π΄ΠΎΠΌΠ°, ΠΊΠΎΡΠΎΡΡΠΉ ΠΏΠΎΠΌΠΎΠΆΠ΅Ρ ΡΠΏΠ»Π°Π½ΠΈΡΠΎΠ²Π°ΡΡ, ΠΏΠΎΡΡΡΠΎΠΈΡΡ ΠΈ ΠΎΡΠ³Π°Π½ΠΈΠ·ΠΎΠ²Π°ΡΡ Π²Π°Ρ ΠΏΡΠΎΠ΅ΠΊΡ.
ΠΠΎΠ»ΠΈΡΠΈΠΊΠ° ΠΎΠ±ΠΌΠ΅Π½Π° Π½Π°ΡΠ΅Π³ΠΎ ΠΏΠ»Π°Π½Π° Π΄ΠΎΠΌΠ°
ΠΡΠ»ΠΈ Π²Π°ΠΌ Π½ΡΠΆΠ½ΠΎ ΠΎΠ±ΠΌΠ΅Π½ΡΡΡ Π²Π°ΡΠΈ ΠΏΠ»Π°Π½Ρ, The House Designers ΠΎΠ±ΠΌΠ΅Π½ΡΡΡ Π²Π°Ρ ΠΏΠ΅ΡΠ²ΡΠΉ ΠΏΠ»Π°Π½ ΠΏΠΎΠΊΡΠΏΠΊΠΈ Π½Π° Π΄ΡΡΠ³ΠΎΠΉ ΠΏΠ»Π°Π½ Π΄ΠΎΠΌΠ° ΡΠ°ΠΊΠΎΠΉ ΠΆΠ΅ ΡΡΠΎΠΈΠΌΠΎΡΡΠΈ Π² ΡΠ΅ΡΠ΅Π½ΠΈΠ΅ 14 Π΄Π½Π΅ΠΉ ΠΏΠΎΡΠ»Π΅ ΠΏΠΎΠΊΡΠΏΠΊΠΈ.Π§ΡΠΎΠ±Ρ ΠΎΠ±ΠΌΠ΅Π½ΡΡΡ Π½Π°ΡΠΈ Π΄ΠΎΠΌΠ°ΡΠ½ΠΈΠ΅ ΠΏΠ»Π°Π½Ρ, ΠΏΡΠΎΡΡΠΎ ΠΏΠΎΠ·Π²ΠΎΠ½ΠΈΡΠ΅ Π² ΡΠ»ΡΠΆΠ±Ρ ΠΏΠΎΠ΄Π΄Π΅ΡΠΆΠΊΠΈ ΠΊΠ»ΠΈΠ΅Π½ΡΠΎΠ² ΠΏΠΎ ΡΠ΅Π»Π΅ΡΠΎΠ½Ρ 866-214-2242 Π² ΡΠ΅ΡΠ΅Π½ΠΈΠ΅ 14 Π΄Π½Π΅ΠΉ Ρ ΠΌΠΎΠΌΠ΅Π½ΡΠ° ΠΏΠΎΠΊΡΠΏΠΊΠΈ, ΡΡΠΎΠ±Ρ ΠΏΠΎΠ»ΡΡΠΈΡΡ ΠΈΠ½ΡΠΎΡΠΌΠ°ΡΠΈΡ ΠΎ ΡΠΎΠΌ, ΠΊΠ°ΠΊ Π²Π΅ΡΠ½ΡΡΡ Π½Π΅ΠΈΡΠΏΠΎΠ»ΡΠ·ΠΎΠ²Π°Π½Π½ΡΠ΅ ΠΏΠ»Π°Π½Ρ, ΠΊΠΎΡΠΎΡΡΠ΅ Π½Π΅ Π±ΡΠ»ΠΈ ΠΈΡΠΏΠΎΠ»ΡΠ·ΠΎΠ²Π°Π½Ρ, ΠΎΡΠΌΠ΅ΡΠ΅Π½Ρ ΠΈΠ»ΠΈ ΡΠΊΠΎΠΏΠΈΡΠΎΠ²Π°Π½Ρ. ΠΠ»Π΅ΠΊΡΡΠΎΠ½Π½ΡΠ΅ ΠΏΠ»Π°Π½Ρ, Π²ΠΊΠ»ΡΡΠ°Ρ ΠΏΠ»Π°Π½Ρ Π² ΡΠΎΡΠΌΠ°ΡΠ΅ PDF ΠΈ CAD, ΠΎΠ±ΠΌΠ΅Π½Ρ Π½Π΅ ΠΏΠΎΠ΄Π»Π΅ΠΆΠ°Ρ. ΠΠ·ΠΌΠ΅Π½Π΅Π½Π½ΡΠ΅ ΠΈΠ»ΠΈ Π½Π΅ΡΡΠ°Π½Π΄Π°ΡΡΠ½ΡΠ΅ ΠΏΠ»Π°Π½Ρ Π΄ΠΎΠΌΠ° ΡΠ°ΠΊΠΆΠ΅ Π½Π΅ ΠΏΠΎΠ΄Π»Π΅ΠΆΠ°Ρ ΠΎΠ±ΠΌΠ΅Π½Ρ, ΠΈ Π²ΡΠ΅ ΠΎΠ±ΠΌΠ΅Π½Ρ ΠΏΠΎΠ΄Π»Π΅ΠΆΠ°Ρ 20% ΠΊΠΎΠΌΠΈΡΡΠΈΠΈ Π·Π° ΠΏΠΎΠΏΠΎΠ»Π½Π΅Π½ΠΈΠ΅ Π·Π°ΠΏΠ°ΡΠΎΠ² Π΄Π»Ρ ΠΏΠΎΠΊΡΡΡΠΈΡ ΠΏΠ΅ΡΠ°ΡΠΈ ΠΈ Π΄ΠΎΡΡΠ°Π²ΠΊΠΈ.
ΠΠ»Π°Π½Ρ Π΄ΠΎΠΌΠΎΠ² | Π‘ΠΎΠ²ΡΠ΅ΠΌΠ΅Π½Π½ΡΠ΅ ΠΏΠ»Π°Π½Ρ ΡΡΠ°ΠΆΠ΅ΠΉ ΠΈ ΡΠ½ΠΈΠΊΠ°Π»ΡΠ½ΡΠ΅ ΠΏΡΠΎΠ΅ΠΊΡΡ ΡΠ΅ΡΠΌΠ΅ΡΡΠΊΠΈΡ Π΄ΠΎΠΌΠΎΠ²
ΠΡ ΡΠ°Π΄Ρ ΠΏΡΠ΅Π΄Π»ΠΎΠΆΠΈΡΡ Π²Π°ΠΌ ΡΠΈΡΠΎΠΊΠΈΠΉ Π²ΡΠ±ΠΎΡ Π²Π½Π΅Π²ΡΠ΅ΠΌΠ΅Π½Π½ΠΎΠΉ ΠΊΠ»Π°ΡΡΠΈΠΊΠΈ, ΠΏΠ»Π°Π½ΠΈΡΠΎΠ²ΠΊΠΈ Π΄ΠΎΠΌΠΎΠ², ΠΎΡΠΈΠ΅Π½ΡΠΈΡΠΎΠ²Π°Π½Π½ΡΡ Π½Π° ΡΠΎΡΠ΅Π΄ΡΡΠ²ΠΎ, Π²Π΅Π»ΠΈΠΊΠΎΠ»Π΅ΠΏΠ½ΡΠ΅ Π΄ΠΎΠΌΠ° Π½Π° Π·Π°ΠΊΠ°Π· ΠΈ ΠΏΠ΅ΡΠ΅Π΄ΠΎΠ²ΡΠ΅ ΠΏΡΠΎΠ΅ΠΊΡΡ Π΄ΠΎΠΌΠΎΠ², ΠΊΠΎΡΠΎΡΡΠ΅ ΡΠΎΠΎΡΠ²Π΅ΡΡΡΠ²ΡΡΡ Π½Π°Π΄Π΅ΠΆΠ΄Π°ΠΌ ΠΈ ΠΌΠ΅ΡΡΠ°ΠΌ ΡΠΈΡΠΎΠΊΠΎΠ³ΠΎ ΠΊΡΡΠ³Π° ΡΡΡΠΎΠΈΡΠ΅Π»Π΅ΠΉ ΠΈ Π΄ΠΎΠΌΠΎΠ²Π»Π°Π΄Π΅Π»ΡΡΠ΅Π². ΠΠΎΠΌΠΎΠ²Π»Π°Π΄Π΅Π»ΡΡΡ.
ΠΡ ΡΠΎΠ²ΡΠ΅ΠΌΠ΅Π½Π½ΠΎΠ³ΠΎ ΠΌΠΈΠ½ΠΈΠΌΠ°Π»ΠΈΡΡΡΠΊΠΎΠ³ΠΎ Π΄ΠΈΠ·Π°ΠΉΠ½Π° Π΄ΠΎ ΠΈΠ½Π΄ΠΈΠ²ΠΈΠ΄ΡΠ°Π»ΡΠ½ΠΎΠ³ΠΎ Π΄ΠΈΠ·Π°ΠΉΠ½Π° Π΄ΠΎΠΌΠ° Π² ΡΡΠΈΠ»Π΅ ΠΏΠΎΠΌΠ΅ΡΡΡΡ, ΠΌΡ ΠΎΡ Π²Π°ΡΡΠ²Π°Π΅ΠΌ Π²Π΅ΡΡ ΡΠΏΠ΅ΠΊΡΡ Π΄ΠΈΠ·Π°ΠΉΠ½Π° Π΄ΠΎΠΌΠ° Ρ ΠΏΠ»Π°Π½Π°ΠΌΠΈ ΡΡΠ°ΠΆΠ΅ΠΉ ΠΈ ΡΠΎΡΠΎΠ³ΡΠ°ΡΠΈΡΠΌΠΈ, Π²ΠΊΠ»ΡΡΠ°Ρ ΡΡΠΈΠ»ΠΈ, Π½Π°ΡΠΈΠ½Π°Ρ ΠΎΡ ΠΎΡΠ³Π°Π½ΠΈΡΠ΅ΡΠΊΠΎΠ³ΠΎ ΠΌΠΎΠ΄Π΅ΡΠ½Π°, ΠΏΠ»Π°Π½ΠΎΠ² Π½Π΅Π±ΠΎΠ»ΡΡΠΈΡ Π΄ΠΎΠΌΠΎΠ², Π΄Π΅ΡΠ΅Π²Π΅Π½ΡΠΊΠΈΡ Π΄ΠΈΠ·Π°ΠΉΠ½ΠΎΠ², ΠΌΠ°ΡΡΠ΅ΡΠΎΠ², ΡΡΠΈΠ»Ρ ΠΊΠΎΡΡΠ΅Π΄ΠΆΠ°, ΡΡΠΈΠ»Ρ ΠΏΡΠ΅ΡΠΈΠΉ, Π‘ΡΠ°ΡΠΎΠ³ΠΎ Π‘Π²Π΅ΡΠ°. , ΠΠ»Π°Π½Ρ ΡΠ΅ΡΠΌΠ΅ΡΡΠΊΠΈΡ Π΄ΠΎΠΌΠΎΠ², Π±ΡΠ½Π³Π°Π»ΠΎ, ΡΠΎΡΠΊΠ°Π½ΡΠΊΠΈΠ΅ ΠΏΡΠΎΠ΅ΠΊΡΡ, ΠΏΡΠΎΠ΅ΠΊΡΡ Π²ΠΈΠ½Π½ΡΡ Π΄Π΅ΡΠ΅Π²Π΅Π½Ρ, ΠΏΠ»Π°Π½Ρ Π΄ΠΎΠΌΠΎΠ² ΡΠΏΠΎΡ ΠΈ Π’ΡΠ΄ΠΎΡΠΎΠ², ΠΏΡΠΎΠ΅ΠΊΡΡ ΠΊΡΠΎΡΠ΅ΡΠ½ΡΡ Π΄ΠΎΠΌΠΎΠ² ΠΈ ΠΌΠ½ΠΎΠ³ΠΎΠ΅ Π΄ΡΡΠ³ΠΎΠ΅. ΠΠ°ΡΠ΅ ΠΏΠΎΡΡΡΠΎΠ»ΠΈΠΎ Π΄ΠΎΠΌΠ°ΡΠ½Π΅Π³ΠΎ ΠΏΠ»Π°Π½Π° ΠΈΠΌΠ΅Π΅Ρ ΡΠ΅Π½Π΄Π΅Π½ΡΠΈΡ Π½Π΅ΠΌΠ½ΠΎΠ³ΠΎ ΠΎΠΏΠ΅ΡΠ΅ΠΆΠ°ΡΡ ΡΡΠΈΠ»Π΅Π²ΡΡ ΠΊΡΠΈΠ²ΡΡ, ΠΏΠΎΡΡΠΎΠΌΡ ΠΏΠΎΡΠ°ΡΠ΅ ΠΏΡΠΎΠ²Π΅ΡΡΠΉΡΠ΅ Π΅Π³ΠΎ, ΡΡΠΎΠ±Ρ ΡΠ·Π½Π°ΡΡ, ΠΊΠ°ΠΊΠΈΠΌ Π±ΡΠ΄Π΅Ρ ΡΠ»Π΅Π΄ΡΡΡΠΈΠΉ ΠΌΠΎΠ΄Π½ΡΠΉ ΡΡΠΈΠ»Ρ Π΄ΠΎΠΌΠ°ΡΠ½Π΅Π³ΠΎ Π΄ΠΈΠ·Π°ΠΉΠ½Π°.
Π‘ΠΎΠ²ΡΠ΅ΠΌΠ΅Π½Π½ΡΠΉ ΡΠ΅ΡΠΌΠ΅ΡΡΠΊΠΈΠΉ Π΄ΠΎΠΌ
Mark Stewart Farmhouse Design Π² ΠΏΠΎΡΠ»Π΅Π΄Π½ΠΈΠ΅ Π³ΠΎΠ΄Ρ ΠΏΠΎΠ»ΡΠ·ΡΠ΅ΡΡΡ Π±ΠΎΠ»ΡΡΠΈΠΌ ΡΠΏΡΠΎΡΠΎΠΌ. Π ΡΠΎ Π²ΡΠ΅ΠΌΡ ΠΊΠ°ΠΊ ΠΌΠΈΡ Π΄ΠΈΠ·Π°ΠΉΠ½Π° ΠΈΠ½ΡΠ΅ΡΡΠ΅ΡΠ° Π²ΡΡΠΎΡ, ΡΡΠΎΠ±Ρ ΡΠ΄ΠΎΠ²Π»Π΅ΡΠ²ΠΎΡΠΈΡΡ ΠΊΠΎΠ»ΠΎΡΡΠ°Π»ΡΠ½ΡΠΉ ΠΏΠΎΡΡΠ΅Π±ΠΈΡΠ΅Π»ΡΡΠΊΠΈΠΉ ΡΠΏΡΠΎΡ Π½Π° ΠΏΡΠ΅Π΄ΠΌΠ΅ΡΡ, Π²Π΄ΠΎΡ Π½ΠΎΠ²Π»Π΅Π½Π½ΡΠ΅ Π½ΠΎΡΡΠ°Π»ΡΠ³ΠΈΠ΅ΠΉ ΠΈ Π½Π°ΡΠ»Π΅Π΄ΠΈΠ΅ΠΌ, ΠΌΠΈΡ Π΄ΠΎΠΌΠ°ΡΠ½Π΅Π³ΠΎ Π΄ΠΈΠ·Π°ΠΉΠ½Π° ΠΈΠ·ΠΎ Π²ΡΠ΅Ρ ΡΠΈΠ» ΡΡΠ°ΡΠ°Π»ΡΡ Π½Π΅ ΠΎΡΡΡΠ°Π²Π°ΡΡ. ΠΠΎ ΡΠΈΡ ΠΏΠΎΡ ΡΠ΅, ΠΊΡΠΎ Ρ ΠΎΡΠ΅Π» ΠΈΠΌΠ΅ΡΡ ΡΠ²ΠΎΠΉ ΡΠΎΠ±ΡΡΠ²Π΅Π½Π½ΡΠΉ ΡΠΎΠ²ΡΠ΅ΠΌΠ΅Π½Π½ΡΠΉ ΡΠ΅ΡΠΌΠ΅ΡΡΠΊΠΈΠΉ Π΄ΠΎΠΌ, Π±ΡΠ»ΠΈ ΠΎΠ³ΡΠ°Π½ΠΈΡΠ΅Π½Ρ ΠΏΡΠ΅ΠΎΠ±ΡΠ°Π·ΠΎΠ²Π°Π½ΠΈΠ΅ΠΌ ΡΡΡΠ΅ΡΡΠ²ΡΡΡΠΈΡ Π°ΠΌΠ±Π°ΡΠΎΠ² (ΠΊΠΎΡΠΎΡΡΠ΅ Π²ΡΡΡΠ΅ΡΠ°ΡΡΡΡ ΠΏΠΎΡΡΠΈ ΠΈΡΠΊΠ»ΡΡΠΈΡΠ΅Π»ΡΠ½ΠΎ Π² ΡΠ΅Π»ΡΡΠΊΠΈΡ ΠΎΠΊΡΡΠ³Π°Ρ ), ΠΎΠ±Π½ΠΎΠ²Π»Π΅Π½ΠΈΠ΅ΠΌ ΠΈΠ½ΡΠ΅ΡΡΠ΅ΡΠΎΠ² ΡΠ²ΠΎΠΈΡ Π½ΡΠ½Π΅ΡΠ½ΠΈΡ Π΄ΠΎΠΌΠΎΠ² ΠΈΠ»ΠΈ ΠΏΠΎΠΊΡΠΏΠΊΠΎΠΉ ΠΈΠ½Π΄ΠΈΠ²ΠΈΠ΄ΡΠ°Π»ΡΠ½ΡΡ ΠΏΠ»Π°Π½ΠΎΠ² Π΄ΠΎΠΌΠΎΠ².ΠΡ ΡΠΎΠ·Π΄Π°Π»ΠΈ ΡΠ΅ΡΠΈΡ ΡΡΠ°Π½Π΄Π°ΡΡΠ½ΡΡ Π΄ΠΎΠΌΠΎΠ², ΡΡΠΎΠ±Ρ ΡΠ΄ΠΎΠ²Π»Π΅ΡΠ²ΠΎΡΠΈΡΡ ΡΠΏΡΠΎΡ Π½Π° ΠΊΡΠ°ΡΠΈΠ²ΠΎ ΠΎΡΠΎΡΠΌΠ»Π΅Π½Π½ΡΠ΅ ΠΈ ΡΡΠ½ΠΊΡΠΈΠΎΠ½Π°Π»ΡΠ½ΡΠ΅ ΡΠΎΠ²ΡΠ΅ΠΌΠ΅Π½Π½ΡΠ΅ ΡΠ΅ΡΠΌΠ΅ΡΡΠΊΠΈΠ΅ Π΄ΠΎΠΌΠ°.
ΠΠ»Π°Π½Ρ ΡΠΎΠ²ΡΠ΅ΠΌΠ΅Π½Π½ΡΡ Π΄ΠΎΠΌΠΎΠ²
ΠΠ»Π°Π½Ρ Π½Π°ΡΠ΅Π³ΠΎ Π΄ΠΎΠΌΠ° Π² ΡΠΎΠ²ΡΠ΅ΠΌΠ΅Π½Π½ΠΎΠΌ ΡΡΠΈΠ»Π΅ ΠΏΠΎΠ»Π½ΠΎΡΡΡΡ ΡΠΎΠΎΡΠ²Π΅ΡΡΡΠ²ΡΡΡ ΡΠΎΠ²ΡΠ΅ΠΌΠ΅Π½Π½ΡΠΌ ΠΌΠΎΠ΄Π½ΡΠΌ ΡΠ΅Π½Π΄Π΅Π½ΡΠΈΡΠΌ. ΠΡΠΈ ΡΠΎΠ²ΡΠ΅ΠΌΠ΅Π½Π½ΡΠ΅ Π΄ΠΈΠ·Π°ΠΉΠ½Ρ ΡΠΎΡΠ΅ΡΠ°ΡΡ Π² ΡΠ΅Π±Π΅ ΡΠ΅ΡΠΊΠΈΠ΅ Π»ΠΈΠ½ΠΈΠΈ ΠΈ ΡΠ΅Π·ΠΊΡΡ Π³Π΅ΠΎΠΌΠ΅ΡΡΠΈΡ, Π° ΡΠ°ΠΊΠΆΠ΅ ΡΠ΅ΠΏΠ»ΡΠ΅ ΠΌΠ°ΡΠ΅ΡΠΈΠ°Π»Ρ, ΠΊΠΎΡΠΎΡΡΠ΅ ΡΠΎΠ·Π΄Π°ΡΡ Π½Π°ΠΏΡΡΠΆΠ΅Π½ΠΈΠ΅ ΠΈ ΠΊΠΎΠ½ΡΡΠ°ΡΡ, ΠΎΠ΄Π½ΠΎΠ²ΡΠ΅ΠΌΠ΅Π½Π½ΠΎ ΡΠ½Π΅ΡΠ³ΠΈΡΠ½ΡΠΉ ΠΈ ΡΠ΄ΠΎΠ±Π½ΡΠΉ. ΠΡ ΡΠ°Π·ΡΠ°Π±ΠΎΡΠ°Π»ΠΈ Π½Π°ΡΠΈ ΡΠΎΠ²ΡΠ΅ΠΌΠ΅Π½Π½ΡΠ΅ ΠΏΠ»Π°Π½Ρ Π΄ΠΎΠΌΠ°, ΡΡΠΎΠ±Ρ Π²ΡΠ΅ ΠΎΠ½ΠΈ ΠΎΠ±Π»Π°Π΄Π°Π»ΠΈ ΡΡΠΈΠΌΠΈ Ρ Π°ΡΠ°ΠΊΡΠ΅ΡΠΈΡΡΠΈΠΊΠ°ΠΌΠΈ, ΠΈ ΡΡΠΈ Π΄ΠΎΠΌΠ° ΡΠ΄ΠΈΠ²ΠΈΡΠ΅Π»ΡΠ½ΠΎ Π΄ΠΎΡΡΡΠΏΠ½Ρ ΠΏΠΎ ΡΠ΅Π½Π΅ Π² ΡΠΎ ΠΆΠ΅ Π²ΡΠ΅ΠΌΡ.
ΠΠΈΠ·Π°ΠΉΠ½ Π΄ΠΎΠΌΠ° Π² ΡΡΠΈΠ»Π΅ ΠΏΡΠ΅ΡΠΈΠΉ
ΠΠ°ΡΠΊ Π‘ΡΡΠ°ΡΡ ΠΌΠΎΠ΄Π΅ΡΠ½ΠΈΠ·ΠΈΡΠΎΠ²Π°Π» Π΄ΠΎΠΌ Π² ΡΡΠΈΠ»Π΅ ΠΏΡΠ΅ΡΠΈΠΉ Π² Π½Π°ΡΠ°Π»Π΅ 90-Ρ ΠΈ Ρ ΡΠ΅Ρ ΠΏΠΎΡ ΡΡΠ°Π» ΠΎΠ΄Π½ΠΈΠΌ ΠΈΠ· Π»ΠΈΠ΄Π΅ΡΠΎΠ² ΡΡΠΎΠ³ΠΎ ΡΡΠΈΠ»Ρ. Π 1994 Π³ΠΎΠ΄Ρ ΠΎΠ½ ΠΏΡΠ΅Π΄ΡΡΠ°Π²ΠΈΠ» 12 ΠΏΠΎΠ»Π½ΠΎΡΡΡΡ ΡΠ°Π·ΡΠ°Π±ΠΎΡΠ°Π½Π½ΡΡ ΠΈ Π΄Π΅ΠΊΠΎΡΠΈΡΠΎΠ²Π°Π½Π½ΡΡ Π΄ΠΎΠΌΠΎΠ² Π΄Π»Ρ Π²ΡΡΡΠ°Π²ΠΊΠΈ Mark Stewart Designerβs Showcase of Homes. ΠΠ»Π°Π½Ρ Π΄ΠΎΠΌΠΎΠ² Π² ΡΡΠΈΠ»Π΅ ΠΏΡΠ΅ΡΠΈΠΉ ΠΎΠ±ΡΡΠ½ΠΎ ΠΎΡΠΌΠ΅ΡΠ΅Π½Ρ ΠΈΡ ΠΈΠ½ΡΠ΅Π³ΡΠ°ΡΠΈΠ΅ΠΉ Ρ ΠΎΠΊΡΡΠΆΠ°ΡΡΠΈΠΌ Π»Π°Π½Π΄ΡΠ°ΡΡΠΎΠΌ, ΠΏΠ»ΠΎΡΠΊΠΈΠΌΠΈ ΠΈΠ»ΠΈ ΡΠ°ΡΡΠΎΠ²ΡΠΌΠΈ ΠΊΡΡΡΠ°ΠΌΠΈ, ΠΎΠΊΠ½Π°ΠΌΠΈ, ΡΠΎΠ±ΡΠ°Π½Π½ΡΠΌΠΈ Π² Π³ΠΎΡΠΈΠ·ΠΎΠ½ΡΠ°Π»ΡΠ½ΡΠ΅ ΠΏΠΎΠ»ΠΎΡΡ, ΠΏΡΠΎΡΠ½ΠΎΠΉ ΠΊΠΎΠ½ΡΡΡΡΠΊΡΠΈΠ΅ΠΉ, ΠΌΠ°ΡΡΠ΅ΡΡΡΠ²ΠΎΠΌ ΠΈ ΡΠ΄Π΅ΡΠΆΠ°Π½Π½ΠΎΡΡΡΡ Π² ΠΈΡΠΏΠΎΠ»ΡΠ·ΠΎΠ²Π°Π½ΠΈΠΈ Π΄Π΅ΠΊΠΎΡΠ°.
ΠΠΎΠΌΠ° Π² ΡΠ΅ΠΌΠ΅ΡΠ»Π΅Π½Π½ΠΎΠΌ ΡΡΠΈΠ»Π΅
Π Π΅ΠΌΠ΅ΡΠ»Π΅Π½Π½ΡΠΉ ΡΡΠΈΠ»Ρ Π±ΡΠ» ΠΏΠΎΠΏΡΠ»ΡΡΠ΅Π½ Π½Π° ΠΏΡΠΎΡΡΠΆΠ΅Π½ΠΈΠΈ ΠΌΠ½ΠΎΠ³ΠΈΡ Π»Π΅Ρ, ΠΈ ΡΡΠΈ ΡΠΎΠ²ΡΠ΅ΠΌΠ΅Π½Π½ΡΠ΅ Π²Π΅ΡΡΠΈΠΈ Π΄ΠΎΠΌΠ°ΡΠ½Π΅Π³ΠΎ Π΄ΠΈΠ·Π°ΠΉΠ½Π° ΡΠ΅ΠΌΠ΅ΡΠ»Π΅Π½Π½ΠΈΠΊΠΎΠ² ΠΏΡΠΎΠ΄ΠΎΠ»ΠΆΠ°ΡΡ ΠΎΡΠ°ΡΠΎΠ²ΡΠ²Π°ΡΡ Π΄ΠΎΠΌΠΎΠ²Π»Π°Π΄Π΅Π»ΡΡΠ΅Π² ΡΠ²ΠΎΠ΅ΠΉ ΠΈΠ½ΡΠΈΠΌΠ½ΠΎΡΡΡΡ, Π±ΠΎΠ³Π°ΡΡΡΠ²ΠΎΠΌ ΠΈ ΡΡΠ²ΡΡΠ²ΠΎΠΌ ΠΏΡΠΈΠ½Π°Π΄Π»Π΅ΠΆΠ½ΠΎΡΡΠΈ. ΠΡ ΠΏΠΎΠ΄Π³ΠΎΡΠΎΠ²ΠΈΠ»ΠΈ ΠΏΠΎΠ»Π½ΡΡ ΠΊΠΎΠ»Π»Π΅ΠΊΡΠΈΡ ΠΏΠ»Π°Π½ΠΎΠ² Π΄ΠΎΠΌΠΎΠ² ΠΌΠ°ΡΡΠ΅ΡΠΎΠ², Π½Π΅ΠΊΠΎΡΠΎΡΡΠ΅ ΠΈΠ· ΠΊΠΎΡΠΎΡΡΡ Π²ΠΊΠ»ΡΡΠ°ΡΡ ΠΎΠ΄ΠΈΠ½ ΠΈΠ»ΠΈ Π΄Π²Π° Π³Π°ΡΠ°ΠΆΠ°, ΠΎΡ Π½Π΅Π±ΠΎΠ»ΡΡΠΈΡ Π΄ΠΎΠΌΠ°ΡΠ½ΠΈΡ Π΄ΠΈΠ·Π°ΠΉΠ½Π΅ΡΡΠΊΠΈΡ ΠΏΠ»Π°Π½ΠΎΠ² Π΄ΠΎ Π±ΠΎΠ»ΡΡΠΈΡ Π΄ΠΎΠΌΠΎΠ² Π΄Π»Ρ ΡΠ°ΠΌΡΡ ΡΠ°Π·Π½ΡΡ ΡΠΈΠΏΠΎΠ² ΡΡΠ°ΡΡΠΊΠΎΠ². ΠΡ Ρ Π³ΠΎΡΠ΄ΠΎΡΡΡΡ ΠΏΡΠ΅Π΄Π»Π°Π³Π°Π΅ΠΌ Π²Π°ΠΌ ΠΎΠ΄Π½ΠΈ ΠΈΠ· Π»ΡΡΡΠΈΡ Π΄ΠΎΠΌΠΎΠ² ΠΌΠ°ΡΡΠ΅ΡΠΎΠ², Π΄ΠΎΡΡΡΠΏΠ½ΡΡ Π² Π»ΡΠ±ΠΎΠΌ ΠΌΠ΅ΡΡΠ΅, ΠΏΠΎΡΠΊΠΎΠ»ΡΠΊΡ Π²Ρ ΡΠ±Π΅Π΄ΠΈΡΠ΅ΡΡ, ΡΡΠΎ ΠΎΠ½ΠΈ Π΄Π΅ΠΉΡΡΠ²ΠΈΡΠ΅Π»ΡΠ½ΠΎ ΡΠΎΠ²ΡΠ΅ΠΌΠ΅Π½Π½ΡΠ΅, Π½Π΅ΠΏΠΎΠ΄Π²Π»Π°ΡΡΠ½ΡΠ΅ Π²ΡΠ΅ΠΌΠ΅Π½ΠΈ ΠΈ ΠΏΡΠΈΠ³ΠΎΠ΄Π½ΡΠ΅ Π΄Π»Ρ ΠΆΠΈΠ·Π½ΠΈ.
ΠΠ»Π°Π½Ρ ΠΌΠ°Π»ΡΡ Π΄ΠΎΠΌΠΎΠ²
ΠΠΎΠ΄Π΅Π»ΡSmall Π΄Π»Ρ Π½Π°Ρ Π»ΡΡΡΠ΅ Π²ΡΠ΅Π³ΠΎ ΠΎΠΏΠΈΡΡΠ²Π°Π΅ΡΡΡ ΠΊΠ°ΠΊ Β«ΠΠΈΠ·Π°ΠΉΠ½ Π΄ΠΎΠΌΠ° ΠΏΠΎΠ΄Ρ ΠΎΠ΄ΡΡΠ΅Π³ΠΎ ΡΠ°Π·ΠΌΠ΅ΡΠ°Β». ΠΡΠ΄ΠΈ ΠΏΠΎΠ½ΠΈΠΌΠ°ΡΡ, ΡΡΠΎ ΡΠ°ΠΌΠΎΠ΅ Π³Π»Π°Π²Π½ΠΎΠ΅ Π² Π½ΠΎΠ²ΠΎΠΌ Π΄ΠΈΠ·Π°ΠΉΠ½Π΅ Π΄ΠΎΠΌΠ° — ΡΡΠΎ ΡΠΎ, ΡΡΠΎ Π² Π½Π΅ΠΌ Π΅ΡΡΡ Π²ΡΠ΅ Π½Π΅ΠΎΠ±Ρ ΠΎΠ΄ΠΈΠΌΠΎΠ΅ Π΄Π»Ρ ΠΊΠΎΠΌΡΠΎΡΡΠ½ΠΎΠ³ΠΎ, Π΄ΠΎΡΡΡΠΏΠ½ΠΎΠ³ΠΎ, Π±Π΅Π·ΠΎΠΏΠ°ΡΠ½ΠΎΠ³ΠΎ ΠΈ Π³ΠΎΡΠ΄ΠΎΠ³ΠΎ ΠΎΠ±ΡΠ°Π·Π° ΠΆΠΈΠ·Π½ΠΈ, ΠΊΠΎΡΠΎΡΡΠΉ ΡΠ°ΡΡΠΈΡΡΠ΅Ρ Π²ΠΎΠ·ΠΌΠΎΠΆΠ½ΠΎΡΡΠΈ, Π° Π½Π΅ ΠΎΠ±ΡΠ΅ΠΌΠ΅Π½ΡΠ΅Ρ. ΠΠ½ΠΈ ΠΎΠ³ΡΠΎΠΌΠ½ΡΡ ΠΏΠ»ΠΎΡΠ°Π΄Π΅ΠΉ ΠΈ ΡΡΠ΅Ρ Π³Π°ΡΠ°ΠΆΠ΅ΠΉ Π±Π΅Π· Π²ΡΡΠΊΠΎΠΉ Π½Π° ΡΠΎ Π²Π΅ΡΠΊΠΎΠΉ ΠΏΡΠΈΡΠΈΠ½Ρ, ΠΊΡΠΎΠΌΠ΅ ΠΊΠ°ΠΊ ΠΏΡΠΎΠΈΠ·Π²Π΅ΡΡΠΈ Π²ΠΏΠ΅ΡΠ°ΡΠ»Π΅Π½ΠΈΠ΅ Π½Π° ΠΎΠΊΡΡΠΆΠ°ΡΡΠΈΡ , Π±ΡΡΡΡΠΎ ΡΡ ΠΎΠ΄ΡΡ. Π‘ΠΎΠ²ΡΠ΅ΠΌΠ΅Π½Π½ΡΠ΅ ΠΏΠ»Π°Π½Ρ Π΄ΠΎΠΌΠΎΠ² Ρ ΡΠΌΠ½ΡΠΌΠΈ ΠΌΠ½ΠΎΠ³ΠΎΡΡΠΎΠ²Π½Π΅Π²ΡΠΌΠΈ ΡΠ°Π±Π»ΠΎΠ½Π°ΠΌΠΈ Π΄ΠΈΠ·Π°ΠΉΠ½Π° Π½Π°ΠΌΠ½ΠΎΠ³ΠΎ ΠΏΡΠΈΡΡΠ½Π΅Π΅ Π²Π»Π°Π΄Π΅ΡΡ ΠΈΠΌΠΈ ΠΈ, Π² ΠΊΠΎΠ½Π΅ΡΠ½ΠΎΠΌ ΠΈΡΠΎΠ³Π΅, ΠΆΠΈΡΡ Π² Π½ΠΈΡ .Π£ Π½Π°Ρ Π΅ΡΡΡ ΠΌΠΎΡΠ½ΠΎΠ΅ ΠΏΠΎΡΡΡΠΎΠ»ΠΈΠΎ, ΡΠΎΡΡΠΎΡΡΠ΅Π΅ ΠΈΠ· ΠΏΠ»Π°Π½ΠΎΠ² ΡΠΎΠ²ΡΠ΅ΠΌΠ΅Π½Π½ΡΡ Π½Π΅Π±ΠΎΠ»ΡΡΠΈΡ Π΄ΠΎΠΌΠΎΠ², ΡΡΠ°Π΄ΠΈΡΠΈΠΎΠ½Π½ΡΡ , ΡΠ΅ΠΌΠ΅ΡΠ»Π΅Π½Π½ΡΡ , Π΄ΠΎΠΌΠΎΠ² Π² ΠΏΡΠ΅ΡΠΈΡΡ ΠΈ ΡΠΎΠ²ΡΠ΅ΠΌΠ΅Π½Π½ΡΡ ΡΠ΅ΡΠΌΠ΅ΡΡΠΊΠΈΡ Π΄ΠΎΠΌΠΎΠ². ΠΡΠΈ Π΄ΠΎΠΌΠ° ΡΠ΄ΠΎΠ²Π»Π΅ΡΠ²ΠΎΡΡΡΡ ΡΠ°ΡΡΡΡΠΈΠ΅ ΠΏΠΎΡΡΠ΅Π±Π½ΠΎΡΡΠΈ ΠΎΡ ΠΌΠΎΠ»ΠΎΠ΄ΡΡ Π΄ΠΎΠΌΠΎΠ²Π»Π°Π΄Π΅Π»ΡΡΠ΅Π² ΠΊ ΠΏΠΎΠΆΠΈΠ»ΡΠΌ. ΠΡΠΎΠ²Π΅ΡΡΠΉΡΠ΅ ΡΠ΅Π³ΡΠ»ΡΡΠ½ΠΎ, ΡΠ°ΠΊ ΠΊΠ°ΠΊ Π½Π°ΡΠΈ ΡΠ½ΠΈΠΊΠ°Π»ΡΠ½ΡΠ΅ ΠΏΡΠΎΠ΅ΠΊΡΡ Π½Π΅Π±ΠΎΠ»ΡΡΠΈΡ Π΄ΠΎΠΌΠΎΠ² ΡΡΠ°Π½ΠΎΠ²ΡΡΡΡ Π²ΡΠ΅ Π±ΠΎΠ»ΡΡΠ΅ΠΉ ΡΠ°ΡΡΡΡ ΠΏΠΎΡΡΡΠΎΠ»ΠΈΠΎ ΠΠ°ΡΠΊΠ° Π‘ΡΡΠ°ΡΡΠ° ΠΏΠΎ Π΄ΠΎΠΌΠ°ΡΠ½Π΅ΠΌΡ Π΄ΠΈΠ·Π°ΠΉΠ½Ρ.
ΠΠ»Π°Π½Ρ Π΄ΠΎΠΌΠΎΠ² Π² ΠΊΠΎΡΡΠ΅Π΄ΠΆΠ΅
ΠΠ°ΡΠΈ ΠΏΠ»Π°Π½Ρ Π΄ΠΎΠΌΠΎΠ² ΡΠΎΠ²ΡΠ΅ΠΌΠ΅Π½Π½ΠΎΠΉ Π»ΠΎΠ΄ΠΆΠΈ Π²ΠΊΠ»ΡΡΠ°ΡΡ ΡΠΈΠ»ΡΠ½ΡΠ΅ ΠΈ Π·Π½Π°ΡΠΈΠΌΡΠ΅ ΡΠ»Π΅ΠΌΠ΅Π½ΡΡ, ΠΊΠΎΡΠΎΡΡΠ΅ ΡΠ°Π·Π΄Π΅Π»ΡΡΡ ΡΡΡΡΠΊΡΡΡΠ½ΡΠ΅ ΠΈ ΡΡΡΠ΅ΡΠΈΡΠ΅ΡΠΊΠΈΠ΅ ΠΎΠ±ΡΠ·Π°Π½Π½ΠΎΡΡΠΈ.ΠΡΠΈ Ρ Π°ΡΠ°ΠΊΡΠ΅ΡΠΈΡΡΠΈΠΊΠΈ, Π½Π°ΡΡΠ΄Ρ Ρ ΠΏΡΠΎΡΠ½ΠΎΠΉ Π΄Π²ΡΡΠΊΠ°ΡΠ½ΠΎΠΉ ΠΊΡΡΡΠ΅ΠΉ, ΠΊΡΡΠΏΠ½ΠΎΠ³Π°Π±Π°ΡΠΈΡΠ½ΠΎΠΉ ΠΎΡΠ΄Π΅Π»ΠΊΠΎΠΉ, ΡΠΌΠ΅ΠΆΠ½ΡΠΌΠΈ Π³Π°ΡΠ°ΠΆΠ°ΠΌΠΈ ΠΈ ΠΏΡΠΎΡΠ½ΡΠΌΠΈ ΡΡΠΆΠ΅Π»ΡΠΌΠΈ Π½Π°ΡΡΡΠ°Π»ΡΠ½ΡΠΌΠΈ ΠΌΠ°ΡΠ΅ΡΠΈΠ°Π»Π°ΠΌΠΈ, — Π²ΠΎΡ ΡΡΠΎ ΠΎΡΠ»ΠΈΡΠ°Π΅Ρ ΡΡΠΈΠ»Ρ Π»ΠΎΠ΄ΠΆΠ° ΠΎΡ Π²ΡΠ΅Π³ΠΎ ΠΎΡΡΠ°Π»ΡΠ½ΠΎΠ³ΠΎ. Π£ Π½Π°Ρ Π΅ΡΡΡ ΠΏΠΎΡΡΠΎΡΠ½Π½ΠΎ ΡΠ°ΡΡΡΡΠ°Ρ ΠΊΠΎΠ»Π»Π΅ΠΊΡΠΈΡ ΡΠ½ΠΈΠΊΠ°Π»ΡΠ½ΡΡ Π΄ΠΎΠΌΠΎΠ²-Π΄ΠΎΠΌΠΎΠ², ΡΡΠ°Π²ΡΠΈΡ ΡΡΠΏΠ΅ΡΠΏΠΎΠΏΡΠ»ΡΡΠ½ΡΠΌΠΈ Π² ΠΠ΅Π½Π΄Π΅, ΡΡΠ°Ρ ΠΡΠ΅Π³ΠΎΠ½. ΠΠ½ΠΎΠ³ΠΈΠ΅ ΠΈΠ· Π½ΠΈΡ Ρ 2 ΠΈΠ»ΠΈ 3 Π³Π°ΡΠ°ΠΆΠ°ΠΌΠΈ ΠΈΠ· Π½Π°ΡΠ΅ΠΉ ΠΎΠ±ΡΠΈΡΠ½ΠΎΠΉ ΠΊΠΎΠ»Π»Π΅ΠΊΡΠΈΠΈ Rustic Central Oregon House Design. ΠΡΠΎΠ²Π΅ΡΡΠΉΡΠ΅ Π½Π°ΡΡ ΠΎΠ±ΡΠΈΡΠ½ΡΡ ΠΊΠΎΠ»Π»Π΅ΠΊΡΠΈΡ Π΄ΠΎΠΌΠ°ΡΠ½ΠΈΡ Π΄ΠΈΠ·Π°ΠΉΠ½ΠΎΠ² Π»ΠΎΠ΄ΠΆΠ΅ΠΉ, ΠΏΠΎΡΠΊΠΎΠ»ΡΠΊΡ ΡΡΠΎ ΡΠ°ΡΡΡΡΠ°Ρ ΡΠ°ΡΡΡ Π½Π°ΡΠ΅Π³ΠΎ ΠΏΠΎΡΡΡΠΎΠ»ΠΈΠΎ Π΄ΠΎΠΌΠ°ΡΠ½Π΅Π³ΠΎ Π΄ΠΈΠ·Π°ΠΉΠ½Π°.
ΠΡΠ±ΠΈΠΌΡΠΉ Π΄ΠΈΠ·Π°ΠΉΠ½ Π΄ΠΎΠΌΠ° ΡΡΡΠΎΠΈΡΠ΅Π»ΡΠΌΠΈ
Π Π΄ΡΡΠ΅ ΠΊΠ°ΠΆΠ΄ΠΎΠ³ΠΎ ΠΈΠ· ΡΡΠΈΡ ΠΏΡΠΎΠ΅ΠΊΡΠΎΠ² Π΄ΠΎΠΌΠ° Π΅ΡΡΡ ΡΡΠΎ-ΡΠΎ, ΡΡΠΎ ΠΏΡΠΎΠ΄ΠΎΠ»ΠΆΠ°Π΅Ρ ΡΠ΄ΠΎΠ²Π»Π΅ΡΠ²ΠΎΡΡΡΡ ΡΠ΅Π»ΠΈ ΡΡΡΠΎΠΈΡΠ΅Π»Π΅ΠΉ ΠΈ ΠΏΠΎΠΊΡΠΏΠ°ΡΠ΅Π»Π΅ΠΉ ΠΆΠΈΠ»ΡΡ.ΠΡ ΠΏΡΠΎΠ΄ΠΎΠ»ΠΆΠΈΠΌ ΠΏΠΎΠΏΠΎΠ»Π½ΡΡΡ ΡΡΡ ΠΊΠΎΠ»Π»Π΅ΠΊΡΠΈΡ ΠΏΠ»Π°Π½ΠΎΠ² Π΄ΠΎΠΌΠ° ΠΏΠΎ ΠΌΠ΅ΡΠ΅ ΡΠΎΡΡΠ° Π½Π°ΡΠ΅Π³ΠΎ ΠΏΠΎΡΡΠΎΡΠ½Π½ΠΎ ΡΠ°ΡΡΠΈΡΡΡΡΠ΅Π³ΠΎΡΡ ΠΏΠΎΡΡΡΠΎΠ»ΠΈΠΎ. ΠΡ ΠΎΡΠ½ΠΎΠ²Π°Π»ΠΈ ΡΡΡ ΠΊΠΎΠΌΠΏΠ°Π½ΠΈΡ Π½Π° ΠΎΡΠ½ΠΎΠ²Π΅ ΠΎΡΠΎΠ±ΠΎΠ³ΠΎ Π΄ΠΈΠ·Π°ΠΉΠ½Π° Π΄ΠΎΠΌΠ° Π΄Π»Ρ ΠΊΠ°ΡΠ΅ΡΡΠ²Π΅Π½Π½ΡΡ Π΄ΠΎΠΌΠΎΡΡΡΠΎΠΈΡΠ΅Π»Π΅ΠΉ ΠΈ ΡΠ°Π΄Ρ ΠΏΠΎΠ΄Π΅Π»ΠΈΡΡΡΡ Ρ Π²Π°ΠΌΠΈ Π»ΡΡΡΠΈΠΌΠΈ ΠΈΠ· Π»ΡΡΡΠΈΡ . ΠΡΠΈ ΠΏΠ»Π°Π½Ρ Π΄ΠΎΠΌΠΎΠ², Π² ΡΠ°ΡΡΠ½ΠΎΡΡΠΈ, Π±ΡΠ»ΠΈ ΠΎΡΠ΅Π½Ρ ΠΏΠΎΠΏΡΠ»ΡΡΠ½Ρ ΡΡΠ΅Π΄ΠΈ ΡΡΡΠΎΠΈΡΠ΅Π»Π΅ΠΉ ΠΎΠ΄Π½ΠΎΡΠ΅ΠΌΠ΅ΠΉΠ½ΡΡ Π΄ΠΎΠΌΠΎΠ² ΠΈ ΠΏΡΠΎΠ΄ΠΎΠ»ΠΆΠ°ΡΡ ΡΠΊΡΠ°ΡΠ°ΡΡ Π»Π°Π½Π΄ΡΠ°ΡΡ Π½Π° Π²ΡΠ΅ΠΉ ΡΠ΅ΡΡΠΈΡΠΎΡΠΈΠΈ Π‘ΠΎΠ΅Π΄ΠΈΠ½Π΅Π½Π½ΡΡ Π¨ΡΠ°ΡΠΎΠ² ΠΈ ΠΠ°Π½Π°Π΄Ρ. ΠΠ΅Π»Π°ΠΉΡΠ΅ ΠΏΠΎΠΊΡΠΏΠΊΠΈ Π² Π½Π°ΡΠ΅ΠΌ ΡΠ°Π·Π΄Π΅Π»Π΅ Β«ΠΡΠ±ΠΈΠΌΡΠ΅ ΡΡΡΠΎΠΈΡΠ΅Π»ΠΈΒ» ΡΠ΅Π³ΡΠ»ΡΡΠ½ΠΎ, ΡΠ°ΠΊ ΠΊΠ°ΠΊ ΠΌΡ ΠΏΠΎΡΡΠΎΡΠ½Π½ΠΎ ΡΠ°Π±ΠΎΡΠ°Π΅ΠΌ Π½Π°Π΄ ΡΡΠΎΠΉ ΡΠΎΠ²ΡΠ΅ΠΌΠ΅Π½Π½ΠΎΠΉ ΠΊΠΎΠ»Π»Π΅ΠΊΡΠΈΠ΅ΠΉ ΠΏΠ»Π°Π½ΠΎΠ² Π΄ΠΎΠΌΠ°.
ΠΠ½Π΄ΠΈΠ²ΠΈΠ΄ΡΠ°Π»ΡΠ½ΡΠ΅ ΠΏΠ»Π°Π½Ρ Π΄ΠΎΠΌΠ°
ΠΡ ΠΏΠΎΠ»ΡΡΠΈΠ»ΠΈ ΠΎΠ³ΡΠΎΠΌΠ½ΠΎΠ΅ ΡΠ΄ΠΎΠ²ΠΎΠ»ΡΡΡΠ²ΠΈΠ΅ ΡΠΎΠ·Π΄Π°ΡΡ ΡΡΡΡΡΠΈ Π²ΡΡΠΎΠΊΠΎΠΊΠ°ΡΠ΅ΡΡΠ²Π΅Π½Π½ΡΡ , Π½ΠΎΠ²Π°ΡΠΎΡΡΠΊΠΈΡ ΠΈ ΡΠ½ΠΈΠΊΠ°Π»ΡΠ½ΡΡ ΠΏΡΠΎΠ΅ΠΊΡΠΎΠ² ΡΠΎΠ²ΡΠ΅ΠΌΠ΅Π½Π½ΠΎΠ³ΠΎ Π΄ΠΈΠ·Π°ΠΉΠ½Π° Π΄ΠΎΠΌΠΎΠ².ΠΡ ΡΡΠ°ΡΠ΅Π»ΡΠ½ΠΎ ΠΏΡΠΎΠ°Π½Π°Π»ΠΈΠ·ΠΈΡΠΎΠ²Π°Π»ΠΈ Π½Π°ΡΡ ΠΊΠΎΠ»Π»Π΅ΠΊΡΠΈΡ ΠΈ ΠΏΠΎΠ΄Π΅Π»ΠΈΠ»ΠΈΡΡ Π»ΡΡΡΠΈΠΌΠΈ ΠΈ Π²Π΄ΠΎΡ Π½ΠΎΠ²Π»ΡΡΡΠΈΠΌΠΈ Π΄ΠΈΠ·Π°ΠΉΠ½Π°ΠΌΠΈ Π² ΠΊΠ°ΡΠ΅ΡΡΠ²Π΅ ΡΡΠ°Π½Π΄Π°ΡΡΠ½ΡΡ ΠΏΠ»Π°Π½ΠΎΠ² Π΄ΠΎΠΌΠ°. ΠΠ΅ΠΊΠΎΡΠΎΡΡΠ΅ ΠΈΠ· ΡΡΠΈΡ Π΄ΠΎΠΌΠ°ΡΠ½ΠΈΡ ΠΏΡΠΎΠ΅ΠΊΡΠΎΠ² Π±ΡΠ»ΠΈ ΠΏΡΠ΅Π΄ΡΡΠ°Π²Π»Π΅Π½Ρ Π² Π½Π°ΡΠ΅ΠΉ ΠΊΠΎΠ»Π»Π΅ΠΊΡΠΈΠΈ ΠΏΡΠΎΠ΅ΠΊΡΠΎΠ² Π½Π΅Π±ΠΎΠ»ΡΡΠΈΡ Π΄ΠΎΠΌΠΎΠ². ΠΠΎ Π΄ΠΎΡΡΡΠΏΠ½ΠΎΠΉ ΡΠ΅Π½Π΅ Π²Ρ ΠΌΠΎΠΆΠ΅ΡΠ΅ ΠΏΡΠΈΠΎΠ±ΡΠ΅ΡΡΠΈ ΠΈ ΠΏΠΎΡΡΡΠΎΠΈΡΡ ΡΠ²ΠΎΠΉ Π΄ΠΎΠΌ ΠΈΠ· ΡΡΠΎΠΉ ΠΊΠΎΠ»Π»Π΅ΠΊΡΠΈΠΈ Π½Π΅ΡΡΠ°Π½Π΄Π°ΡΡΠ½ΠΎΠ³ΠΎ Π΄ΠΈΠ·Π°ΠΉΠ½Π°. ΠΡ ΠΌΠΎΠΆΠ΅ΡΠ΅ ΠΈΡΠΏΠΎΠ»ΡΠ·ΠΎΠ²Π°ΡΡ ΡΠ΅Π·ΡΠ»ΡΡΠ°ΡΡ ΡΠΎΡΠ΅Π½ ΡΠ°ΡΠΎΠ² ΠΊΡΠΎΠΏΠΎΡΠ»ΠΈΠ²ΠΎΠΉ ΡΠ°Π±ΠΎΡΡ ΠΏΠΎ ΠΏΡΠΎΠ΅ΠΊΡΠΈΡΠΎΠ²Π°Π½ΠΈΡ, ΠΊΠΎΡΠΎΡΠ°Ρ Π²Ρ ΠΎΠ΄ΠΈΡ Π² ΠΊΠ°ΠΆΠ΄ΡΠΉ ΠΏΠ»Π°Π½ ΡΠΎΠ²ΡΠ΅ΠΌΠ΅Π½Π½ΠΎΠ³ΠΎ Π΄ΠΎΠΌΠ°, ΠΊΠΎΡΠΎΡΡΠΉ ΠΌΡ ΠΏΡΠΎΠΈΠ·Π²ΠΎΠ΄ΠΈΠΌ.
Π§ΡΠΎΠ±Ρ ΠΏΡΠΎΡΠΌΠΎΡΡΠ΅ΡΡ Π²ΡΡ Π½Π°ΡΡ ΠΊΠΎΠ»Π»Π΅ΠΊΡΠΈΡ ΠΏΠ»Π°Π½ΠΎΠ² ΠΈ ΠΏΡΠΎΠ΅ΠΊΡΠΎΠ² Π΄ΠΎΠΌΠΎΠ² Ρ ΡΠΎΡΠΎΠ³ΡΠ°ΡΠΈΡΠΌΠΈ, ΡΠ΅Π»ΠΊΠ½ΠΈΡΠ΅ Π·Π΄Π΅ΡΡ.
Π§ΡΠΎ Π²Ρ ΠΎΠ΄ΠΈΡ Π² Π½Π°Π±ΠΎΡ ΠΏΠ»Π°Π½ΠΎΠ² Π΄ΠΎΠΌΠ°?
ΠΠ»Π°Π½ ΠΊΠ°ΠΆΠ΄ΠΎΠ³ΠΎ Π΄ΠΎΠΌΠ°, ΠΊΠΎΡΠΎΡΡΠΉ ΠΌΡ ΡΠΎΠ·Π΄Π°Π΅ΠΌ, ΠΎΠ±ΡΡΡΠ½ΡΠ΅ΡΡΡ ΠΎΡΠ΅Π½Ρ ΠΏΠΎΠ΄ΡΠΎΠ±Π½ΠΎ. ΠΡ Π²ΠΊΠ»ΡΡΠ°Π΅ΠΌ Π²ΡΠ΅ Π΄Π΅ΡΠ°Π»ΠΈ, ΠΊΠΎΡΠΎΡΡΠ΅ ΠΌΡ Ρ ΠΎΡΠ΅Π»ΠΈ Π±Ρ Π²ΠΊΠ»ΡΡΠΈΡΡ Π² Π½Π°Π±ΠΎΡ ΠΏΠ»Π°Π½ΠΎΠ², Π΅ΡΠ»ΠΈ Π±Ρ ΡΡΡΠΎΠΈΠ»ΠΈ Π΄ΠΎΠΌ Π΄Π»Ρ ΡΠ΅Π±Ρ.
Π§ΡΠΎ Π²Ρ ΠΎΠ΄ΠΈΡ Π² Π½Π°Π±ΠΎΡ ΠΏΠ»Π°Π½ΠΎΠ², ΡΠΏΡΠΎΡΠΈΡΠ΅ Π²Ρ? ΠΡ Π·Π°Π½ΠΈΠΌΠ°Π΅ΠΌΡΡ ΠΏΡΠΎΠ΅ΠΊΡΠΈΡΠΎΠ²Π°Π½ΠΈΠ΅ΠΌ Π΄ΠΎΠΌΠΎΠ² Ρ Π½ΡΠ»Ρ ΠΈ Π·Π½Π°Π΅ΠΌ, ΡΡΠΎ ΡΡΠΎ Π΄ΠΎΠ²ΠΎΠ»ΡΠ½ΠΎ Π±ΠΎΠ»ΡΡΠΎΠΉ ΠΏΡΠΎΠ΅ΠΊΡ Π΄Π»Ρ Π½Π°ΡΠΈΡ ΠΊΠ»ΠΈΠ΅Π½ΡΠΎΠ². ΠΠ΅ ΡΠ°ΡΡΡΡΠ°ΠΈΠ²Π°ΠΉΡΠ΅ΡΡ, ΠΏΠΎΠΊΡΠΏΠ°Ρ ΠΏΠ»Π°Π½ Π΄ΠΎΠΌΠ°! ΠΡ Π·Π΄Π΅ΡΡ, ΡΡΠΎΠ±Ρ ΡΠ°Π·ΠΎΠ±ΡΠ°ΡΡ ΡΡΠΎ Π΄Π»Ρ Π²Π°Ρ. ΠΠΎ-ΠΏΠ΅ΡΠ²ΡΡ , ΡΠ΅ΡΠΈΡΠ΅, ΠΊΠ°ΠΊΠΎΠΉ ΡΠΎΡΠΌΠ°Ρ ΠΏΠ»Π°Π½Π° Π²Ρ Ρ ΠΎΡΠΈΡΠ΅ Π·Π°ΠΊΠ°Π·Π°ΡΡ.ΠΠΎΡΠ»Π΅ ΡΠΎΠ²Π΅ΡΡΠ΅Π½ΠΈΡ ΠΏΠΎΠΊΡΠΏΠΊΠΈ Π²Ρ ΠΏΠΎΠ»ΡΡΠΈΡΠ΅:
Π’ΠΈΡΡΠ»ΡΠ½ΡΠΉ Π»ΠΈΡΡ, ΡΠΊΠ°Π·Π°ΡΠ΅Π»Ρ ΠΈ ΠΏΠ»Π°Π½ ΠΎΠ±ΡΠ΅ΠΊΡΠ°
ΠΠ° ΡΠΈΡΡΠ»ΡΠ½ΠΎΠΌ Π»ΠΈΡΡΠ΅ ΠΈΠ·ΠΎΠ±ΡΠ°ΠΆΠ΅Π½ ΡΠ°ΡΠ°Π΄ Π΄ΠΎΠΌΠ°, ΠΊΠΎΡΠΎΡΡΠΉ ΠΏΡΠΈΠ±Π»ΠΈΠ·ΠΈΡΠ΅Π»ΡΠ½ΠΎ ΠΏΠΎΠΊΠ°Π·ΡΠ²Π°Π΅Ρ, ΠΊΠ°ΠΊ Π΄ΠΎΠΌ Π±ΡΠ΄Π΅Ρ Π²ΡΠ³Π»ΡΠ΄Π΅ΡΡ ΠΏΠΎΡΠ»Π΅ ΠΏΠΎΡΡΡΠΎΠΉΠΊΠΈ. Π ΡΠΊΠ°Π·Π°ΡΠ΅Π»Π΅ ΡΠΊΠ°Π·Π°Π½ ΠΏΠΎΡΡΠ΄ΠΎΠΊ Π²ΠΊΠ»ΡΡΠ΅Π½Π½ΡΡ ΡΠ΅ΡΡΠ΅ΠΆΠ΅ΠΉ Ρ Π½ΠΎΠΌΠ΅ΡΠ°ΠΌΠΈ ΡΡΡΠ°Π½ΠΈΡ Π΄Π»Ρ ΡΠ΄ΠΎΠ±ΡΡΠ²Π°. ΠΠ»Π°Π½ ΡΡΠ°ΡΡΠΊΠ° ΠΏΡΠ΅Π΄ΡΡΠ°Π²Π»ΡΠ΅Ρ ΡΠΎΠ±ΠΎΠΉ ΠΌΠ°ΡΡΡΠ°Π±ΠΈΡΠΎΠ²Π°Π½Π½ΡΠΉ ΠΎΡΠΏΠ΅ΡΠ°ΡΠΎΠΊ Π΄ΠΎΠΌΠ°, ΠΊΠΎΡΠΎΡΡΠΉ ΠΏΠΎΠΌΠΎΠ³Π°Π΅Ρ ΠΎΠΏΡΠ΅Π΄Π΅Π»ΠΈΡΡ, ΠΊΠ°ΠΊ Π΄ΠΎΠΌ Π±ΡΠ΄Π΅Ρ ΡΠ°Π·ΠΌΠ΅ΡΠ΅Π½ Π½Π° ΡΡΡΠΎΠΈΡΠ΅Π»ΡΠ½ΠΎΠΉ ΠΏΠ»ΠΎΡΠ°Π΄ΠΊΠ΅.
Π‘Π΅ΠΊΡΠΈΠΈ Π½Π° ΡΡΠ΅Π½Π΅ ΠΈ ΠΏΡΠΈΠΌΠ΅ΡΠ°Π½ΠΈΡ
Π ΡΡΠΎΠΌ ΡΠ°Π·Π΄Π΅Π»Π΅ ΠΏΠΎΠΊΠ°Π·Π°Π½Ρ ΡΠ°Π·ΡΠ΅Π·Ρ Π²Π½Π΅ΡΠ½Π΅ΠΉ ΡΡΠ΅Π½Ρ ΠΎΡ ΠΊΡΡΡΠΈ Π΄ΠΎ ΡΡΠ½Π΄Π°ΠΌΠ΅Π½ΡΠ°.ΠΡΠΈ ΡΡΠ°ΡΡΠΊΠΈ ΡΡΠ΅Π½ ΠΎΠΏΡΠ΅Π΄Π΅Π»ΡΡΡ ΠΊΠΎΠ½ΡΡΡΡΠΊΡΠΈΡ Π΄ΠΎΠΌΠ° ΠΈ ΡΡΡΠΎΠΈΡΠ΅Π»ΡΠ½ΡΠ΅ ΠΌΠ°ΡΠ΅ΡΠΈΠ°Π»Ρ. Π’Π°ΠΊΠΆΠ΅ ΠΎΠ½ΠΈ ΠΏΠΎΠΊΠ°Π·ΡΠ²Π°ΡΡ ΠΊΠΎΠ»ΠΈΡΠ΅ΡΡΠ²ΠΎ ΡΡΠ°ΠΆΠ΅ΠΉ, ΡΠΈΠΏ ΡΡΠ½Π΄Π°ΠΌΠ΅Π½ΡΠ° ΠΈ ΠΊΠΎΠ½ΡΡΡΡΠΊΡΠΈΡ ΡΡΠ΅Π½. ΠΠΎΠΊΠ°Π·Π°Π½Ρ ΠΈ ΡΠΊΠ°Π·Π°Π½Ρ ΠΊΡΠΎΠ²Π΅Π»ΡΠ½ΡΠ΅ ΠΌΠ°ΡΠ΅ΡΠΈΠ°Π»Ρ, ΠΈΠ·ΠΎΠ»ΡΡΠΈΡ, ΠΎΠ±ΡΠ°ΠΌΠ»Π΅Π½ΠΈΠ΅ ΠΏΠΎΠ»ΠΎΠ², ΠΎΡΠ΄Π΅Π»ΠΊΠ° ΡΡΠ΅Π½ ΠΈ Π²ΡΡΠΎΡΠ° ΡΠ°ΡΠ°Π΄Π°.
Π’ΠΈΠΏΠΈΡΠ½ΡΠ΅ Π΄Π΅ΡΠ°Π»ΠΈ ΠΈ ΠΏΡΠΈΠΌΠ΅ΡΠ°Π½ΠΈΡ
Π ΡΡΠΎΠΌ ΡΠ°Π·Π΄Π΅Π»Π΅ ΡΠ°ΡΡΠΌΠ°ΡΡΠΈΠ²Π°ΡΡΡΡ Π²ΡΠ΅ Π°ΡΠΏΠ΅ΠΊΡΡ ΠΈ ΡΠΈΠΏΠΈΡΠ½ΡΠ΅ Π΄Π΅ΡΠ°Π»ΠΈ, ΠΊΠΎΡΠΎΡΡΠ΅ Π²Ρ Π·Π°Ρ ΠΎΡΠΈΡΠ΅ Π²ΠΊΠ»ΡΡΠΈΡΡ Π² ΡΠ²ΠΎΠΉ Π΄ΠΎΠΌ, Π·Π° ΠΈΡΠΊΠ»ΡΡΠ΅Π½ΠΈΠ΅ΠΌ ΡΡΠ΅Π±ΠΎΠ²Π°Π½ΠΈΠΉ ΠΌΠ΅ΡΡΠ½ΡΡ ΡΡΡΠΎΠΈΡΠ΅Π»ΡΠ½ΡΡ Π½ΠΎΡΠΌ ΠΈ ΠΏΡΠ°Π²ΠΈΠ».ΠΠΎΠ΄ΡΠΎΠ±Π½ΠΎ ΠΎΠΏΠΈΡΠ°Π½Ρ Π°ΡΡ ΠΈΡΠ΅ΠΊΡΡΡΠ½ΡΠ΅ ΠΈ ΡΡΡΡΠΊΡΡΡΠ½ΡΠ΅ ΡΠ»Π΅ΠΌΠ΅Π½ΡΡ, Π² ΡΠΎΠΌ ΡΠΈΡΠ»Π΅: ΠΎΠΊΠΎΠ½Π½ΡΠ΅ ΠΈ Π΄Π²Π΅ΡΠ½ΡΠ΅ ΠΊΠΎΠΌΠΏΠΎΠ½Π΅Π½ΡΡ, ΠΏΠ΅ΡΠΈΠ»Π°, Π±Π°Π»ΡΡΠΈΠ½Ρ, Π΄Π΅ΡΠ΅Π²ΡΠ½Π½ΡΠ΅ Π»Π΅ΡΡΠ½ΠΈΡΡ ΠΈ ΠΊΠΎΠ»Π»Π΅ΠΊΡΠΎΡΡ, Π²Π½ΡΡΡΠ΅Π½Π½ΠΈΠ΅ ΡΡΠ΅Π½Ρ, Π²Π½ΡΡΡΠ΅Π½Π½ΠΈΠ΅ ΠΏΠ΅ΡΠ΅Π³ΠΎΡΠΎΠ΄ΠΊΠΈ, Π±Π΅ΡΠΎΠ½Π½ΡΠ΅ ΡΡΡΠΏΠ΅Π½ΠΈ ΠΈ ΠΎΠΏΠΎΡΡ (, Π΅ΡΠ»ΠΈ ΠΏΡΠΈΠΌΠ΅Π½ΠΈΠΌΠΎ, ).
ΠΠ»Π°Π½ ΡΠ°ΡΠΏΠΎΠ»ΠΎΠΆΠ΅Π½ΠΈΡ ΡΡΠ½Π΄Π°ΠΌΠ΅Π½ΡΠ°
ΠΠ° ΡΡΠΎΠΌ Π»ΠΈΡΡΠ΅ ΠΏΡΠ΅Π΄ΡΡΠ°Π²Π»Π΅Π½ ΠΏΠ»Π°Π½ ΡΡΠ½Π΄Π°ΠΌΠ΅Π½ΡΠ° Ρ ΡΠΊΠ°Π·Π°Π½ΠΈΠ΅ΠΌ ΡΠ°Π·ΠΌΠ΅ΡΠΎΠ² ΠΈ ΡΠΊΠ°Π·Π°Π½ΠΈΠ΅ΠΌ ΡΠ°Π·ΠΌΠ΅ΡΠΎΠ², Π²ΠΊΠ»ΡΡΠ°Ρ ΡΡΡΠ»ΠΊΠΈ Π½Π° ΠΎΠΏΠΎΡΡ, ΠΎΠΏΠΎΡΡ ΠΈ ΠΎΠΏΠΎΡΠ½ΡΠ΅ ΡΡΠ΅Π½Ρ. ΠΠ° ΠΏΠ»Π°Π½Π°Ρ Ρ ΠΏΠΎΠ΄Π²Π°Π»ΠΎΠΌ ΠΌΠΎΠ³ΡΡ Π±ΡΡΡ ΠΏΠΎΠΊΠ°Π·Π°Π½Ρ Π΄ΠΎΠΏΠΎΠ»Π½ΠΈΡΠ΅Π»ΡΠ½ΡΠ΅ ΡΡΠ΅Π½Ρ ΠΈ ΠΊΠΎΠ»ΠΎΠ½Π½Ρ.ΠΠ»Π°Π½Ρ ΡΠΎΠΊΠΎΠ»ΡΠ½ΠΎΠ³ΠΎ ΡΡΠ°ΠΆΠ° ΡΠΎΠ΄Π΅ΡΠΆΠ°Ρ ΠΏΠ»Π°Π½ ΠΊΠ°ΡΠΊΠ°ΡΠ° ΡΡΠ°ΠΆΠ°, ΠΊΠΎΡΠΎΡΡΠΉ ΠΌΠΎΠΆΠ΅Ρ Π±ΡΡΡ Π²ΠΊΠ»ΡΡΠ΅Π½ Π² ΡΡΡ ΡΠ΅ΠΊΡΠΈΡ ΠΈΠ»ΠΈ ΡΠ΅ΠΊΡΠΈΡ ΠΊΠ°ΡΠΊΠ°ΡΠ° ΠΏΠΎΠ»Π°, Π² Π·Π°Π²ΠΈΡΠΈΠΌΠΎΡΡΠΈ ΠΎΡ ΠΏΠ»Π°Π½Π°. Π€Π°ΠΊΡΠΈΡΠ΅ΡΠΊΠ°Ρ ΡΡΡΡΠΊΡΡΡΠ½Π°Ρ ΠΈΠ½ΡΠΎΡΠΌΠ°ΡΠΈΡ Π΄ΠΎΠ»ΠΆΠ½Π° Π±ΡΡΡ ΠΏΠΎΠ»ΡΡΠ΅Π½Π° ΠΌΠ΅ΡΡΠ½ΡΠΌ Π»ΠΈΡΠ΅Π½Π·ΠΈΡΠΎΠ²Π°Π½Π½ΡΠΌ ΠΈΠ½ΠΆΠ΅Π½Π΅ΡΠΎΠΌ Π΄Π»Ρ Π²Π°ΡΠ΅Π³ΠΎ ΠΊΠΎΠ½ΠΊΡΠ΅ΡΠ½ΠΎΠ³ΠΎ ΠΌΠ΅ΡΡΠΎΠΏΠΎΠ»ΠΎΠΆΠ΅Π½ΠΈΡ.
ΠΠ΅ΡΠ°Π»ΡΠ½ΡΠΉ ΠΏΠ»Π°Π½ ΡΡΠ°ΠΆΠ°
Π ΡΡΠΎΠΌ ΡΠ°Π·Π΄Π΅Π»Π΅ ΠΏΡΠ΅Π΄ΡΡΠ°Π²Π»Π΅Π½Ρ ΠΏΠΎΠ΄ΡΠΎΠ±Π½ΡΠ΅ ΡΠ΅ΡΡΠ΅ΠΆΠΈ ΠΏΠ»Π°Π½Π° ΡΡΠ°ΠΆΠ° ΠΈ ΠΎΠΏΠΈΡΠ°Π½ΠΈΡ Π²ΡΠ΅Ρ ΡΠ»Π΅ΠΌΠ΅Π½ΡΠΎΠ², ΠΊΠΎΡΠΎΡΡΠ΅ Π±ΡΠ΄ΡΡ ΡΠ°Π·ΠΌΠ΅ΡΠ΅Π½Ρ Π½Π° ΠΊΠ°ΠΆΠ΄ΠΎΠΌ ΡΡΠ°ΠΆΠ΅ Π΄ΠΎΠΌΠ°. ΠΠ½Π΅ΡΠ½ΠΈΠΉ Π²ΠΈΠ΄ Π΄ΠΎΠΌΠ°, ΠΏΡΠΎΠ΅ΠΌΡ ΠΈ Π²Π½ΡΡΡΠ΅Π½Π½ΠΈΠ΅ ΠΏΠΎΠΌΠ΅ΡΠ΅Π½ΠΈΡ ΡΡΠ°ΡΠ΅Π»ΡΠ½ΠΎ ΡΠ°ΡΡΡΠΈΡΠ°Π½Ρ.ΠΡΠΌΠ΅ΡΠ΅Π½Ρ Π²Π°ΠΆΠ½ΡΠ΅ ΠΎΡΠΎΠ±Π΅Π½Π½ΠΎΡΡΠΈ, Π²ΠΊΠ»ΡΡΠ°Ρ Π²ΡΡΡΠΎΠ΅Π½Π½ΡΠ΅ ΠΌΠΎΠ΄ΡΠ»ΠΈ, Π½ΠΈΡΠΈ ΠΈ Π±ΡΡΠΎΠ²ΡΡ ΡΠ΅Ρ Π½ΠΈΠΊΡ. ΠΡΠ΅ Π΄Π²Π΅ΡΠΈ ΠΈ ΠΎΠΊΠ½Π° ΠΈΠ΄Π΅Π½ΡΠΈΡΠΈΡΠΈΡΠΎΠ²Π°Π½Ρ. ΠΠ±ΡΡΠ½ΠΎ ΡΡΠΎΡ ΡΠ°Π·Π΄Π΅Π» ΡΠ°ΠΊΠΆΠ΅ Π²ΠΊΠ»ΡΡΠ°Π΅Ρ ΠΈΠ½ΡΠΎΡΠΌΠ°ΡΠΈΡ ΠΎ ΠΏΠ»ΠΎΡΠ°Π΄ΠΈ Π² ΠΊΠ²Π°Π΄ΡΠ°ΡΠ½ΡΡ ΡΡΡΠ°Ρ .
ΠΡΡΠ°ΠΆΠ΅Π½Π½ΡΠΉ ΠΏΠ»Π°Π½ ΠΏΠΎΡΠΎΠ»ΠΊΠ°
ΠΠ΄Π½Π° ΠΈΠ· ΡΠ°ΠΌΡΡ ΠΎΡΠ»ΠΈΡΠΈΡΠ΅Π»ΡΠ½ΡΡ ΡΠ΅ΡΡ Π΄ΠΎΠΌΠ° Sater — ΡΡΠΎ ΡΡΠ°ΡΠ΅Π»ΡΠ½ΠΎ ΠΏΡΠΎΠ΄ΡΠΌΠ°Π½Π½Π°Ρ ΠΎΡΠ΄Π΅Π»ΠΊΠ° ΠΏΠΎΡΠΎΠ»ΠΊΠ°. Π ΡΡΠΎΠΌ ΡΠ°Π·Π΄Π΅Π»Π΅ ΠΏΠΎΠΊΠ°Π·Π°Π½Ρ Π²ΡΡΠΎΡΠ° ΠΏΠΎΡΠΎΠ»ΠΊΠ° ΠΈ ΡΠΏΠΎΡΠΎΠ±Ρ ΠΎΠ±ΡΠ°Π±ΠΎΡΠΊΠΈ. ΠΠ½ ΡΠ°ΠΊΠΆΠ΅ ΠΏΠΎΠΊΠ°Π·ΡΠ²Π°Π΅Ρ Π΄Π΅ΡΠ°Π»ΠΈ, ΠΏΡΠΎΡΠΈΠ»ΠΈ ΠΈ ΠΎΡΠ΄Π΅Π»ΠΊΡ ΠΏΠΎΡΠΎΠ»ΠΊΠ°. Π’Π°ΠΊΠΆΠ΅ Π² ΡΡΠΎΠΌ ΡΠ°Π·Π΄Π΅Π»Π΅ ΡΠΊΠ°Π·Π°Π½Ρ Π°ΡΠΊΠΈ ΠΈ ΠΏΠ΅ΡΠ΅ΠΊΡΡΡΠΈΡ.
ΠΠ»Π°Π½ ΠΏΠ΅ΡΠ΅ΠΊΡΡΡΠΈΡ
Π Π΄ΠΎΠΌΠ°Ρ Ρ ΡΠΎΠΊΠΎΠ»ΡΠ½ΡΠΌ ΠΈΠ»ΠΈ ΠΏΠΎΠ΄Π²Π°Π»ΡΠ½ΡΠΌ ΠΏΠΎΠΌΠ΅ΡΠ΅Π½ΠΈΠ΅ΠΌ Π±ΡΠ΄Π΅Ρ ΠΏΡΠ΅Π΄ΡΡΠΌΠΎΡΡΠ΅Π½ ΠΏΠ»Π°Π½ ΠΊΠ°ΡΠΊΠ°ΡΠ° ΠΏΠ΅ΡΠ²ΠΎΠ³ΠΎ ΡΡΠ°ΠΆΠ°. Π ΠΌΠ½ΠΎΠ³ΠΎΡΡΠ°ΠΆΠ½ΡΡ Π΄ΠΎΠΌΠ°Ρ Π±ΡΠ΄ΡΡ ΠΏΡΠ΅Π΄ΡΡΠΌΠΎΡΡΠ΅Π½Ρ ΠΏΠ»Π°Π½Ρ ΠΊΠ°ΡΠΊΠ°ΡΠ° ΡΡΠ°ΠΆΠ΅ΠΉ ΠΈ Π²Π΅ΡΡ Π½ΠΈΡ ΡΡΠ°ΠΆΠ΅ΠΉ. ΠΠ»Π°Π½Ρ ΠΊΠ°ΡΠΊΠ°ΡΠ° ΡΡΠ°ΠΆΠ° ΡΠΎΠ΄Π΅ΡΠΆΠ°Ρ ΠΈΠ½ΡΠΎΡΠΌΠ°ΡΠΈΡ ΠΎ ΠΊΠΎΠ½ΡΡΡΡΠΊΡΠΈΠΈ, ΡΠ°ΠΊΡΡ ββΠΊΠ°ΠΊ ΡΠ°ΡΠΏΠΎΠ»ΠΎΠΆΠ΅Π½ΠΈΠ΅, ΡΠ°ΡΡΡΠΎΡΠ½ΠΈΠ΅ ΠΈ Π½Π°ΠΏΡΠ°Π²Π»Π΅Π½ΠΈΠ΅ Π±Π°Π»ΠΎΠΊ, Π° ΡΠ°ΠΊΠΆΠ΅ Π²ΡΡΠΎΡΡ ΡΡΠ°ΠΆΠ° ΠΈ ΠΏΡΠΎΠ΅ΠΌΡ Π΄Π»Ρ Π»Π΅ΡΡΠ½ΠΈΡ.
ΠΠ»Π°Π½ ΠΊΡΡΡΠΈ
Π ΡΡΠΎΠΌ ΡΠ°Π·Π΄Π΅Π»Π΅ ΠΏΡΠ΅Π΄ΡΡΠ°Π²Π»Π΅Π½Π° ββΠΎΠ±ΡΠ°Ρ ΠΏΠ»Π°Π½ΠΈΡΠΎΠ²ΠΊΠ° ΠΈ Π½Π΅ΠΎΠ±Ρ ΠΎΠ΄ΠΈΠΌΡΠ΅ Π΄Π΅ΡΠ°Π»ΠΈ Π΄Π»Ρ ΠΏΡΠΎΠ΅ΠΊΡΠΈΡΠΎΠ²Π°Π½ΠΈΡ ΠΊΡΡΡΠΈ.ΠΡΠ»ΠΈ ΠΈΡΠΏΠΎΠ»ΡΠ·ΡΡΡΡΡ ΡΡΡΠΎΠΏΠΈΠ»ΡΠ½ΡΠ΅ ΡΠ΅ΡΠΌΡ, ΠΌΡ ΡΠ΅ΠΊΠΎΠΌΠ΅Π½Π΄ΡΠ΅ΠΌ ΠΎΠ±ΡΠ°ΡΠΈΡΡΡΡ ΠΊ ΠΌΠ΅ΡΡΠ½ΠΎΠΌΡ ΠΏΡΠΎΠΈΠ·Π²ΠΎΠ΄ΠΈΡΠ΅Π»Ρ ΡΡΡΠΎΠΏΠΈΠ»ΡΠ½ΡΡ ΡΠ΅ΡΠΌ Π΄Π»Ρ ΠΏΡΠΎΠ΅ΠΊΡΠΈΡΠΎΠ²Π°Π½ΠΈΡ Π²Π°ΡΠΈΡ ΠΊΡΠΎΠ²Π΅Π»ΡΠ½ΡΡ ΡΠ΅ΡΠΌ Π² ΡΠΎΠΎΡΠ²Π΅ΡΡΡΠ²ΠΈΠΈ Ρ Π²Π°ΡΠΈΠΌΠΈ ΠΌΠ΅ΡΡΠ½ΡΠΌΠΈ Π½ΠΎΡΠΌΠ°ΠΌΠΈ ΠΈ ΠΏΡΠ°Π²ΠΈΠ»Π°ΠΌΠΈ.
ΠΠ½Π΅ΡΠ½ΠΈΠΉ Π²ΠΈΠ΄
Π€Π°ΡΠ°Π΄Ρ — ΡΡΠΎ ΡΠ΅ΡΡΠ΅ΠΆΠΈ, ΠΊΠΎΡΠΎΡΡΠ΅ ΠΏΠΎΠΊΠ°Π·ΡΠ²Π°ΡΡ, ΠΊΠ°ΠΊ ΠΏΡΠΈΠΌΠ΅ΡΠ½ΠΎ Π±ΡΠ΄Π΅Ρ Π²ΡΠ³Π»ΡΠ΄Π΅ΡΡ Π³ΠΎΡΠΎΠ²ΡΠΉ Π΄ΠΎΠΌ. Π ΡΡΠΎΠΌ ΡΠ°Π·Π΄Π΅Π»Π΅ ΠΏΠΎΠΊΠ°Π·Π°Π½Ρ ΡΠ°ΡΠ°Π΄Ρ ΠΏΠ΅ΡΠ΅Π΄Π½Π΅ΠΉ, Π·Π°Π΄Π½Π΅ΠΉ, Π»Π΅Π²ΠΎΠΉ ΠΈ ΠΏΡΠ°Π²ΠΎΠΉ ΡΡΠΎΡΠΎΠ½ Π΄ΠΎΠΌΠ°. ΠΠ° ΡΡΠΈΡ ΡΠ΅ΡΡΠ΅ΠΆΠ°Ρ ΡΠΊΠ°Π·Π°Π½Ρ Π²Π½Π΅ΡΠ½ΠΈΠ΅ ΠΌΠ°ΡΠ΅ΡΠΈΠ°Π»Ρ, Π΄Π΅ΡΠ°Π»ΠΈ ΠΈ Π²ΡΡΠΎΡΠ°.
Π‘ΡΡΠΎΠΈΡΠ΅Π»ΡΠ½ΡΠΉ ΡΠ°Π·Π΄Π΅Π» ΠΈ Π΄Π΅ΡΠ°Π»ΠΈ
Π ΡΡΠΎΠΌ ΡΠ°Π·Π΄Π΅Π»Π΅ Π±ΡΠ΄ΡΡ ΠΏΠΎΠΊΠ°Π·Π°Π½Ρ Π²Π°ΠΆΠ½ΡΠ΅ ΠΈΠ·ΠΌΠ΅Π½Π΅Π½ΠΈΡ Π²ΡΡΠΎΡΡ ΠΏΠΎΠ»Π°, ΠΏΠΎΡΠΎΠ»ΠΊΠ° ΠΈ ΠΊΡΡΡΠΈ ΠΈΠ»ΠΈ ΡΠΎΠΎΡΠ½ΠΎΡΠ΅Π½ΠΈΠ΅ ΡΡΠ°ΠΆΠ΅ΠΉ Π΄ΡΡΠ³ Ρ Π΄ΡΡΠ³ΠΎΠΌ.ΠΠ»Π΅ΠΌΠ΅Π½ΡΡ ΠΈΠ½ΡΠ΅ΡΡΠ΅ΡΠ° ΠΏΠΎΠΌΠ΅ΡΠ΅Π½ΠΈΠΉ ΠΈ ΡΠ΅ΡΡΠΈΡΠΎΡΠΈΠΉ, ΡΠ°ΠΊΠΈΠ΅ ΠΊΠ°ΠΊ ΠΊΠΎΠ»ΠΎΠ½Π½Ρ, Π°ΡΠΊΠΈ, ΠΏΠΎΡΠΎΠ»ΠΊΠΈ ΠΈ ΠΏΠ΅ΡΠ΅ΠΊΡΡΡΠΈΡ, ΡΠ°ΠΊΠΆΠ΅ ΡΠ°Π·Π»ΠΈΡΠΈΠΌΡ ΠΈ Π»Π΅Π³ΡΠ΅ Π²ΠΈΠ·ΡΠ°Π»ΠΈΠ·ΠΈΡΡΡΡΡΡ Π² ΠΏΠΎΠΏΠ΅ΡΠ΅ΡΠ½ΠΎΠΌ ΡΠ΅ΡΠ΅Π½ΠΈΠΈ.
ΠΠ½ΡΡΡΠ΅Π½Π½ΠΈΠ΅ ΡΠ°ΡΠ°Π΄Ρ
ΠΠ° ΡΡΠΈΡ Π²Π½ΡΡΡΠ΅Π½Π½ΠΈΡ ΡΠ°ΡΠ°Π΄Π°Ρ ΠΏΠΎΠΊΠ°Π·Π°Π½Ρ ΠΎΡΠΎΠ±ΡΠ΅ Π΄Π΅ΡΠ°Π»ΠΈ ΠΈ Π΄ΠΈΠ·Π°ΠΉΠ½ ΠΊΡΡ Π½ΠΈ, Π²Π°Π½Π½ΡΡ ΠΊΠΎΠΌΠ½Π°Ρ, ΠΏΠΎΠ΄ΡΠΎΠ±Π½ΡΡ ΠΏΠΎΠΌΠ΅ΡΠ΅Π½ΠΈΠΉ, ΠΊΠ°ΠΌΠΈΠ½ΠΎΠ², ΠΊΠ½ΠΈΠΆΠ½ΡΡ ΡΠΊΠ°ΡΠΎΠ², Π²ΡΡΡΠΎΠ΅Π½Π½ΡΡ Π±Π»ΠΎΠΊΠΎΠ² ΠΈ Π΄ΡΡΠ³ΠΈΡ ΠΎΡΠΎΠ±Π΅Π½Π½ΠΎΡΡΠ΅ΠΉ ΠΈΠ½ΡΠ΅ΡΡΠ΅ΡΠ°. ΠΠ½ΡΡΡΠ΅Π½Π½ΡΡ Π²ΡΡΠΎΡΠ° Π²Π°ΡΡΠΈΡΡΠ΅ΡΡΡ Π² Π·Π°Π²ΠΈΡΠΈΠΌΠΎΡΡΠΈ ΠΎΡ ΡΠ»ΠΎΠΆΠ½ΠΎΡΡΠΈ Π΄ΠΎΠΌΠ°.
Π‘Ρ Π΅ΠΌΠ° ΡΠ»Π΅ΠΊΡΡΠΎΠΎΠ±ΠΎΡΡΠ΄ΠΎΠ²Π°Π½ΠΈΡ
Π ΡΡΠΎΠΌ ΡΠ°Π·Π΄Π΅Π»Π΅ ΠΏΠΎΠΊΠ°Π·Π°Π½ ΠΏΠ»Π°Π½ ΡΠ»Π΅ΠΊΡΡΠΎΠΎΠ±ΠΎΡΡΠ΄ΠΎΠ²Π°Π½ΠΈΡ, ΠΊΠΎΡΠΎΡΡΠΉ ΠΏΠΎΠ²ΡΡΠΈΡ ΡΡΠ½ΠΊΡΠΈΠΎΠ½Π°Π»ΡΠ½ΠΎΡΡΡ ΠΈ ΠΏΠΎΠ΄ΡΠ΅ΡΠΊΠ½Π΅Ρ ΡΠ½ΠΈΠΊΠ°Π»ΡΠ½ΡΠ΅ Π°ΡΡ ΠΈΡΠ΅ΠΊΡΡΡΠ½ΡΠ΅ ΠΎΡΠΎΠ±Π΅Π½Π½ΠΎΡΡΠΈ Π΄ΠΎΠΌΠ°.
Π‘ΠΏΠΈΡΠΎΠΊ ΠΌΠ°ΡΠ΅ΡΠΈΠ°Π»ΠΎΠ²
Π§ΡΠΎΠ±Ρ ΠΏΠΎΠΌΠΎΡΡ Π² ΠΎΠΏΡΠ΅Π΄Π΅Π»Π΅Π½ΠΈΠΈ ΡΠ΅Π½Ρ ΠΈ ΡΡΡΠΎΠΈΡΠ΅Π»ΡΡΡΠ²Π΅ Π΄ΠΎΠΌΠ° Sater, Π±Π΅ΡΠΏΠ»Π°ΡΠ½ΠΎ Π²ΠΊΠ»ΡΡΠ΅Π½ ΡΠΏΠΈΡΠΎΠΊ ΠΌΠ°ΡΠ΅ΡΠΈΠ°Π»ΠΎΠ² (Π² Π·Π°Π²ΠΈΡΠΈΠΌΠΎΡΡΠΈ ΠΎΡ Π½Π°Π»ΠΈΡΠΈΡ). ΠΠΊΠ»ΡΡΠ΅Π½Π½ΡΠΉ ΡΠΏΠΈΡΠΎΠΊ ΠΌΠ°ΡΠ΅ΡΠΈΠ°Π»ΠΎΠ² ΡΠΎΠΎΡΠ²Π΅ΡΡΡΠ²ΡΠ΅Ρ ΠΏΠ»Π°Π½Ρ Π² ΡΠΎΠΌ Π²ΠΈΠ΄Π΅, Π² ΠΊΠΎΡΠΎΡΠΎΠΌ ΠΎΠ½ Π±ΡΠ» ΠΈΠ·Π½Π°ΡΠ°Π»ΡΠ½ΠΎ ΡΠ°Π·ΡΠ°Π±ΠΎΡΠ°Π½. ΠΡΠΎΡ ΠΏΠΎΠ΄ΡΠΎΠ±Π½ΡΠΉ ΡΠΏΠΈΡΠΎΠΊ — ΠΎΡΠ»ΠΈΡΠ½ΡΠΉ ΡΠ΅ΡΡΡΡ, ΠΊΠΎΠ³Π΄Π° Π²Ρ Π½Π°ΡΠ½Π΅ΡΠ΅ ΡΡΡΠΎΠΈΡΠ΅Π»ΡΡΡΠ²ΠΎ. ΠΠ½ Π΄Π°Π΅Ρ ΠΊΠΎΠ»ΠΈΡΠ΅ΡΡΠ²Π΅Π½Π½ΡΡ ΠΈΠ½ΡΠΎΡΠΌΠ°ΡΠΈΡ ΠΎΠ±ΠΎ Π²ΡΠ΅ΠΌ, ΠΎΡ ΠΊΡΠ±ΠΈΡΠ΅ΡΠΊΠΈΡ ΡΡΠ΄ΠΎΠ² Π±Π΅ΡΠΎΠ½Π° Π² ΠΎΡΠ½ΠΎΠ²Π°Π½ΠΈΠΈ Π²Π°ΡΠ΅Π³ΠΎ ΠΏΠ»Π°Π½Π° Π΄ΠΎ ΠΊΠΎΠ»ΠΈΡΠ΅ΡΡΠ²Π° ΡΡΠΎΠ΅ΠΊ, Π½Π΅ΠΎΠ±Ρ ΠΎΠ΄ΠΈΠΌΡΡ Π΄Π»Ρ Π²Π½ΡΡΡΠ΅Π½Π½Π΅Π³ΠΎ ΠΊΠ°ΡΠΊΠ°ΡΠ° ΡΡΠ΅Π½.
Π ΡΠΊΠΎΠ²ΠΎΠ΄ΡΡΠ²ΠΎ ΠΏΠΎ ΡΠΊΠΎΠ»ΠΎΠ³ΠΈΡΠ΅ΡΠΊΠΈΠΌ ΡΠ΅ΡΠ΅Π½ΠΈΡΠΌ (Π΄ΠΎΡΡΡΠΏΠ½ΠΎ ΠΏΠΎ Π·Π°ΠΏΡΠΎΡΡ)
ΠΡΠΎ Π ΡΠΊΠΎΠ²ΠΎΠ΄ΡΡΠ²ΠΎ ΠΏΠΎ ΡΠΊΠΎΠ»ΠΎΠ³ΠΈΡΠ΅ΡΠΊΠΈΠΌ ΡΠ΅ΡΠ΅Π½ΠΈΡΠΌ ΡΠ°Π·ΡΠ°Π±ΠΎΡΠ°Π½ΠΎ, ΡΡΠΎΠ±Ρ ΠΏΠΎΠΌΠΎΡΡ Π²Π°ΠΌ ΠΏΡΠΈΠ½ΡΡΡ ΡΠ΅ΡΠ΅Π½ΠΈΠ΅ ΠΎΠ± ΡΡΠΎΠ²Π½Π΅ Π·Π΅Π»Π΅Π½ΠΎΠ³ΠΎ ΡΡΡΠΎΠΈΡΠ΅Π»ΡΡΡΠ²Π°, ΠΊΠΎΡΠΎΡΡΠΉ Π²Ρ Ρ ΠΎΡΠΈΡΠ΅ Π²Π½Π΅Π΄ΡΠΈΡΡ ΠΏΡΠΈ ΡΡΡΠΎΠΈΡΠ΅Π»ΡΡΡΠ²Π΅ Π²Π°ΡΠ΅Π³ΠΎ Π½ΠΎΠ²ΠΎΠ³ΠΎ Π΄ΠΎΠΌΠ°.
ΠΡΠΎΡΡΠΈΡΠ΅ ΠΎΠ½Π»Π°ΠΉΠ½-ΡΡΠΊΠΎΠ²ΠΎΠ΄ΡΡΠ²ΠΎ ΠΏΠΎ ΡΠΊΠΎΠ»ΠΎΠ³ΠΈΡΠ΅ΡΠΊΠΈΠΌ ΡΠ΅ΡΠ΅Π½ΠΈΡΠΌ.
Π§ΡΠΎ Π½Π΅ Π²Ρ ΠΎΠ΄ΠΈΡ Π² ΠΊΠΎΠΌΠΏΠ»Π΅ΠΊΡ
ΠΠ°ΠΆΠ΄ΡΠΉ ΠΏΠ»Π°Π½ ΡΠ°Π·ΡΠ°Π±ΠΎΡΠ°Π½ Π² ΡΠΎΠΎΡΠ²Π΅ΡΡΡΠ²ΠΈΠΈ Ρ ΠΠ΅ΠΆΠ΄ΡΠ½Π°ΡΠΎΠ΄Π½ΡΠΌ ΠΆΠΈΠ»ΠΈΡΠ½ΡΠΌ ΠΊΠΎΠ΄Π΅ΠΊΡΠΎΠΌ (IRC), Π΄Π΅ΠΉΡΡΠ²ΠΎΠ²Π°Π²ΡΠΈΠΌ Π½Π° ΠΌΠΎΠΌΠ΅Π½Ρ ΡΠΎΠ·Π΄Π°Π½ΠΈΡ ΠΏΠ»Π°Π½Π°, Π½ΠΎ Sater Design Collection Π½Π΅ Π³Π°ΡΠ°Π½ΡΠΈΡΡΠ΅Ρ ΡΠ°ΠΊΠΎΠ΅ ΡΠΎΠΎΡΠ²Π΅ΡΡΡΠ²ΠΈΠ΅.ΠΠΎΠ³ΡΡ ΠΏΠΎΡΡΠ΅Π±ΠΎΠ²Π°ΡΡΡΡ ΠΌΠΎΠ΄ΠΈΡΠΈΠΊΠ°ΡΠΈΠΈ Π΄Π»Ρ ΡΠΎΠΎΡΠ²Π΅ΡΡΡΠ²ΠΈΡ ΠΏΡΠΈΠΌΠ΅Π½ΠΈΠΌΡΠΌ ΡΡΡΠΎΠΈΡΠ΅Π»ΡΠ½ΡΠΌ Π½ΠΎΡΠΌΠ°ΠΌ ΠΈ ΠΏΡΠ°Π²ΠΈΠ»Π°ΠΌ. ΠΡΠΈ Π½Π΅ΠΎΠ±Ρ ΠΎΠ΄ΠΈΠΌΠΎΡΡΠΈ ΠΏΡΠΎΠΊΠΎΠ½ΡΡΠ»ΡΡΠΈΡΡΠΉΡΠ΅ΡΡ ΡΠΎ ΡΡΡΠΎΠΈΡΠ΅Π»Π΅ΠΌ, ΠΈΠ½ΠΆΠ΅Π½Π΅ΡΠΎΠΌ-ΡΡΡΠΎΠΈΡΠ΅Π»Π΅ΠΌ ΠΈΠ»ΠΈ Π΄ΡΡΠ³ΠΈΠΌ ΠΏΡΠΎΡΠ΅ΡΡΠΈΠΎΠ½Π°Π»ΡΠ½ΡΠΌ ΡΡΡΠΎΠΈΡΠ΅Π»Π΅ΠΌ. ΠΠΎΠΌΠΏΠ°Π½ΠΈΡ Sater Design Collection Π½Π΅ Π½Π΅ΡΠ΅Ρ Π½ΠΈΠΊΠ°ΠΊΠΎΠΉ ΠΎΡΠ²Π΅ΡΡΡΠ²Π΅Π½Π½ΠΎΡΡΠΈ Π·Π° ΡΠΎ, ΡΡΠΎΠ±Ρ ΠΏΠ»Π°Π½Ρ ΠΈ / ΠΈΠ»ΠΈ Π»ΡΠ±ΠΎΠΉ Π΄ΠΎΠΌ, ΠΏΠΎΡΡΡΠΎΠ΅Π½Π½ΡΠΉ Ρ ΠΈΡΠΏΠΎΠ»ΡΠ·ΠΎΠ²Π°Π½ΠΈΠ΅ΠΌ ΠΏΠ»Π°Π½ΠΎΠ², ΡΠ΄ΠΎΠ²Π»Π΅ΡΠ²ΠΎΡΡΠ»ΠΈ ΠΌΠ΅ΡΡΠ½ΡΠΌ ΠΈΠ»ΠΈ Π΄ΡΡΠ³ΠΈΠΌ ΠΏΡΠΈΠΌΠ΅Π½ΠΈΠΌΡΠΌ ΡΡΡΠΎΠΈΡΠ΅Π»ΡΠ½ΡΠΌ Π½ΠΎΡΠΌΠ°ΠΌ. ΠΡ Π½Π΅ΡΠ΅ΡΠ΅ ΠΎΡΠ²Π΅ΡΡΡΠ²Π΅Π½Π½ΠΎΡΡΡ Π·Π° ΠΎΠΏΡΠ΅Π΄Π΅Π»Π΅Π½ΠΈΠ΅ ΠΈ ΡΠΎΠ±Π»ΡΠ΄Π΅Π½ΠΈΠ΅ Π²ΡΠ΅Ρ ΠΏΡΠΈΠΌΠ΅Π½ΠΈΠΌΡΡ ΠΊΠΎΠ΄Π΅ΠΊΡΠΎΠ². Π‘Ρ Π΅ΠΌΡ ΠΎΡΠΎΠΏΠ»Π΅Π½ΠΈΡ / ΠΊΠΎΠ½Π΄ΠΈΡΠΈΠΎΠ½ΠΈΡΠΎΠ²Π°Π½ΠΈΡ ΠΈ ΡΠ°Π½ΡΠ΅Ρ Π½ΠΈΡΠ΅ΡΠΊΠΈΠ΅ ΡΡ Π΅ΠΌΡ Π½Π΅ Π²ΠΊΠ»ΡΡΠ΅Π½Ρ. Π‘Π»Π΅Π΄ΡΠ΅Ρ ΡΠΎΠ±Π»ΡΠ΄Π°ΡΡ ΠΈΠ½ΡΡΡΡΠΊΡΠΈΠΈ ΠΏΡΠΎΠΈΠ·Π²ΠΎΠ΄ΠΈΡΠ΅Π»Ρ Π΄Π»Ρ Π²ΡΠ΅Ρ ΠΌΠ°ΡΠ΅ΡΠΈΠ°Π»ΠΎΠ², ΡΡΡΡΠΎΠΉΡΡΠ² ΠΈ ΡΠΈΡΡΠ΅ΠΌ.ΠΡΠΈ Π½Π΅ΠΎΠ±Ρ ΠΎΠ΄ΠΈΠΌΠΎΡΡΠΈ ΠΏΡΠΎΠΊΠΎΠ½ΡΡΠ»ΡΡΠΈΡΡΠΉΡΠ΅ΡΡ Ρ ΠΌΠ΅ΡΡΠ½ΡΠΌ ΠΏΠΎΠ΄ΡΡΠ΄ΡΠΈΠΊΠΎΠΌ ΠΏΠΎ ΠΌΠ΅Ρ Π°Π½ΠΈΡΠ΅ΡΠΊΠΎΠΌΡ ΠΎΠ±ΠΎΡΡΠ΄ΠΎΠ²Π°Π½ΠΈΡ ΠΎΡΠ½ΠΎΡΠΈΡΠ΅Π»ΡΠ½ΠΎ ΡΠΈΡΡΠ΅ΠΌ, ΠΏΠΎΠ΄Ρ ΠΎΠ΄ΡΡΠΈΡ Π΄Π»Ρ ΠΌΠ΅ΡΡΠ½ΡΡ ΠΊΠ»ΠΈΠΌΠ°ΡΠΈΡΠ΅ΡΠΊΠΈΡ ΡΡΠ»ΠΎΠ²ΠΈΠΉ.
ΠΡΠΎΠΌΠ΅ ΡΠΎΠ³ΠΎ, ΠΊ ΠΏΠ»Π°Π½Π°ΠΌ Π°ΠΊΡΠΈΠΉ Π½Π΅ ΠΏΡΠΈΠΊΡΠ΅ΠΏΠ»Π΅Π½ ΡΡΠ°ΠΌΠΏ ΠΏΡΠΎΡΠ΅ΡΡΠΈΠΎΠ½Π°Π»Π°. ΠΡΠ»ΠΈ Π²Π°ΡΠ΅ΠΌΡ ΡΡΡΠΎΠΈΡΠ΅Π»ΡΠ½ΠΎΠΌΡ ΠΎΡΠ΄Π΅Π»Ρ ΡΡΠ΅Π±ΡΠ΅ΡΡΡ ΡΠ°ΠΊΠ°Ρ ΠΏΠ΅ΡΠ°ΡΡ, ΠΎΠ½ΠΈ ΠΏΡΠΈΠΌΡΡ ΡΡΠ°ΠΌΠΏ ΡΠΎΠ»ΡΠΊΠΎ ΠΎΡ ΠΏΡΠΎΡΠ΅ΡΡΠΈΠΎΠ½Π°Π»Π°, ΠΈΠΌΠ΅ΡΡΠ΅Π³ΠΎ Π»ΠΈΡΠ΅Π½Π·ΠΈΡ Π² ΡΡΠ°ΡΠ΅, Π³Π΄Π΅ Π²Ρ ΠΏΠ»Π°Π½ΠΈΡΡΠ΅ΡΠ΅ ΡΡΡΠΎΠΈΡΠ΅Π»ΡΡΡΠ²ΠΎ. Π ΡΡΠΎΠΌ ΡΠ»ΡΡΠ°Π΅ Π²Π°ΠΌ Π½ΡΠΆΠ½ΠΎ Π±ΡΠ΄Π΅Ρ ΠΎΡΠ½Π΅ΡΡΠΈ ΠΏΠ»Π°Π½Ρ Π²Π°ΡΠ΅Π³ΠΎ Π΄ΠΎΠΌΠ° ΠΌΠ΅ΡΡΠ½ΠΎΠΌΡ ΠΈΠ½ΠΆΠ΅Π½Π΅ΡΡ Π΄Π»Ρ ΠΏΡΠΎΠ²Π΅ΡΠΊΠΈ ΠΈ ΠΏΠ΅ΡΠ°ΡΠΈ.
ΠΠ»Ρ ΠΏΠΎΠ»ΡΡΠ΅Π½ΠΈΡ ΠΈΠ½ΡΠΎΡΠΌΠ°ΡΠΈΠΈ ΠΎ Π»ΠΈΡΠ΅Π½Π·ΠΈΡΠΎΠ²Π°Π½ΠΈΠΈ ΠΈ Π°Π²ΡΠΎΡΡΠΊΠΈΡ ΠΏΡΠ°Π²Π°Ρ ΡΠ΅Π»ΠΊΠ½ΠΈΡΠ΅ Π·Π΄Π΅ΡΡ.
ΠΠ»Π°Π½Ρ ΡΡΠ°ΠΆΠ΅ΠΉ — ΡΠ·Π½Π°ΠΉΡΠ΅, ΠΊΠ°ΠΊ ΠΏΡΠΎΠ΅ΠΊΡΠΈΡΠΎΠ²Π°ΡΡ ΠΈ ΠΏΠ»Π°Π½ΠΈΡΠΎΠ²Π°ΡΡ ΠΏΠ»Π°Π½Ρ ΡΡΠ°ΠΆΠ΅ΠΉ
Π§ΡΠΎ ΡΠ°ΠΊΠΎΠ΅ ΠΏΠ»Π°Π½ ΡΡΠ°ΠΆΠ°?
ΠΠ»Π°Π½ ΡΡΠ°ΠΆΠ° — ΡΡΠΎ ΡΠ²Π΅Π»ΠΈΡΠ΅Π½Π½Π°Ρ Π΄ΠΈΠ°Π³ΡΠ°ΠΌΠΌΠ° ΠΏΠΎΠΌΠ΅ΡΠ΅Π½ΠΈΡ ΠΈΠ»ΠΈ Π·Π΄Π°Π½ΠΈΡ, Π΅ΡΠ»ΠΈ ΡΠΌΠΎΡΡΠ΅ΡΡ ΡΠ²Π΅ΡΡ Ρ.ΠΠ° ΠΏΠ»Π°Π½Π΅ ΡΡΠ°ΠΆΠ° ΠΌΠΎΠΆΠ΅Ρ Π±ΡΡΡ ΠΈΠ·ΠΎΠ±ΡΠ°ΠΆΠ΅Π½ΠΎ Π²ΡΠ΅ Π·Π΄Π°Π½ΠΈΠ΅, ΠΎΠ΄ΠΈΠ½ ΡΡΠ°ΠΆ Π·Π΄Π°Π½ΠΈΡ ΠΈΠ»ΠΈ ΠΎΡΠ΄Π΅Π»ΡΠ½Π°Ρ ΠΊΠΎΠΌΠ½Π°ΡΠ°. ΠΠ½ ΡΠ°ΠΊΠΆΠ΅ ΠΌΠΎΠΆΠ΅Ρ Π²ΠΊΠ»ΡΡΠ°ΡΡ Π² ΡΠ΅Π±Ρ ΡΠ°Π·ΠΌΠ΅ΡΡ, ΠΌΠ΅Π±Π΅Π»Ρ, Π±ΡΡΠΎΠ²ΡΡ ΡΠ΅Ρ Π½ΠΈΠΊΡ ΠΈΠ»ΠΈ Π²ΡΠ΅, ΡΡΠΎ Π½Π΅ΠΎΠ±Ρ ΠΎΠ΄ΠΈΠΌΠΎ Π΄Π»Ρ ΡΠ΅Π»Π΅ΠΉ ΠΏΠ»Π°Π½Π°.
ΠΠ»Π°Π½Ρ ΡΡΠ°ΠΆΠ΅ΠΉΠΏΠΎΠΌΠΎΠ³Π°ΡΡ ΡΠΏΡΠΎΠ΅ΠΊΡΠΈΡΠΎΠ²Π°ΡΡ ΡΠ°ΡΠΏΠΎΠ»ΠΎΠΆΠ΅Π½ΠΈΠ΅ ΠΌΠ΅Π±Π΅Π»ΠΈ, ΡΠΈΡΡΠ΅ΠΌΡ ΡΠ»Π΅ΠΊΡΡΠΎΠΏΡΠΎΠ²ΠΎΠ΄ΠΊΠΈ ΠΈ ΠΌΠ½ΠΎΠ³ΠΎΠ΅ Π΄ΡΡΠ³ΠΎΠ΅. ΠΠ½ΠΈ ΡΠ°ΠΊΠΆΠ΅ ΡΠ²Π»ΡΡΡΡΡ ΡΠ΅Π½Π½ΡΠΌ ΠΈΠ½ΡΡΡΡΠΌΠ΅Π½ΡΠΎΠΌ Π΄Π»Ρ Π°Π³Π΅Π½ΡΠΎΠ² ΠΏΠΎ Π½Π΅Π΄Π²ΠΈΠΆΠΈΠΌΠΎΡΡΠΈ ΠΈ Π»ΠΈΠ·ΠΈΠ½Π³ΠΎΠ²ΡΡ ΠΊΠΎΠΌΠΏΠ°Π½ΠΈΠΉ ΠΏΡΠΈ ΠΏΡΠΎΠ΄Π°ΠΆΠ΅ ΠΈΠ»ΠΈ Π°ΡΠ΅Π½Π΄Π΅ ΠΏΠΎΠΌΠ΅ΡΠ΅Π½ΠΈΡ.
ΠΠ°ΠΆΠ½ΠΎΡΡΡ Π΄ΠΈΠ·Π°ΠΉΠ½Π° ΠΏΠ»Π°Π½Π° ΡΡΠ°ΠΆΠ°
ΠΠ»Π°Π½Ρ ΡΡΠ°ΠΆΠ΅ΠΉ Π½Π΅ΠΎΠ±Ρ ΠΎΠ΄ΠΈΠΌΡ ΠΏΡΠΈ ΠΏΡΠΎΠ΅ΠΊΡΠΈΡΠΎΠ²Π°Π½ΠΈΠΈ ΠΈ ΡΡΡΠΎΠΈΡΠ΅Π»ΡΡΡΠ²Π΅ Π΄ΠΎΠΌΠ°.Π₯ΠΎΡΠΎΡΠΈΠΉ ΠΏΠ»Π°Π½ ΡΡΠ°ΠΆΠ° ΠΌΠΎΠΆΠ΅Ρ ΡΠ²Π΅Π»ΠΈΡΠΈΡΡ ΡΠ΄ΠΎΠ²ΠΎΠ»ΡΡΡΠ²ΠΈΠ΅ ΠΎΡ Π΄ΠΎΠΌΠ°, ΡΠΎΠ·Π΄Π°Π²Π°Ρ ΠΏΡΠΈΡΡΠ½ΡΠΉ ΠΏΠΎΡΠΎΠΊ ΠΌΠ΅ΠΆΠ΄Ρ ΠΏΠΎΠΌΠ΅ΡΠ΅Π½ΠΈΡΠΌΠΈ, ΠΈ ΠΌΠΎΠΆΠ΅Ρ Π΄Π°ΠΆΠ΅ ΠΏΠΎΠ²ΡΡΠΈΡΡ Π΅Π³ΠΎ ΡΡΠΎΠΈΠΌΠΎΡΡΡ ΠΏΡΠΈ ΠΏΠ΅ΡΠ΅ΠΏΡΠΎΠ΄Π°ΠΆΠ΅.
ΠΠ°ΠΊΠΎΠ²Ρ ΠΊΠ»ΡΡΠ΅Π²ΡΠ΅ Ρ Π°ΡΠ°ΠΊΡΠ΅ΡΠΈΡΡΠΈΠΊΠΈ Ρ ΠΎΡΠΎΡΠ΅Π³ΠΎ ΠΏΠ»Π°Π½Π° ΡΡΠ°ΠΆΠ° ΠΏΡΠΈ ΠΏΡΠΎΠ΅ΠΊΡΠΈΡΠΎΠ²Π°Π½ΠΈΠΈ Π΄ΠΎΠΌΠ°?
- Π£Π½ΠΈΠ²Π΅ΡΡΠ°Π»ΡΠ½ΠΎΡΡΡ ΠΈ Π³ΠΈΠ±ΠΊΠΎΡΡΡ. Π£Π±Π΅Π΄ΠΈΡΠ΅ΡΡ, ΡΡΠΎ Π² Π±ΡΠ΄ΡΡΠ΅ΠΌ ΠΎΡΠΈΡ Π»Π΅Π³ΠΊΠΎ ΠΏΡΠ΅Π²ΡΠ°ΡΠΈΡΡΡ Π² Π΄Π΅ΡΡΠΊΡΡ ΡΠΏΠ°Π»ΡΠ½Ρ ΠΊΠ°ΠΊ Π΄Π»Ρ Π²Π°ΡΠ΅ΠΉ ΡΠ΅ΠΌΡΠΈ, ΡΠ°ΠΊ ΠΈ Π΄Π»Ρ Π±ΡΠ΄ΡΡΠ΅Π³ΠΎ ΠΏΠΎΠΊΡΠΏΠ°ΡΠ΅Π»Ρ.
- ΠΠ΄Π΅Π°Π»ΡΠ½Π°Ρ ΠΏΠ»Π°Π½ΠΈΡΠΎΠ²ΠΊΠ° ΠΏΠΎΠΌΠ΅ΡΠ΅Π½ΠΈΡ. Π£Π±Π΅Π΄ΠΈΡΠ΅ΡΡ, ΡΡΠΎ ΡΠΏΠ°Π»ΡΠ½ΠΈ Π½Π°Ρ ΠΎΠ΄ΡΡΡΡ Π²Π΄Π°Π»ΠΈ ΠΎΡ ΠΌΠ΅ΡΡ Π΄Π»Ρ ΡΠ°Π·Π²Π»Π΅ΡΠ΅Π½ΠΈΠΉ.ΠΠ°Π½Π½ΡΠ΅ Π½Π΅ Π΄ΠΎΠ»ΠΆΠ½Ρ Π²ΡΡ ΠΎΠ΄ΠΈΡΡ Π½Π° ΠΎΠ±ΡΠΈΠ΅ ΡΠ°Π·Π²Π»Π΅ΠΊΠ°ΡΠ΅Π»ΡΠ½ΡΠ΅ ΠΏΠΎΠΌΠ΅ΡΠ΅Π½ΠΈΡ, ΡΠ°ΠΊΠΈΠ΅ ΠΊΠ°ΠΊ ΡΡΠΎΠ»ΠΎΠ²ΡΠ΅ ΠΈΠ»ΠΈ Π³ΠΎΡΡΠΈΠ½ΡΠ΅. ΠΠΎΠ»ΡΡΠΈΠ½ΡΡΠ²Ρ Π»ΡΠ΄Π΅ΠΉ ΠΏΠΎΠ½ΡΠ°Π²ΠΈΡΡΡ, Π΅ΡΠ»ΠΈ ΠΊΡΡ Π½Ρ ΠΎΡΠΊΡΡΠ²Π°Π΅ΡΡΡ Π² ΡΡΠΎΠ»ΠΎΠ²ΡΡ ΠΈΠ»ΠΈ Π³ΠΎΡΡΠΈΠ½ΡΡ, ΡΡΠΎΠ±Ρ ΡΠΎΡ, ΠΊΡΠΎ Π³ΠΎΡΠΎΠ²ΠΈΡ, ΠΌΠΎΠ³ ΠΏΠΎ-ΠΏΡΠ΅ΠΆΠ½Π΅ΠΌΡ ΠΎΠ±ΡΠ°ΡΡΡΡ Ρ Π³ΠΎΡΡΡΠΌΠΈ ΠΈΠ»ΠΈ Π½Π°Π±Π»ΡΠ΄Π°ΡΡ Π·Π° ΠΈΠ³ΡΠ°ΡΡΠΈΠΌΠΈ Π΄Π΅ΡΡΠΌΠΈ.
- Π Π°Π·ΠΌΠ΅Ρ ΠΈΠΌΠ΅Π΅Ρ Π·Π½Π°ΡΠ΅Π½ΠΈΠ΅. ΠΡΠΈ ΠΏΡΠΎΠ΅ΠΊΡΠΈΡΠΎΠ²Π°Π½ΠΈΠΈ Π»ΡΠ±ΠΎΠΉ ΠΊΠΎΠΌΠ½Π°ΡΡ ΠΈΠ»ΠΈ ΠΊΠΎΡΠΈΠ΄ΠΎΡΠ° ΠΏΠΎΠ΄ΡΠΌΠ°ΠΉΡΠ΅ ΠΎ ΡΠΎΠΌ, ΡΠΊΠΎΠ»ΡΠΊΠΎ Π»ΡΠ΄Π΅ΠΉ Π±ΡΠ΄Π΅Ρ ΠΎΠ΄Π½ΠΎΠ²ΡΠ΅ΠΌΠ΅Π½Π½ΠΎ Π½Π°Ρ ΠΎΠ΄ΠΈΡΡΡΡ Π² ΡΡΠΎΠΌ ΠΏΡΠΎΡΡΡΠ°Π½ΡΡΠ²Π΅. ΠΡΡΡ Π»ΠΈ Ρ Π½ΠΈΡ ΠΌΠ΅ΡΡΠΎ Π΄Π»Ρ ΠΏΠ΅ΡΠ΅Π΄Π²ΠΈΠΆΠ΅Π½ΠΈΡ? ΠΡΡΡ Π»ΠΈ ΠΌΠ΅ΡΡΠΎ Π΄Π»Ρ ΠΌΠ΅Π±Π΅Π»ΠΈ Π΄Π»Ρ Π²ΡΠ΅Ρ Π·Π°ΠΏΠ»Π°Π½ΠΈΡΠΎΠ²Π°Π½Π½ΡΡ ΠΌΠ΅ΡΠΎΠΏΡΠΈΡΡΠΈΠΉ?
- Π‘ΠΎΠΎΡΠ²Π΅ΡΡΡΠ²ΡΠ΅Ρ Π²Π°ΡΠΈΠΌ ΠΏΡΠΈΠΎΡΠΈΡΠ΅ΡΠ°ΠΌ ΠΈ ΠΎΠ±ΡΠ°Π·Ρ ΠΆΠΈΠ·Π½ΠΈ. ΠΡΠ»ΠΈ ΡΠ°Π·Π²Π»Π΅ΡΠ΅Π½ΠΈΡ Π²Π°ΠΆΠ½Ρ, ΡΠ±Π΅Π΄ΠΈΡΠ΅ΡΡ, ΡΡΠΎ ΠΈΠ· ΠΊΡΡ Π½ΠΈ ΠΈΠ΄Π΅Ρ Ρ ΠΎΡΠΎΡΠΈΠΉ ΠΏΠΎΡΠΎΠΊ Π²ΠΎ Π²Π½Π΅ΡΠ½Π΅Π΅ ΠΏΡΠΎΡΡΡΠ°Π½ΡΡΠ²ΠΎ ΠΈ Π³ΠΎΡΡΠΈΠ½ΡΡ. ΠΡΠ»ΠΈ Π²Ρ ΡΠ°Π±ΠΎΡΠ°Π΅ΡΠ΅ ΠΈΠ· Π΄ΠΎΠΌΠ°, ΡΠ±Π΅Π΄ΠΈΡΠ΅ΡΡ, ΡΡΠΎ Π² Π²Π°ΡΠ΅ΠΌ ΠΎΡΠΈΡΠ΅ ΠΈΠ΄Π΅Π°Π»ΡΠ½ΠΎΠ΅ ΠΎΡΠ²Π΅ΡΠ΅Π½ΠΈΠ΅ ΠΈ, Π²ΠΎΠ·ΠΌΠΎΠΆΠ½ΠΎ, ΠΎΠ½ Π½Π°Ρ ΠΎΠ΄ΠΈΡΡΡ Π² ΡΠΈΡ ΠΎΠΌ ΠΌΠ΅ΡΡΠ΅. ΠΠΎΠ³Π΄Π° Π²Ρ ΡΡΠΈΡΠ°Π΅ΡΠ΅, ΡΡΠΎ Π½ΠΎΡΠΌΠ°Π»ΡΠ½ΠΎ, Π΅ΡΠ»ΠΈ Π²Π°ΠΌ Π½ΡΠΆΠ½ΠΎ ΠΏΠΎΠ΄Π½ΡΡΡΡΡ Π½Π° ΡΡΠΈ ΡΡΠ°ΠΆΠ°, ΡΡΠΎΠ±Ρ Π΄ΠΎΠ±ΡΠ°ΡΡΡΡ ΠΈΠ· Π³Π»Π°Π²Π½ΠΎΠΉ ΡΠΏΠ°Π»ΡΠ½ΠΈ Π² ΠΏΡΠ°ΡΠ΅ΡΠ½ΡΡ?
- ΠΠ°ΠΉΠ΄ΠΈΡΠ΅ Π±Π°Π»Π°Π½Ρ ΠΌΠ΅ΠΆΠ΄Ρ Π°ΡΡ ΠΈΡΠ΅ΠΊΡΡΡΠ½ΡΠΌΠΈ Π΄Π΅ΡΠ°Π»ΡΠΌΠΈ ΠΈ ΠΏΡΠ°ΠΊΡΠΈΡΠ΅ΡΠΊΠΈΠΌΠΈ ΡΠΎΠΎΠ±ΡΠ°ΠΆΠ΅Π½ΠΈΡΠΌΠΈ. ΠΠΎΠ΄ΡΠΌΠ°ΠΉΡΠ΅ ΠΎ Π±Π΅Π·ΠΎΠΏΠ°ΡΠ½ΠΎΡΡΠΈ Π΄Π΅ΡΠ΅ΠΉ, ΡΡΠ΅ΡΠ°Ρ Π·Π° ΡΠ±ΠΎΡΠΊΡ, ΠΎΡΠΎΠΏΠ»Π΅Π½ΠΈΠ΅ ΠΈ ΠΎΡ Π»Π°ΠΆΠ΄Π΅Π½ΠΈΠ΅, ΠΏΡΠ΅ΠΆΠ΄Π΅ ΡΠ΅ΠΌ Π²Π»ΡΠ±ΠΈΡΡΡΡ Π² ΠΊΠ°ΠΊΡΡ-Π½ΠΈΠ±ΡΠ΄Ρ Π²Π΅Π»ΠΈΡΠ΅ΡΡΠ²Π΅Π½Π½ΡΡ Π»Π΅ΡΡΠ½ΠΈΡΡ ΠΈΠ»ΠΈ ΠΎΠΊΠ½Π° ΠΎΡ ΠΏΠΎΠ»Π° Π΄ΠΎ ΠΏΠΎΡΠΎΠ»ΠΊΠ°.
ΠΡΠΎΡΡΠΈΡΠ΅ Π½Π΅ΡΠΊΠΎΠ»ΡΠΊΠΎ ΡΠΎΠ²Π΅ΡΠΎΠ² ΠΏΠΎ ΡΠΎΠ·Π΄Π°Π½ΠΈΡ ΠΈΠ΄Π΅Π°Π»ΡΠ½ΡΡ ΠΏΠ»Π°Π½ΠΎΠ² ΡΡΠ°ΠΆΠ΅ΠΉ.
ΠΠ°ΡΠΊΠ΅ΡΠΈΠ½Π³ ΠΈ Π²Π·Π°ΠΈΠΌΠΎΠ΄Π΅ΠΉΡΡΠ²ΠΈΠ΅ Ρ ΠΏΠΎΡΡΠ°ΠΆΠ½ΡΠΌΠΈ ΠΏΠ»Π°Π½Π°ΠΌΠΈ
ΠΠ»Π°Π½Ρ ΡΡΠ°ΠΆΠ΅ΠΉΡΠ°ΠΊΠΆΠ΅ ΠΈΠ³ΡΠ°ΡΡ ΠΊΠ»ΡΡΠ΅Π²ΡΡ ΡΠΎΠ»Ρ Π² ΠΏΠ΅ΡΠ΅Π΄Π°ΡΠ΅ ΠΈΠ½ΡΠΎΡΠΌΠ°ΡΠΈΠΈ ΠΎ Π²Π°ΡΠ΅ΠΌ ΠΏΡΠΎΡΡΡΠ°Π½ΡΡΠ²Π΅ ΠΏΠΎΡΠ΅Π½ΡΠΈΠ°Π»ΡΠ½ΡΠΌ ΠΏΠΎΠΊΡΠΏΠ°ΡΠ΅Π»ΡΠΌ ΠΈΠ»ΠΈ Π°ΡΠ΅Π½Π΄Π°ΡΠΎΡΠ°ΠΌ.
Rightmove ΠΎΠΏΡΠ±Π»ΠΈΠΊΠΎΠ²Π°Π»Π° Π² 2013 Π³ΠΎΠ΄Ρ ΠΈΡΡΠ»Π΅Π΄ΠΎΠ²Π°Π½ΠΈΠ΅, Π² ΠΊΠΎΡΠΎΡΠΎΠΌ Π³ΠΎΠ²ΠΎΡΠΈΡΡΡ, ΡΡΠΎ ΠΏΠΎΠΊΡΠΏΠ°ΡΠ΅Π»ΠΈ Π½Π΅Π΄Π²ΠΈΠΆΠΈΠΌΠΎΡΡΠΈ ΡΡΠΈΡΠ°ΡΡ ΠΏΠ»Π°Π½Ρ ΡΡΠ°ΠΆΠ΅ΠΉ Π½Π΅ ΠΏΡΠΎΡΡΠΎ ΠΏΡΠΈΡΡΠ½ΡΠΌΠΈ, Π½ΠΎ ΠΈ Π²Π°ΠΆΠ½ΡΠΌΠΈ ΠΏΡΠΈ Π²ΡΠ±ΠΎΡΠ΅ ΠΎΠ±ΡΠ΅ΠΊΡΠΎΠ² Π½Π΅Π΄Π²ΠΈΠΆΠΈΠΌΠΎΡΡΠΈ. ΠΠ°ΠΆΠ΄ΡΠΉ ΠΏΡΡΡΠΉ ΡΠΊΠ°Π·Π°Π», ΡΡΠΎ ΠΏΡΠΎΠΈΠ³Π½ΠΎΡΠΈΡΡΠ΅Ρ Π½Π΅Π΄Π²ΠΈΠΆΠΈΠΌΠΎΡΡΡ Π±Π΅Π· ΠΏΠ»Π°Π½Π° ΡΡΠ°ΠΆΠ°. ΠΠ½ΠΈ ΡΠ°ΠΊΠΆΠ΅ ΠΎΡΠ΅Π½ΠΈΠ»ΠΈ ΠΏΠ»Π°Π½Ρ ΡΡΠ°ΠΆΠ΅ΠΉ Π±ΠΎΠ»Π΅Π΅ Π²Π°ΠΆΠ½ΡΠΌΠΈ, ΡΠ΅ΠΌ ΡΠΎΡΠΎΠ³ΡΠ°ΡΠΈΠΈ ΠΈ ΠΎΠΏΠΈΡΠ°Π½ΠΈΠ΅ ΡΠΎΠ±ΡΡΠ²Π΅Π½Π½ΠΎΡΡΠΈ.Π‘ Π΄ΡΡΠ³ΠΎΠΉ ΡΡΠΎΡΠΎΠ½Ρ, ΠΊΠΎΠ³Π΄Π° ΠΏΡΠΎΠ΄Π°Π²ΡΡ ΡΠ°ΡΡΠΌΠ°ΡΡΠΈΠ²Π°ΡΡ Π²ΠΎΠ·ΠΌΠΎΠΆΠ½ΠΎΡΡΡ Π½Π°ΠΉΠΌΠ° Π°Π³Π΅Π½ΡΠ° ΠΏΠΎ Π½Π΅Π΄Π²ΠΈΠΆΠΈΠΌΠΎΡΡΠΈ, Rightmove ΠΎΠ±Π½Π°ΡΡΠΆΠΈΠ»Π°, ΡΡΠΎ 42% Π½Π΅ Π½Π°Π½ΡΠ»ΠΈ Π±Ρ Π°Π³Π΅Π½ΡΠ°, ΠΊΠΎΡΠΎΡΡΠΉ Π½Π΅ ΠΏΡΠ΅Π΄Π»Π°Π³Π°Π» Π±Ρ ΠΏΠ»Π°Π½ ΠΏΠΎΠΌΠ΅ΡΠ΅Π½ΠΈΡ.
ΠΠΎΠ±Π°Π²Π»Π΅Π½ΠΈΠ΅ ΠΏΠ»Π°Π½Π° ΡΡΠ°ΠΆΠ° ΠΊ ΡΠΏΠΈΡΠΊΡ Π½Π΅Π΄Π²ΠΈΠΆΠΈΠΌΠΎΡΡΠΈ ΠΌΠΎΠΆΠ΅Ρ ΡΠ²Π΅Π»ΠΈΡΠΈΡΡ ΠΊΠΎΠ»ΠΈΡΠ΅ΡΡΠ²ΠΎ ΠΏΠ΅ΡΠ΅Ρ ΠΎΠ΄ΠΎΠ² ΠΏΠΎ ΡΡΡΠ»ΠΊΠ°ΠΌ ΠΏΠΎΠΊΡΠΏΠ°ΡΠ΅Π»Π΅ΠΉ Π½Π° 52%.
ΠΡ ΡΠ°ΠΊΠΆΠ΅ ΠΌΠΎΠΆΠ΅ΡΠ΅ ΠΈΡΠΏΠΎΠ»ΡΠ·ΠΎΠ²Π°ΡΡ ΠΏΠ»Π°Π½ ΡΡΠ°ΠΆΠ°, ΡΡΠΎΠ±Ρ ΠΎΠ±ΡΠ°ΡΡΡΡ Ρ ΠΏΠΎΠ΄ΡΡΠ΄ΡΠΈΠΊΠ°ΠΌΠΈ ΠΈ ΠΏΠΎΡΡΠ°Π²ΡΠΈΠΊΠ°ΠΌΠΈ ΠΎ ΠΏΡΠ΅Π΄ΡΡΠΎΡΡΠ΅ΠΌ ΠΏΡΠΎΠ΅ΠΊΡΠ΅ ΡΠ΅ΠΊΠΎΠ½ΡΡΡΡΠΊΡΠΈΠΈ.
ΠΠ°ΠΊ Π½Π°ΡΠΈΡΠΎΠ²Π°ΡΡ ΠΏΠ»Π°Π½ ΡΡΠ°ΠΆΠ°
ΠΡΡΡ Π½Π΅ΡΠΊΠΎΠ»ΡΠΊΠΎ ΠΎΡΠ½ΠΎΠ²Π½ΡΡ ΡΠ°Π³ΠΎΠ² Π΄Π»Ρ ΡΠΎΠ·Π΄Π°Π½ΠΈΡ ΠΏΠ»Π°Π½Π° ΡΡΠ°ΠΆΠ°:
- ΠΡΠ±Π΅ΡΠΈΡΠ΅ ΠΎΠ±Π»Π°ΡΡΡ. ΠΠΏΡΠ΅Π΄Π΅Π»ΠΈΡΠ΅ ΠΎΠ±Π»Π°ΡΡΡ Π΄Π»Ρ ΡΠΈΡΠΎΠ²Π°Π½ΠΈΡ. ΠΡΠ»ΠΈ Π·Π΄Π°Π½ΠΈΠ΅ ΡΠΆΠ΅ ΡΡΡΠ΅ΡΡΠ²ΡΠ΅Ρ, ΡΠ΅ΡΠΈΡΠ΅, ΡΠΊΠΎΠ»ΡΠΊΠΎ Π΅Π³ΠΎ (ΠΊΠΎΠΌΠ½Π°ΡΡ, ΡΡΠ°ΠΆ ΠΈΠ»ΠΈ Π²ΡΠ΅ Π·Π΄Π°Π½ΠΈΠ΅) ΡΠΈΡΠΎΠ²Π°ΡΡ. ΠΡΠ»ΠΈ Π·Π΄Π°Π½ΠΈΠ΅ Π΅ΡΠ΅ Π½Π΅ ΡΡΡΠ΅ΡΡΠ²ΡΠ΅Ρ, ΠΏΡΠΎΠ΄ΡΠΌΠ°ΠΉΡΠ΅ ΠΏΡΠΎΠ΅ΠΊΡ, ΠΎΡΠ½ΠΎΠ²Π°Π½Π½ΡΠΉ Π½Π° ΡΠ°Π·ΠΌΠ΅ΡΠ΅ ΠΈ ΡΠΎΡΠΌΠ΅ ΠΌΠ΅ΡΡΠ°, Π½Π° ΠΊΠΎΡΠΎΡΠΎΠΌ Π½ΡΠΆΠ½ΠΎ ΡΡΡΠΎΠΈΡΡ.
- Π‘Π½ΡΡΡ ΠΌΠ΅ΡΠΊΠΈ. ΠΡΠ»ΠΈ Π·Π΄Π°Π½ΠΈΠ΅ ΡΡΡΠ΅ΡΡΠ²ΡΠ΅Ρ, ΠΈΠ·ΠΌΠ΅ΡΡΡΠ΅ ΡΡΠ΅Π½Ρ, Π΄Π²Π΅ΡΠΈ ΠΈ ΡΠΎΠΎΡΠ²Π΅ΡΡΡΠ²ΡΡΡΡΡ ΠΌΠ΅Π±Π΅Π»Ρ, ΡΡΠΎΠ±Ρ ΠΏΠ»Π°Π½ ΡΡΠ°ΠΆΠ° Π±ΡΠ» ΡΠΎΡΠ½ΡΠΌ. ΠΡΠ»ΠΈ ΠΏΠ»Π°Π½ ΡΠΎΠ·Π΄Π°Π΅ΡΡΡ Π΄Π»Ρ ΡΠΎΠ²Π΅ΡΡΠ΅Π½Π½ΠΎ Π½ΠΎΠ²ΠΎΠΉ ΠΎΠ±Π»Π°ΡΡΠΈ, ΡΠ±Π΅Π΄ΠΈΡΠ΅ΡΡ, ΡΡΠΎ ΠΎΠ±ΡΠ°Ρ ΠΏΠ»ΠΎΡΠ°Π΄Ρ Π±ΡΠ΄Π΅Ρ ΡΠΎΠΎΡΠ²Π΅ΡΡΡΠ²ΠΎΠ²Π°ΡΡ ΡΠΎΠΌΡ ΠΌΠ΅ΡΡΡ, Π³Π΄Π΅ ΠΎΠ½Π° Π±ΡΠ΄Π΅Ρ ΠΏΠΎΡΡΡΠΎΠ΅Π½Π°.Π Π΅ΠΊΠΎΠΌΠ΅Π½Π΄ΡΠ΅ΡΡΡ ΠΈΠ·ΡΡΠΈΡΡ Π·Π΄Π°Π½ΠΈΡ, ΠΏΠΎΡΡΡΠΎΠ΅Π½Π½ΡΠ΅ Π½Π° Π°Π½Π°Π»ΠΎΠ³ΠΈΡΠ½ΡΡ ΡΠ΅ΡΡΠΈΡΠΎΡΠΈΡΡ , ΡΡΠΎΠ±Ρ ΠΈΡΠΏΠΎΠ»ΡΠ·ΠΎΠ²Π°ΡΡ ΠΈΡ Π² ΠΊΠ°ΡΠ΅ΡΡΠ²Π΅ ΠΎΡΠ΅Π½ΠΊΠΈ Π΄Π»Ρ ΡΡΠΎΠ³ΠΎ ΠΏΠ»Π°Π½Π° ΡΡΠ°ΠΆΠ°. Π£Π·Π½Π°ΠΉΡΠ΅ Π±ΠΎΠ»ΡΡΠ΅ ΠΎ ΡΠΎΠΌ, ΠΊΠ°ΠΊ ΠΈΠ·ΠΌΠ΅ΡΠΈΡΡ ΠΈ Π½Π°ΡΠΈΡΠΎΠ²Π°ΡΡ ΠΏΠ»Π°Π½ ΡΡΠ°ΠΆΠ° Π² ΠΌΠ°ΡΡΡΠ°Π±Π΅.
- ΠΠ°ΡΠΈΡΠΎΠ²Π°ΡΡ ΡΡΠ΅Π½Ρ. ΠΠΎΠ±Π°Π²ΡΡΠ΅ ΡΡΠ΅Π½Ρ Π΄Π»Ρ ΠΊΠ°ΠΆΠ΄ΠΎΠΉ ΠΊΠΎΠΌΠ½Π°ΡΡ Π·Π΄Π°Π½ΠΈΡ, ΡΡΠ°ΡΠ°ΡΡΡ Π½Π°ΡΠΈΡΠΎΠ²Π°ΡΡ ΠΈΡ Π² ΠΌΠ°ΡΡΡΠ°Π±Π΅.
- ΠΠΎΠ±Π°Π²ΠΈΡΡ Π°ΡΡ ΠΈΡΠ΅ΠΊΡΡΡΠ½ΡΠ΅ ΡΠ»Π΅ΠΌΠ΅Π½ΡΡ. ΠΠ°ΡΠ½ΠΈΡΠ΅ Π΄ΠΎΠ±Π°Π²Π»ΡΡΡ ΡΠ»Π΅ΠΌΠ΅Π½ΡΡ Π² ΠΏΡΠΎΡΡΡΠ°Π½ΡΡΠ²ΠΎ, Π²ΠΊΠ»ΡΡΠ°Ρ Π½Π΅ΠΈΠ·ΠΌΠ΅Π½Π½ΡΠ΅ Π²Π΅ΡΠΈ, ΡΠ°ΠΊΠΈΠ΅ ΠΊΠ°ΠΊ Π΄Π²Π΅ΡΠΈ ΠΈ ΠΎΠΊΠ½Π°, Π° ΡΠ°ΠΊΠΆΠ΅ Ρ ΠΎΠ»ΠΎΠ΄ΠΈΠ»ΡΠ½ΠΈΠΊ, ΠΏΠΎΡΡΠ΄ΠΎΠΌΠΎΠ΅ΡΠ½ΡΡ ΠΌΠ°ΡΠΈΠ½Ρ, ΡΡΡΠΈΠ»ΠΊΡ ΠΈ Π΄ΡΡΠ³ΠΈΠ΅ Π²Π°ΠΆΠ½ΡΠ΅ ΠΏΡΠΈΠ±ΠΎΡΡ, ΠΊΠΎΡΠΎΡΡΠ΅ Π½Π΅ΠΎΠ±Ρ ΠΎΠ΄ΠΈΠΌΠΎ ΡΠ°Π·ΠΌΠ΅ΡΡΠΈΡΡ Π² ΠΎΠΏΡΠ΅Π΄Π΅Π»Π΅Π½Π½ΠΎΠΌ ΠΌΠ΅ΡΡΠ΅.
- ΠΠΎΠ±Π°Π²ΠΈΡΡ ΠΌΠ΅Π±Π΅Π»Ρ. ΠΠΎΠ±Π°Π²ΡΡΠ΅ ΠΌΠ΅Π±Π΅Π»Ρ, Π΅ΡΠ»ΠΈ ΡΡΠΎΠ³ΠΎ ΡΡΠ΅Π±ΡΠ΅Ρ ΠΏΠ»Π°Π½ ΡΡΠ°ΠΆΠ°.
ΠΡΠΎΡΡΠΈΡΠ΅ ΠΏΠΎΠ΄ΡΠΎΠ±Π½ΠΎΠ΅ ΡΡΠΊΠΎΠ²ΠΎΠ΄ΡΡΠ²ΠΎ SmartDraw ΠΏΠΎ ΡΠΈΡΠΎΠ²Π°Π½ΠΈΡ ΠΏΠ»Π°Π½ΠΎΠ² ΡΡΠ°ΠΆΠ΅ΠΉ.



ΠΠΎΡΠ»Π΅ ΠΏΠΎΠ»ΡΡΠ΅Π½ΠΈΡ ΡΠ΅Π·ΡΠ»ΡΡΠ°ΡΠΎΠ² ΡΡΠ°Π½Π΅Ρ ΡΡΠ½ΠΎ ΠΌΠΎΠΆΠ½ΠΎ ΡΠΎΠΎΡΡΠ΄ΠΈΡΡ Π±ΠΎΠ»ΡΡΠΎΠΉ ΠΏΠΎΠ΄Π²Π°Π» ΠΈΠ»ΠΈ Β«ΠΏΠΎΠ΄ Π·Π΅ΠΌΠ»Π΅ΠΉΒ» ΡΡΡΠΎΠΈΡΡ Π½Π΅ Π½ΡΠΆΠ½ΠΎ.
ΠΡΡΡΠ΅ Π²ΡΠ΅Π³ΠΎ Π΄Π΅Π»Π°ΡΡ ΠΏΡΠΎΠ΅ΠΊΡ Π΄ΠΎΠΌΠ° ΠΏΡΠΎΡΡΡΠΌ, Π±Π΅Π· ΡΠ»ΠΎΠΆΠ½ΡΡ
ΠΊΠΎΠ½ΡΡΡΡΠΊΡΠΈΠ²Π½ΡΡ
ΡΠ΅ΡΠ΅Π½ΠΈΠΉ. ΠΡΠΎ ΠΏΠΎΠΌΠΎΠΆΠ΅Ρ Π²Π°ΠΌ Π±ΠΎΠ»Π΅Π΅ ΡΡΠΏΠ΅ΡΠ½ΠΎ Π²ΠΎΠΏΠ»ΠΎΡΠΈΡΡ Π΅Π³ΠΎ Π² ΠΆΠΈΠ·Π½Ρ ΠΈ Π½Π΅ ΠΏΠΎΡΡΠ°ΡΠΈΡΡ Π»ΠΈΡΠ½ΠΈΠ΅ ΡΡΠ΅Π΄ΡΡΠ²Π° ΠΏΡΠΎΡΡΠΎ ΡΠ°Π΄ΠΈ ΠΈΠ½ΡΠ΅ΡΠ΅ΡΠ½ΠΎΠ³ΠΎ Π΄ΠΈΠ·Π°ΠΉΠ½Π΅ΡΡΠΊΠΎΠ³ΠΎ ΡΠ΅ΡΠ΅Π½ΠΈΡ.
ΠΏ.) ΠΈ ΠΎΡΠΌΠ΅ΡΡΡΠ΅ ΠΈΡ
Π½Π° ΡΠ΅ΡΡΠ΅ΠΆΠ΅.


ΠΡΠΈ Π²ΡΠΏΠΎΠ»Π½Π΅Π½ΠΈΠΈ ΡΡ
Π΅ΠΌΠ°ΡΠΈΡΠ½ΡΡ
ΠΎΡΠΎΠ±ΡΠ°ΠΆΠ΅Π½ΠΈΠΉ ΡΠ»Π΅Π΄ΡΠ΅Ρ ΡΡΡΠΎΠ³ΠΎ ΡΠΎΠ±Π»ΡΠ΄Π°ΡΡ ΠΌΠ°ΡΡΡΠ°Π±Π½ΠΎΡΡΡ.